Как сделать ширму для комнаты своими руками
Тот факт, что сделанная своими руками ширма-перегородка для комнаты обойдется гораздо дешевле не вызывает сомнений, но, помимо этого, такая вещь будет иметь все шансы стать настоящим украшением комнаты. Сделать простую ширму несложно, а увлекательный процесс ее изготовления принесет вам массу удовольствия.

Дизайнеры и художники создают удивительные росписи на ширмах ручной работы
Инструменты и материалы для изготовления
Небольшая ширма выполненная под старину, будет уместно смотреться практически в любом помещении. Винтажные элементы декора давно стали непременным атрибутом современных интерьеров: они создают в комнате ностальгическую теплую атмосферу. К тому же отгородившись ширмой, будет приятно посидеть в кресле за чтением увлекательной книги.

Перегородки в винтажном стиле наполняют комнату особым шармом ностальгии
Перед тем как сделать ширму своими руками, убедитесь, что у вас в наличии имеется весь необходимый инструмент и материал. Для изготовления небольшой деревянной ширмы-перегородки, состоящей из трех секций, потребуется:
- деревянный брус сечением 40 х 40 мм — для изготовления каркаса потребуется 6 брусков длиной около 2 м и столько же элементов чуть короче;
- отрез ткани, желательно плотной и светонепроницаемой — для заполнения секций ширмы;

Процесс создания ширмы своими руками может быть очень увлекательным
страницы с текстом или стихами, вырезанные из книг, газет, личных тетрадей, дневников — для декорирования полотна ширмы. Если какие-то вырезки вам понадобятся в дальнейшем, для работы можно просто сделать копии;

Декорирование перегородки с помощью трафарета и белой краски
- раствор чайной заварки — понадобится для придания листам бумаги состаренного вида. Желательно приготовить крепкий раствор;
- ножницы, малярная кисть, клей ПВА, лак по дереву;
- молоток, угольник, рулетка, отвертка;
- гвозди, саморезы;
- строительный степлер — для фиксации ткани к рамам;
- дверные навесы — потребуется 4 небольшие аккуратные петли для соединения секций ширмы;
- тесьма для украшения.

Схема соединения отсеков каркаса складной перегородки

Процесс крепления бумаги к каркасу ширмы
Последовательность выполнения работ
Работу начинают со сборки рам каркаса. Бруски необходимо подогнать по размерам створки и соединить в рамы. При скреплении брусков следует пользоваться угольником, чтобы соблюсти прямой угол и не допустить перекоса створок. Между собой элементы рамы соединяют посредством саморезов или гвоздей. Готовые конструкции покрывают лаком и оставляют до полного высыхания покрытия.

Брусья каркаса ширмы необходимо надежно скрепить при помощи уголка
Следующим этапом будет соединение секций между собой. Сначала с помощью рулетки на каждой створке размечают места крепления петель. Необходимо, чтобы расстояние от верхней и нижней перемычки до петли у каждой из трех секций было на одном уровне. Петли аккуратно фиксируют с помощью саморезов.

Чертеж соединения секций ширмы друг с другом
Далее, приступают к раскрою ткани. Из нее вырезают 3 части соответствующего размера. До того как ткань будет прикреплена к рамам, ее декорируют. На подготовленные бумажные страницы кистью наносят чайный раствор. Перед нанесением, заварку следует тщательно процедить через мелкое ситечко. Чтобы бумага после высыхания не сморщилась, каждый обработанный лист следует прогладить утюгом. Когда все листы будут высушены, их приклеивают к ткани.

Подготовка листов бумаги под «старину»
Каждый лист покрывают тонким слоем клея ПВА и приклеивают к полотнам. При выполнении этой процедуры нужно следить, чтобы клей не вытекал на ткань. После этого дают клею полностью высохнуть. Подготовленной тканью заполняют секции ширмы. С помощью степлера к одной из сторон рамы крепят полотно, а затем, натягивая ткань, фиксируют ее к остальным элементам рамы. Рекомендуемое расстояние между скобами составляет 4-5 см.
Статья по теме:
Заключительный этап работы заключается в том, чтобы придать ширме эстетический вид. Для этого, линии крепления ткани к раме закрывают тесьмой. Это можно сделать с помощью клея. Следите, чтобы тесьма легла ровно относительно направления элементов каркаса. Ваша уникальная ширма-перегородка для комнаты готова к использованию!

Крепление полотна ткани к каркасу ширмы

В сети Интернет можно найти массу оригинальных идей по украшению комнатных ширм
Зонирование пространства с помощью комнатных ширм-перегородок позволяет по первому требованию изменять конфигурацию помещения, придавая всему интерьеру таинственности и загадочности. А за ненадобностью, почти невесомая переносная конструкция быстро и легко складывается, не загромождая комнату.
№3. Какую функцию будет выполнять ширма в интерьере?
Чтобы выбор ваш был однозначным и вы не начали сомневаться после покупки, а правильно ли вы поступили, необходимо определиться, чего именно вы хотите добиться в интерьере с помощью ширмы.
Зонирование
Преобладающее большинство людей приобретают ширму именно для этой цели. Это действительно лучший вариант, если комнаты вашей квартиры длинные и прямоугольные, или если вы владелец однокомнатной квартиры. Тогда ширма для вас – это просто спасение! Ведь она поможет отделить обеденную зону от гостиной, рабочую от спальной, а в детской комнате создать отдельный игровой уголок, в котором вашему ребенку будет уютно и комфортно. Ширму для зонирования выбрать очень просто. С видами ширм вы уже ознакомились. Главное, чтобы ширма либо соответствовала стилю вашей квартиры в целом, либо вносила в него оригинальный акцент.
отделить гостиную зону
Если вы решили отделить рабочую зону от спальной, то со стороны вашего мини-офиса, можно сделать неглубокие ниши в ширме и использовать их для книг или канцелярских ппринадлежностей. Такую ширму удобнее всего сделать из гипсокартона, кстати даже своими руками. Или наоборот, сделать ниши сквозными, чтобы свет хорошо поступал через них и в спальную зону и расставить комнатные растения. Это не только оживит интерьер, но и принесёт пользу вашему здоровью.
Отделить спальное место от импровизированной гардеробной так же поможет ширма! И только вам решать будет она на всю длину стены и прикручена сразу к полу, или будет легко и быстро убираться при необходимости. В любом варианте это очень удобно и практично.
Сделать в детской комнате отдельное место для игр тоже можно, применив ширму. Для экономии места в небольшой комнате можно сделать ширму из текстиля и нашить на неё множество кармашков, так для игрушек появится много нового места, а их складывание превратиться в настоящую игру, ведь у каждой игрушки теперь есть свой домик!
Место для ширмы найдется даже в ванной комнате. Выберите ширму из прозрачного или матового стекла и вы с лёгкостью отделите ванну или душевой поддон от зону личной гигиены. Такие ширмы выглядят очень лаконично и современно, а главное – их очень легко мыть.
Декор
Используя лёгкую, яркую, красиво украшенную ширму можно добиться очень больших перемен во внешнем виде вашей комнаты. Ширмы для декора могут иметь небольшие размеры и устанавливаться в углу, вплотную к стене, не неся в себе какой-либо функциональный смысл. Или просто стоять вдоль или посредине центральной стены
Если такая ширма будет резной, витражной или иметь яркий рисунок, то вы вполне можете отказаться от обоев на стене, чтобы они не отвлекали внимание. Возможно это будет тканевая ширма, которая будет крепиться к потолку и выполнять функцию перестенка. Естественно это не ваш вариант, если у вас натяжные потолки, не забывайте об этом
Ширма, стоящая у окна, может с легкостью заменить шторы. Я думаю в процессе чтения у вас перед глазами уже возник образ вашей ширмы как художественного украшения интерьера
Естественно это не ваш вариант, если у вас натяжные потолки, не забывайте об этом. Ширма, стоящая у окна, может с легкостью заменить шторы. Я думаю в процессе чтения у вас перед глазами уже возник образ вашей ширмы как художественного украшения интерьера.
Практическое применение
Да, ширмы действительно могут иметь и более функциональное применение, чем простое украшение или разграничение пространства. Это ширмы, на которых есть дополнительные полочки, кармашки, отделы для хранения чего-либо, возможно даже крючки для одежды или сумок и зонтов. На некоторые ширмы можно вмонтировать светодиодную ленту или купить готовую ширму с подсветкой, это принесёт вам дополнительные источник мягкого, приглушенного света – самое то, для создания романтической обстановки.
Ширмы для ванных комнат могут быть оборудованы держателями для полотенец или для дозаторов жидкого мыла, а то и стаканчиком для зубных щёток или всем сразу.
Никто не говорит, что практичная ширма обязательно громоздкая и некрасивая, ни в коем случае. Наоборот, это даже очень грамотное вложение ваших денег. Вспомните, сколько стоит в магазине набор аксессуаров для ванной комнаты? А, приобретая функциональную ширму, вы получите два в одном!
Процесс изготовления ширмы: три этапа
Глобально весь процесс изготовления ширмы для комнаты своими руками можно разделить на три основных этапа, каждый из которых имеет свои тонкости и нюансы, соблюдать которые придется хотя бы для того, чтобы получилось действительно красивое изделие. Начнем по порядку.
Рамки. Их понадобится несколько – минимум две, максимум с десяток. В общем, такого плана может иметь много секций, но следует понимать, что если их будет слишком много, то ширма получится неподъемной и транспортировать ее будет практически невозможно. Так что если у вас имеется необходимость в изготовлении ширмы большой длины, то следует подумать об изготовлении нескольких отдельных изделий. Но вернемся к нашим рамкам – требований к их изготовлению (если не считать эстетические) не так уж и много. В первую очередь, это жесткость конструкции – обеспечивается она надежным крепежом элементов и установкой дополнительных поперечных перемычек. Во-вторых, четкая геометрия – все углы рамы должны находиться в пределах 90 градусов. Если не будет ровных прямых углов, то ширма будет иметь перекошенный вид. В принципе, это все основные моменты. Теперь что касается сборки – если говорить о древесине, то собираются рамки из бруса. По сути, свинтить в рамку нужно будет два длинных бруска (они задают высоту изделия) и три, а то и четыре коротких бруса, которые задают ширину секции ширмы. Наиболее надежное крепление брусков друг с другом обеспечивают мебельные конфирматы.
Как сделать ширму своими руками фото
Наполнение секций. Здесь все зависит от того, какой материал вы выберете в качестве наполнителя. Если это стекло, то оно устанавливается по принципу остекления окон – то есть, сначала прибиваете внутри рамки штапик с одной стороны, потом вставляете стекло и устанавливаете штапик с другой стороны. С тканью дела обстоят немного сложнее и здесь можно пойти двумя путями – драпировку можно прибить непосредственно к секции ширмы и скрыть место соединения рейкой или все тем же штапиком. А можно сделать для ткани отдельную рамку, обтянуть ее тканью и установить по технологии монтажа стекла. Второй вариант лучше, так как вы получаете легко заменяемый элемент – в случае порыва ткани отремонтировать ширму будет не трудно. В общем-то, по аналогичным технологиям монтируется любой другой материал, который вы придумаете для наполнения секций ширмы. Даже плетения из ротанга или макраме сначала собираются на рамке и только после этого устанавливаются в секции с помощью штапиков.
Как сделать ширму для комнаты своими руками фото
Сборка. Здесь понадобится сделать всего две вещи. В первую очередь это соединить все секции в одно единое изделие – производится такое соединение с помощью навесов, подобрать которые как по размеру, так и по дизайну вы сможете практически в любом строительном магазине. Нюанс здесь только один – нужно сделать так, чтобы секции складывались в разные стороны. В смысле того, что первая на себя, вторая от себя, третья снова на себя и четвертая опять от себя – только такая последовательность обеспечит компактное складывание ширмы для дома. Вообще в идеале можно подобрать такие петли, которые обеспечат складывание секции в любом направлении – правда, в таком случае между ними будет оставаться зазор. Если он вас не смущает, то такое решение будет вообще идеальным вариантом. Второй момент – это установка ширмы на ролики или на подставку. В общем, нужно придать устойчивость в разложенном положении и добиться этого можно только одним способом – прикрепить к нижней части каждой секции поперечную рейку и для лучшей транспортировки оснастить ее роликами. В принципе, это несложный момент, с которым немудрено разобраться самостоятельно.
Ширма для дома фото
Как видите, все весьма просто, и особых сложностей в процессе изготовления ширмы для дома не возникает. Главное – иметь желание все это сделать своими руками и отнестись к процессу ее изготовления творчески и со всей ответственностью.
В заключение темы, как сделать ширму своими руками, скажу несколько слов об изготовлении перегородки из стекла или монолитного поликарбоната. Такие ширмы изготавливаются еще проще, особенно если говорить о таком материале, как оргстекло () – все, что здесь нужно сделать, чтобы конструкция работала, это приобрести правильную фурнитуру, то есть навесы и опоры. Когда купите все это дело – процесс изготовления ширмы сведется к банальной сборке. Нужно будет только сверлить отверстия в нужных местах и соединять заранее порезанные листы пластика в единое изделие.
Разновидности ширм
Производители предлагают несколько видов:
- деревянные (мдф, дсп),
- металлические,
- стеклянные или пластиковые.
Расскажем подробнее о свадебных ширмах из разных материалов и рассмотрим примеры на фото.
Деревянная ширма на свадьбу
Ширма, выполненная из дерева, создаст атмосферу аутентичности и натуральности или элегантной роскоши. Для свадьбы, например, в эко стиле или стиле рустик команда портала www.svadebka.ws рекомендует сделать ее наподобие деревянного забора, украсив цветами или зеленью. Этот вариант также подойдет для бракосочетания с народными акцентами. А изготовить такую ширму на свадьбу можно и своими руками.
Если необходима более легкая утонченная конструкция, то подойдет резная ширма на свадьбу из МДФ или ДСП. Это легкое, недорогое и экологичное сырье. Окрасить ажурную стенку можно в любой цвет.
Металлическая ширма: вариант для оформления фотозоны
Кованые изделия имеют некий винтажный шик. Легкость кружевных узоров и массивность металла соединяются воедино, напоминая образ ворот в волшебный мир из детских сказок. Такая ширма на свадьбу дорога в изготовлении, поэтому возьмите ее на прокат, в целях экономии.
Стеклянная или пластиковая ширма
Пластик – один из самых дешевых материалов и легко поддается окраске, поэтому из него можно создать даже свадебный декор в стиле омбре. Кроме того, пластиковая ширма будет весить не больше 20 кг. Возьмите ее на фотосессию в лес или парк, ведь она поместится даже в легковой автомобиль. Затем используйте в качестве оформления подарочного стола и стола молодоженов.
Стеклянные конструкции – самые хрупкие и изящные. Это и витражные композиции, и всевозможные яркие рисунки на стекле, а в сочетании с другими материалами и вовсе получаются необычные изделия, например, свадебная стена для фотосессии в виде двери послужит и отличным фоном, и символом открытия новой жизни. Как сделать расписную ширму своими руками с красивыми «морозными» узорами, читайте на сайте Свадебка.ws.
Легкая ширма своими руками
Нам понадобится:
- деревянные сосновые рейки квадратного или прямоугольного сечения – 6 штук длиной 160 см и 6 штук длиной 50 см,
- мебельные гвозди,
- 6 рояльных петель,
- саморезы, отвертка или шуруповерт,
- ножницы,
- молоток,
- кисточка,
- белая краска,
- белая портьерная ткань с атласным блеском,
- мебельный степлер,
- шило,
- карандаш,
- рулетка.
Красим рейки, оставляем высыхать. Собираем каркасы для створок, соединяя рейки мебельными гвоздями. Нижнюю рейку створки размещаем с отступом от края на одну ширину рейки, создавая мини-ножки для ширмы. Режем ткань на куски по размеру створок с припуском в 3-5 см с каждой стороны на подгиб и натягиваем ее на каркасы. Контролируем степень натяжения ткани, а срезанный край с тыльной стороны подворачиваем, чтобы нитки не высыпались и не растрепывались. Начинаем крепление ткани на коротких торцах 1-2 скобами, затем также крепим ткань на боковых частях. Повторяем процесс, постоянно натягивая ткань. В результате скобы должны размещаться с промежутком максимум в 5 см друг от друга. Крепим створки петлями. Для этого размечаем на торцах расположение петель, прокалываем ткань шилом, прикручиваем петли саморезами. Изящная ширма своими руками готова.
В старых купеческих и аристократических домах, с их анфиладами проходных комнат не всегда можно было найти укромное место для переодевания, поэтому декоративная ширма была обязательным элементом меблировки. О ней надолго и незаслуженно забыли, но она все-таки вернулась в современные интерьеры. Предлагаем вам простой пошаговый мастер-класс по изготовлению складного аксессуара своими руками. Зачем покупать, если вы можете сделать ширму необходимого размера из подручных материалов.
Ширма с сеткой на деревянном каркасе
Ширмы с сеткой на деревянном каркасе являются не только функциональным элементом интерьера, но и прекрасным декоративным акцентом. Они могут использоваться для создания разделения пространства в комнате, защиты от прямых солнечных лучей или просто для добавления интимности в помещение.
Список материалов:
- Деревянные палки (размеры и количество зависят от предпочтений и размеров ширмы)
- Дрель с набором сверл (для предварительного сверления отверстий)
- Винты или гвозди
- Сетка (ткань или сетчатый материал)
- Ножницы, измерительная лента
- Ручная пила или пильный станок
- Шлифовальная бумага (разной зернистости)
- Кисточка и краска (для окрашивания деревянного каркаса)
- Раскройный стол (или просто большая рабочая поверхность)
- Зажимы для дерева (для фиксации палок во время работы)

Определите размеры и форму будущей ширмы. Решите, сколько панелей вам нужно и какая высота и ширина будет наиболее подходящей для вашего интерьера. Используя измерительную ленту, отметьте и отрежьте деревянные палки на желаемую длину. Если необходимо, выровняйте концы палок, используя пилу или пильный станок. При необходимости, шлифуйте концы палок с помощью шлифовальной бумаги, чтобы сделать их гладкими и безопасными для использования. Разметьте места для отверстий на палках и предварительно сверлите отверстия с помощью дрели, чтобы избежать расщепления дерева.

Соберите каркас ширмы, соединяя палки в нужном порядке и закрепляя их с помощью винтов или гвоздей. Используйте зажимы для дерева, если нужно, чтобы палки были надежно закреплены во время работы. Разверните сетку на рабочей поверхности и поместите на нее каркас ширмы, чтобы убедиться, что сетка полностью покрывает каркас и не имеет излишков. С помощью ножниц отрежьте сетку с запасом, чтобы оставалось достаточно материала для фиксации ее на каркасе.

Начните крепить сетку к каркасу, начиная с одного угла. Используйте винты или гвозди, чтобы надежно закрепить сетку к деревянным палкам. Регулярно проверяйте натяжение сетки и выравнивайте ее по мере необходимости. Повторите процесс крепления сетки ко всем оставшимся углам и сторонам каркаса, обеспечивая равномерное натяжение и отсутствие складок или излишков материала.

После того как сетка полностью закреплена, проверьте каркас и сетку на наличие выступающих элементов, острых краев или других дефектов, которые могут вызывать травмы. При необходимости, сделайте финальные шлифовки или корректировки. Вы можете окрасить деревянный каркас в выбранный вами цвет с помощью кисточки и краски. Дайте краске полностью высохнуть перед использованием ширмы. Установите готовую ширму в нужное место в вашем интерьере и наслаждайтесь ее функциональностью и красотой.

Материалы и инструменты, необходимые для изготовления ширмы
Изготовление ширмы своими руками — совсем не сложный процесс. Сделав это первый раз, в дальнейшем, имея необходимые инструменты и опыт, можно самостоятельно усовершенствовать технологию, разработать неповторимые дизайнерские решения. Но для первой ширмы потребуются минимальный набор инструментов и материалов. А именно:
- Шуроповерт и дрель;
- Степлер строительный;
- Петли мебельные;
- Ножовка;
- Шурупы;
- Краска, лак;
- Бруски из дерева необходимой длины;
- Ткань для внутреннего наполнения створок (если применяться будет стекло – дополнительно понадобятся штапики);
- Подходящий декор.
Если все необходимое в наличии, можно приступать к изготовлению.
Процесс изготовления в свою очередь делится на производство рамы для створок, декорирование и скрепление створок.
Основным элементом в конструкции ширмы является каркас створки. Поэтому каркасные ширмы наиболее популярны при самостоятельном изготовлении. Каркас из дерева представляет собой обычную раму. Изготавливают ее в несколько этапов.
Если створка планируется сплошной – материал выбирают как можно более легкий.
Расчет размеров.
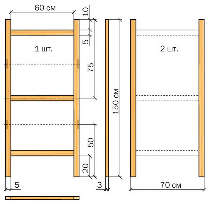
Делаем разметку бруса (4х4) с расчетом шести брусков по сто восемьдесят и шести брусков по пятьдесят сантиметров.
Распил брусков из дерева, согласно произведенным размерам.
Далее для изготовления ширмы распиливаем брусок по разметке.
Предварительная обработка дерева для каркаса: шлифовка, пропитка подходящим составом, грунтовка, покраска.
Обрабатываем деревянные заготовки наждачной бумагой или шлифовальной машиной, до гладкости.
Необходимо произвести предварительную работу по закрытию всех неровностей и трещин.
Соединять бруски можно несколькими способами. Например, с помощью шипов (по внешнему виду такой способ похож на одежную «молнию»). Для этого по краю обоих брусков дрелью делают углубленные пазы.
Данное соединение наиболее прочное.
Убедившись, что углубления точно совпадают, промазывают их клеем и соединяют с помощью подходящих по размеру шипов.
Соединять бруски также можно шурупами. Создавая каркас, при креплении брусков можно оставить место под ножки.
Скрепляем подобным образом все три створки.
Покрытие подходящей по цвету интерьера краской (морилкой).
После завершения подготовки поверхности будущей ширмы для дома, окрашиваем дерево понравившейся краской.
- Покрытие лаком в два слоя.
Сделать еще несколько аналогичных створок.
Соединяем отдельные створки с помощью петель.
Для усложнения задачи каркас можно сплести из лозы, сделать из ажурного металла (ковка), декорировать углы рамы кованым металлом, применить технику кракелюр по дереву.
В производстве мобильных перегородок используют разное сырье. Сегодня ширмы изготавливают из ротанга, фанеры, ткани, стекла, бамбука, а также пластика. Первые каркасы моделей изначально были деревянными, но сегодня, помимо дерева и пластика, используют и металл. Створки могут быть стеклянными, тканевыми, пластиковыми, плетеными, бамбуковыми.
Выбор того или иного материала зависит от условий комнаты, в которую покупают перегородку. Материалы нередко комбинируют, например, ширма может иметь металлический каркас со стеклянной вставкой, пластиковую основу с текстилем. Каждое сырье имеет свои особенности.
Металл может быть как основой под любые створки, так и полноценной ширмой. Ажурные перегородки из него смотрятся визуально легко и эстетически привлекательно. Металл может быть окрашен под золото, бронзу, серебро. Недостатком такого материала является ощутимый вес и сложность переноса.
Стекло и зеркало вносят в интерьер ощущение визуальной легкости. Они сочетаются с любыми материалами, имеющимися в обустройстве. Поэтому отлично подходят для украшения любых комнат жилища. Стеклянная поверхность створок может быть прозрачной, полупрозрачной, глянцевой, матовой, окрашенной, с рисунком либо без него. Кроме того, стекло может быть витражным.
Модели из текстиля и кожи вносят в интерьер особый колорит. С их помощью можно подчеркнуть статус интерьерной композиции, указать на принадлежность к определенному стилю. Уход за кожей несложен, для поддержания эстетической привлекательности ее достаточно протирать влажной тряпочкой.
Створки бюджетных модификаций изготавливают из ПВХ-полотна. В целях улучшения его эстетических свойств на лицевую поверхность наносят полиграфический рисунок. Полимерная пленка с фотопечатью является одним из наиболее популярных материалов изготовления. В линейках производителей встречаются изделия из МДФ с 3Д узором.
Декоративная ширма из картона
Самый легкий способ сделать перегородку – это взять картонные трубы, на которые накручивают линолеум. Их можно найти дома, если вы недавно делали ремонт или недорого купить в магазине.
Что нам пригодится:
- картонные трубы (примерно 20 шт.);
- карандаш;
- рулетка;
- надежная веревка;
- дрель.
Как сделать ширму-перегородку из картона:
1. Складываем трубы ровно друг с другом, чтобы наметить одинаковую высоту. Далее раскладываем наши заготовки, делаем разметку, отступая 20 см от края. Если трубы разной длины, ровняем их.
2. От каждой отметки отступаем 1 метр и делаем новую отметку. Далее между этими точками находим центр и помечаем его. На отметках делаем маленькие отверстия дрелью.
3. Продеваем веревку через дырки, тем самым соединяя заготовки друг с другом.
4. Закрепляем узелки на концах. Декорируем изделие на свой вкус.
Дизайн ширмы перегородки для комнаты.
Ассортимент ширм-перегородок позволяет выбрать вариант, органично дополняющий декор комнат любого стиля.
Гостиная.
Ширма выполняется под цвет и стиль помещения: ажурная металлическая, деревянная с роскошным текстилем типа парчи или шелка (под классику, романтику), пластиковая (для хай-тека, техно, лофта). Интересное решение – зеркально-стеклянная модель со вставками, повторяющими рисунок либо цвет стекла мебели.

Детская.
Перегородка необходима, если помещение делят дети разного возраста или пола. В комнате новорожденного незаменима конструкция с карманами.
Разумно использование конструкций с полотном, закрепленным завязками, – его легко снять для стирки.
Дизайн определяется возрастом и интересами хозяев:
- Для малышей это ширма-заставка с яркими пластиковыми экранами, запечатлевшими героев сказок и мультфильмов. Также используется как кукольный театр.
- Подросткам понравятся модели с карманами, встроенными полками, фоторамками. За покупкой ширмы лучше идти с ребенком, чтобы не ошибиться в тематике.
- Родителей, делящих помещение с малышом, выручит двусторонняя перегородка. С одной стороны яркий детский сюжет, с другой – в стиле «взрослой» комнаты.
Ванная.
Ширма выглядит презентабельнее привычных шторок. Прозрачный пластик либо матовое или тонированное закаленное стекло делают бескаркасные конструкции воздушными, не перегружающими пространство. Ими прикрывают окно, создают зону для переодевания, делят просторную ванную на две классические зоны.
Полезна модель с кармашками для аксессуаров и крючками для полотенец и одежды.
Спальня.
Подойдет изящный резной деревянный (или из ротанга, бамбука), пластиковый каркас. Текстиль дорогой, нежных тонов, в цвет штор или обоев.
Уголок для переодевания оформляется ширмой-зеркалом, позади которой поставлен стул или столик и смонтированы крючки для одежды.

Кухня.
Ширма из влагостойких материалов (пластик, тонированное или витражное стекло) под цвет стен либо мебели превратит одно помещение в кухню и столовую.
Ширма с окошком
Это более сложный вариант перегородки для создания своими руками. Такое окошко можно использовать в качестве вешалки для одежды. Делается оно с помощью дополнительной деревянной перекладины, монтируя брусок на расстоянии 20-25 см от верха и ткань крепите на уровне бруска.
Как видите, создать красивую ширму на деревянном каркасе совсем не сложно. Все ее элементы можно купить в ближайшем строительном магазине и проявив фантазию создать невероятную, впечатляющую, авторскую перегородку.
Еще несколько веков назад ширма представляла собой классический атрибут любого интерьера, претендующего на претенциозность и наличие вкуса.
В наши дни с помощью ширм можно регулировать пространство в доме.
Со временем мода «отодвинула» ширму, превратив ее в антиквариат, представляющий интерес только для историков от моды. Сейчас же, когда в интерьер возвращается понятие о зонировании пространства, ширма снова стала необходима.

Ширма – это не просто декоративный элемент, а вполне функциональная деталь.
С помощью нее можно скрыть не предназначенное для посторонних глаз, усложнить или сделать более уютным пространство, а еще превратить ее в арт-объект, добавить театральности и декоративности и т. д.

В гостиной ширму можно сделать главным украшением комнаты.
Современную ширму подразделяют на различные виды в зависимости от строения, используемых материалов и назначения.

Оригинальная глянцевая ширма выступают элемент декора.
И если назначение ширмы может быть самым разнообразным и зависит только от фантазии ее обладателя, то самыми популярными по конструкции видами являются следующие.
- Створчатые.
До недавнего времени это была единственно возможный вид ширмы. Жесткий каркас створки с натянутой на него тканью (бумагой, вставленным в каркас стеклом и т. д.), между собой створки соединяются наподобие «гармошки».

Ширма на всю длину комнаты вдоль стены выступает как декоративный элемент.
Крепление выполнено мебельными или рояльными петлями, в некоторых случаях крепким мягким материалом (кожа, плотная ткань, искусственная кожа). Изначально каркас готовился из дерева, но в дальнейшем его заменили на более легкий алюминий.

В настоящее время основным материалом для створчатых ширм является пластик.
- Одноэкранные.
Это основной вид офисных ширм. Используется при необходимости разгородить большое пространство на более мелкие, индивидуальные «кабинетики».

Необычная одноэкранная ширма в уголке для отдыха.
- Составные.
С недавнего времени данный вид стал особенно популярен среди тех, кто любит кардинальные перемены в своем интерьере. Такая ширма собирается наподобие пазла из нескольких элементов. Материалом обычно служит пластик, но возможен и текстильный вариант.

При этом количество элементов, материал для них и в каком порядке они будут идти, можно выбрать самостоятельно.
- Гибкие.
Этот вид ширм – последнее изобретение дизайнеров. Конструкция состоит не из отдельных створок, а представляет собой единую стену из гибкого материала.

Ширма легко сворачивается в рулон при необходимости, может принимать причудливые формы и использоваться в различных ситуациях.
Его можно сгибать под практически любым углом, создавая не только небольшие зоны в пространстве, но и даже лабиринты. При необходимости ширму складывают и убирают.

Новинка в мире перегородок – гибкая ширма.
Если перед вами встал вопрос о том, как сделать ширму своими руками, то исходить нужно из особенностей конструкции. Например, изготовить самостоятельно гибкую ширму не представляется возможным, т. к. здесь все дело в материале. Такую ширму можно подвергнуть дизайнерским изменениям или самостоятельно собрать.

Изготовить классическую створчатую ширму своими руками вполне реально.
При этом такая ширма будет обладать несомненным рядом преимуществ:
М
атериал выбирается исходя из собственных предпочтений, также как и конфигурация, высота, ширина и т. д.;Ш
ирма идеально «впишется» в интерьер и по величине, и по дизайну, и по цвету, и по стилю;Ц
ена на такую индивидуальную конструкцию значительно ниже любых других аналогов;П
ри желании для изготовления можно привлечь дополнительно, например, мастеров по дереву, художников или профессиональных декораторов.

Так как ширмы изготавливают из самых различных материалов, то важно не ошибиться с ее выбором для того или иного помещения

Ширма для комнаты может быть не только функционально полезна, а также декоративно выгодна.


































