Как усилить?
В доме укрепление стен проводится в дверном или оконном проеме, а также несущей стене. Для каждого случая есть свои схемы и методы монтажа металлической конструкции. У каждого из них свои нюансы, которые необходимо знать.
Усиление дверного проема не сильно отличается от несущей стены, но здесь тоже есть свои нюансы:
сначала выполняется разметка проема для ровных линий можно использовать рейку;
- вместе с этим необходимо сделать разметку там, где будет перемычка – над проемом, концы перемычки должны опираться на края проема и заходить за них не больше, чем на 25 см;
- первой необходимо установить перемычку – она перехватит нагрузку и та уйдет на опорные стены, монтировать ее необходимо так, чтобы она не выступала за плоскость стены, поэтому перед установкой нужно сделать канавы в стене (штробы) с обеих сторон;
- в качестве перемычки желательно взять швеллер, номер которого задается проектом он устанавливается в штробы и стягивается болтами между собой, снизу они скрепляются пластинами из металла сваркой;
- пустота между кладкой и металлом заливается бетоном.
Так как окна устанавливаются в несущие стены, то нагрузка на них будет больше. Поэтому для усиления оконных проемов используются усиленные конструкции:
- Швеллерный профиль. В месте, где он будет крепиться необходимо сделать штробу, в которую плотно вставляется швеллер и закрепить его раствором из цемента и песка. Соединить профили между собой можно специальными шпильками, шайбами и гайками.
- Также используются вертикальные опоры из двух швеллеров. Их чаще всего устанавливают в проемах, ширина которых больше 1,5м. Они привариваются к швеллерам, которые прикреплены к горизонтальным перемычкам.
Делать проем в несущей стене опасно, поэтому перед этим необходимо посоветоваться со специалистами и получить все разрешения. В несущих стенах из кирпича усиление проемов делается с помощью швеллера.
Последовательность усиления:
- Сначала с двух сторон стены на необходимой высоте нужно сделать отверстия для установки швеллера. Нижний уровень рассчитывается исходя из того, что перемычка должна проходить по нижней части крайнего кирпича. Если ее опора будет на неполном кирпиче, то при давлении он может расколоться или раскрошиться.
- Далее швеллеры устанавливаются в горизонтальной плоскости и скрепляются шпильками.
- Последним этапом идет штукатурка проема бетонным раствором.
После укрепления проема необходимо сделать декоративную отделку. Для этого необходимо смешать цемент и песок 3:1 соответственно и заштукатурить нужные места. После этого можно отделать гипсокартоном, наклеить обои или сделать любой другой косметический ремонт в этой части дома.
Перепланировка и демонтаж несущих стен под проем
Осуществление перепланировки в квартире невозможно произвести без дополнительных работ по демонтажу стен. Демонтаж стен осуществляют за счет резки проемов, поэтому данные работы считаются сложными, где необходимо учитывать свойства и особенности несущих конструкций.
О необходимости согласования создания проемов в стенах несущих знают все, особенно дотошные соседи в доме. Первоначальным этапом расширения или демонтажа проема в несущих стенах является согласование проекта перепланировки
Среди мероприятий по перепланировке необходимо отметить важность основных этапов:
проектирование и согласование
расчет несущих конструкций проема
монтаж металлоконструкций усиления
Данные мероприятия относятся к устройству и демонтажу проемов и межквартирных перегородок. При этом учитываются сведения в жилищной инспекции, подтверждающие информацию, что данные перегородки являются несущими.
Регламентируемые работы по перепланировке исключат возникновение дальнейших проблем, а технологически правильно проведенные работы обезопасят проживающих. Как следует согласовывать создание проемов не только на бумаге?

Для начала определимся с понятием «проем в несущей стене».
Этапы усиления проема в кирпичной стене
Усиление проема в кирпичной стене – важный и ответственный процесс, который требует соблюдения определенных этапов. Ниже представлены основные этапы усиления проема:
1. Планирование и обмеры
Перед началом работы необходимо провести планирование и обмеры проема, чтобы определить размеры и форму будущего усилительного элемента. При этом учитывается не только ширина и высота проема, но и его глубина, чтобы подобрать подходящую длину арматуры.
2. Подготовка инструментов и материалов
Для усиления проема необходимо подготовить инструменты и материалы:
- Ручной или электрический инструмент для резки кирпича
- Шуруповерт или перфоратор для закрепления арматуры
- Специальные крепежные элементы (уголки, анкеры и т.д.)
- Кирпичные блоки или другой материал для создания усилительного элемента
- Арматуру для усиления проема (обычно используется стальной пруток)
- Строительный клей или цемент для закрепления кирпичных блоков
3. Установка усилительного элемента

После подготовки инструментов и материалов производится установка усилительного элемента. Обычно это кирпичный блок, который приклеивается или устанавливается на клей или цемент. При необходимости усилительный элемент может быть дополнительно закреплен с помощью специальных крепежных элементов.
4. Укрепление арматурой
После установки усилительного элемента следует провести укрепление арматурой. Арматура прокладывается вдоль края проема и закрепляется с помощью шуруповерта или перфоратора. Для достижения максимальной прочности рекомендуется использовать несколько слоев арматуры и обязательно прострочить отверстия в кирпиче перед установкой.
5. Закрытие проема
Последний этап – закрытие проема. Для этого используются кирпичные блоки или другой материал, который устанавливается и приклеивается на клей или цемент
Важно обеспечить хорошую фиксацию и продумать места, где будут располагаться двери и окна
После завершения всех этапов усиления проема в кирпичной стене, необходимо дать времени материалам высохнуть и затвердеть, прежде чем продолжить работы по отделке или дополнительной укреплению проема, если это требуется.
Советы по усилению проемов в несущих стенах при недостаточной несущей способности
Достаточно часто возникает надо сделать новый проем в несущей стене или укрепить существующий. При выполнении указанных работ, надо придерживаться разработанных технологий и соблюдать существующие нормы:
- если вы решили сделать проем в несущей стене, то надо придерживаться существующих нормативов, ширина проема в помещении высотой 2,5-3 метра не должна быть больше 2 метров;
- монтаж проема надо выполнять ближе к середине стены, тогда нагрузка будет распределяться равномерно;
- если дом многоэтажный, то на нижних этажах ширина проема не должна быть более 90 см;
- если вы делаете проем в кирпичной стене, то надо предварительно установить опорные контракции;
- делать проем в кирпичной стене лучше не отбойным молотком, а при помощи алмазной резки, в этом случае получается меньше пыли и шума, а сам проем будет более аккуратным;
- при создании проема учитывайте, что он должен быть немного больше ширины самой двери или окна, это необходимо для установки коробки.
- для сокрытия следов усиления можно использовать декоративные панели для имитации кладки
Если вам необходимо укрепить проем в кирпичной стене, то сделать это можно при помощи металлических уголков, двутавров или швеллеров. Эти элементы позволяют равномерно распределить нагрузку и усилить прочность проема.
При использовании швеллера учтите, что у него округлые края, поэтому он будет неплотно прилегать к краям проема. В этом случае, его края надо обтачивать или заливать зазоры специальным раствором.
Какие проблемы решает усиление проема
Усиление проема в кирпичной стене является необходимой процедурой при строительстве или реконструкции зданий. Это позволяет решить несколько проблем, связанных с изменением конструкции стены и улучшением ее прочности.
1. Создание нового проема
При строительстве или реконструкции здания может возникнуть необходимость создать новый проем в кирпичной стене. Например, если требуется прокладывать новые коммуникации или установить дверной или оконный проем. Усиление проема позволяет сохранить прочность стены, предотвратить ее разрушение и обеспечить надежную опору для нового проема.
2. Увеличение размера существующего проема
Иногда может потребоваться увеличить размер уже существующего проема в кирпичной стене. Например, чтобы установить более широкие двери или окна. Усиление проема позволяет расширить размеры без ущерба для прочности стены.
3. Устранение деформаций и повреждений
Кирпичные стены со временем могут подвергаться деформации и повреждениям. Это может быть вызвано землетрясениями, неправильным распределением нагрузки или механическими повреждениями. Усиление проема позволяет восстановить прочность и устранить деформации, воссоздавая связность и целостность стены.
4. Улучшение прочности стены
Усиление проема также позволяет улучшить прочность кирпичной стены в целом
Это особенно важно в зонах с повышенной нагрузкой или в зданиях с несущими стенами. Усиление проема придает стене дополнительную жесткость и стабильность, обеспечивая надежность всей конструкции
5. Возможность установки дополнительных конструкций
Усиление проема может предоставить возможность установки дополнительных конструкций, таких как балконы, навесы или другие элементы экстерьера. Это позволяет визуально обновить и дополнить внешний облик здания, придавая ему эстетичность и функциональность.
6. Защита от воздействия окружающей среды
Усиление проема также может служить защитой от неблагоприятного воздействия окружающей среды, такого как сильные ветры, шум или ультрафиолетовое излучение. Дополнительные конструкции, установленные в процессе усиления, могут предотвращать проникновение этих элементов и обеспечивать комфортное внутреннее пространство.
Ответственность за несогласованные проемы в несущих стенах
Как выполняется расчёт нагрузки
Технически перемычка в верхней части проёма — это обычная балка и расчёт для неё проводится аналогичным образом. Есть два главных требования, которым должна удовлетворять эта деталь:
- Участки стен, на которые перемычка опирается, должны адекватно воспринимать нагрузку.
- Остаточная деформация (прогиб) перемычки под нагрузкой не должна превышать допустимых значений для окон или дверей, установленных в проёме.
Всегда необходимо учитывать и самонесущие свойства стены. Очень часто при возведении каменной кладки проёмные перемычки выполняют свою функцию только первые 2–3 недели после их установки, а затем просто остаются в стенах без всякой надобности. Это относится к тем проёмам, над которыми сохраняется целик кладки, по высоте равный длине пролёта. Здесь перемычка не нужна вовсе — стена сама себя поддержит, при этом чем крупнее используемые для кладки блоки, тем меньшей высоты целик должен оставаться.

В других случаях расчёт перемычки ведётся по приложенной нагрузке, включающей:
- собственный вес перемычки;
- вес стены с учётом самонесущей способности (высоты кладки над проёмом);
- распределение веса стены (для летней кладки учитывается только 1/3 ширины над проёмом, для зимней — вся стена полностью);
- нагрузку, обусловленную опиранием балок или плит перекрытия на данный участок стены.
Также важны линейные размеры перемычки. Её ширина определяется толщиной стены, высота — требуемой несущей способностью. Длина перемычки соответствует ширине проёма плюс удвоенное значение глубины залегания: от 10 см для кирпичных стен и до 30 см для рыхлых пористых блоков.

В большинстве случаев для определения подходящей перемычки достаточно сделать выборку из таблиц со стандартными ЖБИ фабричного производства (серия 1.038 для стандартных и 1.225 для очень широких проёмов). Нужное изделие определяется по ширине проёма с учётом глубины закладки. Если искомая перемычка тоньше стены, таких нужно установить несколько, ну или как минимум две штуки.

Конечно, никто не настаивает на приобретении готовых изделий. Железобетонные перемычки вы вольны отлить самостоятельно, равно как заменить их на деревянные или стальные на своё усмотрение, предварительно выполнив расчёт перемычки на прогиб.

Специфика выполнения проёма в деревянной стене
Для создания дверного прохода в стене из дерева необходима бензопила или её электрический аналог. Также следует приготовить бруски 100*100 мм. Их длина должна равняться высоте помещения.

- В ходе работы есть риск деформации деревянной перегородки. Поэтому и нужны бруски.
- Их устанавливают по обеим сторонам ограждающей конструкции вблизи от прорезей будущего проёма.
- В стойках и стене проделывают отверстия, и при помощи болтов производят усиление.
- Кроме того, правила рекомендуют проверить наличие сверху над дверным проходом цельного элемента.
- Разметку нужно производить следующим образом: в нижней и в верхней части проёма в ходе его создания должно оставаться по одной пятой толщины бревна.

Поскольку распиленный клеёный брус может расслоиться, бруски необходимо прибивать длинными гвоздями вблизи пропила. По завершении резки проём следует усилить с помощью окосячки, а временные бруски убрать.

Чтобы обустроить проход в каркасном здании, вначале стоит удалить облицовку вместе с внутренней теплоизоляцией. После изготовления проёма, по его периметру необходимо организовать каркас из брусьев и возвратить на место снятую обшивку и утеплитель.

Возможные ошибки и сложности в процессе

Это приводит в дальнейшем проблемам с теплоизоляцией и снижением надежности монтажных работ.
Неправильно сделанные просветы потребуется переделать, а это приведет к удорожанию строительных работ. Для того, чтобы этого не произошло, нужно будет выполнить привязку проемов к стенке.
Особенное внимание уделяют верху откосов, она проверяется с учетом проекта чистого пола. Бывает так, что при выполнении проемов не соблюдены необходимые зазоры по бокам коробки 30 мм и снизу 60 мм
Также часто неправильно выполнена форма проема с нарушением диагоналей, когда они не равняются друг другу
Также часто неправильно выполнена форма проема с нарушением диагоналей, когда они не равняются друг другу.
Неправильные расчеты уменьшенного оконного стеклопакета: после монтажа ПВХ-конструкций площадь остекления становится недостаточной и не может обеспечить достаточную естественную освещенность комнаты.
Инъектирование конструктивных элементов
Современным методом усиления стен является инъектирование. Проводится оно следующим образом: в стене пробуриваются отверстия и в ее тело или это может быть выполнено за кирпичную кладку, вводятся цементные эпоксидные или полиуретановые составы.
Раствор попадает в трещину или пустоту, возникшую вследствие разрушения стены, предотвращает их дальнейшее повреждение, укрепляет и обеспечивает полную гидроизоляцию.
При помощи инъектирования стен, можно укрепить кладку, герметизировать появившиеся трещины, защитить стену от негативного действия влаги, провести герметизацию гильз водоводов, в которых размещены коммуникации и т.д.
Возможные сложности и ошибки в процессе
При усилении проема в стенах можно допустить несколько ошибок:
- Неправильный монтаж швеллера. Такое укрепление не всегда полностью прилегает к краям проема. И из-за пустот рама не берет на себя должную нагрузку. Это может вызвать обрушение кирпича или стены в целом.
- Использование некачественного материала. Эта ошибка также может повлечь за собой обрушение стены или образование на ней дефектов. Необходимо изначально закупать качественные материалы, советуясь при этом с консультантами или специалистами. Часто приобретается швеллер или уголки тоньше, чем нужны и из-за этого конструкция может не выдержать нагрузки.
Как согласовать и сделать дверной проем в несущей стене
Затрагивание несущих конструкций здания дело ответственное и небезопасное. В работах по устройству проемов нельзя полагаться на мнение простых строителей, ведущих ремонтные работы, необходимо мнение специализированного инженера – представителя проектной организации, разрабатывавшей проект здания. Данный инженер хорошо знаком с конструктивом здания и может сделать детальный расчет несущей способности как конкретной несущей стены, в которой устраивается проем, так и всего здания. Инженер анализирует возможность устройства проема и его влияние на общее состояние несущих конструкций и, в случае если расчеты подтверждают безопасность устройства проема в несущей стене, инженер разрешает производство работ, фиксируя свои выводы в специальном документе – техническом заключении о состоянии несущих конструкций и возможности производства работ по устройству проема.
На основании выводов инженера, разработавшего техническое заключение, изготавливается полный проект перепланировки, в котором учитываются все рекомендации из технического заключения. Полный комплект документации для согласования перепланировки с устройством проема описаны в пункте 2.5. Приложения №2, 508-ПП, приведем основные: 1. Заявление на согласование перепланировки. Стандартный бланк, с его заполнением вам помогут работники МФЦ. 2. Документ, удостоверяющий личность гражданина. 3. Правоустанавливающие документы на квартиру. Это может быть Выписка из ЕГРН, Свидетельство о праве собственности, Договор купли-продажи, Договор ДДУ и Акт приема помещения. 4. Учетно-техническая документация на квартиру. Под учетно-технической документацией подразумеваются либо Технический паспорт квартиры оформленный ГБУ «МосгорБТИ», либо поэтажный план и экспликация. 5. Техническое заключение, оформленное автором проекта здания, либо отобранной Мосжилинспекцией организацией, для производства данных работ (п. 1.4.7. Приложения №3, 508-ПП). С августа 2020 г, в случае отсутствия сведений об авторе проекта здания, отобранной организацией является Государственное бюджетное учреждение города Москвы «Экспертный центр». 6. Проект перепланировки и переустройства квартиры, оформленный организацией – членом проектного СРО. Требования к составу проекта перепланировки описаны в п.п. 1.1.-1.4.6. Приложения №3 508-ПП. При условии правильной подготовки проектной документации, срок получения разрешения от надзорного органа – Мосжилинспекции составит порядка месяца.
Как делать проем в несущей стене
Проектная документация содержит подробное описание технологии проведения пробивки проема в несущих стенах:
- Даются рекомендации по организации и проведению работ по пробивке самого проема.
- Технологическая последовательность проведения работ. В многоэтажном жилом доме ограничено применение ударных инструментов типа перфоратор или отбойный молоток, поэтому самым быстрым и наименее безопасным видом работ считается лазерная прорезка несущих конструкций.
- После прорезки проема, а иногда одновременно, производится усиление стены металлическими конструкциями или обоймами.
Это общие рекомендации своеобразный алгоритм как сделать проем в несущей стене.
Как вырезать в панельном доме
Поэтому в обязательном порядке проводятся технические мероприятия, направленные на компенсацию потерянной несущей способности. Для этого в конструкцию включаются дополнительные разгружающие или закрепляющие металлические элементы:
- Сварные рамы из стального проката, закрепляемые с помощью металлических шпилек из арматурной стали.
- Рама коробчатого типа, состоящая из швеллеров, сваренных между собою и обрамляющую вновь образованный проем.
- Для больших проемов стальные обоймы и металлические связи.
Во всех случаях важно помнить, что для правильного распределения нагрузки на плиту перекрытия в области пола, необходимо к опорной раме или швеллерам приварить прямоугольные или квадратные металлические пластины из листового металла
Дверной проем в несущей стене кирпичного дома
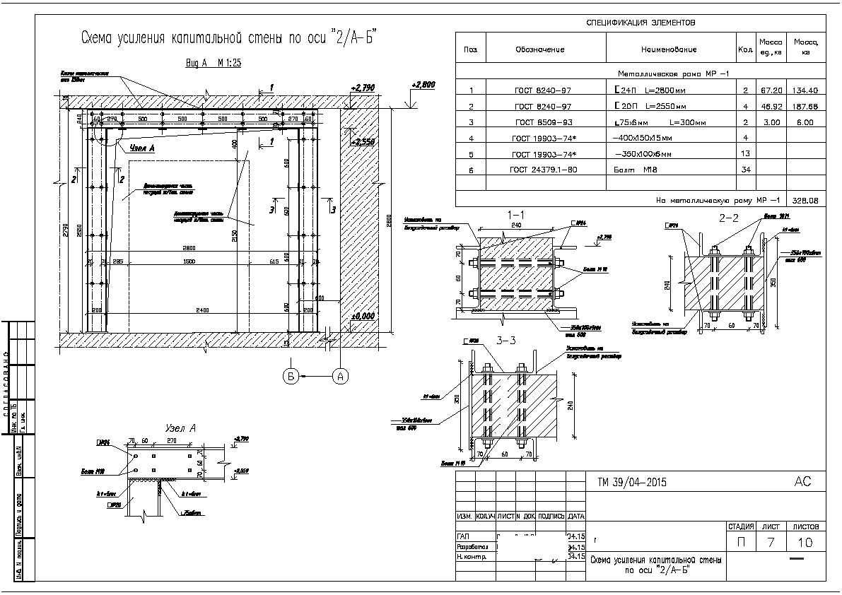
К устройству проема в кирпичных несущих стеновых конструкциях предъявляются не такие строгие требования, как к панельным домам. Для восприятия нагрузочных усилий верхних этажей или плит перекрытий используется сборная металлическая перемычка, состоящая из двух металлических швеллеров, стянутых между собой шпильками с гайками.
- На нужной высоте будущего проема вырезается штроба, равная длине металлической перемычки. Минимальная длина опирания перемычки на стену не менее 150–200 мм. Этот показатель в обязательном порядке учитывают при подготовке элемента опирания.
- Сечение и размер швеллеров определяется путем расчета. Для этих целей используется стальной прокат № 10,16 и реже 18.
- После установки швеллера в борозду кирпичной стены с одной стороны заполняют образовавшиеся пустоты цементно-песчаным раствором. После полного высыхания, приступают к пробивке борозды с другой стороны и установке второго швеллера.
- Установленные швеллеры стягиваются между собой шпильками с гайками.
В целях защиты металлических конструкций перемычки от коррозии рекомендуется стальную поверхность окрасить грунтовкой и краской по металлу.
Как сделать в бетонной стене частного дома
С развитием технологий монолитного строительства бетонную смесь часто используют для строительства частных домов и дачных построек. Иногда возникают ситуации, когда нужен проем в несущей стене частного дома.Для реорганизации домового пространства или для организации нового входа в пристроенную часть дома. В частном доме пробивка проема в бетонных несущих стенах выполняется как и многоэтажном доме. Единственное отличие заключается в том, что несущие стены не испытывают такие нагрузки как многоэтажных строениях. Поэтому для усиления бетонных стен, которые частично потеряли часть прочности, после пробивки в них проемов, используют металлопрокат небольшого сечения.
Например, для устройства арочного проема в теле несущей бетонной стены используют швеллер № 10 или уголок 100. На этом конструктивные различия заканчиваются. Металлопрокат соединяют между собой шпильками или арматурными стержнями.
Как сделать в монолитном доме
- Чтобы не повредить дорогостоящие режущие диски с алмазным напылением, рекомендуется определить месторасположение арматурной сетки «спрятанной» в теле бетонной стены. Для этого используют металлодетектор и места расположения арматуры отмечают маркером.
- Просверливают сквозные отверстия на расстоянии 200-300мм от намеченной маркером линии расположения арматуры.
- С помощью дисковой пилы «болгарки» прорезают в верхней части проема часть бетона, расположенного между просверленными отверстиями.
- На следующем этапе используют перфоратор или отбойный молоток и выбивают верхнюю часть проема.
- Видимую часть арматуры срезают и переходят к следующему участку.
После пробивки проема, бетонную стену укрепляют цельносваренной или сборной металлической рамой, устанавливаемой непосредственно в новый проем.
Польза и необходимость усиления проема

Усиление проема в кирпичной стене является неотъемлемой частью многих строительных и реконструкционных работ. Это процесс, который позволяет увеличить прочность и надежность конструкции, а также обеспечить безопасность при эксплуатации здания.
Причины усиления проема
- Изменение функционального назначения помещения: при перепланировке дома или квартиры часто требуется увеличение проема между комнатами.
- Установка двери или окна: иногда необходимо создать дополнительные проемы для установки дверей, окон или других элементов.
- Изменение архитектурного стиля: при реконструкции здания может возникнуть необходимость изменить размеры или форму проема для создания нового внешнего вида.
- Устранение дефектов: усиление проема может быть необходимо для исправления конструктивных недостатков или устранения повреждений, таких как трещины или неустойчивость стены.
Методы усиления проема
Существует несколько методов усиления проема в кирпичной стене:
- Монтаж металлического или деревянного каркаса. Каркас позволяет увеличить прочность и надежность проема, а также устранить возможную неустойчивость стены.
- Использование стальных или углепластиковых арматурных стержней. Армирование повышает прочность и устойчивость кирпичной стены, предотвращает образование трещин.
- Применение специальных армированных бетонных или растворных свай. Свайные конструкции обеспечивают дополнительную поддержку стены и увеличивают ее прочность.
Преимущества усиления проема
- Обеспечение безопасности: усиление проема позволяет предотвратить аварийные ситуации, связанные с обрушением или повреждением стены.
- Улучшение внешнего вида: изменение размеров или формы проема позволяет создать новый архитектурный образ, придать зданию современный или классический вид.
- Увеличение функциональности: усиление проема позволяет объединять комнаты, устанавливать дополнительные двери и окна, что увеличивает удобство и комфорт проживания или работы.
- Повышение прочности и надежности: усиление проема увеличивает стойкость стены к воздействию внешних нагрузок, снижает вероятность возникновения повреждений и непредвиденных ситуаций.
Заключение
Усиление проема в кирпичной стене является важной составляющей строительных и реконструкционных работ. Этот процесс позволяет улучшить прочность и надежность здания, обеспечить безопасность и создать новый архитектурный образ
Выбор метода усиления проема будет зависеть от конкретных условий и требований проекта.
Устройство несущей кирпичной и бетонной стены
Укрепление швеллерным профилем
В работе по усилению оконного или дверного проема в кирпичной стене используют:
- штроборез (инструмент в данных обстоятельствах очень полезный, но дорогой, однако его можно заменить перфоратором или угловой шлифмашинкой с алмазным кругом диаметром не менее 200 мм);
- перфоратор;
- сварочный аппарат;
- шпильки с гайками и широкими шайбами;
- гаечные ключи или гайковерт;
- разметочные приспособления.
Варианты укрепления проемов швеллерами.
На стену наносят контур будущего проема. Линия его верхней перекладины должна совпадать со швом кладки. В углах контура нужно высверлить сквозные отверстия, чтобы сделать точную разметку с другой стороны перегородки.
Для швеллеров в стене необходимо вырезать штробы, глубиной и высотой соответствующие размерам профилей. Длина стальной перекладины должна превышать ширину проема на 1 м, поэтому ниши для нее должны выступать за его края на 0,5 м.
Сначала делают паз с одной стороны перегородки. В него вставляют швеллер с просверленными под шпильки отверстиями. Он должен плотно сесть в подготовленную для него полость. Дополнительно швеллер фиксируют в ней песчано-цементным раствором. После застывания смеси стену нужно просверлить насквозь через отверстия профиля.
Теперь выбивают штробу с обратной стороны. В нее вставляют второй швеллер с отверстиями, высверленными симметрично отверстиям первого. Профили соединяют шпильками. Гайки накручивают поверх насаженных на крепеж шайб. Вторая перекладина также фиксируется в вырубленной нише раствором.
После разборки под перекладиной 2-3 рядов кирпичной кладки между швеллерами нужно приварить стальные пластины. Перемычка, выдерживающая давление расположенных над ней конструкций, готова. Можно продолжать разбирать кладку.
Установка вертикальных опор
Дверные и широкие оконные проемы в несущих стенах нуждаются в дополнительном укреплении вертикальными стойками, которые воспримут на себя часть нагрузки строения.
Схема перемычки с вертикальными стойками.
Установка вертикальных профилей обязательна, если ширина проема превышает 1,5 м. В несущих кирпичных стенах стойками служат пары швеллеров, связанных между собой резьбовым крепежом и стальными пластинами. Стойки приваривают к швеллерам горизонтальной перемычки.
Способ установки вертикальных швеллеров может быть таким же, как и при закладке горизонтальной перекладины. Уже после их закрепления приступают к разборке кирпичной кладки в размеченном периметре.
Крепление рамы можно осуществить иначе. Опоры монтируют после вырубания отверстия в стене. Пары швеллеров, установив у вертикальных частей проема, связывают между собой стальными полосами. После монтажа стоек в пустоты между ними закладывают раствор. Если проем будет усиливаться таким способом, то при расчете его ширины следует учитывать размеры вертикальных опор. Еще прочнее стальная рама будет, если ее сделать замкнутой. В этом случае между опорами в их нижней части приваривают перемычку.
Внешняя отделка
После окончания работ по формированию проема в кирпичной несущей стене необходимо все декоративно отделать (рис.7). Что для этого нужно? Прежде всего, необходимо определиться с выбором отделочного материала. Будет это дерево, пластик или декоративный камень — решать вам. Дальше необходимо немного проявить фантазию и создать декорирующие элементы в образованном пространстве кирпичной стены.
Рис. 7
Для самостоятельной облицовки следует иметь базовые знания в сфере отделочных работ, а также необходимо наличие специального инструмента.
Если необходимо оформить пространство под дверь без ее наличия, тогда стоит использовать доборные доски. Это придаст элегантности вашему новому оформлению комнаты и добавит интерьеру изысканности. Такую облицовку создать можно самостоятельно.
Красиво выглядит проем, выполненный в виде арки. Как правило, арки бывают круглых или стрельчатых форм. Чтобы определиться с формой арки клиенту, ознакомьтесь с дизайнерскими каталогами. Самым распространенным на сегодняшний день является византийский и греческий стиль. В некоторых случаях арку можно сделать с подсветкой.





























