Теплица из металла – что важно для проектирования
Прежде чем приступить к практическому строительству, необходимо знать, что теплица из металла своими руками может быть построена из нескольких видом металлопрофиля:
- Круглая металлическая труба диаметром 20-25 мм, для вертикальных стоек каркаса иногда используют профиль диаметром 50 мм, соединяются элементы обычно сваркой через уголки для усиленных конструкций.
- Профильная квадратная, прямоугольная труба из металла, с ребром 20*20, 20*40, 20*60 мм, толщина стенок 1,5-2 мм, для больших конструкций 3 мм.
- Алюминиевый профиль – легкий, удобный в монтаже, для строительства лучше использовать анодированные хлысты, соединения выполняются на специальные болты. Хотя стоимость изделия высока, среди огородников востребованы теплицы из алюминиевого профиля и стекла, особенно, если бока выполнены из раздвижных систем, такой конструктив помогает организовать правильное проветривание.
- В последнее время набирает популярность теплица из профиля для гипсокартона, хлысты недорогие, легко режутся ножницами по металлу, собираются на специальные крепления и саморезы. При грамотном проектировании и соблюдении норм монтажа, сооружения получаются прочные, надежные и очень практичные.
На фото теплица из алюминиевого профиля под стекло, делая проект, не забудьте учесть габариты стеклянного листа
Использование специальных соединений для крепления металлических элементов фактически позволяет соорудить разборный каркас теплицы из профиля своими руками. Такую конструкцию легко можно демонтировать, перенести на другое место и собрать заново.
На видео ниже, подробное видео, как сделать сварную металлическую теплицу, от чертежа до практического воплощения.
[su_youtube url=»https://www.youtube.com/watch?v=6OhCdbqhksU»]
Конструктив
Теплица своими руками из профиля построенная может быть отдельно стоящая либо выполненная пристройкой к дому, бане, гаражу. Самостоятельные строения из алюминия и металлического профиля под гипсокартон обычно прямоугольные по основанию, под двускатной крышей. Пристенные конструкции – под односкатной. Кровлю домиком легко собрать из прямого профиля, не требуется никаких специальных приспособлений. Металлоконструкции из круглой и профильной трубы часто делают под арочной крышей.
Металлическая теплица под стекло с открывающейся крышей
Как согнуть металлический профиль для теплицы
Чтобы загнуть профиль нужно профоборудование – трубогиб, приспособление можно сделать самостоятельно, а также в строительных магазинах есть услуга по изготовлению металлических дуг стандартного диаметра. Можно изготовить дуги для теплицы своими руками из профиля для гипсокартона, порезав бортики ножницами. Таким же способом можно сделать арку из профтрубы, надрезав с одной стороны на 2/3 ширины профиля болгаркой, согнуть по шаблону и сварить швы.
Посмотрите видео-инструкцию, как своими руками сделать трубогиб, и как согнуть профиль для теплицы.
[su_youtube url=»https://www.youtube.com/watch?v=uLPqia3Asv0″]
Размеры
Размеры теплицы из металлического профиля зависят только от ваших амбиций и величины участка, но при составлении чертежа, важно учитывать габариты укрывного материала. Самый востребованный – поликарбонат, его ширина 2,0 м, длина 6,0 м, поэтому стоевые и поперечники следует размещать так, чтобы края листов попадали в середину профиля
Для домашнего пользования целесообразно делать теплицы из металлопрофиля размером 6 на 3 м, минимум на 2,8 м, если теплица арочная, при радиусе 1,9 м, аккурат по дуге кладется 6 м лист поликарбоната. Кроме того, металлические трубы и профиль можно купить длиной 3 и 6 м, что получается очень экономично, практически нет отходов. При такой ширине внутри можно организовать грядки по 1,0 м, останется место для удобной дорожки.
Проект арочной конструкции для самостоятельного строительства
Оптимальная высота для арочной теплицы из металлопрофиля – 1,9 м, чтобы увеличить высоту, конструкцию можно установить на фундамент с высоким цоколем. В теплицах с крышами домиком рекомендуется делать прямые стены высотой 1,8-2,1 м до нижнего края ската. От горизонтали по верхним оголовкам до самой высокой точки (конька) еще +0,5-1,2 м. Данное расстояние регламентирует крутизну укоса ската, которая зависит от ветровой и снеговой нагрузок в регионе. Для разных местностей этот показатель 15-45о.
Односкатное сооружение – идеально для пристройки к дому
Теплица из легкого профиля
Фундамент у этой конструкции отсутствует. В роли основания выступает тонкопрофильная обвязка. Чертежи таких сооружений составляются по принципу конструктора. Главный недостаток – каркас будет довольно тонким, иметь малую массу, и может легко деформироваться. Поэтому, стойки нужно располагать с шагом около 50-и см. Соединительные элементы – крестовины и тройники.

Форма теплицы из маловесного профиля может быть любой. Можно собрать конструкцию как с односкатной, так и двухскатной крышей. Чтобы теплица была более жесткой, профиль стоит выбирать алюминиевый, и дополнительно сооружать фундамент из бетона, или кирпича.
Преимущества и особенности конструкции
Двухскатные теплицы хорошо показали себя в разных климатических условиях. По целому ряду причин они хороши для выращивания самых разных сельскохозяйственных и декоративных культур в умеренном климате.
- Устойчивы против ветра и осадков.
- Достаточная высота для обслуживания и выращивания высокорослых культур, зелени и цветов в несколько ярусов.
- Пространство внутри лишено неудобных и непригодных для размещения растений участков.
- При той же занимаемой площади объём внутри больше, чем у конструкций другой формы – большее количество воздуха обеспечивает хороший микроклимат, равномерное изменение температуры и влажности.
- Хорошо прогревается и освещается, при достаточной теплоизоляции может использоваться в течение всего года.
- Легко рассчитать и спроектировать с минимальным количеством обрезков материала для каркаса и покрытия.
- Для сборки не нужно редкого оборудования – трубогибочного станка. Даже без сварочного аппарата можно обойтись.
Главная особенность двухскатной теплицы – возможность изменить высоту конька. Обычно наклон крыши около 30-40 градусов. Если зимы снежные и очищать крышу нет возможности – её лучше сделать более крутой, чтобы снег не накапливался, а сползал под собственным весом. При более тёплом климате и малоснежных зимах в крыше удобно устанавливать вентиляционные форточки.
Покрытием теплицы в виде домика может быть:
- стекло или готовые металлопластиковые конструкции со стеклопакетами;
- полиэтиленовая плёнка – для временных сезонных конструкций и лёгких парников;
- ПВХ-плёнка – более прочная и современная;
- наиболее популярный вариант покрытия – поликарбонат – благодаря отличным светопропускающим и теплоизолирующим характеристикам при умеренной цене.
Учитываем особенности материалов
Виды конструкций теплиц из профильной трубы
Профиль позволяет создать каркас теплицы любой существующей формы. Однако из-за сложности изгиба чаще всего практикуют возведение конструкций с ровными плоскостями. Популярными считаются теплицы в виде домика или пристройки к зданию. Если создание дуг не является для хозяина трудностью, то можно возвести арочный парник.
Арочная теплица из профилированной трубы
Преимуществом парника с арочной крышей является хорошая обтекаемость. Осадки не задерживаются на полукруглых скатах, снижается парусность. Теплицы чаще используют для культивации низкорослых культур. Закругленные элементы крыши крадут свободное пространство, не позволяют близко к стенам теплицы высаживать высокорослые растения.
Двускатная теплица из профилированной трубы
Парник в форме домика с двускатной крышей считается лучшим вариантом. Во-первых, профильные заготовки не придется гнуть. Во-вторых, внутри теплицы образуется максимум свободного пространства. Можно выращивать растения любой высоты, ставить стеллажи, создавать яруса, обустраивать вертикальные грядки.
Односкатная теплица из профилированной трубы
В общих чертах конструкция является половинкой домика с двускатной крышей. Теплицу пристраивают к стене здания с южной стороны. Крышу делают с одним скатом. Дополнительным преимуществом является получение тепла от стены отапливаемого здания. Растения часто не нуждаются в организации обогрева. Однако от сырости фасад быстрее пропадает. На стене появляется грибок.
Как сделать парник из дуг своими руками – фото вариантов
Если не получается приобрести готовую конструкцию, можно изготовить укрытие для грядок на дугах своими руками. Существуют различные схемы реализации подобной идеи. Предлагаем посмотреть фото конструкций, которые просто собрать и которые не требуют значительных финансовых вложений.






Также стоит заранее решить, из чего сделать дуги для парника, чтобы они отвечали предъявляемым требованиям.
Статья по теме:
Как рассчитать размер опор и определить расстояние между дугами в парнике
Расчёт геометрических параметров дуг выполняют с учётом линейных размеров грядки. Ширина между нижними точками опорных элементов должна на 0,3 м превосходить соответствующий параметр грядки. Длина дуги p связана функциональной зависимостью с хордой l, соединяющей точку пересечения парника и земли с верхней точкой опорного элемента, и шириной L, численно равной расстоянию между нижними точками опорных элементов. Найти искомое значение можно по формуле Гюйгенса: p ≈ 2l+1/3 (2l−L).
Для расчёта надо определиться с шириной и высотой парника
Расстояние между дугами в парнике выбирается с учётом оптимального распределения нагрузки и предотвращения провисания укрывного материала. Обычно оно составляет 50−75 см. При превышении максимального значения существует вероятность провисания укрывного материала.
Расстояние между опорами должно быть оптимальным
Как выполнить основание под парник
Парник из дуг не обладает достаточной жёсткостью. Под воздействием внешних факторов опоры могут смещаться, что негативно отразится на эксплуатационных характеристиках. Предусмотрев основание, можно кардинально исправить ситуацию. Чаще всего его изготавливают из бруса. Для этого сбивают коробку из досок или бруса, размеры которой будут совпадать с габаритами грядки.
Деревянный каркас – хорошее основание для парника
Вместо деревянного каркаса, могут использоваться металлические пруты. В этом случае следует предусмотреть способ фиксации опор в нужном положении.
Для основания из прутов потребуется дополнительная фиксация
Как укрепить и установить дуги для парника
Разбираться с тем, как установить дуги для парника, следует до подготовки основания. Опоры арочных конструкций могут находиться как с внутренней, так и с внешней стороны деревянного корпуса. Их дополнительно следует зафиксировать при помощи продольной планки.
Возможны различные варианты фиксации дуг
Дуги следует располагать через равное расстояние.
Шаг между опорами должен быть одинаковым
Как закрепить укрывной материал на дугах парника
Немногие знают, как закрепить укрывной материал на дугах парника, чтобы было проще проветривать конструкцию в процессе эксплуатации. Если просто накинуть плёнку или спанбонд на каркас, можно столкнуться с ситуацией, когда из-за сильного ветра укрытие не сможет выполнять свою функцию.
Определяясь с тем, как закрепить плёнку на дугах парника, следует её правильно натянуть. При использовании двух кусков надо предусмотреть нахлёст для предотвращения попадания внутрь влаги. С торцевых сторон следует оставить достаточное количество укрывного материала для хорошей теплоизоляции нижней части. На дугах спанбонд можно зафиксировать при помощи специальных клипс либо других приспособлений. Вдоль боковых сторон плёнку следует присыпать землёй.
Укрывной материал может фиксироваться клипсами и землёй
Бизнес по производству теплиц
Если вы собираетесь наладить собственное производство теплиц, то для этого вам понадобиться заводское оборудование, которое стоит более 200 000 рублей.
Оборудование для производства тепличного профиля стоит около 700 000 рублей. Благодаря данному станку вы сможете изготавливать стальные профиля. Такой станок оборудован автоматическим управлением, что значительно облегчает работу с ним.
Расходы на изготовление одной единицы продукции будут составлять около 25 000 рублей. При использовании готовых элементов конструкции, без использования собственного оборудования, себестоимость будет около 60 000 рублей. Для организации полноценного производства необходимо иметь на руках около 1 млн рублей. Из которых 700 000 – это оборудование, а 300 000 – закупка необходимых материалов. Вернуть вложения при успешных продажах можно уже через год.
Большая теплица своими руками. Устройство зимних теплиц
Теплицы бывают разными: сезонными или капитальными, большими или маленькими, заводского производства или же самодельные. Но цель у них одна — получить экологически чистый урожай как можно раньше и как можно большего размера.
В настоящее время существует большой выбор теплиц самой разной конструкции . Новичку очень трудно понять, что выбрать и с чего вообще начинать строительство. Как рассчитать площадь теплицы для получения планируемого урожая, нужен ли фундамент и какой, как провести отопление, какой крыше отдать предпочтение и многое другое. Поэтому начнём с азов.
Виды тепличных конструкций
Зимние теплицы отличаются от сезонных по многим показателям.
- По функциональности. Предпочтение той или иной модификации можно отдать в зависимости от того, что в ней собираются выращивать — грибы, цветы, зелень, виноград или экзотические фрукты.
- По расположению. Теплицы могут сооружаться на поверхности отведённого участка, углубляться в грунт или же возводиться сверху на имеющейся дворовой постройке (гараже, бане, сарае).
Теплица может располагаться не только на земле, но и на крыше какого-либо строения, например, гаража
- По виду отопления. Растения можно обогревать водой, дровами, электричеством или биотопливом.
Но особенно велико разнообразие зимних оранжерей по архитектурному решению.
- Пристенные. Хороши для небольшого зимнего сада или огорода. Наличие общей с домом стены позволяет удешевить строительство.
- Арочные. Традиционные размеры таких конструкций 2 х 4 х 3 м. В них комфортно себя чувствуют низкорослые культуры, зелень и овощи. Для выращивания вьющихся и высоких растений арочные теплицы не подходят.
- Односкатные, двухскатные, трёхскатные.
- Фермерские. Это многофункциональные устройства, рассчитанные на круглогодичную эксплуатацию практически во всех климатических зонах. Они отличаются большой площадью, иногда это целые мини-плантации, позволяющие выращивать большой объём продукции (причём не только в грунте, но и методом гидропоники).
Фотогалерея: виды зимних теплиц
- Пристенные теплицы отличаются небольшими размерами и экономичностью при возведении
- В арочных капитальных теплицах удобно выращивать низкорослые культуры
- Фермерские теплицы применяются во всех регионах и рассчитаны на получение большого урожая
- Двускатная крыша в форме капли выдерживает большую нагрузку и хорошо отводит снег зимой
Но какой бы ни была конфигурация, следует помнить, что зимняя теплица — добротное сооружение с отоплением и освещением. И прямо скажем, возведение её — удовольствие не из дешёвых. С другой стороны, затратив один раз финансы и усилия, вы будете долгие годы наслаждаться качественными продуктами в течение всего года. И результат вашего труда уже будет зависеть не от капризов погоды или от почвы, а только от вашего старания и умения.
Постройка теплицы – каркас
Для достижения отличных показателей прочности и надежности теплицы, а также для привлекательного внешнего вида используйте готовые фабричные комплекты алюминиевого профиля. Сэкономить средства можно на сборке, произведя ее самостоятельно и не привлекая стороннюю рабочую силу. В этом вам поможет инструкция, приведенная нише – используйте ее для получения общих сведений о процессе.
Шаг 1. Распакуйте детали каркаса, проверьте комплектность профилей и крепежей – все ли на месте, ничего не поломано?
Распаковка деталей каркаса
Шаг 2. С помощью прилагаемой инструкции выберите детали и крепежи для одного из торцов, выложите их на земле и сложите, пока что без сборки. Можно заметить, что основные профили, играющие роль угловых стоек, отличаются большим сечением и, следовательно, высокой прочностью. Кроме того, торец теплицы укреплен диагональными балками.
Элементы торца выложены на земле
Шаг 3. Зафиксируйте угловые и промежуточные вертикальные стойки на нижней балке каркаса теплицы. Для крепежа используйте болты и гайки, приложенные к комплекту, но пока не закручивайте их.
Крепление стойки к нижней балке каркаса
Шаг 4. Дополните нижнюю горизонтальную балку и вертикальные стойки укосинами. Теперь крепеж можно заворачивать и фиксировать. Ускорьте процесс с помощью шуруповерта и специальной насадки.
Крепление укосины к нижней горизонтальной балке
Шаг 5. По схожему принципу соберите верхнюю часть торца – к горизонтальной балке должны примыкать вертикальные стойки и укосины на левом и правом краях конструкции. Кроме того, к ним присоедините стропила. Для их фиксации на вертикальных профилях есть соответствующая пластина.
Крепление укосины и стойки к верхней горизонтальной балке
Шаг 6. Между собой стропила фиксируются пластиной с множеством отверстий для крепежа – таким образом, получается надежное соединение, способное выдерживать как вес обшивки теплицы, так и значительную снеговую нагрузку.
Соединение стропил торца теплицы
Торец теплицы из стекла и алюминия в сборе
Шаг 7. Повторите предыдущие операции с противоположным торцом теплицы. Затем установите торцы на фундамент при помощи анкерных болтов, или, как минимум, зафиксировав на цоколе дюбелями.
Шаг 8. Выберите детали для длинной стенки теплицы, разложите их в нужном порядке согласно инструкции, но пока без сборки.
Элементы длинной стенки теплицы разложены на земле
Шаг 9. К нижней балке прикрепите первую левую и правую промежуточные стойки, а также диагональные укосины. Затем соедините их с верхней балкой.
Крепление стойки и укосины к нижней балке
Шаг 10. Последовательно повторяйте предыдущий шаг для монтажа остальных промежуточных стоек из профиля. Следите за надежностью крепежей и соответствию инструкции — с прикрученными неправильно деталями остекление невозможно.
Монтаж остальных промежуточных стоек
Шаг 11. Установите готовые стенки на цоколь, зафиксируйте их тем же образом, что и торцы. Соедините данные части каркаса друг с другом, контролируйте все при помощи уровня и рулетки.
Готовые стенки теплицы с торцевыми элементами крыши
Шаг 12. Приступите к монтажу элементов крыши. Сначала к торцевым стропилам монтируйте коньковый профиль.
Шаг 13. Затем установите промежуточные стропила. При этом следите за правильностью крепежей и расположением пазов для стеклянной обшивки теплицы.
Монтаж промежуточных стропил
Пример крепления
Шаг 14. Дополните стропила крыши поперечными стяжками – они усилят данную часть каркаса и увеличат сопротивляемость теплицы снеговым нагрузкам.
Установка поперечных стяжек
Сборку каркаса теплицы из алюминиевого профиля можно считать законченной. Впереди заключительный этап строительства — остекление.
Как согнуть профильные трубы для арочной теплицы
У профиля имеется один недостаток. Трубу сложно согнуть дугой для арочной теплицы. Ребра жесткости препятствуют равномерному изгибу. Красиво получится самому профильную трубу согнуть для теплицы трубогибом, но покупать дорогостоящий станок на один день работы нет смысла. Готовые профильные арки лучше заказать в цеху. Если такой возможности нет, трубу пытаются согнуть, прибегая к народным хитростям.
С помощью песка
Метод изгиба профиля считается простой и эффективный. Для начала подготавливают песок. Его просеивают от крупных камней, расстилают на солнце просушиваться. Если погода пасмурная, песок расстилают тонким слоем на жести. Под листовым металлом разводят костер. После прокаливания песку дают время остыть.
В торцы профиля вырезают деревянные заглушки. Они должны плотно входить забиванием молотка. Одну заглушку ставят сразу. Внутрь трубы засыпают сухой песок. Второй конец профильного элемента аналогично закрывают заглушкой. Трубу заводят между прочными опорами, пытаются плавными нажатиями сгибать. Песок внутри профиля создаст давление, препятствующее деформации квадратных стенок. Когда профильная арка будет готова, заглушки удаляют. Из заготовки высыпают песок.
С помощью воды (зимний способ)
Народный метод имеет много недостатков. Во-первых, воспользоваться можно только зимой, когда на улице стоит сильный мороз. Во-вторых, при нарушении технологии замерзшая вода способна во время расширения разорвать стенки профиля.
Чтобы согнуть профильную заготовку, аналогично понадобятся заглушки. Пробки делают настолько плотные, чтобы они препятствовали вытеканию воды. Заглушку вбивают молотком с одного конца профиля. Внутрь трубы заливают воду, закрывают второй пробкой. Профильную заготовку оставляют на морозе. Когда вода превратится в лед, начинают изгибать металлический элемент. Результат получается аналогично песку.
Читайте так же: Что делать если прорвало трубу с горячей водой в квартире
Когда профильная арка будет готова, заглушки удаляют. Профиль прогревают над костром до полного растапливания льда.
Надрезы болгаркой
Способ изгиба с надрезами считается самый сложный, но гарантирует 100% положительный результат. Профиль зажимают в тисках. Наносят разметку в виде клиньев на одинаковом расстоянии. По разметке делают надрезы болгаркой, но не сквозные. Вырезают только клинья. Противоположная полка профиля остается нетронутая. После разрезки трубу изгибают дугой. Если радиус получился большой, вырезают еще несколько клиньев. Процедуру продолжают до достижения изгиба арки нужного радиуса. Места разрезов сваривают.
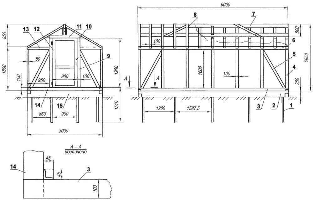
Проектирование теплицы из профиля
Выбрав форму будущего парника, нужно взять несколько листков бумаги (желательно миллиметровки или в клетку), карандаш, ластик и приступить к составлению чертежа постройки. При наличии навыков работы с компьютером, чертеж можно составлять в программах для 3D-моделирования и проектирования. Из них самая простая в освоении — Google SketcUp.

Проектирование теплицы с помощью Google SketchUp
Для начала необходимо выбрать размеры постройки. При этом исходите из габаритов стандартного листа сотового поликарбоната – 6 на 2,1 м. Учитывайте также способ соединения отдельных элементов обшивки друг с другом – при помощи соединительных профилей или внахлест. Чаще всего дачники выбирают ширину теплицы, равную 2-3 м. Длина же может составлять 4, 6, 8 и 10 м, с некоторыми поправками на стандартные размеры листа СПК. Высота арочной теплицы редко делается больше 2,1 м, для двухскатной же конструкции особых ограничений нет, главное — соблюдать угол наклона 25-30° для скатов.

Пример чертежа теплицы из профиля
Не забудьте также о дверном проеме, продумайте, какие его размеры будут удобны для вас
Уделите внимание расположению форточек и фрамуг, особенно в теплицах большой площади, так как растения в них будут особенно нуждаться в вентиляции
Заключительный этап проектирования – продумывание и прорисовка на чертеже соединений профиля в единый каркас. Не забудьте подсчитать количество нужного материала и крепежей для последующей закупки с учетом запаса в 10-15%.
Выбор места, размеров, планировка парника
Перед началом строительства важно выбрать идеальное место, которое в будущем избавит от многих проблем. Ищите как можно более ровное место, чтобы перепады высоты грунта были минимальными
Лучше также немного отступить от всех уже имеющихся построек на участке
Лучше также немного отступить от всех уже имеющихся построек на участке.
Конечно, если вы не собираетесь строить парник, который должен иметь общую сторону с домом
Обратите внимание и на то, чтобы на место будущего парника падало как можно больше света от солнца
В будущем это положительно скажется на урожае.
Чертежи: как сделать самому, готовые примеры
Лучше выбирать готовые чертежи, так как там уже используется готовая, продуманная конструкция, которую, скорее всего, кто-то уже испытал.
Самостоятельно нужно рассчитывать нагрузку на стенки и крышу и заранее закладывать в чертеж профиль для усиления.
Вот несколько хороших готовых примеров.




Подбор и подготовка материалов, оборудования
Перед началом монтажа нужно собрать все материалы и инструменты, которые будут нужны. Вот минимальный нужный набор:
- Ножницы по металлу;
- Карандаш;
- Рулетка;
- Шуруповерт;
- Опалубка;
- Песок;
- Брус.
Как подготовить фундамент
По периметру будущей теплицы прокапывается траншея, на ее дно нужно разместить песок.
Далее устанавливается опалубка, которая заливается цементным раствором. Обязательно помните о том, что фундаменту нужно застыть. На это уходит около 20 дней.
Монтаж каркаса и способы крепления
Каркас монтировать нужно строго согласно чертежу. Как правило, снизу устанавливается направляющий профиль, к которому будет крепиться остальной каркас.
Если нужно изогнуть какой-то элемент, то его боковые части прорезаются ножницами по металлу. Сам же элемент после этого легко гнется.
Между собой часки каркаса скрепляются с помощью саморезов, получается достаточно надежное соединение.
Обшивка: какой выбрать укрывной материал
Подобные конструкции выгоднее и удобнее всего обшивать с помощью поликарбоната. Этот материал достаточно держит тепло, а также прочен и устойчив к внешним факторам.
Если использовать поликарбонат, то получится надежный парник, который запросто простоит долгое время.




Усовершенствование конструкции, отопление, автоматизация
Совершенствовать теплицы можно практически бесконечно. Начать можно с установки форточек или удобной двери.
Для теплицы из профилей хорошим вариантом отопления будет установки тепловой пушки. Этот вариант очень актуален из-за того, что не нужно топить большую площадь.
Прикрепление сотового поликарбоната к каркасу из профильных труб
Удаляют защитную пленку с поликарбоната. Заранее подготавливают болты размерами 6х50 мм и гайками 21 и 23. Накладывают поликарбонат на каркас таким образом, чтобы за края торцевой арки выходило более 40 мм покрытия. Перекидывают через теплицу длинную часть стяжной ленты
Необходимо соблюдать осторожность во время работ, во избежание травм используйте перчатки. Ленту выравнивают относительно центра профильной дуги. Соединяют длинную и короткую части ленты стяжным болтом и гайкой
Соединяют длинную и короткую части ленты стяжным болтом и гайкой.
Схема крепления поликарбоната сотового.
Аналогичную операцию проделывают с промежуточной аркой: второй лист поликарбоната накладывается на каркас так, чтобы за края фронтальной арки выходило не более 40 мм, и на дуге в центре образовался нахлест. Убеждаются в равномерности прилегания покрытия. Ленты стягивают при помощи гаечного ключа. Все.
Фундамент. Принимает на себя все нагрузки от постройки и равномерно распределяет их по всей площади основания. Прочность фундамента будет зависеть от срока службы самой теплицы
Для временной постройки прочность основания не играет большой роли, а для долговечной – это первое, на что следует обратить внимание. Идеальным вариантом считается ленточный фундамент
Обустройство теплицы начинают с возведения фундамента
Определившись с местом и поставив отметки из колышек, переходят к строительству ленточного фундамента. Сначала вырывают траншею шириной 20 и глубиной 40 сантиметров. Фундамент будет выполнять несколько задач:
Обустройство теплицы начинают с возведения фундамента. Определившись с местом и поставив отметки из колышек, переходят к строительству ленточного фундамента. Сначала вырывают траншею шириной 20 и глубиной 40 сантиметров. Фундамент будет выполнять несколько задач:
- выравнивать территорию участка;
- служить опорой каркаса;
- отводить дождевые воды;
- защищать растения от вредного воздействия климата.
Закончив рытье траншеи, выставляют по всему периметру деревянный каркас – опалубку. Опалубка будет держать цементный раствор до полного высыхания. Поэтому нужно тщательно ее укрепить укосами. Для тепличного фундамента предпочтительнее каменная или бетонная кладка.
Лучше сделать основание из железобетона. Для этого устанавливают арматуру, связывают прутья проволокой и переходят к созданию цементного раствора. Хорошенько перемешивают цемент, гравий, песок (1:4:4), вода 0,5 частей от цемента. Заливают получившейся смесью опалубку.





































