Расчет объема круглого котлована
Пример 5. Найти объем круглого котлована под дымовую трубу котельной. Глубина котлована — 5 м, стенки — отвесные, диаметр котлована равен 10 м. В этом случае объем равен площади дна котлована, умноженной на его глубину. Смотрите рис. 14.
Площадь круглого дна равна диаметру его, умноженному на самого себя и еще на число 3,14 (π) и поделенному на 4, т.е.:
(10х10х3,14)/4=314/4=78,5 кв. м,
а объем котлована будет равен:
78,5х5=392,5 куб. м.
Чем более неровна поверхность земли, тем меньше должно быть расстояние между смежными поперечными профилями выемок и насыпей при подсчете их объемов.
На рис. 15 показано, в каких местах надо брать поперечные площади насыпи при сильно волнистой поверхности земли. На рис.15 1, 2, 3 и. т. д. означают те места, где надо брать площади, а l¹, l² и. т. д. — расстояние между ними.
Объем участка II насыпи будет равен площади 2+ площадь 3, деленной пополам и умноженной на расстояние l².
Объем всей насыпи равен сумме объемов участков I, II, III и. т. д.
Простейшими приборами для измерения длины, ширины и высоты земляного сооружения является мерная лента и рулетка.
Мерная лента делается из тонкой стали шириной 2-3 см. Длина ленты — 20 м. Лента разделена на метры, полуметры и дециметры (дециметр равен 10 см) (рис. 16).
Рулетка — это тесьма длиной 5, 10 или 20 м, заключенная в футляр, в котором она наматывается на ось, пропущенную поперек футляра (рис. 17). Деления на тесьме имеются метровые, дециметровые и сантиметровые.
Оптимальным вариантов для замера в данный момент является лазерная рулетка и теодолит с нивелиром.
Укажите обязательные размеры
L — Общая длина траншеи или канавы. A — Ширина в верхней части. B — Ширина дна. H — Глубина траншеи.
Программа посчитает объем и площадь поверхности траншеи. Если ширина верха и дна траншеи разные, то будет дополнительно рассчитаны полезный объем C и объем откосов D.
Расчет объема траншеи
Для прокладки коммуникаций, теплопроводов, канализации или установки ленточного фундамента на вашем участке может возникнуть необходимость в рытье траншеи. Можно пригласить для этого специалистов, а можно выполнить эту работу самостоятельно. Но и в том, и в другом случаях вам нужно будет знать некоторые характеристики траншеи. Рассчитать их вам поможет наша программа. На основании длины, ширины и глубины траншеи она определит ее объем и площадь поверхности. В том случае если ширина верха и дна траншеи различаются, будет рассчитан также и полезный объем откосов. Расчет объема траншеи поможет вам не только облегчить себе работу, но так же вычислить стоимость земельных работ, если вы все же решите воспользоваться услугами специалистов.
Прокладка траншеи
Существует три способа рытья траншей. Это рытье траншей вручную, при помощи ручного траншеекопателя или траншейного экскаватора. К первому случаю обычно прибегают там, куда нет доступа специальному оборудованию. Это довольно трудоемкий способ рытья траншей, на который сильно влияет качество грунта. Ручные траншеекопатели сокращают время проведения подобных работ. Его можно купить, либо взять в аренду. Можно также заказать рытье траншеи в специализированной фирме. Тогда его выполнит профессионал. Экскаватор используется там, где на участок может проехать строительная техника, а также там, где имеет место большой объем работ. Прежде чем арендовать такой экскаватор следует выяснить ширину дна траншеи, чтобы подобрать машину с размером ковша, который ей соответствует. Если вы решили рыть траншею самостоятельно, прежде всего вам следует знать, что для разного типа работ требуются траншеи определенной глубины. Так, например, для прокладки кабелей, как правило, роются траншеи глубиной порядка 70 см. А для канализации требуются более глубокие траншеи. При этом желательно, чтобы глубина эта была на полметра больше глубины промерзания почвы. На ширину траншеи так же влияет тип проводимых работ. Наименьшая ширина траншеи измеряется по дну и должен соответствовать типу и размеру укладываемых в нее труб.
Формулы расчета земляных работ с откосами в разработке
Основные формулы расчета объема земляных работ с откосами в разработке:
1. Земляное заполнение котлована:
Объем земли для заполнения котлована считается как сумма объемов прямоугольной призмы и двух треугольников. Формула для расчета объема земли в этом случае выглядит следующим образом:
Объем = (S1 + S2 + S3) * H
где S1, S2, S3 – площади треугольников, H – высота котлована.
2. Земляное выемочное основание:
При расчете объема земли, необходимого для выемочного основания с откосами, применяется формула:
Объем = (S1 — S2 + S3) * H
где S1, S2, S3 – площади треугольников, H – глубина основания.
При проведении земляных работ необходимо учитывать откосы, которые обеспечивают стабильность и безопасность конструкции, а также оптимизируют трудозатраты на выемку и заполнение грунта. Корректный расчет объема земли позволяет оптимизировать затраты на материалы и ресурсы.
Формула для расчета объема котлована с прямыми боковыми откосами
Расчет объема котлована с прямыми боковыми откосами осуществляется с помощью следующей формулы:
V = (B1 + B2) / 2 * H * L
где:
- V — объем котлована;
- B1 — ширина верхней части котлована;
- B2 — ширина нижней части котлована;
- H — высота котлована;
- L — длина котлована.
Данная формула основана на предположении, что боковые откосы котлована являются прямыми.
При расчете объема котлована следует учитывать все его габаритные параметры, такие как ширина верхней и нижней части, высота и длина котлована. Эти параметры оказывают значительное влияние на расчет и позволяют определить необходимый объем земляных работ.
Применяя данную формулу, можно рассчитать объем котлована с прямыми боковыми откосами и использовать полученные данные при планировании и организации земляных работ.
Формула для расчета объема котлована с наклонными боковыми откосами
При проведении земляных работ для возведения зданий и сооружений часто возникает необходимость создания котлованов для размещения фундамента. При этом котлованы имеют наклонные боковые откосы, что требует расчета их объема.
Для расчета объема котлована с наклонными боковыми откосами используется следующая формула:
- Вычисляем площадь основания котлована (Sосн) по формуле: Sосн = a * b, где a — длина основания, b — ширина основания.
- Вычисляем площади боковых поверхностей откосов (Sбок) по формуле: Sбок = (a + b) * (c + d) — Sосн, где c и d — длина и ширина соответственно, внутренней части котлована.
- Вычисляем среднюю ширину основания и площади откосов (bсред и Sоткос) по формулам: bсред = (a + b) / 2, Sоткос = bсред * (c + d).
- Вычисляем объем котлована (V) по формуле: V = (Sосн + 2 * Sбок + 2 * Sоткос) * h, где h — высота котлована.
Полученное значение объема котлована позволяет определить необходимое количество материала, а также объем возможного сдвига земли при его разработке.
Формула для расчета объема котлована с комбинированными боковыми откосами
Для расчета объема котлована с комбинированными боковыми откосами необходимо учесть различные параметры и формулы. Основной расчет выполняется по следующей формуле:
| Формула | |
|---|---|
| Объем вертикальной стенки | Vвс = S * H | 
| Объем земли наклонного откоса | Vн = (B1 + B2) * H / 2 * L | 
| Объем земли горизонтальной плоскости | Vг = (S + L) * W | 
| Объем котлована с комбинированными боковыми откосами | Vк = Vвс + Vн + Vг | 
Где:
- S — площадь основания котлована;
- H — высота вертикальной стенки котлована;
- B1 и B2 — ширины верхней и нижней горизонтальных откосов соответственно;
- L — длина наклонного откоса;
- W — ширина котлована.
При расчете необходимо учитывать все указанные параметры и правильно подставлять их в формулу. Только тогда можно получить точный результат для расчета объема котлована с комбинированными боковыми откосами.
Распространенные проблемы и ошибки процесса
При выполнении поставленных строительных задач могут возникнуть проблемы в том случае, если будут неправильно произведены расчеты по засыпке, нарушится соблюдение технических требований по СНиП, а также безопасности.
К распространенным ошибкам строителей относят:
- Плохо проведенные подготовительные работы. 
- Неправильный выбор грунтовой смеси.
- Сухой засыпаемый материал.
- Недостаточная трамбовка.
- Использование толщины засыпки более 500 мм (а должно быть до этой отметки).
- Несоответствие материала с грунтом вокруг здания.
- Засыпка плодородной почвы, что является недопустимым явлением, так как органический слой может способствовать образованию грибка и плесени в пазухах.
- Неправильное хранение грунта или его промерзание.
- Работы в неподходящих погодных условиях (мороз, ливни).
Чтобы не допускать ошибок, необходимо придерживаться схемы плана работ, который принят инженером и установлен соответствующими инструкциями.
Как посчитать объем земли откоса
Расчет траншеи с откосами на спланированной местности (Скачать файл расчета)
- Зачем производится расчет количества грунта?
- Определение траншеи
- Что входит в земляные работы
- Быстрый расчёт объемов стройматериалов!
- Расчет объема грунта и стоимости работ
- Основные варианты планировки
- Формула расчета для многоугольника с откосами
- С вертикальными стенками на ровном участке
- С вертикальными стенками, имеющих разные отметки вершин
- С откосами на спланированной местности
- Яма с круглым сечением, имеющий откосы
- Что влияет на подсчет объема
- Расчет объема выемки
- Кто выполняет расчет объема земли траншеи?
- Составление документа
Зачем производится расчет количества грунта?
Строительство зданий и возведение конструкций — сложный процесс, требующий основательных финансовых инвестиций, в связи, с чем застройщики должны обеспечить высокий уровень выполнения земляных работ под фундамент объекта.
Высокоэтажные объекты жилого и промышленного назначения требуют установки качественного фундамента, который, как правило, имеет сложносоставную конфигурацию, поэтому современный расчет того, сколько кубов грунта нужно вынуть, выполняют программным методом с применением высокоточных измерительных устройств.
В таком случае можно максимально точно определить общую кубатуру земли, которую надо вывести из котлована. Менее ответственные объекты рассчитывают в ручном режиме или с применением строительных онлайн калькуляторов, которые можно найти в интернет сети.
Состав земляных работ по требованиям СНИП:
- Вертикальная планировка земельного участка. Осуществляется способом выравнивания рельефа площади, отведенной под строительство. Сюда входят следующие работы: удаление и передвижение слоя грунта, транспортировка и уплотнение его на внешних площадках, единицы измерения площади в м2.
- Разработка выемки для котлована. Предполагает вычисление объемов участка в виде суммы объемов классических фигур, входящих в общую конфигурацию строящегося объекта. При этом в расчете допускают, что размеры грунта ограничивается визуальными плоскостями. В таком случае незначительные выпуклости не будут оказывать влияния на точность, единицы измерения м3.
Котлован для возведения плитного фундамента дома прямоугольной формы выполняется в виде обычной ямы, а для ленточного варианта выкапывается траншея.
Для того чтобы рассчитать объём грунта, к сведению берутся следующие данные:
- Геодезические изыскания.
- Размеры по периметру и архитектурно-строительные индивидуальности объекта.
- Технология возведения объекта.
- Уровень, залегания подпочвенных вод, фундамент строений не может приближаться к ним ближе, чем на 500 мм.
- Глубину промерзания грунта, который должен быть не менее 300 мм.
- Рельеф земельного участка.
Для сложных объектов расчет выполняется в рамках проекта строительства в разделе земляных работ
Профессионалы, беря во внимание все выше приведенные характеристики, определяют глубину строящегося котлована, чтобы он стал надежной основой для возведения фундамента
Определение траншеи
 
При проектировании фундамента нужно рассчитать объем траншеи
Траншея представляет собой открытую выемку в земле, глубина и ширина которой зависят от того, для какой цели она предназначена. Данные параметры определяются строительными нормами и правилами:
- Траншея под ленточный фундамент должна быть на 60 см шире основания. Так удобнее выполнять сопутствующие работы. Глубина, согласно СНиП 3.02.01-87, может варьироваться от 0,5 до 2,5 м.
- Под газопровод подготавливают траншею глубиной не менее 0,8 м до поверхности трубы. Это правило закреплено в СНиП 42-01-2002.
Инструкция по расчету объема грунта траншеи
Для начала, необходимо заполнить исходные данные онлайн калькулятора в метрах:
L – это длина траншеи, зависит от назначения, например, для устройства фундамента, прокладки коммуникаций (водопровод, канализация, газопровод, силовые или слаботочные кабеля).
A – ширина верхней части траншеи, определяется возможностью работы в траншее работников обустраивающих коммуникации.
При устройстве ленточного фундамента ширину траншеи рекомендуется увеличить на 600 мм больше ширины основания фундамента (для возможности монтажа опалубки, перемещения рабочих).
B – ширина нижняя (дна), поскольку часто траншею роют с откосами, препятствующими осыпанию грунта, то ее размеры вверху и снизу могут отличаться. Разница между шириной верха и дна определяет крутизну откосов.
Если откосы не делаются и ширина постоянна вверху и внизу траншеи – введите одинаковые значения параметров А и В
H – глубина траншеи, зависит от ее целевого назначения, например для ленточного фундамента 0,5-2,5 м, согласно СНиП 3.02.01-87. Для газопровода не менее 0,8 метров до верхней точки трубы с учетом СП 62.13330.2011 (СНиП 42-01-2002), глубина прокладки водопроводных труб регламентируется СНиП 2.04.02-84 (к фактической глубине промерзания грунта необходимо прибавить минимум 0,5 метра). Минимальная глубина заложения канализации для регионов с теплым климатом составляет 0,7-0,8 м, а если зимы суровые – глубже. Для прокладки кабелей, как правило, роются траншеи глубиной порядка 0,7 м.
Стоит отметить, что иногда проще и экономичнее утеплить трубу, применить комбинированный способ устройства фундамента, (т.е. засыпка песчано-гравийной подушки, утепление и организация дренажа) и вырыть неглубокую траншею экономя время, силы и деньги за выемку, укрепление стенок и перемещение грунта.
Также укажите стоимость рытья в Вашем регионе (за 1 кубический метр) и вывоза грунта (тоже за 1 м 2 ) после чего нажмите «Рассчитать».
Расчет объема траншеи с откосами
Калькулятор рассчитает площадь траншеи (пригодится при определении необходимого количества материала для укрепления откосов), объём траншеи даст представление, сколько грунта необходимо вынуть и переместить и подобрать оптимальный способ рытья для получения ожидаемого результата в краткий срок. Если ширина верха и дна траншеи разные, то дополнительно будут рассчитаны объемы: полезный C и откосов D. Если Вы ввели расценки подрядчиков на копку и вывоз грунта, калькулятор выдаст стоимость копания траншеи, цену перемещения грунта и общие затраты на сооружение траншеи, что позволит принять взвешенное решение – обратиться к профессионалам или копать самому.
голоса
Рейтинг статьи
Калькулятор для выполнения расчетов
Расчет количества земли, которое необходимо выкопать для строительного проекта, может оказаться непростой задачей, особенно если у вас имеются траншеи разной формы. К счастью, с помощью калькулятора эти расчеты можно упростить.
В настоящее время доступны онлайн-калькуляторы, которые позволяют быстро и легко определить, сколько земляной насыпи необходимо для траншей разных форм и размеров.
Все, что вам нужно сделать, это ввести длину, ширину, глубину и форму вашей траншеи в калькулятор, и он автоматически предоставит точный расчет общего объема земли, который необходимо выкопать.
Эти калькуляторы также помогут вам рассчитать земляные работы, предоставляя итоги в погонных метрах. Это позволяет подрядчикам точно оценивать затраты при проведении торгов по проектам.

Удобство, предлагаемое онлайн-калькуляторами, позволяет строителям уделять больше времени другим аспектам рытья траншей, не беспокоясь о сложных математических формулах для расчета объемов земляных работ вручную.
Итак, используя математические формулы или онлайн-калькуляторы, а также тщательно учитывая такие факторы, как тип почвы и ее осадка, вы можете быть уверены, что ваш проект будет успешно реализован и завершен. Так что не пугайтесь подсчета объемов: вооружившись необходимыми знаниями и инструментами, вы, как и любой другой человек, можете стать экспертом в подсчете кубических метров!
Как использовать полученные данные для планирования земляных работ?
Во-первых, полученные данные о объеме котлована позволяют определить необходимое количество грунта для его выемки. Это позволит заказать нужное количество материала и рассчитать бюджет на закупку.
Кроме того, данные о объеме котлована позволяют спланировать время и трудозатраты на проведение земляных работ. Зная объем работ и доступные рабочие ресурсы, можно определить количество рабочих, необходимое для выполнения задачи в заданные сроки.
Также, полученные данные о расчете земляных работ с откосами позволяют определить оптимальный угол откоса, что обеспечит безопасность и стабильность конструкции котлована.
В целом, правильное использование полученных данных позволяет более точно спланировать и организовать земляные работы, что поможет избежать задержек и непредвиденных затрат.
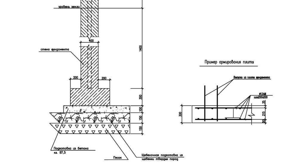
Когда на разработку котлована требуется проект
Часть проекта, согласно которой на объекте производятся земляные работы, называется ПРК (проект разработки котлована). Такой проект составляют, когда глубина разработки превышает 2 м (это может быть дом с подвалом), а также когда для безопасности работ надо укрепить стенки или сделать глубинное водопонижение.
ПРК (или ППР котлована) включает в себя чертежи в плане и разрезе, технологические и другие схемы, в которых содержится информация, вплоть до мест расстановки землеройной техники и самосвалов.
Обязательная часть проекта – экспликация материалов, необходимых для выполнения основных и вспомогательных работ.
План котлована под фундамент Технологическая схема разработки грунта Схема организации площадки Поперечный разрез котлована
Если котлован разрабатывают рядом с существующим сооружением, либо его глубина превышает уровень заложения последнего, в проекте определяют меры против осадки грунта и деформации конструкций.
Это может быть возведение шпунтовых стен, усиление грунтов цементацией либо силикатизацией, устройство нового, более глубокого фундамента под старым.
 Выбор защиты зависит от глубины котлована и гидрогеологических условий. Защита фундаментов существующих зданий
Защита фундаментов существующих зданий
Как форма стенок котлована зависит от его глубины
Свойства грунтов и наличие в них подземных вод определяют структуру котлована, который может иметь вертикальные стенки или пологие.
Вертикальные без креплений можно делать в плотных сухих грунтах, и только, когда котлован не остаётся открытым на продолжительное время.
  Стенки котлована ступенчатой формы
Стенки котлована ступенчатой формы
Если есть вертикальные откосы (если рядом нет сооружений), глубина не может превышать:
- в твёрдых глинах и суглинках – 3м;
- в полутвёрдых глинах и суглинках – 2м;
- в тугопластичных глинах – 1,5 м;
- в текучих глинах и твёрдых супесях – 1,25 м;
- в песчаных, гравийных и лёссовых грунтах – 1,0 м.
Когда надо рыть на большую глубину, в котловане предусматривают пологие (иногда ступенчатые) стенки, либо выбирают один из вариантов крепления стенок.
  Отвесные стенки котлована с анкерным креплением
Отвесные стенки котлована с анкерным креплением
Когда глубина более 5 метров, крутизна откосов принимается по таблице в СНиП и зависит от типа грунта. Этот параметр – отношение глубины к проекции откоса на горизонталь (на схеме снизу).
  Чертеж: крутизна откоса котлована 1:1
Чертеж: крутизна откоса котлована 1:1
Определение размеров котлована
Глубина котлована – важный параметр, который определяется сложением толщин фундамента и подстилающих слоёв. Это: песчано-щебневые подушки, бетонные подготовки и пластовый дренаж.
Разницы нет, под ленточный фундамент роют котлован или под монолитную плиту. Она тоже может значительно заглубляться, когда в здании предусмотрен цокольный этаж или подвал.
  Глубина – сумма всех слоёв, начиная от уровня земли
Глубина – сумма всех слоёв, начиная от уровня земли
 Есть ещё несколько важных размеров. Это периметр дна котлована и его размеры поверху, которые значительно отличаются, если есть пологие стенки. Основные параметры при расчете размеров котлована
Основные параметры при расчете размеров котлована
Размеры дна в плане назначают при проектировании, учитывая параметры фундамента и способ возведения, необходимое пространство для опалубки, удобство бетонирования или монтажа сборных элементов.
Сверху размер котлована больше дна на суммарную ширину откосов и элементов крепления стенок.
Часто размеры котлована по дну и поверху различаются незначительно, потому что пологие стенки увеличивают объём земляных работ. На практике чаще делают вертикальные откосы, не смотря на необходимость укрепления.
Что надо знать о траншеях в строительстве
В частном строительстве рытье канавы является начальным этапом многих работ, от возведения ленточного фундамента, до прокладки инженерных сетей. Это всегда временная выемка в грунте, а ее основной характеристикой является профиль и связанные с ним габариты.
Траншея может обладать вертикальными или скошенными стенками, которые в определенных случаях укрепляются
Расчет траншеи подразумевает расчет объема извлеченной земли, что важно по многим причинам, например:
- Определение стоимости работ (считается за погонный метр). Она зависит от объема грунта, ведь его необходимо извлечь, а затем вывезти автотранспортом.
- Вычисление количества материала, которым будут заполнять выемку (например, бетона для фундамента, песка и щебенки для подушки под фундамент).
- Определение количества земли, необходимой для обратной засыпки.
Грунт извлекают вручную или при помощи техники, а из всех параметров наиболее важной считается глубина. Она зависит от вида последующих работ и других факторов (например, уровня промерзания) и регламентируется нормами СНиП

 Канава с вертикальными стенкамиИсточник kolodec-ryazan.ru
Требования к откосам
Откосы не должны осыпаться и должны быть безопасными для рабочих
Ответ, какую крутизну должны иметь откосы у земляного сооружения, содержится в строительных нормах. Отклонение от заданных стандартов вызывает не только увеличение объема работ при обрушении стенки, но и опасность получения травмы работником.
Основными определяющими параметрами являются плотность грунта, образующего боковую поверхность, и глубина выемки:
Дополнительные моменты
На практике при выполнении работ по устройству котлованов присутствуют специфические операции, которые нужно учитывать. Подробнее о том, как расчитать объем котлована в специальной программе, смотрите в этом видео:
Ими являются следующие обстоятельства:
- рытье ямы одноковшовым экскаватором включает в себя допустимые недоборы грунта, которые устраняются при помощи лопаты;
- траншея под прокладку труб вручную обустраивается приямками в местах выполнения стыков;
- для повышения несущей способности трубы на 30 – 40% увеличивают площадь опирания ее на основание путем выборки в подстилающей поверхности борозды по Ø трубы с углом охвата 120°;
- размер обратной отсыпки определяется разницей между объемами котлована и подземной части здания.
Минимизировать количество вывозимого или привозного грунта для завершения на участке всех земляных работ можно, если еще на стадии проектирования рассчитать нулевой уровень, который обеспечит баланс объемов выемки и отсыпки.
- http://stroydocs.com/calc/e_ground_works
- https://general-smeta.ru/stati/opredelenie-ob-jomov-rabot/1577-podschjot-ob-jomov-zemlyanykh-rabot.html
- https://all-calc.com/stroitelstvo/snaruzhi-doma/393-transheya-kanava
- https://kakfundament.ru/kotlovan/obem-kotlovana
































