Проверка исправности устройства
Для того чтобы убедиться в правильности показаний, имеется два способа, которые можно применить самостоятельно без особых знаний электротехники. Для начала нужно проверить прибор на самоход. Это возникает при самопроизвольном вращении диска или моргании светодиода в то время, когда энергопотребление отсутствует. Проверить исправность можно так:
- Все групповые автоматические выключатели отключить.
- Проконтролировать вращение диска или мигание индикатора. Время контроля составляет 15 минут. Если за этот период не зафиксировано светового импульса или не более одного оборота диска, устройство считается исправным.
Ещё один метод позволит узнать погрешность, с которой прибор выдаёт показания. Он основан на проверке активной нагрузки. Для этого три обычных стоваттных лампы соединяются параллельно и включаются в сеть при снятой остальной нагрузке. (Сейчас это лампы с маркировкой 95 Вт). С помощью секундомера фиксируется время прохода пяти вращений диска или 10 морганий светодиода. Далее по формуле: E = (P * T * A / 3600—1) * 100%, где: P — нагрузка; T — время одного оборота диска; A — передаточное число (по паспорту или шильдику на корпусе) вычисляется погрешность прибора. Она выражается в процентах.
Подключение счетчика
Измерительные приборы этой категории устанавливают последовательно с потребителями электроэнергии. Типовой алгоритм действий:
- после извлечения из фабричной упаковки проверяют целостность корпуса, установленных пломб;
- подключение выполняют по схеме из официальной инструкции (жилы проводников – от 1 до 6 мм);
- для подсоединения телеметрической аппаратуры учитывают номинальные/ максимальные параметры тока (10/30 мА) и напряжения (12/24V);
- переход в рабочий режим сопровождается изменением данных на табло цифровой индикации (миганием светодиода).
Для сохранения планового ресурса следует обеспечивать благоприятные режимы:
- транспортировка – температура от -40°C до +70°C, относительная влажность – не более 98% при +35°C;
- хранение – в отапливаемом помещении (от +5°C до +40°C), относительная влажность – не более 80% при +25°C.
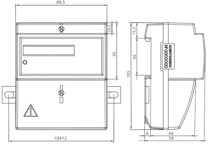
Трехфазный счетчик электроэнергии – Энергомера ЦЭ6804
Электросчётчик Энергомера ЦЭ6804 – трёхфазный прибор, предназначенный для определения потреблённой энергии (её активной составляющей). Аппарат может применяться в бытовой и промышленной сфере, коммунальном хозяйстве и на других индивидуальных объектах.
Вид счётчика – Энергомера ЦЭ6804
Устройство и принцип работы
Корпус прибора снабжён:
- измерительным модулем, в виде электронной платы;
- тремя токовыми датчиками;
- механическим отсчетным устройством.
Пластиковая крышка закрывает клеммы. Аппарат оборудован испытательным выходом и светодиодным индикатором, сигнализирующим об интенсивности расхода.
Изделие может эксплуатироваться индивидуально или подключаться к централизованной сети контроля.
Поступающие токовые сигналы воспринимаются измерительным модулем и преобразуются в импульсы, с последующей передачей и отображением на механическом отсчетном устройстве роликового типа.
Технические характеристики
| Класс точности | 1 |
| Частота измерительной сети, Гц | 50±2,5 |
| Номинальное фазное напряжение, В: | |
| для счетчиков непосредственного включения для счетчиков трансформаторного включения | 220 (380) 57,7 (100) |
| Номинальная (максимальная) сила тока, А: | |
| для счетчиков непосредственного включения для счетчиков трансформаторного включения | 60; 100 7,5; 10 |
| Стартовый ток (чувствительность): | |
| для счетчиков непосредственного включения, Iб для счетчиков трансформаторного включения, Iном | 0,002; 0,0025 0,001; 0,0015 |
| Полная потребляемая мощность параллельной цепи, не более, В*А | 8 (0,8) |
| Полная потребляемая мощность последовательной цепи, не более, В*А: | 0,1 |
| Диапазон рабочих температур, °С | -40… +60 |
| Габаритные размеры, мм | Ш33 — 169 x 235 x 70 Р31 — 110 х 143 х 66,5 Р32 — 143 x 170 x 52 |
| Масса, кг | 1,2 |
| Способ крепления | Рейка ТН35, винты |
| Средняя наработка до отказа, час | 160000 |
| Срок службы, лет | не менее 30 |
| Межповерочный интервал, лет | 16 |
| Цена, рос. руб. | от 2500 |
Документация
- Руководство по эксплуатации: Смотреть
- Описание типа: Смотреть
- Декларация соответствия: Смотреть
- Каталог производителя: Смотреть
Гарантия на прибор
Производитель предоставляет гарантийное обслуживание на продукцию, если от момента выпуска прошло не более 4-х лет, включая хранение аппарата на складе.
Для принятия на гарантию, изделие необходимо предоставлять в комплекте с документами, приложенными изготовителем.
Преимущества прибора
Для прибора характерны следующие достоинства:
- запас по степени точности, согласно требованиям метрологических стандартов;
- привлекательный дизайн;
- выгодная цена;
- длительный срок эксплуатации;
- большой временной промежуток между поверками;
- надёжная защита от хищения энергии;
- возможность удалённого контроля показаний.
Разновидности счётчика
Модель выведена из эксплуатации. Производились следующие исполнения счётчиков:
Расшифровка маркировки счётчика – Энергомера ЦЭ6804
- 1 57,7В 1-7,5А 3ф.4пр. М Ш33 И – прибор с фазным напряжением 57,7 В при величине рабочего и максимального тока 1 и 7,5 А, табло отображает 4 целых разряда, тип корпуса для установки на щитке;
- 1 100В 1-7,5А 3ф.4пр. М Ш33 И – отличается большим параметром фазного напряжения (100 В);
- 1 220В 1-7,5А 3ф.4пр. М Р31 (Ш33 И) – циферблат в 5 разрядов, величина напряжения – 220 В, крепится на рейку ТН35;
- 1 220В 5-60А 3ф.4пр. М Р31 (Ш33 И) – отличается величиной электротока (как указано в маркировке), количество роликов – 6;
1 220В 10-100А 3ф.4пр. М Р31 (Ш33 И) – разница в показателях тока (10 и 100 А);
1 220В 5-10А 3ф.4пр. М Р31 (Ш33 И) – величины электротока также отображены в обозначении, отличаются от предыдущей модели (5 и 10 А).
Снятие показаний
Чтобы снять показания, необходимо учитывать целое значение киловатт-часов, без учёта дробной составляющей, отделённой запятой на корпусе под циферблатом. Дробный разряд обозначен изображённой вокруг него скобкой.
Для снятия показаний потребуется:
- Записать текущее значение на табло, опустив начальные нули.
- Отнять данные по прошлому месяцу.
- Разницу умножить на тарифный план(расценку за 1 кВт).
Можно ли сэкономить
Защита прибора не позволяет безнаказанно влиять на его работу с целью хищения энергии. Чтобы сэкономить, потребителю необходимо правильно подбирать изделие, исходя из параметров сети, суммарной мощности подключённой техники и площади сечения проводов.
Подключение счётчика
Аппарат крепится на стандартную ДИН-рейку или винтами. Работы должны производиться при отключённом токе квалифицированным электромонтёром. Провода зажимаются в клеммах, с проверкой плотности, в начале верхние, затем – нижние.
Схемы подключения приведены в руководстве по эксплуатации, входящем в комплект изделия.




Что такое МПИ и нужно ли делать поверку электросчетчиков по закону
Межповерочный период (МПИ) – отрезок времени, спустя которое потребителю нужно провести проверку электросчетчика. При игнорировании данного требования ИПУ переходит в категорию «нерабочий», а показания, переданные с него, не могут приниматься для проведения расчетных операций.
Каждый тип прибора имеет отдельный интервал, в рамках которого информация признается электроснабжающей организацией актуальной. В отношении потребления ресурса, поверки в МКД и частных домовладениях необходимо опираться на следующие нормативные акты – федеральные законы №102 и №261.
Однако с 01.06.2020 года собственники помещений освобождаются от необходимости:
- использовать ИПУ;
- передавать сведения о приборах учета при его выходе из строя;
- монтировать оборудование.
Вследствие его неисправности или завершения межповерочного срока РСО или обслуживающая компания обязана восстановить подачу ресурса методом установки нового прибора.
Посмотрите видео: «Что делать, если истек срок поверки электрического счетчика. Как избежать штрафов.»
Паспорт электросчетчика СО-И446
Номинальный ток у счетчика равен 5, 10А. А номинальное напряжение составляет 220В или 127 при частоте в 5Гц. 340% максимальный ток счетчика (рассчитывается от номинального тока), а 1% — это порог чувствительности.
При номинанальной частоте и номинальном напряжении в цепи идет потребление мощности не более 2,0 Вт.
Вес счетчика составляет всего 1200 гр. А его размер – 217:135:111.
Электросчётчик устанавливается только в сухом, хорошо вентилируемом помещении, в котором диапазон температур варьируется от 0 до +40 градусов по Цельсию, а влажность не должна превышать 80%. Кроме того, в воздухе не должно быть никаких газов и агрессивных паров.
Когда необходимо делать поверку
Подтверждение правильности функционирования индивидуального прибора учета электроэнергии требуется в следующих случаях:
- Истечение срока, который был установлен в результате предыдущей сверки.
- Нарушение целостности пломбы Госповерки. Это может свидетельствовать о вмешательстве в работу механизма. Следить за состоянием устройства – прямая обязанность собственника, но уполномоченные лица исполнителя коммунальных услуг также должны проводить проверку в установленные сроки.
- Обнаружение механических повреждений. Любые внешние дефекты могут оказывать влияние на функционирование счетчика электроэнергии.
- Утеря свидетельства о проведенной поверке. Если нет возможности получить дубликат, ИПУ признается нерабочим.
- Показания фиксируются не совсем корректно. Чтобы подтвердить наличие внутренних неисправностей устройства, требуется получить соответствующее заключение.
- Первичная. Ее осуществляет завод-изготовитель. Именно она является точкой отсчета до нового измерения.
- Периодическая. Выполняется, когда указанный срок заканчивается.
- Внеочередная. Производится в особых ситуациях, требующих оценки работоспособности электросчетчика.
Если исполнитель коммунальных услуг сомневается в правильности функционирования ИПУ, то проводится поверка устройства сотрудником, имеющим соответствующий допуск.
Основные технические особенности счётчика
- Низкое потребление электроэнергии на собственные нужды;
- Присутствие в комплектации телеметрического оптического входа;
- При работе горит световой индикатор;
- Счетчик се101 оснащенный ЖК дисплеем, не реагирует на магнит, используемый при попытке его остановить;
- Усиленная защищенность прибора от недоучета или явного воровства электроэнергии;
- Использование шунта для получения точного значения затрачиваемого эл.тока;
- В счётчике присутствует сумматор, который в свою очередь может быть построен на электронных схемах, либо быть механическим;
- Защищенность от агрессивных условий среды, а также от механических повреждений и влияния электромагнитных волн.
Рекомендуем: Счетчик НЕВА-104: тех. характеристики, подключение
Порядок монтажа
Подключение электросчетчика «Энергомера СЕ 101» — дело достаточно простое. За это такие приборы учета также заслужили отличные отзывы потребителей. При желании смонтировать подобное устройство сможет даже человек, имеющий только начальные познания в электротехнике. Но конечно же, подобную работу лучше все же поручить специалисту.
После распаковки счетчик «Энергомера СЕ101» любой модификации должен быть внимательно осмотрен. Специалисту, выполняющему монтаж, следует убедиться в том, что прибор не имеет механических повреждений и оснащен пломбой.

Собственно сама установка этого счетчика производится в следующем порядке:
- кабель очищается на длину примерно в 27 мм;
- провод после отвинчивания винтов вставляется в клеменной зажим;
- первым затягивается верхний винт;
- после непродолжительной выдержки оба винта подтягиваются еще раз;
- на прибор подается напряжение.
Способ крепления электросчетчиков «Энергомера СЕ 101» по инструкции от производителя зависит от типа корпуса. После монтажа, помимо всего прочего, следует проверить работоспособность прибора. При подключении нагрузки его показания должны начать меняться.
После проверки следует установить на место крышку зажимов. Далее производиться опломбирование счетчика. При самостоятельной установке для этой процедуры нужно будет вызвать электрика ЖЭК.
Счётчик Энергомера СЕ101 – обзор и преимущества устройства
Электросчётчик Энергомера СЕ101 – однофазная модель прибора, для считывания объёма потраченной электроэнергии при подключении в 2-х проводную сеть переменного тока.

Устройство оборудовано 6-ти или 7-ми разрядным счётным устройством механического типа и учитывает показатели по одной расценке. Аппарат оборудован телеметрическим выходом и световым индикатором, сигнализирующим о режиме эксплуатации прибора.
Технические характеристики

Срок службы прибора
Продолжительность нормативной эксплуатации изделия – не менее 30-ти лет, количество часов до поломки – 160000. Гарантия производителя распространяется на начальные 5 лет, включая период хранения продукции на складе торгового распространителя.
Межповерочный интервал
Промежуток времени от одной до другой поверки – не менее 16-ти лет. После приобретения товара потребитель должен проверить наличие сведений о поверке изготовителем, занесённых в соответствующий раздел паспорта, все последующие работы фиксируются аналогично.
Стоимость счётчика
Цена на данную модель – от 600 рублей и выше, в зависимости от исполнения и комплектации.
Преимущества прибора
Для этого электросчётчика характерны следующие плюсы:
- невысокий собственный расход энергии;
- простота и надёжность конструкции;

Защищённость корпуса позволяет устанавливать аппарат внутри помещений или снаружи, в закрытом шкафу.
Как снять показания
Для снятия показаний достаточно выписать сведения расположенные до запятой(жёлтый прямоугольник), отображаемые в начале и конце месяца, вычесть из большего значения меньшее и умножить полученное число на расценку по тарифу.

Разновидности данного счётчика
Изделие выпускается в 13-ти модификациях, несколько различающихся корпусом, техническими характеристиками и комплектацией.

S6 145 M6 (M7)
Первые два символа указывают на разновидность корпуса, предусматривающего установку винтами в щитке, цифра 5 – значение рабочего и предельного токов соответственно 5 и 60 А, М6 или М7 – разрядность счётного механизма.
S10 145 M6 (M7) Z2
Полный аналог соответствующей модели. Последние два символа в маркировке указывают на повышенную степень защиты исполнения IP54.

Установка счётчика
В зависимости от модификации, монтаж аппарата осуществляется на ДИН-рейку или винтами. Подключение должен проводить электромонтёр, имеющий группу электробезопасности с допуском к электроустановкам до 1000В. Подсоединение осуществляется непосредственно в сеть по простой схеме:

Защищённость исполнения позволяет устанавливать устройство внутри или снаружи помещений, при условии установки в шкаф, предохраняющий от механического воздействия.
Приобретение этой надёжной и недорогой модели – оптимальный вариант электросчётчика в условиях частного дома, квартиры, предприятия или организации.
Описание счетчика
Этот прибор выполняет свои основные функции с помощью шунта. Высокую точность обеспечивает калибровка соответствующего электрического сопротивления (до сотых долей Ома). С помощью индуктивного датчика постоянно контролируют напряжение. С помощью электронной платы полученные данные обрабатывают, учитывают временные интервалы. Количество потребленной энергии (формула Е=U*I*t) отображают с применением механических (электронных) индикаторов.

Устройство электросчетчика
Сигналы для управления приводом формирует контроллер. Одновременно импульсы поступают на поверочный светодиод. По стандартной процедуре контроля в ходе испытаний считают количество вспышек за нормированный интервал времени. В некоторых модификациях устанавливают оптическую развязку для передачи показаний в удаленную систему телеметрии. Для поддержания определенной частоты (точной фиксации временных интервалов) применяют стандартную схему кварцевого стабилизатора.
Разновидности счетчика

Счетчик электроэнергии ЦЭ6803ВМ (трехфазный)
Для описания существующих разновидностей приборов из линейки «Энергомера» достаточно упомянуть следующие модели:
- СЕ101.
- ЦЭ6803В.
- ЦЭ6803ВМ.
- ЦЭ68038 и другие.
Помимо этого деления, модели ЦЭ6803В, например, различают по способу крепления конкретного образца в пределах шкафа. В соответствии с ним изделия маркируются буквенно-цифровыми символами: R31, R32 или Ш33. Наличие на приборе кода R31 и R32 означает, что на его корпусе имеются специальные застежки, посредством которых он крепится на DIN-рейке.
Изделия, маркированные значком Ш33, фиксируются внутри шкафа или щитка с помощью специального анкерного крепления, состоящего из трех болтов. На задней стенке счетчика для этих целей предусмотрены особые крепежные петли.
Подключение прибора
Перед тем как подключить счетчик, нужно ознакомиться с его документацией и сверить номера устройства на корпусе и в формуляре прибора. Счетчик, приобретенный в магазине, обязательно имеет формуляр и инструкцию по эксплуатации. В инструкции приведены технические параметры данного прибора и схема его подключения.
Выпущенные в разное время приборы могут иметь некоторые различия в подключении, поэтому необходимо пользоваться схемой, которая приведена на внутренней поверхности крышки клеммной колодки.
Схема включения универсальна и подразумевает подсоединение 4 проводников:
- 1- вход фазы (сеть);
- 3 — выход фазы (нагрузка);
- 4 — вход нуля (сеть);
- 5(6) — выход нуля (нагрузка).
Работы по подключению счетчика СЕ 101 можно производить только при отсутствии напряжения сети. Порядок работы следующий:
- отключить питание на вводном кабеле;
- установить на распределительный щиток счетчик, вводные и нагрузочные автоматы защиты сети;
- зачистить концы вводного кабеля;
- подать напряжение и определить при помощи индикаторной отвертки фазный провод и пометить его;
- вновь отключить питание;
- зажать вводные провода в клеммах колодки в соответствии со схемой;
- подключить провода нагрузки;
- подать питание;
- проверить наличие напряжения на выходе счетчика;
- подключить нагрузку и убедиться в том, что показания счетчика увеличиваются пропорционально нагрузке.
Устройство и принцип действия силовых трансформаторов
Каждая клемма имеет 2 винта. Длина снимаемой изоляции должна быть такой, чтобы оголенный проводник не выходил за пределы клеммы, и изоляция не попадала под винты.
Сначала затягивают верхний винт, а затем, убедившись, что провод зажат прочно, затягивают нижний.
При использовании многожильного провода необходимо обжать концы специальным наконечником или облудить и пропаять жилы.
Счетчик Энергомера СЕ 101 не будет работать в случае преднамеренного или случайного неправильного подключения.
Современная электропроводка характеризуется наличием 3 проводников, один из которых служит для подключения заземления. Данный провод не используется в схеме включения электрического счетчика. Провод заземления можно определить по желто-зеленому цвету изоляции.
Самостоятельная проверка исправности электросчетчика до окончания срока поверки
При диагностике своими руками необходимо сравнить фактическую величину потребления электричества с нормированной, которая указана в показаниях:
- Производится отключение всего электрооборудования от прибора учета, которое соединяется посредством линейных автоматов.
- Для выполнения диагностики надо визуально осмотреть устройство и убедиться, вращается ли диск внутри. Если прибор электронный, то следует удостовериться, мерцает диодный индикатор или нет.
- Самоход устройства отсутствует, если за 15 минут диск совершит не более одного оборота. В случае с электронным прибором число световых импульсов должно составить не больше единичного показания.
Есть еще один вариант проверки, но для выполнения этой задачи надо оценить функциональность исполнительного устройства с активированной нагрузкой на электроцепь. Для этого потребуется три лампы накаливания, каждая из которых должна быть рассчитана на 100 ватт. Понадобится секундомер либо хронометр, который сможет определить периодичность оборотов.
Принцип поверки состоит в следующем:
- С подключенной нагрузкой в электроцепь, которая соответствует 300 ваттам, надо засечь время, на протяжении которого диск сделает пять оборотов. Если прибор учета электронный, то лампочка должна моргнуть 5 раз.
- Затем выполняется оценка погрешности измерения или точности устройства в соответствии с формулой Е = (Р * Т * А / 3600 – 1) * 100%. Т в данном случае — время, в течение которого диск сделает один оборот. А — передаточное число оборудования, которое определяется в соответствии с технической документацией.
Фотогалерея
Для проведения самостоятельной поверки следует знать, где расположены счетчики. Возможные места установки электросчетчиков приведены на фото.
Расположение прибора учета внутри помещения
Четыре энергомера в щитке подъезда жилого дома
Установка оборудования на уличном столбе
Преимущества прибора
С приобретением данного счётчика, покупатель становится обладателем модели со следующими преимуществами:
- высокой точностью измерения и чувствительностью к колебаниям электротока;
- незначительным потреблением энергии для работы устройства;
- универсальностью монтажа – применяется ДИН-рейка или возможна установка тремя винтами, взамен устаревших счётчиков индукционного типа;
- наличием светового индикатора, извещающего об интенсивности потребления электроэнергии;
- наличием выхода импульсного типа;
- надёжной защитой от постороннего воздействия;
- приспособленностью к условиям эксплуатации во внешней среде.
Рекомендуем: Электросчётчик Нева 106 — характеристики прибора и как снять показания
Перечисленными достоинствами полностью окупается стоимость изделия.
Разновидности ЦЭ6308
Помимо того, что модели ЦЭ6803в различаются по техническим характеристикам, они имеют разное крепление. Способ крепления отражён в маркировке следующим буквенно-цифровым кодом:
- R31;
- R32;
- Ш33.
R31, R32
Наличие кода такого вида в маркировке аппарата означает, что его корпус оснащён зацепами. Ими счётчик крепится к DIN-рейке. Рейка представляет собой металлический профиль в виде швеллера с продольной просечкой. Планка позволяет смонтировать ЦЭ6803в вместе с автоматами защиты одновременно.
DIN-рейка
Ш33
На задней панели счётчика расположены 3 петли для крепежа болтовыми анкерами внутри щитка или шкафа. На это указывает обозначение Ш33 в маркировке устройства.
Разновидности МПИ для счётчика электроэнергии
На законодательном уровне регулирование измерений приборов учёта устанавливается Федеральным законом №102 от 13.07.2015, где в статье 13 прописаны все правила проведения поверки и требования к организациям, выполняющим оказание услуг по МПИ.
Разберём более подробно, что такое МПИ счётчика электроэнергии и в какие интервалы времени требуется проведение поверки. Для каждого типа и модели прибора электроучёта существуют несколько межповерочных интервалов:
- Первичный. Проводится заводом-изготовителем или при ввозе счётчика из-за рубежа. Данные указываются в техпаспорте. А также первичная проверка проводится после ремонта прибора.
- Периодический. У каждого счётчика установлен заводом изготовителем свой МПИ. Данные можно уточнить в техпаспорте. Проводится после истечения определённого срока эксплуатации или хранения прибора.
- Внеочередной. Поверка проводится до наступления, указанного в техпаспорте, МПИ. Основанием для проведения экспертизы могут быть следующие причины: утеря паспорта от прибора, сомнения в точности передаваемых показаний или проведение ремонта прибора.
Различают также счётчики по типам:
- Индукционные или электромеханические. Обладают высокой погрешностью и возможностью несанкционированного подключения соседей, поэтому постепенно вытесняются с рынка. Могут быть как однофазными, так и трёхфазными. Но всегда однотарифные.
- Электронные. Показания выводятся на электронный дисплей. Счётчики данного типа выпускаются как однотарифные, так многотарифные и обладают повышенной точностью измерения.
- Гибридные или электродинамические. Встретить данный тип прибора учёта можно крайне редко. Устанавливается чаще всего на электричках или электрифицированных железных дорогах.
Однофазные счётчики
В двухпроводной сети, где имеется переменный ток и напряжение в 220 V, устанавливаются простые приборы учёта, относящиеся к однофазным видам. Обычно данное оборудование можно встретить в жилых помещениях, большей части административных зданий, офисах, гаражах и торговых центрах. Общепринятая маркировка приборов с одной фазой – “ОС”.
Справочные сведения по отдельным однофазным счётчикам электроэнергии:
| Тип ПУ | Номинальный ток, А | Количество цифр счётного механизма | Класс точности | МПИ (лет) |
|---|---|---|---|---|
| Индукционные | ||||
| СО-1 | 10 | 4 | 2.5 | 8 |
| СО-193 | 10-40 | 5 | 2.5 | 16 |
| СО-2 | 10 | 4 | 2.5 | 16 |
| СО-2 | 5 | 4 | 2.5 | 16 |
| СО-5 | 5-15 | 4 | 2.5 | 16 |
| СО-505 | 10-40 | 5 | 2 | 16 |
| СО-50 | 10-40 | 4 | 2.5 | 16 |
| СО-И445 | 10-40 | 5 | 2 | 16 |
| СО-И449, СО-И449М1-1, СО-И449Т, СО-И449МТ | 10-40 | 5 | 2 | 16 |
| СО-ЭЭ6705 | 10-40 | 4 | 2 | 16 |
| Электронные | ||||
| ЦЭ6807А-1, ЦЭ6807А-2 | 5-50 | 5 | 2 | 6 |
| СО-Ф663 | 5-50 | 5 | 2 | 5 |
| СОЭБ-1 | 10-50 | 5 | 2 | 6 |
Трёхфазные счётчики
Данный тип измерительного оборудования предназначен для использования в помещениях с трёх- и четерёхпроводных сетях, где напряжение достигает 380 V при переменном токе в 50 Гц. Трёхфазные приборы более точные, чем однофазные. Из-за их технических характеристик применяются данные счётчики на промышленных предприятиях или зданиях, где повышено потребление электроэнергии.
А также трёхфазные счётчики монтируют на объектах, где отсутствует нулевой провод. В этом случае берут трёхпроводной прибор. А если существует нулевой провод, то устанавливается четырёхпроводной счётчик. Принятая маркировка данного типа измерительного энергооборудования – “СТ”.
| Тип ПУ | Номинальный ток, А | Количество цифр счётного механизма | Класс точности | МПИ (лет) |
|---|---|---|---|---|
| Индукционные | ||||
| СА4У-И672М | 3х5 | 4(5) | 2 | 4 |
| СА4-И672М | 3х10 | 4 | 2 | 8 |
| СР4У-И673М | 3х5 | 4 | 2 | 4 |
| СА4-И45 | 3х10 | 4 | 2 | 4 |
| СА4У-И682 | 3х5 | 5 | 1 | 4 |
| Т-2СА43 (Румыния) | 5(20) | 6 | 2 | 4(8) |
| HN4-CA4 (Польша) | 3х25-50 | 5 | 3 | 8 |
| MODC-5200 (Польша) | 3х5 | 5 | 2 | 4 |
| ДН-4 (Венгрия) | 3х5-25 | 5 | 2 | 8 |
| А1Т-4-0000Т (Венгрия) | 5-24 | 4 | 2 | 8 |
| СА3У-И687 | 3х5 | 4 | 1 | 4 |
| СА3У-И681 | 3х1 | 4 | 1 | 4 |
| Электронные | ||||
| СЭТ4-1 | 3х(5-60) | 6 | 2 | 6 |
| СЭТАМ-005, СЭТАМ-005-01 | 5-7,5 | ЖКИ | 1 | 6 |
| СЭТ3а-02-04 | 5-50 | 6 | 1 | 6 |
| СЭТ3а-01-02 | 5-7,5 | 5 | 1 | 6 |
| СЭТ3а-01П-27, СЭТ3р-01П-30 | 5-7,5 | 5 | 0.5 | 6 |
| ЦЭ6805 | 3х(1-1,5) | 3 | 0.5 | 6 |





































