Туалет на даче из поддонов – схема + фото по шагам
Если на дачном участке откуда-то появилось несколько не нужных поддонов, то это прекрасный материал для строительства своими руками уютного туалета. По размеру они подходят – от 80×120 до 120×120 см.
Конечно, в первую очередь пошаговая инструкция предусматривает устройство фундамента. Одни мастера предпочтут залить ленточный фундамент, а другие – обычный столбчатый из бетонных блоков или кирпичей. Второй вариант дороже, зато не нужно ждать, пока бетон наберет прочность.
Первый поддон с прорезанным отверстием укладывается на фундамент и послужит основанием для всей постройки.
Если вам не нравятся щели между рейками, то их всегда можно аккуратно снять и повторно прибить, подгоняя более плотно и добавив несколько новых от других поддонов.
Построить стены совсем не сложно. С поддонов нужно удалить поперечные перемычки и поставить их один на другой на попа. Затем каркасы соединяют между собой рейками, брусками или металлическими скобами. Таким образом несложно изготовить четыре стены.
Под дверной проем необходимо пропилить отверстие в одной из стен. По периметру его обязательно нужно усилить брусом – подойдет каркас, удаленный с паллет, которые пошли на стены. Кстати, выпиленный кусок также можно усилить, навесить на него петли и получится готовая, подходящая к данному туалету, дверь. Также в стенах стоит проделать несколько небольших отверстий для вентиляции.
Если форма паллет не подходит для строительства стен, то их следует просто разобрать своими руками. Из бруса собирается каркас, который тут же обшивается рейками.
Следующий этап – создание крыши. Если под рукой есть кусок поликарбоната от теплицы, то ничего лучшего и не найти. В верхней части стен фиксируется ещё один поддон – с него убирается большая часть реек. А поверх укладывается поликарбонат – подойдет как цветной, так и прозрачный. Зафиксировать его нужно шурупами с шайбами или широкими шляпками. В результате вы получаете водонепроницаемую и хорошо пропускающую свет крышу.
Осталось только собрать рундук – тот самый “постамент”, на котором предстоит восседать, делая то, что обычно делают в дачном туалете. К стенам крепится несколько брусков, которые обшиваются рейками. Для удобства можно также уложить пластиковое сиденье – в магазинах оно стоит всего несколько сотен рублей.
Туалет из поддонов готов! Наверняка фото, показывающие пошагово весь процесс строительства, облегчат для вас эту работу.
Видео
Временный туалет на дачном участке
Если полноценный туалет на даче планируется построить позже, то временный вариант клозета станет отличным решением. Чаще всего такие модели сооружают во время строительства дома.
Временный туалет на даче можно соорудить из:
- фанеры;
- досок;
- гипсокартона;
- любых материалов, оставшихся после стройки.
Строится такой туалет на даче так же, как и постоянный. Но требования к теплоизоляции и комфортабельности сильно снижены, ведь эта уборная создается на короткое время. Емкость для нечистот – большое ведро или бочка, частично вкопанные в землю. А когда они заполнятся, можно будет построить садовый туалет для дачи своими руками на постоянной основе.
А какой туалет у вас?
Как правильно построить деревянный туалет на даче своими руками
Виды туалетов
Простота конструкции позволяет обустроить туалет на даче своими руками чертежи, и типоразмеры которого, можно изучить в каталогах фирм или рассчитать самому. Древесина самый популярный и доступный материал, простой в обработке и не требующий специального инструмента для постройки. Сама конструкция состоит из каркаса, обшитого доской и накрытого кровельным материалом.Построить дачный туалет своими руками просто, для этого не нужно производить сложных расчетов, достаточно знать стандартные размеры, изучить инструкцию по сооружению, подготовить материал и инструмент и начать отстраивать санузел.
Схема и проект деревянного туалета для дачи
Готовый собранный туалет из дерева на даче

Простая конструкция дачного туалета
Стоит отметить, что соорудить домик это половина дела, вторая половина заключается в создании специального резервуара для утилизации отходов. Есть несколько категорий туалетов, которые различаются по принципу переработки отходов.
Виды деревянных туалетов для дачи
Дачный туалет со стульчаком и душем
Создание дачного туалета со стульчаком и душем своими руками — это комплексное решение, которое позволяет вам оптимизировать пространство и обеспечить комфортное использование дачи. Давайте подробно рассмотрим этот процесс.
Выбор места и проектирование
Прежде всего, вам необходимо выбрать подходящее место для установки туалета. Это должно быть место, доступное для всех, но при этом обеспечивающее некоторую степень приватности и удаленность от мест общего пользования.

Следующим шагом будет создание проекта вашего туалета. Проектирование поможет вам определить размеры конструкции, место расположения санитарного оборудования и двери, а также предусмотреть необходимую вентиляцию и дренирование.
Строительство каркаса
После разработки проекта вы можете приступить к строительству каркаса туалета. Материал для каркаса можно выбрать исходя из ваших предпочтений и бюджета, это может быть дерево, кирпич, металл или профнастил
Важно, чтобы каркас был прочным и обеспечивал устойчивость конструкции

Установка санитарного оборудования
Следующим этапом является установка санитарного оборудования: туалетного стульчака и душевой кабины. Учтите, что для душа потребуется подведение воды и система дренирования.
Отделка и декор
После установки всего необходимого оборудования, вы можете приступить к внутренней и внешней отделке вашего туалета. Выбирайте материалы, которые будут устойчивы к влаге и легки в уходе. Также не забудьте о вентиляции, чтобы предотвратить образование конденсата и неприятных запахов.




В целом, создание дачного туалета со стульчаком и душем своими руками — это проект, который требует некоторых навыков и времени, но результат, безусловно, стоит усилий. Такой туалет не только улучшит уровень комфорта на даче, но и сделает пребывание на природе более приятным и беззаботным.

Будьте творческими, используйте доступные материалы и создайте функциональное и удобное пространство, которое будет служить вам и вашим гостям на протяжении многих лет.
Как сделать туалет из досок для дачи с выгребной ямой
Строим туалет на дачном участке из профнастила
Процесс изготовления дачного туалета из профнастила аналогичен технологии изготовления кабинки, обшитой досками.
Отличие заключается в том, что для изготовления каркаса чаще всего используется металлопрофиль с размером поперечного сечения 40 на 40, 20 на 20 и 40 на 20 мм. Толщина материала труб 2 мм.
Процесс изготовления выглядит следующим образом:
1. Элементы каркаса отрезаются в размер и свариваются между собой. Для обеспечения достаточной жесткости и прочности в углах привариваются косынки; При отсутствии сварочного аппарата допустимо болтовое соединение. Каркас грунтуется и окрашивается;
2. Собранный каркас устанавливается на предварительно подготовленное основание и обшивается листами профнастила;
3. Укладываются половые доски подходящей толщины;
4. Формируется двухскатная кровля. Для этого сначала монтируется обрешетка, а затем крепится выбранный кровельный материал;
5. Фронтоны зашиваются поликарбонатом. Они будут использоваться в качестве окон. Основание обшивается плоским шифером.
Строим деревянный туалет с выгребной ямой пошаговая инструкция
Для постройки дачного туалета с ямой своими руками потребуются такие материалы и инструменты:
- рубероид;
- песок;
- бетонные бордюры;
- доска – вагонка и обрезная;
- электролобзик;
- заранее подготовленная дверь с ручкой и завесами;
- оцинкованный металлопрофиль;
- брус деревянный;
- шурупы, гвозди;
- уровень строительный;
- краска.
В списке не учтены материалы для отделки стен и утеплитель.
Копаем котлован под яму
Обустройство своими руками котлована для ямы с кирпичными стенками выполняется в несколько этапов:
- Выкапывается котлован прямоугольной или квадратной формы. Объем выгребной ямы можно принять «на глаз» с учетом количества постоянно пользующихся туалетом людей.
- На дне отсыпается и утрамбовывается дренирующая подушка из речного песка толщиной 15-20 см.
- Укладываются кирпичи, на них – армирующая сетка.
- Насыпается щебень, заливается бетонная стяжка толщиной 15 см.
- Под кирпичные стенки обустраивается фундамент из цемента и арматуры.
- После застывания бетона (примерно 10 дней) выкладываются кирпичные стены.
- Получившаяся конструкция накрывается бетонной плитой с отверстием под люк.
Выгребная яма для дачного туалета
Строим каркас туалета
Следующий этап – монтаж перекрытия на расстоянии 20 см от границ ямы. По углам ее вкапываются бетонные бордюры так, чтобы они выступали на 15 см выше поверхности земли.
Основание каркаса уличного туалета
Здесь необходимо следить за ровной установкой элементов – для этого можно использовать строительный уровень. На поверхности бордюров укладывается гидроизоляция из рубероида – всего требуется 4-5 слоев.
Сборка каркаса
При постройке своими руками деревянного туалета для дачи доски необходимо обработать составом, предотвращающим гниение.
Сборка каркаса
Сборка осуществляется в такой последовательности:
- Сооружается прямоугольное основание из бруса. Углы соединяются с помощью саморезов.
- По углам монтируются вертикальные элементы.
- Верхняя часть стоек связывается под будущую кровлю.
- В передней части оборудуется дверной короб: устанавливаются две стойки и сверху связываются поперечиной.
Обшивка и возведение крыши
Обшивка сделанного каркаса туалета выполняется вагонкой или обрезной доской. Крепление элементов осуществляется с помощью гвоздей или саморезов.
Для обустройств пола используются доски толщиной не менее 40 мм.
Обшивка и возведение крыши дачного туалета
Затем оборудуется крыша:
- На верхнюю обвязку устанавливается обрешетка из реек или досок.
- На обрешетку укладывается гидроизоляционная пленка и закрепляется гвоздями через рейки.
- Укладывается кровельный материал – гибкая черепица, шифер, профнастил.
Устанавливаем двери
Из бруса сколачивается прямоугольный каркас по размерам имеющейся коробки. Дверь обшивается доской либо вагонкой и устанавливается на завесы.
По желанию в двери можно устроить небольшое окошко и застеклить его.
Делаем стульчак
Для устройства каркаса под стульчак с правой и левой сторон размещаются две поперечины. Снизу к полу и сверху к поперечинам крепятся стойки, в верхней их плоскости соединяются еще одним поперечным элементом, располагающимся перпендикулярно к горизонтальным стойкам.
Деревянный стульчак
Далее на построенном каркасе закрепляются доски. В верхней части карандашом или маркером наносятся контуры будущего туалета. Просверливается небольшая дырка, в которую помещается полотно электролобзика. По намеченному контуру выпиливается полное отверстие.
Сверху ставится доска для унитаза и закрепляется гвоздями либо саморезами.
Вытяжная вентиляция
Обустройство вентиляции – заключительный этап строительства дачного туалета своими руками. Она требуется, чтобы не допустить распространения неприятных запахов по всему участку.
Вытяжная вентиляция
Естественная вентиляция обеспечивается через незастекленное окошко с небольшим козырьком – он нужен, чтобы листья и иной мусор не попадал внутрь.
Самый простой вариант – установка трубы. Один ее край помещается внутри домика, второй выводится наружу и располагается на 0,5-1,0 м выше крыши.
Выбор типового проекта
Большой выбор материалов и вариаций обустройства дачного туалета своими руками приводит людей к раздумьям. Что выбрать? Как раз для этого следует изучить теорию. Предлагаем помочь в этом. Для начала разберем типовые проекты туалета для дачи.
Наиболее популярными проектами являются следующие:
- Сооружение с выгребной ямой;
- Пудр-клозет;
- Биотуалет.
У каждого проекта имеются свои достоинства. Посмотрим.
Туалет с выгребной ямой
В этом варианте основным моментом будет обустройство выгребной ямы. Процесс ее обустройства мы уже разбирали, ссылка после статьи. Здесь скажем, что выполнить ее можно из кирпичей или просто поставить металлическую или пластиковую бочку.

Стандартный размер выгребной ямы. Ширина – 150 см. Длина – 150 см. Глубина – от 1 до 3 метров.
При обустройстве ямы следует предусмотреть необходимость ее откачки спецтранспортом. Особенностью проекта будет то, что все отходы будут собираться в ней. Рано или поздно потребуется очистка. Это один из недостатков.
Другой возможной проблемой может стать наличие неприятного запаха. Этот момент тоже следует продумывать заранее. А именно обустройство вентиляции.
Вентиляцию можно сделать искусственную и принудительную. Первый вариант делается просто. Требуется сделать по 2 небольших отверстия вверху и внизу сооружения. В итоге будет происходить естественная циркуляция воздуха и удаление запаха. Другим вариантом будет установка вентиляционной трубы позади сооружения. Как это сделать рассматривали в статье про технологию возведения дачного туалета.
Можно проработать второй вариант вентилирования. Потребуется просто установить электрический вентилятор, который будет выдувать все запахи. Однако при его установке нужно позаботиться о притоке воздуха, если помещение будет получаться герметичным, без естественного притока воздуха. В этом случае нужно сделать отверстие. Его диаметр должен быть аналогичен диаметру вентилятора.
Пудр-клозет
Еще один вариант дачного туалета своими руками. Для него выгребной ямы не нужно. Все скапливается в установленном под стульчаком резервуаре. Оптимальным устройством будет наличие двух емкостей различного размера. Меньшая должна иметь несколько разного размера отверстий. В нее помещается емкость побольше, у которой на боку делается круглое выходное отверстие. Оно необходимо для подключения дренажного шланга. Шланг потребуется для вывода жидкости в землю.

Можно сделать проще. Поставить просто ведро, которое при наполнении опорожнять. В этом случае при разработке проекта следует продумать возможность беспроблемного удаления емкости. Здесь два варианта. Первый – удаление ведра из-под стульчака. Второй – сзади постройки делается проем с дверью.
Для сдерживания неприятных запахов применяют наполнители. Чаще всего это торф. После полного заполнения емкости с наполнителем его просто выкидывают на компостную кучу.
Биотуалет
Этот вариант дачного туалета своими руками не предполагает никакой работы. Вы просто приобретаете подходящее сооружение и устанавливаете в удобном месте.
В биотуалетах тоже используются различные наполнители, например, торф или опилки. Они будут помогают преобразовывать нечистоты в удобрения. Это позволяет решить сразу две задачи.
- Не задумываться об очистке выгребной ямы;
- Не решать, куда девать отходы. Их можно применять, как удобрение.
Эти два фактора существенно облегчают обслуживание туалета. Однако отходы не стоит нести сразу на грядку. Они должны еще перегнить на компостной куче.

Подобные туалеты экологичные. У них нет неприятного запаха. Поэтому его вполне можно разместить возле дома. Отдельные предназначены даже для установки в доме.
Производятся в двух видах:
- Пластиковая кабинка с емкостью для отходов;
- Отдельное сидение с контейнером.
Среди последних моделей можно найти совмещенные с душевой кабинкой.
Особенности строительства туалета на даче своими руками из разных материалов: чертежи и фото готовых строений
Построить туалет на участке можно из любых материалов, кроме того, это прекрасный способ утилизировать остатки, которые остались после возведения жилого дома.
Как построить туалет на даче своими руками из металла
Для каркаса клозета из металла можно взять уголки, а обшивку выполнить из древесины или любых иных надёжных аналогов. Строительство состоит из следующих этапов.
- Для жёсткого каркаса нам понадобятся асбестоцементные трубы, обработанные с внешней стороны битумной мастикой, которая защитит поверхность от разрушения. Их необходимо вкопать по углам строения на глубину до 70 см.
- Заполнить трубы на треть бетоном.
- Вставить по центру каждой трубы металлические уголки строго вертикально и дополнить трубы бетоном для надёжной фиксации.
- Сварить каркас из вертикальных опор и горизонтальных перемычек. Для них подойдут стальные уголки 50×50 мм². Необходимо предусмотреть уклон крыши от 10º до 30º.
- Установить на основание каркас и соединить сваркой или болтами все элементы.
- Обработать весь металл от коррозии.
- Обшить каркас и кровлю профнастилом при помощи саморезов по металлу с прорезиненными шайбами.
- Можно дополнительно утеплить каркас пенопластом толщиной до 30 мм.
- Внутреннюю отделку можно выполнить любым материалом, в том числе и деревом.
- Для пола подойдёт шлифованная доска толщиной до 50 мм. Обязательно следует сделать подиум.
- Для дверного каркаса подойдут стальные уголки или брус.
- Обработать древесину защитными пропитками.
ФОТО: apsheronsk.reklama-kuban.com
ФОТО: tosno-stroy.ru
ФОТО: ua.all.biz
ФОТО: krov-torg.ru
На видео можно более подробно ознакомиться с процессом строительства туалета из профнастила:
Watch this video on YouTube
Туалет на даче своими руками из кирпича: чертежи, размеры
Если вы решите использовать туалет не только летом, но и в холодный период, кирпич – это лучшее решение. Кроме того, он, в отличие от древесины, прослужит не один десяток лет. При желании, клозет можно дополнительно утеплить. Получится настоящее капитальное строение.
Туалет, построенный из кирпича, чертежи, схемы и фото которого представлены в нашей галерее, имеет крышу с небольшим уклоном. Её обязательно нужно вывести за периметр каркаса на расстояние около 150 мм.
ФОТО: rukozhopim.ru
ФОТО: rukozhopim.ru
ФОТО: beton021.ru
ФОТО: svoimi-rykami.ru
Весь процесс строительства ямы и туалета из кирпича можно посмотреть на видео:
Watch this video on YouTube
Деревянный туалет для дачи своими руками: чертежи и размеры
Если вы планируете построить отхожее место из древесины, её обязательно следует обработать защитной пропиткой. Брус сечением не менее 40×60 мм используют для каркаса, в качестве обшивки подойдёт любой материал. Мы подобрали несколько интересных чертежей с размерами, которые можно взять на вооружение.
ФОТО: hozferma.ru
ФОТО: beton021.ru
ФОТО: vashbiotualet.ru
ФОТО: pinterest.ru
Как своими руками сделать основание из бетона для туалета на даче: размеры, чертежи
Многие владельцы предпочитают покупать готовые кабинки из дерева, для которых потребуется сделать фундамент с ямой самостоятельно. Основание из бетона – это лучшее решение, оно прослужит не один десяток лет. В зависимости от размета туалета, наличия дополнительных пристроек и типа грунта, можно выбрать один из наиболее удобных вариантов.
ФОТО: remontiruj-info.ru
ФОТО: stroypomochnik.ru
ФОТО: nedvigdom.ru
ДЕЛАЕМ ВЫГРЕБНУЮ ЯМУ
Размер ямы имеет важное значение при строительстве дачного туалета. Чем больше её объём, тем дольше она будет заполняться
Планируете, что яма будет выгребной, предусмотрите лючок для откачки отходов
Если недалеко находится колодец или установлена насосная станция водоснабжения, стенки и дно выгребной ямы необходимо герметизировать
Планируете, что яма будет выгребной, предусмотрите лючок для откачки отходов. Если недалеко находится колодец или установлена насосная станция водоснабжения, стенки и дно выгребной ямы необходимо герметизировать.
Первым делом нужно очистить площадку от мусора, кустов, деревьев. Мы вырыли выгребную яму шириной 1 м , длиной 1,2 м, глубиной 2 м.
Чтобы земля из ямы не загромождала строительную территорию, её плодородную часть на садовой тележке отвезли на огород, глину — в ближайшую канаву.
Теперь нужно укрепить стенки ямы. Для этого взяли плоские листы шифера, шириной 1 на 2 м, болгаркой нарезали их по размеру стенок и опустили вниз. Чтобы листы не падали, мы подготовили несколько небольших уголков из арматуры, пробили дырки в шифере и забили уголки в стену ямы, закрепив тем самым шифер. В щели между стенками ямы и листами шифера положили прутки арматуры, уложили лист рубероида для гидроизоляции, затем залили цементный раствор. Перед этим нужно распереть листы шифера деревянными брусками. На дно ямы положили лист старого железа, чтобы защитить землю от нечистот. Накроем выгребную яму плёнкой от дождя и приступим к установке столбчатого фундамента.
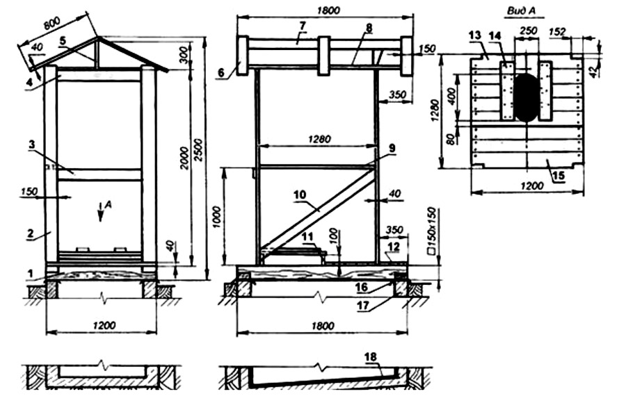
Размеры дачного туалета
В соответствии со строительными нормативами подсобные помещения, в число который входит туалет, должны занимать не более 20 % площади дома. Совмещенный с ванной санузел занимает обычно от 3,8 м², а отдельный туалет от 1,5 м².
Поскольку в дачном деревянном доме редко бывает лишнее свободное место, ориентируются на минимально допустимые размеры. В отдельно стоящем деревенском туалете действует тот же принцип минимализма. Размеры берут такие, чтобы человек в нем не чувствовал себя стесненно. Достаточно 1 м в ширину, 1,2-1,5 м в глубину и около 2,1-2,2 м в высоту.
Фото: размеры простого деревенского туалета
Материалы и инструменты
Выбор материалов для строительства туалета на дачном участке во многом определяется выбором типа утилизатора. Например, при установке выгребной ямы, вам понадобятся кирпич, цемент, бетонные кольца или пластиковые резервуары – в зависимости от того, что вы выбрали. Для строительства каркаса домика понадобятся:
- брус с сечением 100х100 или 100х50 мм длиной 3 м для рамы и вертикальных стоек домика,
- брус 50х50 мм для «подиума» или ступени, на которой будет установлено сидение внутри,
- ДСП, доски, вагонка или другой материал для внутренней и наружной обшивки,
- Рубероид и шифер или профнастил для крыши.
На фото готовый деревянный туалет на участке
Не следует также забывать о том, что для стационарной конструкции необходим фундамент – ленточный (потребуется цемент для раствора) или столбчатый (цемент или кирпич), а также гидроизоляция (рубероид или другой аналогичный материал), предотвращающая соприкосновение конструкции и каркаса для того, чтобы минимизировать возникновение гниения.
Для вентиляции потребуется пластиковая труба диаметром 100 мм.
Для комфорта использования хорошо также установить в дачном туалете освещение – подвести электропроводку и смонтировать светильник или, как минимум, снабдить сооружение аккумуляторным фонарем.
Деревянный туалет без выгребной ямы
Обустройство выгребной ямы своими руками является наиболее простым и эффективным способом реализации канализации. Однако это невозможно сделать, если выполняются такие условия:
- грунт сланцевого или известнякового вида;
- Уровень воды в земле составляет более 3 метров;
- дачу посещает большое количество людей, следовательно, планируется значительная нагрузка.
В подобной ситуации единственным выходом станет возведение уличного дачного туалета без сливной ямы. Существуют следующие разновидности данного типа:
- пудр-клозет;
- люфт-клозет;
- биотуалет.
Пудр — клозет в большинстве случаев монтируется, когда на участке высокий уровень подземных вод. Как правило, резервуар располагается под унитазом и имеет небольшой объем (до 18-20 л).
Основной принцип работы: стоки покрываются порошкообразным составом (чаще всего, с торфяной массой), который препятствует появлению и распространению неприятного запаха. После подобной обработки нечистоты перемещаются в компост.
Главным преимуществом данного вида уличного туалета без выгребной ямы является простота строения и небольшие расходы на возведение.
- Смотровое окошко.
- Крышка стульчака.
- Стульчак
- Накопительная емкость.
- Входная дверь
- Подкладка под опорные лаги
- Выгреб
- Вентиляционное окно
Люфт-клозет отличается полностью герметичной емкостью, где находятся нечистоты и сливные воды. Стоки в таком туалете не попадают в почву, поэтому не способны загрязнять окружающую среду.
Потребуется обеспечивать периодическое очищение, вызывая ассенизаторскую спецтехнику. Строение люфт-клозета предполагает, что основная накопительная емкость может располагаться на некотором расстоянии от верхней кабинки, поэтому такой туалет достаточно часто размещают в здании.
Недостатком является отсутствие возможности использования постройки в зимний период, т.к. стоки замерзают и их сложно откачивать. Решением становится монтаж специальной подогревающей системы.
Биотуалеты достаточно часто устанавливаются на даче. Их принцип функционирования похож на работу пудр — клозета, обработка отходов также осуществляется торфом. В некоторых случаях используются биологические препараты, содержащие микроорганизмы, которые ускоряют переработку, либо химические средства.
Плюсы и минусы выгребной ямы
Преимущества возведения своими руками туалета с выгребной ямой:
- возможность создать фильтрационную систему, которая способная самостоятельно избавляться от стоков и нечистот. Благодаря этому не требуется регулярно вызывать ассенизаторскую машину и обеспечивать подъезд к яме;
- можно эксплуатировать подобный туалет круглый год.
Недостатки:
- требуется больше времени на постройку и оборудование слива;
- монтаж и создание ямы для туалета стоит дороже;
- возможно загрязнение грунта при высоком уровне подземных вод.
Достоинства дачного туалета, построенного самостоятельно, без сливной ямы:
- мобильность, позволяющая без проблем перемещать строение, а также размещать резервуар на некотором расстоянии от кабинки;
- возможность возведения при близком расположении грунтовых вод к поверхности;
- простой монтаж;
- менее строгие требования к расположению на участке, в частности, к расстояниям до источников воды, т.к. герметичная система не приводит к загрязнению окружающей среды;
- если необходимо, постройку можно легко разобрать или полностью убрать.
Недостатки подобных туалетов:
- вероятность распространения зловония. Это касается не всех разновидностей туалетов (если переработка происходит с использованием торфа, такая проблема не возникает). Неприятный запах быстро появляется из-за малого объема резервуара, где хранятся стоки и отходы. Решение проблемы – сооружение системы принудительной вентиляции;
- необходимость регулярного устранения наполнения резервуара. Это делается ассенизаторской техникой либо обеспечивается полная переработка и перемещение отходов в компост;
- невозможность использования в зимний период.
Туалет на даче без запаха и откачки. Тёплый туалет. Построить туалет. Дачный туалет
- Покровский Б.С. «Основы слесарных и сборочных работ» 2015 год
- Посохин В. И. «Аэродинамика вентиляции» М. 2008 год
- Метельков В.И. «Подготовка инструмента к работе» Кострома
Изготовление
Когда под туалет выбран участок, вы определились с типом системы утилизации отходов, а также придумали, какой будет надземная конструкция туалета – можно приступать к процессу. Далее мы расскажем и покажем на фото и видео, как поэтапно построить туалет с выгребной ямой на даче своими руками, используя чертежи с размерами.
В целом процесс можно разделить на такие шаги:
- Выкапываем выгреб.
- Закладываем фундамент.
- Сооружаем домик.
Для работы будем использовать следующий чертеж (параметры вы можете менять под свои потребности):
Чертеж.
Выгребная яма
Для работы могут потребоваться следующие инструменты:
- лопаты;
- уровень и рулетка;
- ручной бур;
- молоток;
- шуруповерт;
- шлифмашинка;
- лом/бур;
- лобзик.
Из материалов будем использовать:
- песок;
- цемент;
- щебень;
- арматура и металлическая сетка;
- плотная полиэтиленовая пленка.
Инструкция по обустройству ямы:
- Определите форму выгреба в соответствии с проектом туалета. Обычно это круглая или квадратная форма, может быть прямоугольной.
- При использовании накопительного резервуара правильно определите его расположение – входное отверстие должно располагаться на месте стульчака, второе – выходит за пределы постройки. В таком случае выгреб роется по форме емкости, прибавляя по 30 см с каждой стороны.
- На дно выгреба помещается толстый дренажный слой из крупных камней, кирпича.
- Укрепляем стенки выгреба. С этой целью фиксируем к ним сетку-рабицу и армирующую решетку. Для закрепления можно воспользоваться металлическими штырями.
- Стенки бетонируем слоем 5-10 см и дожидаемся полного высыхания. После оштукатуриваем.
- Сверху устанавливаем плиту перекрытия – она же будет служить фундаментом.
- Сверху на яму укладываем деревянные брусья, предварительно пропитанные защитным раствором. Можно вместо них использовать бетонные столбы. Эти конструкции нужно углубить по уровень земли.
- Поверхность застилается полиэтиленом, под люк и сидение оставляются отверстия и обрабатываются опалубкой.
- Сверху на пленку укладываем решетчатый каркас, заливаем все бетоном и дожидаемся высыхания. Готово, остается построить домик.
Устройство ямы.
Также читайте: выгребная яма без откачки.
Если планируется построить простой, дешевый туалет для редкого использования, яму можно обустроить покрышками. Пошаговый алгоритм действий простой:
- Выройте углубление по форме покрышек, прибавив 20 см в диаметре.
- Дно засыпьте щебнем, слоем 20 см.
- По центру выложите покрышки одна на другую, верхняя должна равняться с почвой.
- Пространство по бокам засыпьте песком и гравием, тщательно уплотняя слои.
- Сооружаем фундамент. По периметру вырываем углубление на 0,5 м. Заполняем его песком и щебнем по 10 см.
- Перекрываем полиэтиленовой пленкой.
- Создаем каркас. Для этого используем кирпичи, заливая цементом, либо арматуру с цементом.
- После высыхания бетона его нужно оштукатурить, покрыть рубероидом и поставить домик.
Яма из покрышек.
Если выгреб обустраивается при помощи бочки, алгоритм действий идентичный.
Выгреб из бочки.
Домик
Теперь приступаем к довольно творческой части – сооружению домика. Расскажем и покажем пошагово на фото с чертежами процесс изготовления дачного туалета своими руками.
Совет: постарайтесь делать конструкцию максимально легкой, чтобы грунт по максимально долго не проседал.
Конструкция домика может быть самой разной – «теремок», «шалаш», «мельница», «домик».
Виды туалетных домиков.
На фото ниже изображен черте простой конструкции теремка.
Чертеж домика туалета.
Для сооружения «шалаша» используйте следующий чертеж:
Чертеж конструкции типа шалаш.
Для простой кабинки («скворечник») воспользуйтесь этим чертежом:
Прямоугольная туалетная кабинка.
Изготовление максимально простое. По схеме необходимо сделать каркас из брусьев, оббить его досками. Далее уложить кровельный материал, поставить окна и двери. В завершение необходимо сделать внутреннюю отделку, оклеив стены обоями или покрасив краской.
Совет: сам стульчак необходимо приобрести из пластика с прямым отверстием. Устанавливать обычные керамические городские модели нельзя по причине их большого веса, а также внутреннего уклона для смыва.
Деревянный туалет внутри.
Таким образом, вы узнали, как построить уличный туалет на даче своими руками, используя для этого чертежи с размерами, фото и видео. Как видите, этот процесс несложный, но к обустройству стоит подойти ответственно, ведь постройка на долгое время определит комфорт пребывания на загородном участке.
Видео: дачный туалет своими руками.
Виды туалетов
Легче всего построить туалет для дачи своими руками деревянный — чертежи таких конструкций найти не сложно, а в некоторых случаях достаточно бывает и пошаговой инструкции без иллюстраций. Тем не менее, красивого и надежного домика недостаточно для обеспечения комфорта
Важно позаботится об утилизации отходов. С этой точки зрения существует несколько вариантов дачного туалета
Люфт-клозет
Люфт-клозет устроен таким образом, что отходы из унитаза перемещаются самотеком , собираясь в приемнике, который очищают по мере наполнения. Обычно перемещению отходов способствует наклонный пол резервуара, имеющего расширяющуюся по направлению от унитаза форму. Преимуществом такой конструкции является возможность без строительства полноценной канализационной системы установить унитаз в теплом помещении в доме, а резервуар вынести за его пределы, чтобы избежать появления запаха. Часть люфт-клозета, находящаяся снаружи, оснащается крышкой, через которую производится очистка ассенизаторской машиной. Для обеспечения теплоизоляции она выполняется герметичной и многослойной (например, из металла и дерева с «прослойкой» из теплоизоляционного материала). Недостаток люфт-клозета в том, что он встраивается в несущую стену, а значит, его обустройство лучше выполнять на этапе возведения дома.
На фото схема люфт-туалета
Пудр-клозет
Пудр-клозет имеет накопитель, в котором отходы чередуются со слоями засыпки («припудриваются»). В качестве такой засыпки используют опилки, торф, золу или смесь этих компонентов. Засыпку выполняют после каждого визита в туалет. У покупных моделей за распределение сыпучей смеси отвечает специальный распределитель. В самодельных используют обычное ведро или другую емкость с совком, которые устанавливают в туалете.
Преимуществом пудр-клозета являются:
- возможность использовать содержимое накопителя дачного туалета для получения органического безопасного удобрения (для этого при наполнении резервуара его выгружают в компостную яму для дозревания),
- решение вопроса утилизации (нет необходимости вызывать ассенизаторскую машину),
- минимум земляных работ (они потребуются только для сооружения фундамента постройки, резервуар помещается на поверхности),
- возможность устройства компактных переносных моделей туалетов, которые можно заносить в дом (например, на основе обычного ведра).
Чертеж деревянного пудр-клозета с размерами по типу «шалаш»Чертеж дачного туалета вида пудр-клозет из профнастила по типу «скворечник»
Биотуалет
Биотуалетами называют сооружения, в которых отходы проходят переработку. В процессе разложения содержимое резервуаров превращается в равномерный по консистенции ил, безопасный, занимающий меньше места (а значит, реже требующий опорожнения резервуара) и удобный для откачки. Для того, чтобы обеспечить реакцию разложения, в заводских биотуалетах используются наполнители, в качестве которых могут выступать:
- торфяная смесь,
- химически активные реагенты,
- биопрепараты (сухие или в виде жидкостей), представляющие собой колонии бактерий определенного вида.
Биотуалет можно использовать как в отдельном уличном домике, так и в доме
Туалеты с выгребными ямами
Дачный туалет с выгребной ямой – это своеобразная классика. Не самый удобный, но наиболее простой и дешевый вариант. Все отходы собираются в накопителе, который периодически очищается при помощи ассенизаторов. В некоторых случаях заполненную выгребную яму засыпают землей, перенося домик на другое место. В такой засыпанной яме через некоторое время образуется компост, который можно использовать для удобрения почвы. Наиболее распространенным (хотя и наименее экологичным) является вариант туалета, в котором выгребная яма не имеет дна. Его только засыпают иногда щебнем, гравием или другим материалом, через который осуществляется фильтрация при частичном дренировании содержимого в почву.
На чертеже представлены размеры дачного туалета с выгребной ямой
































