Варианты обустройства выгребной ямы
Вне зависимости от наличия герметичного дна, выгребная яма туалета нуждается в постройке стен. Во-первых, они препятствуют обрушению земли в вырытом котловане. Во-вторых, стенки предотвращают просачивание отходов в верхние слои почвы. Для устройства выгребных ям используют самые разные, специально приобретаемые, оставшиеся от строительства других сооружений или просто доступные материалы. Рассмотрим наиболее распространенные варианты.
Бетонные кольца
Бетонные кольца сочетают прочность, надежность и долговечность лучших строительных материалов с высокой скоростью, с которой с их помощью можно соорудить резервуар требуемого объема. Кольца крепят друг на друге «столбиком» при помощи строительного раствора, герметизируют швы и выполняют гидроизоляцию. Все работы могут быть выполнены за один день. Недостатком варианта является большой вес готовых бетонных изделий. Привезти их на участок, разгрузить и правильно установить без применения специальной подъемной техники невозможно, а это значит, что для строительства туалета потребуются дополнительные расходы.
Монолитный бетон
Для строительства выгребной ямы из монолитного бетона материал легко можно доставить на участок. Раствор приготавливается в бытовой бетономешалке или в любой емкости с использованием дрели-миксера. Перед тем, как приступить к приготовлению раствора, в котловане устанавливают опалубку. Ее можно изготовить из любых доступных материалов (досок, фанеры, металлических листов и пр.). Для придания конструкции большей прочности перед заливкой раствора в опалубке устанавливается армирующий каркас. При большой высоте стен специалисты рекомендуют выполнять заливку поэтапно – не более 50-70 см за один раз. Такой способ требует больше времени, поскольку каждый новый уровень выполняется только после отвердевания нижнего, зато он более практичен и позволяет обойтись меньшим количеством материала для выполнения опалубки.
Пластиковые емкости
Несомненными преимуществами пластиковых емкостей является их герметичность и невосприимчивость к воздействию влаги. Благодаря этим особенностям выгребные ямы дачного туалета, построенные из пластика, долговечны и надежны. Недостатком материала является его гибкость. Пластичность и податливость пластика не дают ему противостоять давлению грунта, поэтому для того, чтобы избежать деформации, стенки укрепляют арматурой и цементным раствором. В этом отношении наиболее удобны еврокубы, которые изначально снабжены наружным каркасом из прочной проволоки. Для упрочнения таких конструкций остается залить промежуток между стенками котлована и пластиковой емкостью строительным раствором. Кроме еврокубов для устройства выгребных ям могут использоваться и другие резервуары из этого материала, например, бочки.
Использование пластиковых еврокубов — недорогой вариант устройства герметичной ямы для туалета
Кирпич
Кирпичная кладка требует времени, однако такое строительство выгребной ямы позволяет придать ей любую форму и соблюсти требуемые размеры. Из кирпича можно выложить резервуар круглой, прямоугольной или квадратной формы. Такой строительный материал целесообразно выбирать, когда в наличии имеются остатки кирпича после строительства других объектов. Для обеспечения прочности стенок достаточно выполнить кладку в пол-кирпича
Чтобы яма туалета имела требуемую герметичность, важно не допускать пропусков на этапе кладки и выполнить оштукатуривание или покрытие гидроизолирующим составом стен после завершения строительства
Изготовление
Когда под туалет выбран участок, вы определились с типом системы утилизации отходов, а также придумали, какой будет надземная конструкция туалета – можно приступать к процессу. Далее мы расскажем и покажем на фото и видео, как поэтапно построить туалет с выгребной ямой на даче своими руками, используя чертежи с размерами.
В целом процесс можно разделить на такие шаги:
- Выкапываем выгреб.
- Закладываем фундамент.
- Сооружаем домик.
Для работы будем использовать следующий чертеж (параметры вы можете менять под свои потребности):
Чертеж.
Выгребная яма
Для работы могут потребоваться следующие инструменты:
- лопаты;
- уровень и рулетка;
- ручной бур;
- молоток;
- шуруповерт;
- шлифмашинка;
- лом/бур;
- лобзик.
Из материалов будем использовать:
- песок;
- цемент;
- щебень;
- арматура и металлическая сетка;
- плотная полиэтиленовая пленка.
Инструкция по обустройству ямы:
- Определите форму выгреба в соответствии с проектом туалета. Обычно это круглая или квадратная форма, может быть прямоугольной.
- При использовании накопительного резервуара правильно определите его расположение – входное отверстие должно располагаться на месте стульчака, второе – выходит за пределы постройки. В таком случае выгреб роется по форме емкости, прибавляя по 30 см с каждой стороны.
- На дно выгреба помещается толстый дренажный слой из крупных камней, кирпича.
- Укрепляем стенки выгреба. С этой целью фиксируем к ним сетку-рабицу и армирующую решетку. Для закрепления можно воспользоваться металлическими штырями.
- Стенки бетонируем слоем 5-10 см и дожидаемся полного высыхания. После оштукатуриваем.
- Сверху устанавливаем плиту перекрытия – она же будет служить фундаментом.
- Сверху на яму укладываем деревянные брусья, предварительно пропитанные защитным раствором. Можно вместо них использовать бетонные столбы. Эти конструкции нужно углубить по уровень земли.
- Поверхность застилается полиэтиленом, под люк и сидение оставляются отверстия и обрабатываются опалубкой.
- Сверху на пленку укладываем решетчатый каркас, заливаем все бетоном и дожидаемся высыхания. Готово, остается построить домик.
Устройство ямы.
Также читайте: выгребная яма без откачки.
Если планируется построить простой, дешевый туалет для редкого использования, яму можно обустроить покрышками. Пошаговый алгоритм действий простой:
- Выройте углубление по форме покрышек, прибавив 20 см в диаметре.
- Дно засыпьте щебнем, слоем 20 см.
- По центру выложите покрышки одна на другую, верхняя должна равняться с почвой.
- Пространство по бокам засыпьте песком и гравием, тщательно уплотняя слои.
- Сооружаем фундамент. По периметру вырываем углубление на 0,5 м. Заполняем его песком и щебнем по 10 см.
- Перекрываем полиэтиленовой пленкой.
- Создаем каркас. Для этого используем кирпичи, заливая цементом, либо арматуру с цементом.
- После высыхания бетона его нужно оштукатурить, покрыть рубероидом и поставить домик.
Яма из покрышек.
Если выгреб обустраивается при помощи бочки, алгоритм действий идентичный.
Выгреб из бочки.
Домик
Теперь приступаем к довольно творческой части – сооружению домика. Расскажем и покажем пошагово на фото с чертежами процесс изготовления дачного туалета своими руками.
Совет: постарайтесь делать конструкцию максимально легкой, чтобы грунт по максимально долго не проседал.
Конструкция домика может быть самой разной – «теремок», «шалаш», «мельница», «домик».
Виды туалетных домиков.
На фото ниже изображен черте простой конструкции теремка.
Чертеж домика туалета.
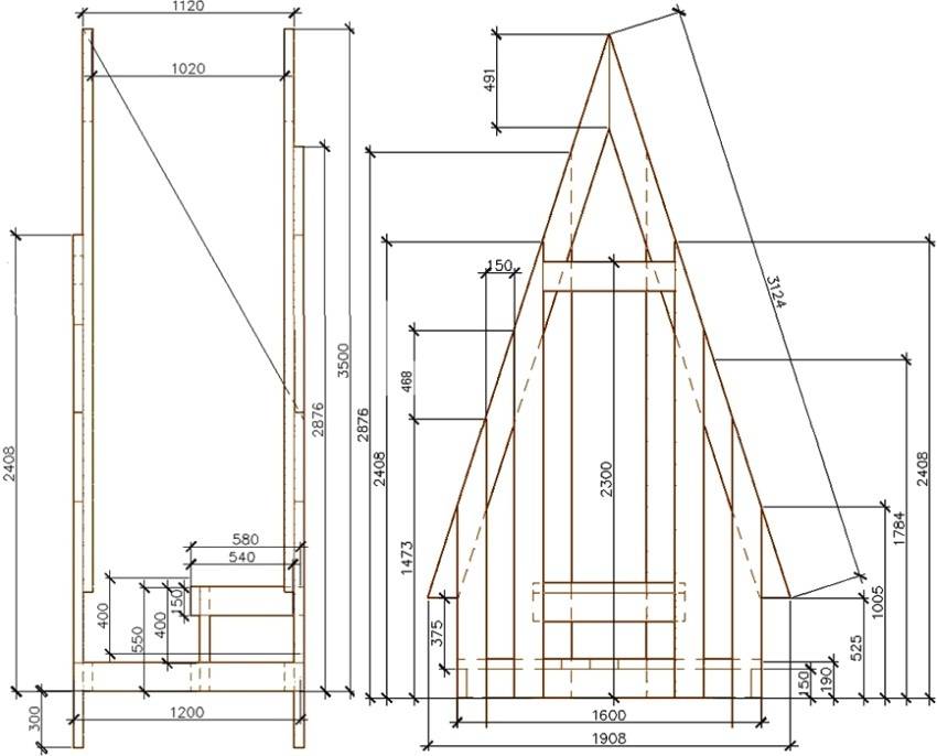
Для сооружения «шалаша» используйте следующий чертеж:
Чертеж конструкции типа шалаш.
Для простой кабинки («скворечник») воспользуйтесь этим чертежом:
Прямоугольная туалетная кабинка.
Изготовление максимально простое. По схеме необходимо сделать каркас из брусьев, оббить его досками. Далее уложить кровельный материал, поставить окна и двери. В завершение необходимо сделать внутреннюю отделку, оклеив стены обоями или покрасив краской.
Совет: сам стульчак необходимо приобрести из пластика с прямым отверстием. Устанавливать обычные керамические городские модели нельзя по причине их большого веса, а также внутреннего уклона для смыва.
Деревянный туалет внутри.
Таким образом, вы узнали, как построить уличный туалет на даче своими руками, используя для этого чертежи с размерами, фото и видео. Как видите, этот процесс несложный, но к обустройству стоит подойти ответственно, ведь постройка на долгое время определит комфорт пребывания на загородном участке.
Видео: дачный туалет своими руками.
Как можно украсить снаружи?
Использование небольших деталей из резного дерева при строительстве избавит от проблем с дальнейшим декором: такой домик хорош сам по себе.
На фото пример резного декора
Если полезное строение самое обычное, превратить его в оригинальный эффект ландшафта помогут рисунки: как изнутри, так и снаружи.
Чего на даче в достатке, так это зелень — почему бы не пустить стелющийся хмель или девичий виноград прямо стенам клозета? Единственный минус — красота продержится до ближайшей осени, но весной начнет обрастать снова.
На фото туалет, заросший хмелем
Чтобы не тратиться на украшение в дальнейшем, можно изначально заказать туалетную кабинку в необычной форме. Самые популярные модели — мельница, маяк или домик гномика, хоббита.
Люфт-клозет
Люфт-клозет
Такой вид удобств обустраивается отдельно как летний туалет, или же пристроив к дому. Но его применение зависит от гидрологической ситуации на участке.
Если грунтовая вода слишком близко к поверхности, то применение такого клозета с негерметичной ямой запрещено. Конструктивно, такая уборная располагается над ямой, с которой нужно периодически откачивать отходы.
Если запланирован придомовой туалет, то его закладывают вместе с домом. Часть выгреба размещается под домом. Стенки ямы герметичны, с бетона или кирпича. Для откачки делают люк. Еще одной особенностью такого клозета, является организация подогрева путем естественной вентиляции.
Чертежи дачных туалетов
Чтобы построить хорошую уборную в саду, нужен подробный чертеж туалета для дачи с размерами. Есть много чертежей под разные виды нужников, так что не приходится ничего придумывать самостоятельно. Схема дачного туалета с указанными размерами сильно упрощает строительство и экономит много времени.
Скворечник
Чертеж туалета “Скворечник”
Туалет-скворечник – это самая популярная ввиду своей простоты конструкция. Чертеж туалета элементарен, модель действительно напоминает домик для птиц. Это прямоугольная вертикальная кабинка с односкатной крышей с небольшим уклоном к задней стене.
Чтобы построить скворечник, достаточно установить каркас и обшить его любым стройматериалом, а спереди установить простую дверь. Такой туалет полностью делают из дерева.
Избушка
Чертеж туалета “Избушка”
Избушка, или теремок – это ближайший родственник скворечника. Они очень похожи, но разница в том, что крыша у избушки двускатная. Нужно очень тщательно и точно строить туалет-теремок по размерам на чертеже, иначе есть риск, что крыша готового сооружения будет «перекошена» в одну сторону.
Этот нужник делают немного расширяющимся кверху. Строят его из деревянного бруса, обшивают тоже деревом. Если отделать сооружение «под сруб», то благодаря симпатичной форме оно будет выглядеть как настоящий теремок.
Шалаш
Чертеж туалета “Шалаш”
Отхожее место в виде шалаша очень легко построить. Это двускатная постройка, напоминающая по форме вигвам. Такой чертеж дачного туалета из дерева с размерами позволяет сэкономить стройматериалы и время, требуемое для возведения.
Делают шалаш из дерева, металла или даже шифера. Плюс такой постройки – в том, что она не похожа на туалет, и любопытные прохожие, заглядывая через забор, могут принять ее за хранилище садового инвентаря.
Домик
Чертеж туалета “Домик”
Туалет-домик похож на избушку, но, в отличие от нее, не расширяется кверху. Прямоугольную кабинку венчает простая двускатная крыша, благодаря которой туалет выглядит уютным.
Габариты туалета для дачи примерно одинаковы для всех моделей, и домик – не исключение. Строить его лучше всего из дерева, чтобы он выглядел эстетичнее, но и обшитый металлом домик тоже не сильно портит вид на дачный участок.
Строительство будки
Самым простым является установка «скворечника», при этом процесс монтажа осуществляется с помощью гвоздей 100 мм для бруса 60 мм или же 150 мм для бруса 80Х80 мм. Обшивку прибивают гвоздями 60-70 мм.

Весь процесс постройки будки-скворечника показан на рисунках.
Алгоритм возведения туалета модели «скворечник»:

- Взять рубероид, затем застелить им угловые плиты (столбики) и несущий пояс. Рубероид должен быть простым, без посыпки.
- После сразу же собрать из бруса нижнюю опорную раму. Обработка обязательна. Почему сразу? Потому что не адаптированный к ультрафиолетовым лучам рубероид может быстро испортиться.
- Затем до переднего края стульчака осуществляют настил пола. На кусочки оставшейся рамы набивают доски, такой же толщины, что и для пола. Об обработке (особенно с внутренней стороны) также не забываем.
- Осуществляем приготовление задней и передней рам, при этом стыки врезаются в полдерева.
- Задник и фасадная рама прибиваются к нижней части гвоздями и укрепляются стяжками. Стяжки должны быть врезаны на 1/4.
- Каркас для стульчака делают таким же образом.
- Стульчак нужно обшить, затем выпилить окошко сидения, а после приступить к обшивке стен.
- Сборка облицовки для крыши.
- Любым жестким кровельным материалом делается настил кровли. Выпиливается фигурное окошко (так называемый «туз») в полотне двери и над самой дверью.
- Делается навес двери и обшиваются углы.
Теперь помещение вполне пригодно для использования.

«Избушка» является тоже довольно востребованной моделью, но и выстроить ее сложнее. Поэтому ниже приводятся проекты, в которых указаны точные расчеты материала и раскрой досок. Также приводится для примера рисунок. Надо отметить, что дверь в «избушке» имеет высокую степень прочности и способна выдержать любую непогоду, даже сильные ветра. Даже если хозяин по забывчивости оставит дверь на какое-то время открытой, то ветер, конечно, расшатает ее, но не повредит полотна и ремонт будет сведен к минимуму.
Туалет с выгребной ямой
Лучший деревенский туалет – это туалет с выгребной ямой. Для ее очистки придется вызывать ассенизатора, но зато нужник будет служить очень долго и будет максимально экологичным.
Выгребную яму делают так:
Копают углубление там, где будет стоять туалет. Размеры котлована (и в стороны, и вниз) должны быть где-то на 40 см больше, чем размеры будущей ямы.
На дно углубления высыпают глину, разведенную водой до пастообразной формы. Толщина глины – от 20 до 30 см. Этот слой будет мешать нечистотам впитываться в грунт.
Когда глина полностью высохнет, дно и стены ямы покрывают кирпичом или просмоленными досками. Сверху штукатурят и смазывают водоотталкивающей пропиткой
Важно выбрать пропитку, которая подходит для агрессивной среды.
Сверху ямы кладут перекрытие из бруса или досок. Толщина материала – от 40 мм
В перекрытии делается отверстие для люка. Сам люк делают двойным, чтобы минимизировать запахи.
Устанавливают трубу для вентиляции.
После этого можно построить туалет на улице над выгребной ямой. Подойдет любой вид сооружения, главное – чтобы по размерам он совпадал с габаритами ямы.
Глубина ямы для дачного туалета
Каждому, кто сооружает дачный туалет, нужно знать, какую яму копают в таких случаях. Слишком большое углубление не нужно – достаточно будет 1х1,5 м, а если туалетом будут пользоваться нечасто, то даже 1х1,2 м. Глубина – от 2,5 до 3 м.
В идеале выгребная яма должна быть прямоугольной, а не квадратной. Это упрощает работу ассенизатора, ведь на поверхности более длинной стороны ямы можно обустроить люк, куда будет окунаться шланг.
Люфт-клозет
Если необходимо обустроить летний туалет, которым зимой не будут пользоваться – подойдет вариант с люфт-клозетом. Это небольшая кабинка с унитазом, на небольшом расстоянии от которой находится герметичная емкость для нечистот. Можно даже установить люфт-клозет внутри дома, рядом со стеной, а емкость – снаружи.
Туалет с бочкой
Туалет для дачи, построенный своими руками, может использовать вместо выгребной ямы бочку. Принцип такой:
- если грунтовые воды залегают глубоко, то у бочки удаляют дно и используют только оставшийся цилиндр – его просто вкапывают в землю под туалетом;
- если грунтовые воды находятся близко к поверхности, то у бочки оставляют дно и используют ее как обычную выгребную яму – вызывают ассенизатора по мере заполнения.
Выгребная яма из шин
Из старых автомобильных шин можно устроить отличную выгребную яму. Объем вмещаемых отходов зависит только от глубины ямы – чем больше шин в ней разместят, тем реже ее придется чистить.
Делают так:
- Выкапывают выгребную яму. Глубина – на 20 см больше, чем суммарная ширина покрышек. В этом случае яму делают не прямоугольной, а круглой – по форме шин.
- Высыпают на дно ямы гравий, формируя слой толщиной в 20 см.
- На гравий кладут покрышки, одну на другую.
- Сверху делают деревянное перекрытие и устраивают туалет любого вида.
Хотя стыки между шинами не герметичны, отходы сквозь них почти не просачиваются. Гравий служит хорошим фильтром для жидкости, а густые нечистоты придется иногда удалять самостоятельно.
Яма для дачного туалета из кирпичей
Сельский туалет своими руками построить нетрудно. Но если грунтовые воды на участке залегают очень близко к поверхности, то выгребную яму следует делать полностью герметичной. Лучший способ – использовать кирпичи:
- Копают яму желаемых размеров.
- Дно заливают слоем бетона толщиной около 10 см. Для равномерного распределения бетона используют влажный песок.
- Через неделю, когда бетон полностью затвердеет, начинают строить кирпичные стены. Делают это так же, как и при любом строительстве из кирпича – по одному ряду, смазывая стыки бетоном.
- Когда стенки ямы будут полностью покрыты кирпичами – оставляют до полного застывания. Спустя 3 недели уже можно строить туалет.
Яма из железобетонных колец
Если грунтовые воды залегают глубоко, то можно использоать для выгребной ямы железобетонные кольца. Это отличный вариант – они просты в применении, надежны и полностью герметичны. Поэтому их широко используют в создании колодцев.
Устанавливают кольца так:
- Выкапывают круглую яму, диаметр которой – где-то на 30 см больше, чем диаметр кольца. Высоту ямы «подгоняют» под общую высоту колец, чтобы не осталось пространства, не покрытого железобетоном.
- Насыпают на дно ямы до 15 см гравия.
- Ставят первое кольцо, смазывают окружность сверху бетоном и ставят второе кольцо. Всего устанавливают от 2 до 4 штук.
- Снова насыпают гравий так, чтобы он заполнил нижнее кольцо хотя бы наполовину.
Требования к месту установки
Если планируется строить уличный туалет с унитазом на дачном участке своими руками, нужно учитывать правила:
- уровень грунтовых вод: если он выше 2,5 м, котлован нельзя обустраивать, т. к. фекалии попадут в грунт, загрязнения могут оказаться в соседних водоемах;
- расстояние до жилого дома – не менее 12 м;
- удаленность источников воды (колодцев, искусственных водоемов) – 20 м;
- расстояние до забора, который разграничивает участки с соседями – от 1,5;
- свободное пространство перед туалетом, чтобы могла подъехать ассенизаторская машина: предусматривают не менее 7 м;
- ландшафт: в низине котлован часто наполняется дождевой или талой водой, а на возвышенности туалет обдувается сильными ветрами.
Обустройство дачного туалета
Сибмама Aravana80 предлагает такой вариант использования раковины в самом туалете: «Когда купили участок, сразу решили: туалет сделаем сами, так как покупные какие-то невзрачные. Я хотела просторный и красивый. В итоге разошлись – 1,5*1,5 метра. Очень хотелось, чтобы был светлый».
Фото Aravana80: «Сделала витражи, плёнка наклеена на обычное стекло. В солнечный день очень красиво свет играет».
Фото Aravana80: «Провели свет, чтобы в тёмное время суток было комфортно».
Фото Aravana80: «Внутри сделали раковину с умывальником, очень удобно».
Ирина_Н детально описывает процесс обустройства ямы туалета.
Фото Ирина_Н: «Вырыл яму, туда поставил бочку, чтобы потом, если что, можно было вызвать машину и оттуда все откачать».
Фото Ирина_Н: «Ставили вдвоём, я держала, муж крутил».
Фото Ирина_Н: «Забетонировал, сделал основу для того, чтобы уже поставить туалет».
Фото Ирина_Н: «Сверху приделал ведро, в котором вырезал дно так, чтобы всё падало напрямую. Положили мягкое сиденье, и вот что у нас получилось».
Фото Ирина_Н: «Вот такое сооружение. Сзади еще труба вентиляции, её не сфотала, забыла».
Фото ЛюдмилаШ демонстрирует каркасное строение туалета.
Фото ЛюдмилаШ – в итоге получилась стильная постройка.
Марианна* показывает туалет с поворотным заходом внутрь: «Новый туалет делали муж с папой. Значительно улучшенные характеристики по удобству, комфорту, звуко- и термоизоляции, габаритным размерам, наличию освещения сделали своё дело. Унитаз дачный со сквозной дыркой в яму, куплен был в Абрисе. Мое «ноухау» – на стульчак сшила мягкую сидушку: и мягко, и тепло в холодное время года».
Фото Марианна*
Фото Марианна*
Допустимые зоны на участке для размещения санузла
Перед тем как приступать к постройке фундамента, подумайте о месте, где будет располагаться туалетный домик. Для этого необходимо взять чертеж участка и внимательно рассмотреть все существующие сооружения, наметить местоположение скважины. После этого продумать все возможные зоны для размещения конструкции. Есть определенные правила, которым нужно неукоснительно следовать:
Туалет должен быть удален от источника воды — природного водоема, скважины не менее, чем на 25 м
В противном случае, фекальные жидкости просочатся в подземные воды.
Рекомендуется не строить домик вблизи границы с соседним участком – до него не должно быть меньше 1 м.
Обратите внимание: если поместить здание в центре участка, то зловонный воздух будет достигать окон дома.
До построек на дачном участке – бани или душа, погреба, жилого дома должно быть 8-12 м, около 4-х м от строений для разведения животных и до деревьев.
Поскольку в большинстве случаев выгребные ямы вычищаются ассенизаторами, требуется продумать возможность подъезда машины к туалетному сооружению.
Постарайтесь расположить домик в затененном месте, так как такой постройке ни к чему перегреваться на солнце.
Местоположение туалета также зависит от грунта участка. Не стоит строить на грунте плавучем. В случае с глинистой почвой не забывайте: глина будет препятствовать впитыванию, нужно яму будет выкопать больших размеров.
В случае с глинистой почвой не забывайте: глина будет препятствовать впитыванию, нужно яму будет выкопать больших размеров.
Как вы видите, много условий для правильного размещения санузла. Может, не все вам удастся соблюсти. Из всех критериев наиболее важным является первый
Кроме того, обратите внимание: если глубина залегания грунтовых вод не превышает 2,5 м, строить туалет с выгребной ямой запрещено санитарными нормами. Подумайте о подходящем типе сооружения, а также о виде фундамента к нему

Выбор местоположения туалета на даче
При возведении дачного туалета своими руками, в первую очередь, необходимо правильно определить его местоположение. Ни в коем случае нельзя примыкать его к уже имеющимся хозяйственным, тем более жилым, постройкам, поскольку даже применение химических септиков и надежной гидроизоляции не могут на 100% уберечь от проникновения в соседние помещения посторонних запахов, распространения грибка и других вредных факторов, сопутствующих помещению с повышенной влажностью. Кроме этого, следует учитывать преимущественное направление ветра, расположив туалет с подветренной стороны. Согласно гигиеническим требованиям выгребная яма, а именно она обычно используется в дачных туалетах открытого типа, не должна находиться на расстоянии меньше 10 метров от жилых помещений, как своих, так и соседских. Одновременное выполнение всех этих требований иногда затруднительно в стесненных дачных условиях, поэтому чем-то приходится пренебрегать.

Для увеличения нажмите на картинку




































