Построенные своими руками не дорогие дачные домики
Многие отдают предпочтение постройке дачных домиков своими руками (фото, проекты, чертежи можно найти в интернете). Проектов дачных домов, строительство которых вписывается в небольшой бюджет, существует достаточно много, но мы уместим их в три основные группы:
- Конструкции, исполненные самым простым образом без электричества и отопления, способные защитить от дождя и ветра.
- Универсальные домики для дачи с небольшой площадью, которые могут быть посещаемы в любое время года.
- Двухэтажные домики, которые могут претендовать на полноценный загородный дом.

В благоустроенном дачном доме можно проживать с семьей в летнее время. Домики первой группы чаще всего не являются капитальными строениями (проекты и эскизы летних домиков для дачи могут быть разработаны самостоятельно). Они не имеют серьезного фундамента и сделаны из обычных досок или фанеры. Однако примечательно, что при использовании красивых отделочных материалов, даже они могут выглядеть вполне прилично, хотя на их возведение были потрачены не большие средства.
Проекты двухэтажных домов с гаражом: особенности современных проектов (прочитать подробнее)

Пример маленького домика, предназначенного для отдыха.
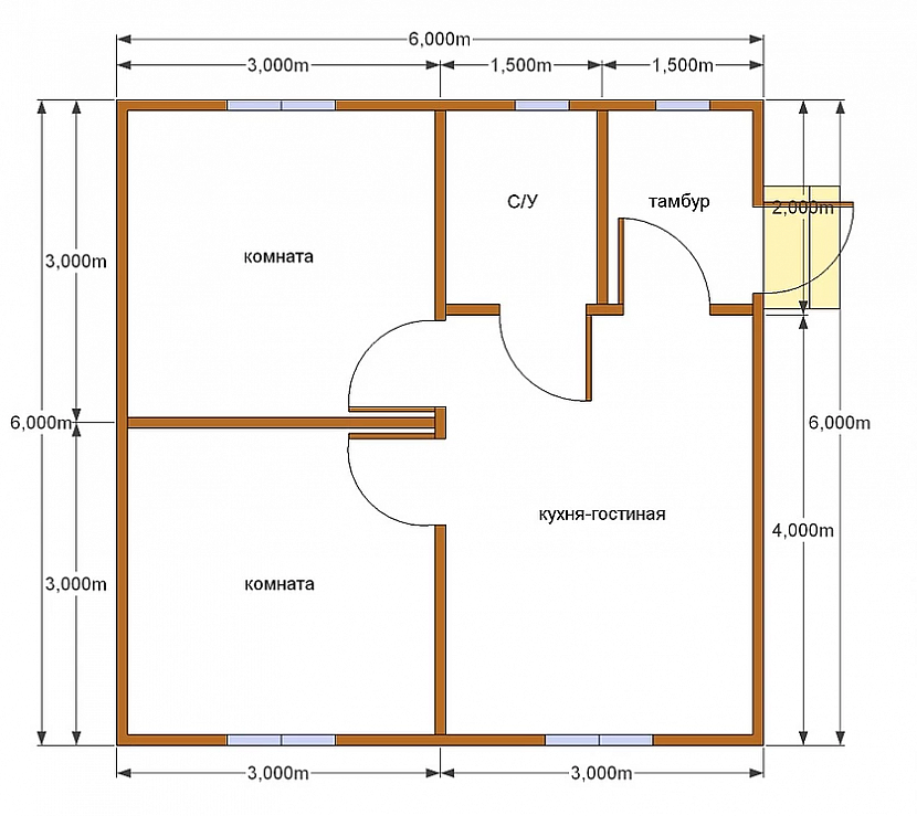
Сооружения, которые мы отнесли ко второй группе, наиболее популярны. Внутренне оснащение недорогих домиков для дачи должно соответствовать по комфорту удобствам загородного дома. Проектами дачных домиков 5х6 м может предусматриваться наличие кухни-столовой, душевой и санузла.
Проекты домов с мансардой: преимущества и недостатки (прочитать подробнее)
Обычно это капитальные строения с фундаментом и приемлемой теплозащитой для использования системы отопления в зимнее время. Отдав предпочтение маленькому домику для дачи, вы получаете возможность разместить на оставшихся сотках, помимо грядок, миниатюрный пруд в зоне отдыха или красивый цветник.

Проект дачного дома 6х6 м.
При большой семье вам понадобится на небольшом участке разместить достаточно вместительный домик. Это достижимо, если построить его с мансардой или вторым этажом. На первом этаже можно сделать кухню и комнату для отдыха, а второй этаж оборудовать комфортными и уютными спальнями. Для большего комфорта будет неплохо еще сделать веранду или террасу. Все эти моменты должны быть отражены в проекте маленького дачного домика.

Каменный дом с мансардным помещением.
Как правильно расположить на участке жилой дом и гараж
Перед тем как правильно расположить на участке дом и гараж, нужно рассмотреть несколько важных бытовых аспектов.


Устраивая парковочное место для автомобиля, прежде всего, стоит подумать о том, каким образом вы будете выезжать с участка зимой. Пытаясь расположить его в глубине территории, вы должны понимать, что каждый лишний метр зимой — это лишний метр уборки снега при расчистке выезда на проезжую часть. Не переоцените свои силы! Не стоит также впадать и в другую крайность. Учитывая, что средняя длина автомобиля — около 4,5 м, еще нужно предусмотреть возможность пройти к воротам, открыть капот и багажник. Не следует забывать и о вероятности лавинного схода снега с кровли дома зимой. Все это стоит учитывать перед тем, как расположить на участке дом и гараж, а не после завершения всех строительных работ.

При грамотно спроектированной жилой застройке каждый участок должен быть обеспечен внутренним хозяйственным проездом для нормального транспортного обслуживания территории. Если такой генеральный план отсутствует (а эта ситуация не так уж редка), вам следует предусмотреть возможность проезда по своей территории, чтобы после завершения строительства не пришлось, например, дрова для бани нести на руках через весь участок или очищать септик вручную из-за отсутствия подъезда к нему.

Как видите, не такое простое это дело — принять грамотное решение о том, как расположить жилой дом на участке, причем вы можете даже не подозревать о многочисленных подводных камнях, которые «всплывут» позднее, когда уже нельзя будет что-то изменить. Поэтому, кроме тщательного и всестороннего обдумывания плана застройки всей семьей, нелишним будет спросить совета у бывалых дачников, понаблюдать за соседскими усадьбами, получить консультацию специалистов.


Ведь, чтобы грамотно построить надежный и красивый дом, нужно не только долго и основательно учиться, но и иметь немалый практический опыт.
Назначение помещений
Размеры дачные домики обычно имеют не слишком большие. Однако считается, что в них должны быть предусмотрены все помещения того же назначения, что и в городской квартире. Исключение в данном случае могут составлять в основном лишь санузел и душевая. Первый на загородных участках часто строят на улице. Вместо душевой на даче обычно оборудуют баню. Иногда также на загородном участке устанавливают простое деревянное сооружение с баком на крыше и лейкой.
Собственно, в самом доме должны быть предусмотрены:
- гостиная;
- спальня;
- прихожая;
- кухня.
Такая планировка дачного дома в том случае, если он имеет небольшие размеры, будет наиболее эргономичной. Если дом предполагается подключить к газовой магистрали, желательно дополнительно оборудовать в нем небольшую котельную. При наличии системы отопления проживание на даче весной или осенью будет гораздо более удобным. Хотя, конечно же, при недостатке места котел можно поставить и просто на кухне. Главное, чтобы это помещение отвечало определенным требованиям СНиП.
Холл дома, как уже упоминалось, должен быть достаточно просторным. Лучше всего, если из него будут вести двери в каждое из имеющихся в доме помещений. Исключение в данном случае составляют лишь вытянутые прямоугольные здания на очень узких участках. В таких домиках роль холла или коридора может выполнять обычная веранда. Все комнаты же в узких зданиях часто располагаются последовательно — одна за другой.
Основные правила для сооружения лестницы на второй этаж своими руками
Любую лестницу можно купить уже готовую, заказать по своим размерам или даже изготовить самостоятельно.
Неважно какой вариант вами был выбран, главное знать следующие правила:
Если вы только еще проектируете свой дом, обратитесь к специалистам для расчета необходимых параметров или посчитайте их сами. Тогда вы сможете заранее запроектировать проем нужных размеров.
Интерьер с лестницей в индустриальном стиле.
- Обязательно следует определиться с типом лестницы. Если места совсем мало – выбирайте винтовую, если достаточно, то маршевую. Если же вы хотите соорудить изящную и практичную конструкцию, то останавливайтесь на больцах.
- Рекомендуются следующие размеры проема: для прямого марша достаточным будет проем 1,2 х 3,7 м; при L-образном устройстве — 3,1 х 1, 3 м; для U-образной конфигурации — 2 х 2,5 м. Если лестница обычная винтовая, то для нее нужен проем, равный 2,2 х 2,2 м; а если она будет выполнять вспомогательную функцию — 1,5 на 1,5 м.
Лестница скрыта за перегородкой из матового пластика.
- Для обеспечения безопасности маленьких детей, расстояния между соседними балясинами ограждения нужно делать не больше, чем 15 см.
- Высота ограждений лестницы не должна превышать 85 см. Ширина оптимально: 25 — 30 см.
- Несущая способность лестницы для любых жилых домов допустима не менее 300 кг/м2.
Деревянная лестница со стеклянными перилами.
Ступени не должны быть скользкими. Тем более, совершенно недопустимо их наклонное к уровню горизонта положение. Перила должны быть оптимальными для любого роста. Сначала лестницу тщательно крепят наверху либо на площадке между двумя этажами. Длина всей лестницы должна точно совпадать с фактической высотой этажа. Наверху устанавливают перила на надежные крепежи. Получившаяся лестница должна обладать хорошей прочностью, а перила надежностью и плотностью.
Под лестницей оборудован шкаф для хранения вещей.
Угол подъема по лестнице в доме на второй этаж, фото которой наиболее гармонично, не бывает более 45 градусов. Допускается диапазон в 35-40 градусов. Ширина ступенек не менее 80 см, наиболее оптимально — от 90 до 120 см.
Обустройство лестницы в нише.На заметку! Не следует пренебрегать инженерными требованиями к конструкции лестницы в угоду декоративным элементам. Это может послужить причиной многих неприятностей.
Соблюдая все предложенные правила можно самостоятельно изготовить или установить красивую и безопасную лестницу в доме на второй этаж. Фото своей работы потом можно с удовольствием показывать своим старым хорошим знакомым.
Телескопическая лестница: как выбрать стремянку (прочитать подробнее)
Планировка домов с размерами 9 на 9 метров
Планировка дач с размерами 9 на 9 м мало чем отличается от предыдущего варианта, но увеличение площади дает гораздо большие возможностей для архитектора и грамотного планирования комнат.
В одноэтажном загородном доме при размерах 9х9 м уже получается полноценных четыре комнаты с прихожей и тамбуром, при двухэтажном варианте получается 7 жилых комнат.
Если дом с размерами 9х9 м одноэтажный, в нем обычно размещают:
- коридор;
- гостиная;
- спальня;
- небольшая детская;
- кухня;
- и раздельный санузел с ванной.
При проектировании двухэтажной дачи 9х9 м есть возможность расширить кухню и сделать большую кухню-столовую, продумать расстановку оборудования, чтобы поместить большой обеденный стол для семейного застолья.
Или спроектировать отдельную столовую, а кухню по планировке оставить небольшую, но хорошо продумать расстановку оборудования для приготовления и хранения продуктов.
Проектируя дачный дом с размерами 9х9 на первом этаже допускается спланировать широкий коридор со встроенными шкафами, а также сделать дополнительное подсобное помещение для хранения продуктов или техническое помещение для котла, бойлера и прочего оборудования.
Можно также распланировать небольшую комнату для гостей, а детскую разместить рядом со спальней родителей на втором этаже.
Ванную и санузел желательно разделить, увеличить площадь ванной или запроектировать небольшую сауну. На втором этаже также логично разместить:
- кабинет;
- спальню;
- детскую;
- и небольшой коридор.
Конечно, второй этаж значительно увеличивает площадь и количество помещений в частном доме, но следует также учесть, что для второго этажа необходима лестница, а она занимает приличную площадь.
По планировке ее можно разместить как в центральной части дачи, так и возле одной из наружных стен с естественным освещением. Лестница может быть с двумя или тремя маршами, винтовая, может быть открытая для обозрения или находится в отдельном помещении.
Планировка своими руками
Занимаясь планировкой, в первую очередь определяются с размерами будущего строения. Популярными проектами считаются те, которые при маленькой занимаемой площади на участке позволяют построить комфортное, просторное и удобное в эксплуатации жилище.
Планировка и строительство больших домов с ощутимым перерасходом строительных материалов ушло в прошлое, и сейчас, во время популярности энергосберегающих технологий, такие дома не пользуются популярностью у застройщиков.
Подробная планировка дома с мансардой 6х6 Лучше всего выбирать дома прямоугольной формы с несколькими этажами.
Разглядывая различные проекты и фото планов загородных домов, многие заметили тенденцию обустраивать в домах гаражи. Это значительно расширяет функциональность жилого дома и способствует большему комфорту. Если габариты участка немаленькие, то можно сделать гараж отдельной примыкающей к жилому строению постройкой. Такой вариант позволит снизить теплопотери дома, а также сэкономить застройщику часть бюджета.
Проект и планировка двухэтажного коттеджа 10х10
Многие сомневаются, можно ли располагать над гаражом в частном доме жилую комнату. В юридическом плане ограничения для этого отсутствуют, а с точки зрения здравого смысла гаражи наверняка снабжаются системой вентиляции принудительного типа, поэтому такая планировка не опасней расположения жилой комнаты над котлом.
Как соорудить фундамент для дачного дома
Использование дачного домика зимой требует сооружения ленточного фундамента, утеплить который значительно проще, чем другие виды. Под террасой утепление не нужно, поэтому будет достаточно установить там столбики. Клееный брус не очень тяжелый, поэтому фундамент не будет слишком массивным. Устраивать его на глубину промерзания грунта нет смысла, так как посещаться домик будет только несколько раз за всю зиму.
Проекты кирпичных домов: интересные идеи и решения (прочитать подробнее)
Поэтому траншею под фундамент копаем на глубину 60 см. Внутри периметра ленты устраиваем керамзитовое утепление, по причине чего не нужно поднимать ее на большую высоту. Достаточно будет и 20 см. Под печь основание размерами 100х100х80 см заливается одновременно с основным фундаментом.

Дом облицован декоративным камнем.
Для сруба используем клееный брус, обладающий сечением 150х150 мм, в связи с чем оптимальная ширина ленты будет 25 см. Под террасу ставим 4 столбика с квадратным сечением при стороне 25 см, которые заглублены на 60 см и имею аналогичную высоту с ленточным фундаментом.

Небольшой дом и хозяйственная постройка на дачном участке.
Залитый фундамент оставляют на неделю для высыхания, после чего разбирают опалубку и засыпают внутренний период ленты керамзитом. Для этого убирают дерн и плодородную почву. Делают песчаную подушку, которую утрамбовывают. Только после этого производят засыпку на высоту фундамента. Под взятые размеры понадобится 4,8 м³ керамзита.

Проект деревянного дачного дома.
Двухэтажные коттеджи с мансардой и верандой
Если вы хотите, чтобы в вашем жилище было чердачное помещение и дополнительная открытая или застекленная зона отдыха, то в этом случае требуется правильная планировка для 2-этажного дома 10 х 10 метров. Как показывает практика, подобные проекты являются одними из лучших с точки зрения функциональности, практичности и комфортабельности проживания. Если на земельном участке планируется огород, то также в строении можно обустроить подвальное помещение, предназначенное для хранения собранного урожая.
Независимо от проекта, основная зона — это вместительная гостиная и кухня. Последняя может быть как классической, так и совмещенной. К столовой примыкает веранда, переход на которую осуществляется через отдельный выход. Благодаря этому использовать ее можно будет не только в теплое, но и в холодное время года при условии, что она будет застеклена.
Предназначение чердачного помещения может быть различным. Его используют как для хранения различных вещей и предметов, так и для обустройства спальных комнат.
Помимо этого, очень часто мансарду отводят под следующее:
- гостевая;
- бильярдная;
- спортзал;
- кабинет и т. д.
Проекты 2-этажных домов (10х10 планировка предоставляет большие возможности) могут быть различны. Но, независимо от этого, любой из них предполагает, что первый уровень должен обладать укрепленной конструкцией, чтобы выдержать большую весовую нагрузку. Чтобы уровень безопасности был достаточно высоким необходимо очень серьезно подходить ко всем расчетам.
Продумывая планировку, следует учитывать множество нюансов. Особенно это касается мансарды. В большинстве случаев ее используют в качестве основной или гостевой спальни, а также детской комнаты. Чтобы чердачное помещение было максимально комфортным, нужно возвести подходящую кровлю. Наиболее распространенными при возведении двухэтажных коттеджей являются следующие типы конструкции крыш:
- односкатная;
- двускатная;
- ломаная.
Второй вариант более предпочтителен, поскольку намного проще в возведении и требует меньших финансовых затрат. Что касается первого и второго этажа, то их назначение определяется с предпочтениями будущих владельцев дома. По традиции, на цокольном находится большая гостиная, в которой также можно возвести камин для создания большего уюта, зона приготовления и приема пищи (могут быть совмещены или разделены), а также полноценная ванная с туалетом. Второй этаж отводится под кабинет, гостевую спальню, гардеробную и детскую комнату. Попасть во все помещения можно из длинного холла, проходящего через все здание.
Виды планов многоэтажных жилых домов
Многоэтажки и многоквартирные постройки занимают первое место в практике жилищного строительства. Это объясняется стремлением увеличить количество жилых помещений, путем плотной застройки поэтажно и сокращения территорий под застройку.

Так выглядит внешний вид фасада и планировка всех этажей жилого многоэтажного дома
Последний пункт особенно важен, так как в противном случае происходит значительное удорожание инженерных сетей, увеличивается расстояние от дома до работы. Выбор несущей конструкции, тип планирования здания в объеме влияют на экономичность, форму и структуру многоэтажного здания.
Дома отличаются по архитектурно–планировочному решению, большое значение имеет расположение помещений. План многоквартирного здания бывает нескольких видов.

Типовая планировка жилого этажа многоэтажного дома
Самый распространенный — секционный. Хорошим примером могут быть пятиэтажки, построенные полвека назад. В доме находится лестничная площадка, к которой примыкает несколько квартир.
Сами площадки могут быть разной формы, а квартиры типа студия, однокомнатные, 2–х и 3–комнатные. Такое расположение характерно общим выходом на этаж и отдельным входом в помещение.

3D проект и планировка квартиры студии с панорамными окнами
Этот вариант отличается экономичностью, хорошей изоляцией квартир. Число подъездов может колебаться от 4 до 12, а в крайнем случае — до 16. Их количество зависит от:
- желания заказчика;
- структуры грунта;
- площади земельного участка под застройку.
Разновидностью секционных панельных корпусов считают точечное расположение. Еще их называют «башня», которая может иметь такой же план этажей, как и в секционном корпусе. Но подъезд тут только один. Например, если под строительство выделено мало земли и грунт имеет сложные рельефы, такой план станет хорошим вариантом.

Планировка двухкомнатной квартиры в панельной многоэтажке
Дома второго коридорного типа можно встретить не часто. Отличие здесь состоит в том, что вместо лестничной площадки выстроен длинный коридор, в который и выходят все квартиры.
Дома галерейного типа чем–то похожи на коридорный тип. У каждой квартиры есть выход на галерею, расположенную вдоль продольной стены конструкции.

Размещение квартир на плане в здании галерейного типа
Такие квартиры, даже с самой маленькой площадью хорошо вентилируются. Экономически такой расклад очень выгоден, так как позволяет с помощью малого количества лестниц или лифтов обслуживать большое количество квартир. Все же технологический процесс теплоизоляции в условиях местного сурового климата не всегда отличается хорошим качеством и длительностью службы.
Проектирование
Владельцам придется решить несколько важных вопросов
Для проектирования здания важно знать, будет ли он предназначен для сезонного или для круглогодичного проживания. Если жить на даче будут только летом, к строительным материалам, инженерным сетям предъявляются менее жесткие требования
На следующем этапе проектирования решают будет ли это готовое решение или индивидуальный вариант. Для этого стоит посмотреть фото домов в интернете, возможно, там найдется что-нибудь подходящее.
Одноэтажный дом
Проекты маленьких дачных домов чаще всего одноэтажные. Это помогает сэкономить, ведь тогда меньше денег будет потрачено на строительство, отделку. Кроме того, такие строения дают низкую нагрузку на основание. Поэтому строительство фундамента для здания занимает меньше времени, обходится дешевле. При этом у одноэтажных конструкций есть еще одно преимущество — это большой выбор материалов. Рассматриваются традиционные срубы из бревен, бруса, по каркасной технологии. Так что идеи для стильного оформления одноэтажного строения найти несложно. Главное знать необходимые размеры, чтобы в доме было достаточно места для его обитателей. Дачные домики оборудуются как минимум кухней, туалетом и душем. Тогда всё необходимое будет под рукой, а не на участке.
Двухэтажный
Небольшие дачные дома строят и двухэтажными. Но сначала застройщику придется провести геодезические изыскания, чтобы спроектировать фундамент, который выдержит даже массивную конструкцию. Иногда двухэтажный дом означает здание с мансардой. Во-первых, такие строения выглядят аккуратными и легкими. Во-вторых, у такого здания высокие показатели энергоэффективности. Планировка такого жилья зависит от образа жизни человек и их количества. Например, гостиная и спальня — это комнаты, под которые владельцы отводят первый этаж. Но многое зависит от того, будут ли хозяева принимать гостей (тогда понадобиться еще одна спальня, отдельный санузел на втором этаже). Обо всех этих требованиях сообщают инженеру, который будет делать проект, если дом будет строиться по индивидуальному плану.
Планировка второго этажа
Классическая планировка двухэтажного дома презентует верхнюю часть постройки как зону семейного отдыха. Традиционно здесь располагаются спальные комнаты, детские, общий большой санузел с ванной, и небольшой отдельный санузел в спальне родителей. Если размеры дома позволяют, то на втором этаже может расположиться семейная комната – аналог гостиной, но только для домашних. Здесь же обустраивают гардеробную комнату. Если дом с гаражом, то над этим помещением лучше не располагать спальни и детские комнаты. Проект лучше составить таким образом, чтобы над гаражом расположилась лестничное пространство, зона хранения вещей или гардеробная.
Варианты сочетания помещений
Коридоров на втором этаже также лучше избегать. Самый частый вариант – это небольшой свободный пяточек перед лестницей, на который выходят двери всех комнат.
Вариант планировки второго этажа коттеджа 10х10
Реже – это общая проходная комната, из которой можно уже попасть в спальню или детскую. Воплощать такой вариант имеет смысл, если площадь дома откровенно немаленькая. Небольшие двухэтажные дома могут иметь только один санузел на первом этаже, в этом случае все пространство второго этажа занимают спальные комнаты домочадцев.
Комната родителей может быть смежной с небольшой соседней комнатой. Этот вариант актуален тогда, когда в доме есть маленький ребенок. Смежная комната превращается в детскую. Ее удобно использовать с рождения и до 3-4 лет. Затем ребенка переводят в собственную детскую. Смежные комнаты могут присутствовать и в каждой спальне.
Планировка мансардного этажа дома 6х9
В этом случае в них оборудуются отдельные гардеробные для каждого члена семьи. Если потребности в таком количестве места для хранения вещей нет, или иметь отдельную гардеробную каждому члену семьи не позволяет площадь дома, то можно ограничиться одной общей комнатой, разделенной на сектора по количеству домочадцев.
Занимаясь планировкой двухэтажного дома нужно понимать, что большую часть времени вы будете проводить на первом этаже. Гостиная превратится в общую комнату, залу, детскую и рабочий кабинет одновременно. Подниматься на второй этаж все члены семьи будут только для сна. Поэтому общие общее пространство нужно постараться сделать максимально комфортным и просторным, чтобы удобно было всем членам семьи, а для спален можно выделить небольшие комнаты, превратив их в уютное личное пространство каждого члена семьи.
Какие материалы используются для строительства коттеджей?
Независимо от выбранного проекта, возведение жилых объектов может осуществляться из любых современных материалов, которых в наши дни представлено огромное множество. Чаще всего используются следующие:
- брус;
- кирпич;
- пеноблоки;
- газоблоки;
- бревно.
Самой распространенной является технология каркасного строительства. Она позволяет в сжатые сроки реализовывать любые проекты. При этом здания получаются прочными, надежными, комфортабельными и относительно недорогими. Какие именно конкретно материалы будут использоваться в строительстве, определяется еще на стадии проектирования, исходя из пожеланий и финансовых возможностей заказчика.
Где лучше поставить дом на участке
Решить вопрос о том, где поставить дом на участке очень непросто, однако учитывая все факторы можно прийти к определённым выводам. При этом надо попытаться учесть целый ряд других, не менее важных технических составляющих вашего проекта. Ведь даже такая простая, казалось бы, конструкция, как входная дверь, при неправильном расположении может стать серьезной проблемой в будущем. Палящие лучи весеннего солнца, порывистый ветер, косые струи дождя, резкие перепады температур… — все это нередко приводит к тому, что дверь начинает отходить, появляются щели и сквозняки, плохо работают замки, теряют внешний вид отделочные материалы и т. п. А ведь это всего лишь одна маленькая деталь такого большого и сложного механизма, как дом.

На полученном вами плане земельного участка в документах на землю ориентация участка строго регламентируется и направление на север всегда находится вверху листа. Для того, чтобы разобраться, где лучше поставить дом на участке, можно обратиться к сертифицированному специалисту, который учтет все факторы и спроектирует оптимальное пространство для жизнедеятельности. А можно самостоятельно разобраться во всех тонкостях и сэкономить деньги.
Проекты домов из бруса 6 х 6 с мансардой: чертежи и внутренняя планировка
Когда встает вопрос о планировке дома с площадью 6 на 6, следует учитывать, для каких целей он строится. Если это домик для летнего загородного отдыха, то основную часть дома отводят для комнат жилого назначения, а для отдыха оставляют минимальное количество места. Как правило, зону отдыха в дачных домах обустраивают на террасе или рядом с домом на специальной площадке.
Правильное расположение комнат с террасой для отдыхаИсточник Skpomestie.ru
А вот если дом предназначен для проживания в нем круглый год, то площадь для жилых комнат остается небольшая. Ведь нужно место для общих помещений, таких как кладовая или гардеробная, которые помогут содержать дом в чистоте и порядке.
Рациональное расположение комнат с площадью для технического помещения или гардеробнойИсточник Domostroev.com
При планировании двухэтажного дома с такой площадью есть один существенный недостаток. Места для лестницы на второй этаж или мансарду остается очень мало. Как итог – она будет очень крутой, что значительно затруднит по ней подъем пожилых людей и детей.
Для одноэтажного дома
Одноэтажный дом площадью 6х6 имеет не так много вариантов планировки, как двухэтажные дома. Ведь на одной площади необходимо расположить все необходимые помещения и разделить их тонкими перегородками.
Если в доме будет проживать семья из двух человек, то можно сделать просторную кухню, спальню и санузел. Тогда каждое из помещений будет иметь достаточную площадь для комфортного проживания.
Планировка дома для семьи из двух человекИсточник Ooo-skp.ru
Когда строительство планирует семья с ребенком, то необходимо будет оборудовать детскую комнату. Для нее следует отнимать площадь от кухни и родительской спальни.
Планировка дома площадью 6х6 с двумя изолированными комнатами для родителей и ребенкаИсточник Dobrodom75.ru
Не стоит забывать и об обогреве дома. При планировании одноэтажного проекта предусматривается установка печи посередине дома. Такое расположение позволит одинаково обогревать все помещения, а так же разделит кухню и помещения для отдыха.
Для двухэтажного дома
Если предусматривается планировка дома 6х6 с мансардой, то жилая площадь будет уже не 36 кв.м, а 40-44 кв.м. При выборе крыши стоит заранее определиться с количеством спален на чердаке. Если будет одна большая спальня, то крышу можно сделать двухскатную.
Правильное расположение комнат в доме с мансардой и одной комнатойИсточник Daromdoma.ru
А когда в плане указывается две или три небольших комнаты, то стоит остановить выбор на вальмовой крыше. Под такой крышей можно сделать дополнительные помещения, например, гардеробную.
Расположение комнат на первом и втором этаже с отведением места для гардеробнойИсточник Domikbani.ru
На первом этаже здания располагаются кухня, гостиная, санузел и прихожая. А так же уделяется место и для лестницы. А в мансарде уже обустраиваются спальные комнаты.
Планировка такого дома имеет значительные преимущества. Спальные комнаты закрыты от посторонних людей, так как располагаются этажом выше. К тому же расширение жилой площади за счет строительства мансарды позволяет поставить дом для небольшой семьи в ограниченном пространстве.
Чтобы получить дополнительное пространство для отдыха, то следует на втором этаже сделать небольшой балкон или лоджию. Там можно поставить пару кресел и стол, и таким образом получить дополнительное помещение.
Рациональное расположение комнат дома с мансардой и отведением места для оборудования балконаИсточник Banivsem.ru
Специалисты рекомендуют проводить строительство домов такой площади именно с мансардой. Тогда само строение будет выглядеть пропорциональным, а на несущую конструкцию не будет создаваться большая нагрузка, а это защитит от сильной усадки.
При планировании места установки лестницы стоит помнить, что ее минимальная ширина составляет 1 метр. Тогда по ней можно будет безопасно передвигаться и избежать травм.
Для санузла отводится небольшое помещение, в нем лучше располагать не ванную, а душевую кабину: тогда места понадобится меньше.
Рациональная планировка санузла на первом этаже дома с мансардойИсточник Autogear.ru
Если один из членов семьи имеет надомную работу, то на первом этаже можно расположить изолированный кабинет в дальнем углу дома.
Проекты дачных домов для 6 соток: описание и требования
Современные дачные участки предназначены не только для банального получения овощей и зелени, но и, очевидно, для активного проведения выходных на свежем воздухе. Поэтому вряд ли кто-то сегодня может быть удовлетворен обычным сараем для садового инструмента.
Поэтому можно сформулировать основные требования к устройству домика на даче в современных условиях:
- размеры его обязаны быть достаточными, чтобы на них уместились: кухня, комната для отдыха и открытая веранда или терраса;
- домик должен быть электрифицирован;
- будет неплохо, если он будет способен принимать гостей круглогодично;
- в связи с мизерной площадью участка, дачный домик не может быть большим, но должен быть достаточно вместительным.

Проект деревянного дачного домика.На заметку! В современном дачном домике можно разместить все, что требуется для обеспечения комфортного отдыха: кухню со всем оборудованием, комнату отдыха с телевизором и мебелью, террасу с барбекю.
Наружное оформление домов
Небольшой дом 6х8 будет отлично смотреться в любом стиле. При выборе материалов для наружной отделки следует учитывать особенности, общий дизайн участка. Лаконичная современная постройка дополнит стиль престижного коттеджного поселка, домик кантри будет преображаться рядом с вековыми дубами на фоне величественных гор.

Фасадные работы проводят не только для повышения эстетичности, но и для продления срока службы строения. В качестве отделочных материалов используют:
- Декоративную штукатурку;
- Облицовочный кирпич, искусственный камень;
- Вагонку, блок-хаус;
- Виниловый сайдинг.
Балкон, крыльцо, навес — какие еще нюансы учесть
Обычно упомянутые дистанции меряют от стены до стены или от стены до забора. Иногда для удобства за точку отсчета принимается не стена, а цоколь (если он имеется). Но бывают и дома с выступающими архитектурными деталями:
Если они выступают менее чем на полметра, можно их во внимание не принимать. Если же этот показатель больше, тогда их края и становятся точками отсчета
Дотянуться до них не всегда просто. Поэтому можно определить проекцию элемента на землю и ориентироваться на нее при измерениях.
Жилые строения следует правильно разворачивать. В их окна на протяжении хотя бы двух с половиной часов в день должно проникать солнце.
И последний неотъемлемый компонент ИДУ — дорожки и площадки. Ведь нужно где-то ходить и парковаться. Под эти цели допустимо выделять до четверти площади в шесть соток. Если земли у вас вдвое больше, то расход под дорожки можно увеличить до 30 %.
Сооружение стен и крыши дачного домика
Разные проекты дачных домиков для 6 соток, фото которых можно чаще всего встретить, обладают большим разнообразием способов укладки бруса. Выберем метод с чашечками, как у бревенчатых стен. Первый ряд бруса укладываем таким образом, чтобы лаги для пола выходили на столбики террасы. Внутри дома эти лаги будут располагаться через 40 см. Их можно изготовить из бруса 150х150 мм. Это позволит обойтись без устройства чернового пола. Достаточно будет уложить на них фанеру или половую рейку.

Небольшая дачная постройка для летнего времяпрепровождения.
На террасе делаем столько лаг, сколько у нас имеется столбиков. По ним затем уложим черновой пол из плах, по которым можно делать любое покрытие. Брус последующих рядов скрепляется нагелями. Потребуется соорудить стены в 20 рядов, чтобы высота была нормальной. То есть понадобится 80 брусьев. Половина из них 4 м, а вторая половина 6 м. Крыша для дачного домика делается из брусков 50х100 мм и закрывается металлочерепицей.

Дачный дом может стать полноценным комфортабельным жилищем.
На заметку! При заказе бруса лучше всего сразу посчитать количество штук разной длины, чтобы не было остатка. На усадку сруба потребуется около 1 года. Если крыша сразу же не делается, то сруб прижимают балками перекрытий, которые кладут на расстоянии 1 м. Углы нужно закрыть влагозащитной пленкой.
Предложенный вариант дачного домика потребует определенных затрат, которые все же будут гораздо меньшими, чем при строительстве полноценного загородного дома.
Проекты домов и коттеджей: фото, видео, интересные идеи планировки (прочитать подробнее)
Двухэтажные жилые здания 6 х 9
Прямоугольные здания более удобны, чем квадратные. В этом случае первый уровень полностью отводится под гостиную. Такая планировка комнат в 2-этажном доме также предполагает наличие здесь небольшой кухни и ванной, совмещенной с туалетом. В прямоугольных строениях намного проще разместить лестничную конструкцию.
Второй уровень предполагает наличие трех комнат. Две из них отводятся под спальни, а третью можно использовать в качестве:
- гардеробной;
- спортзала;
- кладовой.
В зависимости от пожеланий и предпочтений каждого конкретного человека, в строительный проект могут вноситься определенные корректировки. Здесь нет никаких ограничений, поэтому вы можете менять назначение комнат по своему усмотрению.





































