Гравитационная система с естественной циркуляцией
Перемещение теплоносителя по системе происходит самотеком.
Принцип работы
При подогреве теплоносителя происходит его расслоение: нижний слой с более высокой плотностью выталкивает более прогретую воду в систему. Разница плотностей обеспечивает естественную циркуляцию жидкости по трубопроводам.
Устройство
Расширительный бак устанавливается в верхней точке системы, который обеспечивает расширение воды в системе, производит сброс жидкости и подпитку в системе.
Котел необходимо устанавливать в подвальных или цокольных помещениях. Следует помнить, что уровень труб обратного контура должен быть заложен ниже котла.
Горизонтальные участки трубопроводов прокладываются с уклоном – в верхним точкам подключения радиаторов и от нижних на пути к котлу.
Важно! Для обеспечения высокого КПД необходимо использовать трубы с большим условным проходом, что обеспечивает низкий коэффициент сопротивления внутренних поверхностей труб.
Схема гравитационной системы отопления
Преимущества:
- Автономность. Данная схема может работать без применения электроэнергии. Лучший вариант для удаленной местности, где наблюдаются перебои с поставками электричества.
- Длительный срок эксплуатации. Из-за низкого давления в системе оборудование менее подвержено износу.
- Бесшумность, т.к. наличие циркуляционного насоса не предусмотрено.
Недостатки:
- Большой расход материалов. Большие затраты, т.к. применяются трубы больших диаметров.
- Трудоемкий процесс монтажа. Сложность обеспечить правильный уклон.
- Применяются в домах с суммарной площадью трубопроводов не более 150 м2.
- Длительный процесс нагрева помещений.
- Сложность отвода кислорода из теплоносителя. Может быть устранено путем проектирования правильного уклона труб, который обеспечит естественный отвод пузырьков через расширительный бачок в воздух.
Теплотехнический расчет системы отопления: зачем он нужен и как его выполнить
Для начала попробуем понять, для чего он нужен и что в итоге мы сможем узнать.
Параметры
Описание
Мощность котла
Действительно, проведя полные расчеты этот параметр мы определим с точностью. Это необходимо для того, чтобы не приобрести котел меньшей мощности, чем необходимо (не будет хватать тепла для отопления всех комнат) или большей (зачем переплачивать за ненужный перерасход топлива или электроэнергии)
Мощность радиаторов
Это необходимо для определения того, хватит ли выделяемого ими тепла для помещения, в котором они находятся и не придется ли их держать в прикрытом состоянии, что опять же ударит по карману при приобретении
Ежемесячные расходы на отопление
Планирование бюджета – довольно важная составляющая
Зная то, сколько нужно будет тратить в месяц этот процесс будет намного проще
Как уменьшить теплопотери
Это тоже очень важно. Ведь при отсутствии утечек тепла и экономия на отоплении дома возрастает
Об этом мы сегодня еще обязательно поговорим
Будет ли скапливаться влага
Этот фактор важен не только с точки зрения сырости как составляющей теплопотери, а так же и как фактора, определяющего срок службы самого дома.
Конечно лучше для этой цели нанять профессиональных проектировщиков, но в этом случае оплата их услуг составит довольно внушительную сумму. Если подобное неприемлемо, лучше произвести расчет отопления частного дома своими руками. Но нужно быть готовым к тому, что сделать это будет достаточно сложно. Рассмотрим основное, что необходимо знать для этого.

Утечку тепла может помочь найти тепловизор
Расчет мощности котла отопления по площади дома – самый простой этап
По общепринятым правилам на каждые 10 м2 необходим 1 кВт мощности. Таким образом при условии, что общая площадь всех отапливаемых помещений дома равна 170 м2 требуется котел в 17 кВт. Но не стоит забывать и про добавочные коэффициенты.
| Поверхность | Крыша | Стены | Пол | Окна | Вентиляция |
| Коэффициент, % | 20 | 25 | 5 | 20 | 35 |
Таким образом, сложив все полученные коэффициенты можно сделать вывод, что к рассчитанной мощности нам необходимо добавить еще 105%. Итого получаем почти 35 кВт. Это достаточно много, но это лишь примерные расчеты. Для более точных вычислений предлагаем воспользоваться онлайн калькулятором.
Онлайн-калькулятор расчета котла для отопления дома
Расчет расширительного бака для отопления двухэтажного дома
Для многих это малозначимый вопрос. На самом же деле, давайте порассуждаем, что будет если:
- Воды в расширителе недостаточно. В этом случае, независимо от того, открытое отопление или закрытое смонтировано, при остывании, естественно, теплоноситель уменьшается в объёмах, что приводит к аэрации, иными словами к завоздушиванию системы. Что при этом происходит описывалось выше;
- Слишком много воды (маленький расширительный бачок) – вода при нагревании расширяется и либо переливается через верх (открытая система), либо выдавливается через аварийный клапан (закрытая). Далее, система остывает, воды становится меньше и… см. предыдущее.
Таким образом эти расчеты так же очень важны. Обычно за объем расширительного бачка берут 10% от общего количества жидкости в системе. Мы же предлагаем вам, опять же, воспользоваться онлайн калькулятором. Ведь это намного проще и быстрее.

Расширительный бак необходимо выбирать с умом, после всех расчетов
Калькулятор расчета объема расширительного бака для отопительной системы
Расчет циркуляционного насоса для системы отопления – насколько важны эти вычисления
Представим ситуацию, что приобретен и установлен рециркуляционный насос с малой производительностью, которой не хватает для продавливания воды по всем контурам. В этом случае владелец столкнется с такой проблемой, как резкие перепады температур между радиаторами – ближайший к бойлеру будет слишком горячим, дальний же наоборот – чуть теплым. К тому же это чревато закипанием воды на ТЭНах. Получается, что автоматика будет периодически, причем довольно часто, отключать бойлер. В результате получится очень низкая температура во всех помещениях дома.
Теперь что касается насоса со слишком большой производительностью. В этом случае вода слишком быстро циркулирует, что не дает нагревателю поднять температуру до необходимой. Вернее, это произойдет, но через очень долгий промежуток времени. При этом, нагнав необходимое тепло, ТЭНы отключатся, вода немного остынет и все повторится вновь. Результат – очень большой расход электроэнергии бойлером при низкой производительности. А значит точные расчеты просто необходимы.

При монтаже отопления все штуцера должны быть тщательно протянуты
Разводка

Тип разводки
Проектируя схему подключения радиаторов в горизонтальной компоновке, необходимо выбрать между верхней и нижней разводкой. Это влияет:
- на расположение расширительного бака
- на эстетичность помещений
- на эффективность работы системы и ее склонность к завоздушиванию
Верхняя разводка

Верхняя разводка
Подающий трубопровод монтируется в верхней части помещения, обратный контур – как можно ниже, в том числе в полу. Перепад высот повышает давление, что в первую очередь актуально для системы с естественной циркуляцией.
Расширительный бак в этом случае необходимо смонтировать как можно выше – под потолком верхнего этажа, в перекрытии или на чердаке. В последнем случае нельзя забывать об утеплении емкости, иначе теплоноситель будет быстро остывать и испаряться.
Трубы подающего контура, размещенные под потолком или ниже окон, не украшают интерьер, для монтажа трубопровода требуется большое количество комплектующих. Но эти недостатки компенсируются отсутствием воздушных пробок.
Верхняя разводка – подходящий вариант для энергонезависимой отопительной системы с естественной циркуляцией для небольшого частного дома.
Нижняя разводка

Нижняя разводка
Монтаж труб подачи и обратки вдоль пола позволяет максимально скрыть коммуникации. Допускается укладка трубопровода внутри стен, в полу, за плинтусом, но даже при открытом расположении труб отопительная система хорошо вписывается в интерьер.
Нижняя разводка в полной мере подходит для систем с принудительной циркуляцией и мембранным расширительным баком. В противном случае придется ежедневно удалять воздушные пробки, препятствующие движению теплоносителя, либо смонтировать громоздкую систему воздушных линий, которые помогут выводить скопившийся воздух через расширительный бак открытого типа.
К преимуществам нижней разводки относят малые теплопотери, возможность оптимально распределять тепло по отапливаемым помещениям, компактность и привлекательный внешний вид.
Попутная и лучевая

Лучевая разводка
Попутной разводкой (нижней и верхней) называют такой вариант монтажа контуров, когда радиаторы подключены при помощи отводов непосредственно к подающей и к обратной трубе.
Лучевая разводка (нижняя) отличается тем, что каждый прибор отопления подсоединен к коллекторам подающего и обратного контура. В этом случае все приборы управления системой вынесены на коллекторный узел.
Лучшие электрические котлы | ТОП-15: Рейтинг 2022 + Отзывы
Двухтрубная схема с нижней разводкой
В этой схеме магистрали подачи и обратного тока воды устанавливаются внизу радиаторов. Основное отличие в том, что двухтрубная система отопления с нижней разводкой, схема которой проста, меняет движение теплоносителя – начинается транспортировка снизу вверх через радиаторы и затем по обратке возвращается в прибор нагрева (котел).

Таким образом можно подключить несколько контуров, сделать тупиковую разводку или оборудовать схему с попутным течением носителя. Минус в высоком риске образования воздушных пробок, для исключения которого требуется установка кранов Маевского. Краны должны стоят на каждой батарее, особенно если речь идет о 2-х и более этажном доме. Но можно заменить вентили специальными воздушными линиями, включаемыми в систему, – это воздухоотводчики, собирающие и выводящие воздух в центральный стояк, откуда он попадает в расширительный бак и через клапан выводится наружу.
Поскольку почти все батареи с нижней разводкой в 2-х трубной системе – это тупиковые разводки, их дополняют спускниками. По причине скопления воздуха не рекомендуется применять открытый расширительный бак, в этом случае воздух придется спускать практически ежедневно. Можно убрать воздух, если закольцевать подающие трубы, но так схема становится намного сложнее в исполнении и размеры ее увеличиваются, поэтому применение кольцевого типа нецелесообразно.
К плюсам нижней разводки относят:
- компактность;
- малые теплопотери;
- возможность подключения системы отопления до завершения ремонтных работ в доме.
Прокладка труб отопления снизу гарантирует использование всего объема поступающего тепла, что объясняет снижение расходов на отопление.
https://youtube.com/watch?v=vkXy8qoEukQ
К минусам можно отнести значительные затраты на материалы, элементы и комплектующие системы, малое давление во входной магистральной трубе и удаление воздушных пробок.
Разобраться с нюансами обустройства отопления из двух труб в частном доме поможет видео от профессионалов.
Схема отопления двухэтажного дома — пример схемы отопления
Проектирование системы отопления в современных домах необходимо производить еще на этапе проектирования самого дома. Так вы сможете понять, какие материалы и в каких количествах вам нужны. К тому же, это поможет быстро найти недочеты и исправить их
Важно выбрать самый лучший вариант отопительной системы, оценивая свои материальные возможности, а также доступность ресурсов для содержания системы отопления (количество и качество топлива, климатические условия и тому подобное). Наиболее популярным сейчас является вариант водяного отопления, он подходит для многоэтажных зданий наилучшим образом
Также прочитайте про систему отопления – “Ленинградка”.
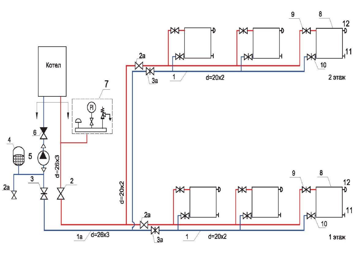
Схема отопления двухэтажного дома
Стандартная разводка отопительных элементов в 2-х этажном доме
Образец разводки отопительных элементов
Рассмотрим схему водяного отопления стандартного здания с двумя этажами. В ней предусмотрено ручное регулирование температуры в каждом отдельном помещении дома. Устанавливается система стандартным образом: с применением горизонтального размещения двух труб, при котором отопительные радиаторы подключены сбоку.
Для системы отопления лучше использовать металлопластиковые трубы, ввиду их прочности и долговечности. Но можно использовать и полипропиленовые трубы, что также будет вполне эффективным решением. Металлопластиковые трубы не требуют специальных навыков монтажа, к тому же внутри них почти не бывает засоров или налипания грязи. Полипропиленовые трубы можно собирать самому, они легки и надежны.
На этапе проектирования системы рассчитывается необходимое количество угловых, разводных и соединительных узлов системы, размечается количество и места установки кранов и заглушек. Проводится анализ необходимого количества радиаторов обогрева и количество секций в каждом из них, от этого в дальнейшем будет зависеть количество тепла, отданного радиатором. Для каждого обогревательного радиатора устанавливаются крепежные кронштейны, в количестве, определенном размерами радиатора.
На схеме присутствует обозначение, где в системе необходимо установить отопительный котел, расширительный бак, а также насос. Отопительный котел может работать на различных видах топлива, но самыми популярными являются газ, твердое топливо или электричество. В новых домах и коттеджах твердое топливо почти не используется в виду своей низкой экологичности.
Если отопительный котел небольшой, то можно установить его прямо в одном из помещений дома, кладовой комнате, например, или в мастерской хозяина. При этом котел вешается на стену, чтобы не тратить пространство. Не рекомендуется ставить котел в спальнях или помещениях типа библиотеки или кабинета. Это связано с тем, что котел при работе может выделять шум, хоть и негромкий. Большие котлы необходимо размещать в отдельном помещении или даже в отдельно стоящей постройке.
Пример размещения бака в доме
Размещение бака: снизу или сверху
Если в вашем доме есть подвальное и чердачное помещения, то вы можете сделать систему отопления с нижней разводкой труб или с нижней на свое усмотрение.
- Если разводка верхняя, то котел помещается на чердаке и оттуда горячая вода подается по стояку ко всем отопительным радиаторам.
- Если вы выбрали нижнюю разводку, то бак устанавливают в подвале и оттуда с помощью насоса нагретая вода расходится по трубам.
Какой вариант вы бы не выбрали, расширительный бак всегда устанавливается в самом высоком месте дома, то есть на чердаке. С котлом нагрева при нижней разводке его соединяет стояк.
Система отопления с одной или двумя трубами
Система отопления с одной трубой представляет собой кольцо. Вода из котла идет сперва на один этаж, потом возвращается обратно в бак через другой. В итоге на одном этаже температура выше, на другом ниже. Чтобы скомпенсировать это явление, на нижних этажах (где обычно вода уже не такая горячая) ставят радиаторы большего размера, чем на верхних. К тому же в системе с одной трубой нет возможности отключить один конкретный обогреватель. Необходимо отключать всю систему целиком.
Система отопления образец
Система с двумя трубами сложнее в установке, но зато у нее почти нет недостатков. В такой системе предусмотрены две трубы: горячая и холодная. Поступая в радиатор, горячая вода остывает и выливается в холодную трубу. При этом вы можете перекрыть один из радиаторов, это никак не скажется на работе остальных.
Трубы для отопления водой
При условии использования стальных труб, нельзя забывать и про ее минус – слабая стойкость к коррозии. Трубы, выполненные из нержавеющей стали или оцинкованные, лишены такого минуса. При монтажных работах наилучшим решением будет применение соединения с помощью резьбы. Металлические трубы в наши дни довольно мало востребованы.

Медные трубы в отоплении
Медные трубы соединяются с использованием пайки с высокими температурами с помощью припоя, в котором содержится серебро. По желанию – можно укрыть трубы в стены, что будет довольно красиво и удобно. Недостатком таких труб будет их немалая стоимость, но этот недостаток является единственным. Подобные трубы являются очень надежными и рекомендованными. Если их правильно установить, они смогут прослужить для нескольких поколений жильцов. Не появится нужда замены или ремонта труб. Подобный тип труб является качественным и довольно надежным.
У полипропиленовых труб есть свои достоинства – они являются удобными при установке, сделать какую сможет даже установщик без профильного образования, что даст существенную финансовую экономию. В полимерных трубах внутри нет откладывания осадка, это значит, что эти трубы не забьются очень быстро и будут стойки к коррозийным процессам. Установка таких труб происходит при использовании соединений резьбового или прессового типа без использования сварки. Недостатком является довольно высокий показатель теплового расширения. Это может стать причиной течи.
При проектировании отопления, нужно продумать про тип труб, наиболее подходящих для данной постройки с учетом альтернативного и аварийного отопления. Само собой, что многие факторы имеют материальную основу. Но наилучшим решением будет не экономить на отопительной системе. Данный фактор будет влиять на условия проживания зимой и смогут ли жильцы получать удовольствие от проживания в уюте и тепле.
Советом профессионалов является выбор трубопровода из меди. Такой трубопровод сможет прослужить долго и надежно для своих хозяев в течение пары поколений. Цена такого трубопровода будет выше, но при этом будет выше и надежность.
В постройках с двумя этажами чаще всего используются следующие схемы по разводке отопления: коллекторная, двухтрубная и однотрубная.
Преимущества однотрубной системы отопления и ее недостатки
Для владельцев небольших жилых домов однотрубная отопительная система выглядит заманчиво, особенно если обратить внимание на ее следующие преимущества:
- обладает устойчивой гидродинамикой;
- удобство и простота проектирования и установки;
- небольшие затраты на оборудование и материалы.
К косвенным плюсам однотрубной системы можно отнести безопасность подачи теплоносителя, который расходится по трубопроводу путем естественной циркуляции.
К наиболее частым проблемам, с которыми приходится сталкиваться владельцам однотрубной системы отопления, можно отнести следующие аспекты:
- технические сложности устранения просчетов в работе, допущенных при проектировании;
- тесная взаимосвязь всех элементов;
- высокое гидродинамическое сопротивление системы;
- технологические ограничения, связанные с невозможностью самостоятельной регулировки расхода теплоносителя.
Несмотря на перечисленные недостатки такого типа отопления, грамотно сделанный проект отопительной системы позволит избежать многих трудностей еще на стадии монтажа. Ввиду перечисленных преимуществ и экономической составляющей, однотрубные схемы получили достаточно широкое распространение. Реальными преимуществами обладают и однотрубная, и другой тип, двухтрубная система отопления. В чем можно выиграть, а в чем проиграть, выбрав для своего дома один из типов?
Варианты схем устройства однотрубного отопления
Перед монтажом схемы отопления частного дома, нужно определиться, какой ее тип подойдет в каждом конкретном случае.
Системы с естественной и принудительной циркуляцией
Каждая система обладает своими особенностями:
- Естественная. Передвижение жидкости по контуру осуществляется благодаря физическим законам без применения дополнительного оборудования. Для хорошей работы в одноэтажном здании система дополнительно оснащается разгонным коллектором.
- Принудительная. Для эффективной ее функциональности требуется насос, приводящий жидкость внутри контура в движение. Преимуществом является беспроблемное преодоление гидравлического сопротивления, равномерное прогревание по все системе, возможность использования сложных схем разводки труб. Использовать этот вариант можно в двухэтажных домах.
Выбор типа циркуляции теплоносителя зависит от особенностей конструкции и размеров сооружения.
Открытая и закрытая отопительная система
Расширительная емкость открытого типа устанавливается на самой высокой точке системы и представляет собой бак, в который выходит лишняя часть теплоносителя при его увеличении его объема. Так как вода испаряется, то периодически жидкость доливают избежание закипания котла. Кроме того, в воду попадает кислород, что увеличивает риск развития коррозии.
При обустройстве закрытой ленинградки применяется мембранная емкость, отличающаяся высокой герметичностью. При увеличении объема жидкости мембрана просто выгибается в сторону воздушной полости. При охлаждении теплоносителя гидравлическое давление снижается, и приспособление возвращается на место. Тут, вместо воды разрешено использовать другие жидкости (антифриз, масло).
Такую систему нужно оснащать группой безопасности, так как небольшое избыточное давление все-таки остается.
Верхняя и нижняя разводки
При обустройстве однотрубного отопления схему и порядок монтажа определяет тип разводки труб:
- Верхняя. В этом случае жидкость по стояку поднимается вверх и поступает непосредственно к радиатору. Чаще всего циркуляция при этом естественная. Для эффективной функциональности магистраль нужно укладывать под определенным углом наклона (3-5 градусов). Единственный недостаток конструкции — применение труб большого диаметра.
- Нижняя. Подающий стояк в этой схеме отсутствует. Труба, по которой жидкость поступает в радиаторы, тоже должна быть монтирована под правильным уклоном.
Нижняя разводка ленинградки используется чаще, так как смонтировать ее проще. Но тут обязательной является принудительная циркуляция.
Вертикальная и горизонтальная
Вертикальная конструкция чаще всего применяется в многоэтажных сооружениях. Жидкость в этом случае подается на верхний этаж, откуда распределяется по трубам, спускаясь вниз. Горизонтальная схема приемлема только для одноэтажного дома. В ней радиаторы подключаются последовательно.
Однотрубная система отопления
Современные строители придерживаются однотрубной схемы разводки отопления для сооружения с двумя этажами. Такая схема подразумевает установку абсолютно всех излучателей тепла в помещении. В итоге образуется длинная цепочка из соединенных труб. По ним проходит поток горячей воды, которая нагревает все радиаторы. Данная схема поспособствует равномерному нагреванию воздуха во всем помещении.
В случае если площадь дома очень большая, то можно установить двухтрубную схему эффективного водяного отопления. Не смотря на то, что такая схема очень дорогостоящая, эффективность нагревания воздуха будет максимальной. Для этого следует подключить подводку ко всем радиаторам в индивидуальном порядке. В данном случае работает коллекторная схема отопления двухэтажного дома.
Коллекторная схема отопления двухэтажного дома:

Если применить именно эту схему отопления, то можно намного эффективнее нагреть все помещение, а также лучше контролировать температуру, даже в очень большом по размеру двухэтажном доме.
Не менее популярна коллекторная схема, реализованная для отопления двухэтажного строения. Основной особенностью является ее низкая цена и высокая эффективность. Такая схема позволяет проделывать скрытую укладку труб, что существенно повысит эстетичность помещения. Провести установку коллекторной схемы отопления можно самостоятельно, при этом, не имея нужных знаний и высокой квалификации.
Профессиональные строители советуют объединять несколько схем отопления, чтобы добиться нужного результата.
Однотрубная система отопления двухэтажного дома:

Двухтрубная система отопления двухэтажного дома:

Схема отопления современного городского 2-этажного дома существенно отличается от схемы отопления городской многоэтажки и одноэтажного сооружения.
Во-первых, система отопления индивидуального двухэтажного дома должна быть очень проста в монтаже, так как не всегда удается нанять высококвалифицированных ремонтников, чтобы они грамотно спроектировали работу. Также отличие системы отопления частного двухэтажного дома является в том, что ее можно легко установить самостоятельно, чего не сделаешь в многоэтажном или одноэтажном сооружении.
Для частного дома предусмотрены более надежные системы отопления, с использованием высококачественного материала. Современные строители отдают предпочтение двухтрубным системам, которые очень надежные и экономичные в процессе эксплуатации
Это очень важно требование при установке системы отопления в двухэтажном доме
Еще одним отличием является то, что в двухэтажном доме не требуется установка дополнительного насоса, в отличие от городской многоэтажки, где нужно больше водного напора для более эффективной поставки воды в квартиры. Как известно, в квартирах многоэтажки требуется установка дополнительного котла, для того, чтобы лучше контролировать температуру в помещении.
Однотрубная схема отопления двухэтажного дома с принудительной циркуляцией:

При монтаже системы отопления в сооружение с двумя этажами, не обойтись без принудительной циркуляции всего помещении, в противном случае упадет эффективность обогревания, а это существенные потери денежных средств. Также могут случаться перебои с электропитанием и отопительными приборами. Из-за того, что напор воды очень большой, специалисты советуют приобрести регулятор мощности водного потока, чтобы не вывести из строя трубы.
Для двухэтажного дома лучше всего приобрести конденсационный котел. Это позволит извлечь максимум тепла, за счет того, что происходит лучшая конденсация при сгорании продуктов. Для многоэтажного дома, соответственно, специалисты рекомендуют покупать твердотопливные котлы, так как в них топливо сгорает при ограниченных запасах воздуха, что часто бывает в квартирах на последних этажах.
Перед тем, как делать выбор котла для двухэтажного сооружения, следует определить общую площадь всего жилья, чтобы подобрать наиболее подходящий по мощности конденсационный котел.
Специалисты не советуют самостоятельно устанавливать данное оборудование, так как малейшие ошибки могут повлечь за собой большие проблемы с давлением в системе отопления частного двухэтажного дома.
Лучше всего доверить такую работу высококвалифицированным специалистам — котловикам, которые имеют большой опыт в установке котлов в именно двухэтажный дом.
А как работает правильно собранная схема?
При выполнении классической однотрубной схемы («ленинградской»), когда под радиаторами проложена магистральная труба, ситуация другая. Движущийся теплоноситель, встречая на своем пути первый тройник, распределяется на два потока в соответствии с величинами гидравлических сопротивлений прямого пути и бокового отвода тройника. Из-за большего гидросопротивления бокового отвода в радиатор затекает небольшая часть общего потока теплоносителя (обычный «коэффициент затекания» составляет 0,2-0,3). Эта малая часть остывает внутри батареи на несколько градусов, как показано на рисунке ниже, подмешиваясь на выходе к основному неостывшему потоку. Результирующая его температура оказывается выше, чем при пропускании всего объема жидкости через отопительный прибор.
Распределение теплоносителя в обвязке радиатора «ленинградской» схемы.
При движении по контуру температура жидкости все равно снижается, но в меньшей степени, до температуры уже не 35 °С, а примерно 45 °С, т.е. батареи в цепочке оказываются более выровненными по нагреву. Специалисты высказывают мнение, что однотрубная схема («Ленинградка») позволяет добиться равномерного прогрева до 10-11 радиаторов в контуре (по десять секций в каждом приборе).
Заключение по теме
Как видите, вопрос, как провести отопление в двухэтажном доме, требует разного подхода к организации процесса. Вариантов много, и выбрать один оптимальный не всегда просто. Для этого нужно прислушаться к советам и рекомендациям специалистов. Они с такими вопросами сталкиваются постоянно, поэтому для них подобрать необходимую систему не составит труда. А вот самостоятельно выбранная схема может оказаться неточной, что приведет к расходам не только на первоначальном этапе, но и при последующей эксплуатации.
Читайте далее:
Как правильно делать отопление в загородном доме?
Электроотопление в частном доме — варианты отопительных систем
Как сделать отопление в деревянном доме экономичным
Как своими руками сделать эффективное отопление в собственном доме?
Варианты отопительных систем для частного дома




































