Плюсы дома площадью 100 м2
1. Чем меньше коттедж, тем он дешевле. Учитывая постоянный рост цен на стройматериалы, инженерное оборудование и монтажные работы, дом небольшой площади может оказаться оптимальным вариантом для семьи со средним достатком, которая мечтает жить загородом.
К слову, стоимость стометрового дома с участком недалеко от Москвы, как правило, близка к стоимости двухкомнатной квартиры на периферии столицы или небольшой трёшки в ближайшем «замкадье». По сути это реальная альтернатива городскому жилью, только большей площади и с оптимальной для конкретной семьи планировкой. Ну и с многочисленными бонусами – чистым воздухом, собственным облагороженным участком, где есть место для игр и шашлыков, постоянно свободной парковкой, отсутствием топающих и сверлящих стены соседей и пр.
2. Любой дом требует эксплуатационных расходов и периодического ремонта, но в случае компактного коттеджа затраты будут ощутимо меньше, чем в случае особняка.
3. Маленькие дома строятся быстрее. Конкретные сроки зависят от технологии строительства, этажности и других факторов. Основательный дом из газобетона можно возвести за 2-3 месяца.
4. Компактный дом – отличное решение для маленьких участков. Даже одноэтажный коттедж площадью 100 м2 без проблем удастся разместить на 6 сотках. Если же хочется, чтобы на участке было просторнее, то стройте двухэтажное здание.
5. Небольшой дом дешевле отапливать зимой, тем более если в посёлке нет магистрального газа и приходится выбирать дорогие энергоносители
Обратите внимание: цены на энергоносители постоянно растут, и чем меньше площадь здания, тем больше денег будет оставаться в вашем семейном бюджете, вместо того чтобы «улетать в трубу»
6. Дом небольшой площади проще убирать. Представьте, сколько времени вы тратите на уборку городской квартиры. А теперь представьте, как долго вы будете пылесосить и мыть полы в загородном доме, который намного больше, чем квартира. Притом на уборку коттеджа площадью, например, 150 м2 придётся потратить в 1,5 раза больше времени, чем на уборку стометрового.
Определение основных требований к проекту дома
Чаще всего люди имеют очень расплывчатое представление о будущем доме своей мечты. Перед тем, как выбирать проект, нужно все тщательно продумать. Для начала просто попытайтесь его представить максимально детально. Что вы хотите получить от этого жилья? Место для отдыха на выходных, дачу или надежное место жительства? Сколько комнат должно быть в нем и для скольких проживающих? Все это может упростить выбор основного концепта здания и приблизить вас к окончательному выбору нужного проекта. Правильно поставленные цели и требования к дому могут уберечь вас от чрезмерных затрат времени и финансов на ненужные вещи. Первым, что нужно выбрать — это какие функции будет выполнять будущее здание: для постоянного проживания или периодического отдыха. От количества жильцов в нем зависит его планировка и общая площадь.
Гостиная дома по типовому проекту «Matas»
Кухня средних размеров в типовом кирпичном доме «Matas»
Общий план дома по типовому проекту «Matas»: тамбур+прихожая — 13,3 кв. м; гостиная — 16 кв. м; кухня- 13,3 кв. м; гостиная- 32,4 кв. м; гараж — 21,2 кв. м; котельная — 6,3 кв. м; санузел 8,1 кв. м; спальня — 14,6 кв. м
Если вам нужно небольшое жилье для проживания в нем маленькой семьи или периодического отдыха за городом, то отличным выбором будет коттедж. Чаще всего это небольшое здание с одним или полутора этажами. Второй этаж выполнен в виде мансарды, а роль стены с одной или обеих сторон наклонены. Их роль выполняет крыша здания. Коттеджи могут служить как для постоянного проживания небольшой семьи, так и для периодического отдыха или сезонного проживания. Самые простые коттеджи могут включать только две жилые комнаты. Они строятся обязательно за чертой города и обычно являются частью природного пейзажа. Обязательный атрибут любого коттеджа — это приусадебный участок. Он может быть небольшим в пять соток, или же занимать приличную площадь. Для большего единения с природой на таких участках могут высаживать сады или выкапывать пруд.
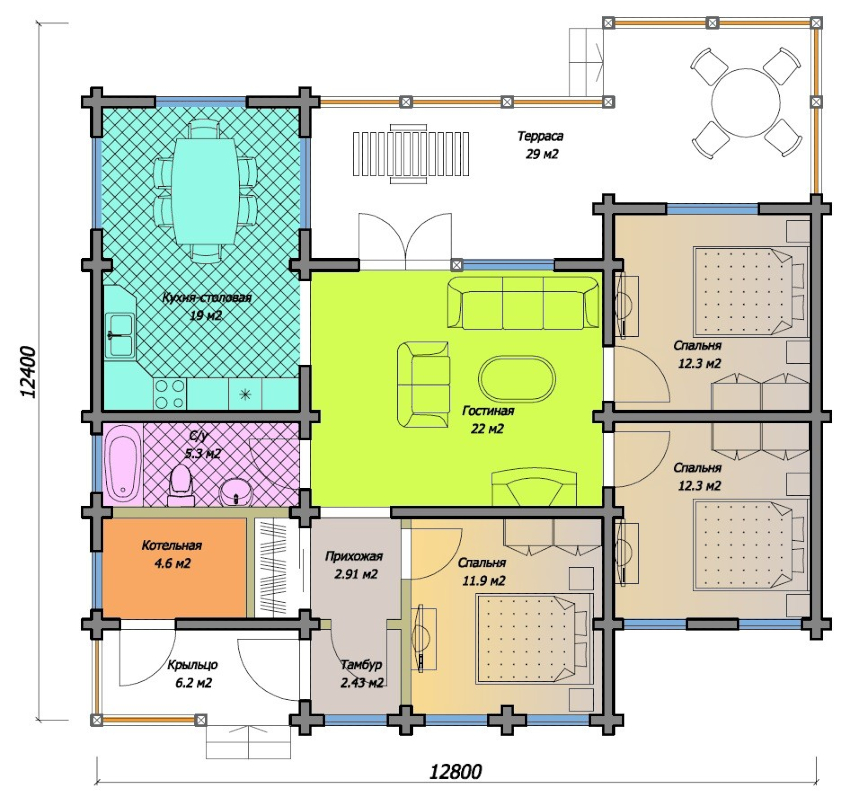
Ситуационный план из проекта одноэтажного дома площадью 107 кв. м
План благоустройства участка из архитектурно-строительной части проекта
Все общие данные о будущем здании находятся в конструктивном разделе архитектурно-строительной, первой части проекта
Эскизный чертеж: разрез здания (на фото выше) в одной из проекций
Современные технологии в строительстве
Инновационные строительные технологии предполагают высокотехнологичные стройматериалы, новые способы их монтажа, нестандартные технологии всего строительного процесса. Как итог — частный дом имеет более высокие эксплуатационные характеристики. Рассмотрим несколько прогрессивных технологий.
Тисэ
Технология Индивидуального Строительства и Экология (Тисэ) была изобретена российскими строителями. Ее другие названия — «народная», «переставная опалубка». Главное преимущество Тисэ — возможность возвести дом самостоятельно, без помощи специалистов.
Метод строительства домов по Тисэ заключается в следующем:
- Фундамент возводится из свай или столбов, объединенных железобетонной рамой (ростверком). Для бурения скважин используется бур специальной модификации.
- Стены собираются из пустотелых бетонных блоков. Они изготавливаются непосредственно при возведении кладки с помощью переносной опалубки.
- Для соединения блоков предусмотрены специальные выступы, поэтому отсутствуют кладочные швы, а значит и мостики холода, которые в них образуются.
- Все работы, за исключением бурения и переноса опалубки (для этого понадобятся 1-2 помощника), выполняются одним человеком.
При использовании технологии Тисэ нет потребности нанимать спецтехнику, а наполнитель для стен выбирается самостоятельно.
Каркасное строительство
Пока что каркасное строительство индивидуального жилья используется не часто, но оно имеет хорошие перспективы в будущем. Дом по новой технологии возводится на основе каркаса из балок, расположенных по вертикали, горизонтали и диагонали. Можно использовать металлические заготовки, но их монтаж усложняет процесс строительства. Затем обрешетка обшивается. Пространство между обшивкой и балками заполняется материалом с высокими теплоизоляционными свойствами: пенополиуретаном, керамзитом, пенобетоном или волокнистым утеплителем.
Самым удачным вариантом для обшивки являются плиты OSB. Есть и другой вариант — сборные щиты, которые уже оснащены гидроизоляцией и утеплителем. Но он дороже и сложнее в исполнении, требует спецтехники и инженерных знаний. Можно использовать сэндвич-панели, которые по сравнению с кирпичным строительством экономичнее в 10 раз.
К преимуществам каркасно-щитовых домов относится то, что для них подходит любой фундамент и любой тип грунта, а устанавливая дополнительные каркасы, можно без труда производить перепланировку или делать достройку помещений.
3d-панели
Метод 3d-панелей соединяет в себе каркасно-щитовое и монолитное строительство. Ноу-хау этой технологии заключается в том, что вместо сборных щитов используются пенополистирольные плиты, усиленные с обеих сторон армированной сеткой. Они формируют каркас постройки. Соединяются плиты с помощью металлических стержней, которые привариваются к сетке по диагонали. В результате образуется пространственная 3d-конструкция, давшая название методу. После монтажа панели покрывают бетонной «рубашкой» снаружи и внутри.
Хотя идея этой технологии возникла в Америке, в России и в ближнем зарубежье ее знают под брендом «Русская стена». К плюсам 3d-панельного строительства относится то, что полимерные материалы, используемые для изготовления плит, являются надежным утеплителем, это способствует сохранению тепла в помещении. Кроме того, монтаж упрощается благодаря небольшому весу монолитных плит из пенополистирола.
Несъемная опалубка
Среди новых технологий в строительстве домов несъемная опалубка используется часто. Она заключается в следующем: из панелей или блоков сооружается опалубка, в полость которой вставляется арматура и заливается бетонная масса, выполняющая несущие функции. Плиты, формирующие конфигурацию стены, не удаляются и используются для утепления.
К преимуществам этой технологии (ее иногда называют «Термодом» или «Изодом») относится потребность в минимальном количестве строителей, а при правильном выборе наполнителя для опалубки не придется делать дополнительную теплоизоляцию.
Модульные дома
К новинкам быстровозводимых домов относятся модули — готовые элементы здания, которые изготавливаются на строительном комбинате. В них проложены инженерные коммуникации, вставлены окна, двери. Застройщику остается установить модули на предварительно сооруженный фундамент и соединить их специальными креплениями.
Индивидуальные проекты загородных домов и коттеджей
В настоящее время каждый может найти в сети готовый проект коттеджа или же загородного дома, поэтому составление индивидуального плана вовсе не является обязательным пунктом строительства. Однако существуют ситуации, когда такой вариант не может быть исполнен. Рассмотрим, какие факторы влияют на необходимость разработки индивидуального проекта.
Основная причина, из-за которой возникает потребность в создании специального плана, заключается в особенностях рельефа участка на месте будущего строительства. Например, территория может быть наклонной. Нередко случается, что реализовать стандартный проект невозможно из-за естественного водоема, располагающегося на участке.
А также индивидуальный план загородного дома нужен в том случае, когда хозяева хотят выполнить нестандартную задумку или, например, объединить все хозяйственные сооружения на участке.

Проект коттеджа должен учитывать смету с указанием всех необходимых расходов
Перед тем как приступить к созданию такого плана, потребуется ознакомиться с основными этапами этой работы.
Вначале, как правило, заказчик проводит обсуждение с архитектором. На этом этапе учитываются все нюансы строительства, такие как площадь дома, его габариты и т. п. Далее подбирается наиболее подходящий вариант планировки помещений внутри постройки. Затем разрабатывается чертеж фасада и генеральный план строительства. Проект коттеджа обязательно должен учитывать смету, в которой указываются все необходимые расходы.
На следующем этапе создается архитектурный план, который представляет собой альбом, содержащий чертежи и рисунки. Заключительная фаза проектирования включает в себя подготовку рабочей документации, которая регулирует порядок строительства.
Индивидуальный план является документом, который имеет множество достоинств по сравнению с любым стандартным проектом
Очень важно, что в этом случае учитываются все пожелания заказчика

Индивидуальный план коттеджа нужен, когда хозяева хотят выполнить нестандартную задумку
С чего начать составление плана коттеджа и строительство
Наличие земельного участка позволяет возвести в его пределах красивый дом, построенный по стандартному или индивидуальному плану. Многих людей интересует вопрос о том, с чего требуется начинать работу по составлению проекта.
Самостоятельно подготовить такой документ практически невозможно, так как для этого необходимо обладать обширными знаниями, охватывающими несколько строительных областей. Лучше всего обратиться за квалифицированной помощью к специалистам в дизайнерское бюро. Совместно с профессионалами осуществляется выбор лучшего проекта дома, при этом реализуется возможность учесть особенности территории и финансовые способности заказчиков.
Как правило, на создание специального плана уходит несколько недель. После составления оптимального для конкретной ситуации проекта можно приступить к строительным работам.
При желании можно воспользоваться бесплатным проектом коттеджа. В сети находится довольно много готовых стандартизированных решений. Это позволит сэкономить финансы, так как в данном случае не придется платить архитекторам.

Самостоятельно подготовить план коттеджа очень сложно, поэтому лучше обратиться к специалистам
Универсальный тип жилого здания
Двухэтажные частные дома – это возможность выбрать из огромного списка предложений. При этом классификация сооружения основывается не только на архитектурных данных. Есть три позиции, которые можно заложить в основу выбора:
- Строительные материалы, из которых коттедж будет возводиться. Здесь нет никаких ограничений в плане выбора. Можно использовать любой. Но необходимо учитывать момент, связанный с реализацией чисто технологических строительных операций. В основном это касается утепления здания. То есть в зависимости от региона, где планируется строить коттедж в два этажа, от выбранного стройматериала решаются проблемы теплоизоляции: надо проводить или нет. Если «ДА», то в каком объеме.
- Есть возможность разнообразить проект здания, запланировав вспомогательные архитектурные элементы: мансарду, веранду, террасу, эркер и прочее.
- Если выбирается индивидуальный проект, то можно пофантазировать и поставить перед разработчиками задачу в плане оптимальных размеров жилых комнат и служебных помещений в зависимости от их назначения.
Двухэтажный коттедж с террасойИсточник litosstroy.ru
Что касается последней позиции, то индивидуальные проекты часто по расположению комнат не отличаются от типовых, в которых на первом этаже располагают гостиную, иногда игровую комнату для детей, кухню. На втором этаже располагают спальни для всех членов семьи, а также санузлы. А вот для котельной, мастерской и других аналогичных помещений подвал.
Преимущества и недостатки частных домов в два этажа
Популярность двухэтажных загородных домов обусловлено многими факторами:
- Экономия территории загородного участка. Это особенно актуально для тех, кто является владельцем небольшого земельного надела. То есть на небольшой площади сооружается дом, в котором поместится одна семья. И при этом будут учтены все комфортные условия проживания.
- В одном здании совмещают различные помещения с разным назначением, особенно, если в здании есть цокольный этаж, где можно разместить гараж или мастерскую.
- Нет никаких ограничений в плане архитектурного наполнения самого дома. То есть это может быть классический коттедж, построенный в стиле минимализма, арк-деко, барокко и прочее.
- Внутренний дизайн также ничем не ограничивается.
Двухэтажный дом может быть компактнымИсточник kbt.by
Что касается недостатков. При кажущейся экономии стройматериалов на самом деле строительство двухэтажных домов – дело затратное. Во-первых, под такую постройку требуется усиленный фундамент. Во-вторых, формируются три перекрытия, а не два, как в одноэтажном строительстве. В-третьих, сооружается лестничная конструкция, соединяющая первый и второй этаж. А это тоже немалые финансовые вложения. В-четвертых, придется проводить инженерные сети на второй этаж, что связано с расходами на приобретения соответствующих материалов.
И это не все недостатки. Сюда можно еще добавить, что пожилым людям, инвалидам и маленьким детям сложно подниматься на второй этаж. Выход из положения – или размешать их на первом этаже, или продумать удобную и безопасную систему подъема.
Лестница внутри коттеджа, соединяющая первый и второй этажИсточник pinterest.ru
Стоимость проектов
Красивое и просторное жилье не обязательно должно быть огромным. Современные тенденции строительства склоняются к минимализму и компактности. Дизайнеры предлагают тысячи проектов домов до 150 кв. м. Есть, из чего выбрать. Стоимость создания проектов можно сравнить в следующей таблице:
Источник a1-dom.ru | Источник trinixy.org | Источник sevstroy.su |
141м² Цена проекта от 24 тыс ₽ | 93м² Цена проекта от 25.5 тыс ₽ | 111м² Цена проекта от 28 тыс ₽ |
Источник www.domamo.ru | Источник z500.com.ua | Источник stroykirpich.com |
104м² Цена проекта от 20.4 тыс ₽ | 109м² Цена проекта от 29 тыс ₽ | 113м² Цена проекта от 37 тыс ₽ |
Источник yandex.uz | Источник paradigma-stroy.ru | Источник dizajnroom.ru |
107м² Цена проекта от 27 тыс ₽ | 130м² Цена проекта от 27.5 тыс ₽ | 143м² Цена проекта от 27.5 тыс ₽ |
Источник art-stroigroup.ru | Источник algoritm-stroi.ru | Источник domvm.ru |
138м² Цена проекта от 23.5 тыс ₽ | 141м² Цена проекта от 25.5 тыс ₽ | 127м² Цена проекта от 25 тыс ₽ |
Планировка двухэтажных домов: красивые проекты и их преимущества
Ассортимент различных проектных решений в настоящее время невероятно широк. Подбор наиболее подходящего из них – ответственное мероприятие, которое требует учета множества факторов. Двухэтажные коттеджи отличаются от одноярусных построек. Для того чтобы не ошибиться при выборе строительного плана, рекомендуется изучить особенности данного вида сооружений.
В первую очередь необходимо отметить, что выбор проекта двухэтажного коттеджа подходит в том случае, когда на участке недостаточно места для сооружения одноярусной постройки.
В стандартный проект, взятый из сети, можно внести некоторые изменения. Однако корректировка планировочных особенностей здания не должна вредить надежности конструкции.
Возведение коттеджа, имеющего два яруса, позволяет максимально сэкономить площадь участка и использовать ее для сооружения хозяйственных и других построек. Двухэтажные конструкции смотрятся более презентабельно и уютно, причем открываются дополнительные возможности для реализации дизайна. Чертеж коттеджа такого типа может включать в себя балкон, украшенный балюстрадой. Архитектурных решений для отделки фасадов в этом случае существует гораздо больше.

Строительство двухэтажного коттеджа позволяет максимально сэкономить площадь участка
Наиболее подходящим решением для применения второго этажа является обустройство на нем спальных комнат и санузла. Планировка первого яруса предполагает размещение гостиной, кухни, санузла и кладовых помещений.
Керамоблок – современное домостроение по европейским технологиям
В Европе жилые дома, в основном, строятся двумя способами: с применением керамоблоков, а также посредством каркасно-щитовой технологии.
Первый вариант более надежен и долговечен — срок службы составит как минимум 100 лет. Дома из керамоблоков обладают хорошей прочностью, что позволяет возводить постройки как в 2, так и в 3 этажа.
Высота стандартного керамоблока аналогична классическому кирпичу. Отличается от последнего длиной, шириной и весом. Ширина варьируется от 23 до 25 см, длина может составлять от 25 см до 51 см. Чем больше блок, тем проще проводить его кладку, сокращая расходы за счет экономии клеевого раствора. Для стеновой кладки оптимально использовать блоки длиной от 30 сантиметров.
При строительстве дома из керамоблоков толщиной в 38 и более см, можно вообще не делать дополнительную теплоизоляцию стен — эксперты отмечают у этого материала минимальные показатели теплопроводности.
Керамоблок имеет схожую с силикатным кирпичом маркировку по прочности. Для надежности, при возведении стен, рекомендовано использовать блоки, марками от М150 и F50. Такой дом способен выдержать до 50 циклов заморозки/оттаивания, и будет очень хорошо держать тепло в зимнее время года.
Достоинства материала:
- оптимальная степень поглощения шумов;
- хорошая теплоизоляция;
- «дышащая» структура за счет наличия пористости.
Несущие конструкции из керамоблоков регулируют влажность в помещении, впитывают излишки, создавая благоприятный микроклимат. Максимальный срок эксплуатации жилого объекта из керамоблоков — 150 лет, в течение которых материал не потеряет заданные производителем технико-эксплуатационные характеристики.
Из недостатков керамоблока можно выделить:
- высокая цена;
- материал появился относительно недавно на российском рынке, поэтому не каждый мастер обладает навыками работы с ним;
- отличается хрупкостью, что требует создания определенных условий при хранении и транспортировке.
Отделка цоколя
Отделка цоколя здания защищает стены от негативного воздействия влаги, обеспечивает теплозащиту подвальных помещений и выполняет архитектурно-декоративную функцию, эстетично преображая здание. Модной тенденцией последних лет стала отделка цоколя материалами с имитацией натуральных минералов. Такая фактура отлично дополняет деревянные фасады дома, смотрится очень стильно и хорошо справляется с основными функциями цокольной отделки дома. Также в качестве облицовки используют штукатурку, фасадные панели. Из широкого ассортимента оттенков и фактур всегда можно подобрать что-то подходящее под стилистические особенности здания.
На основе вышеописанных трендов можно сделать вывод, что к 2022 году активное развитие сферы загородного строительства в сторону комфорта, рациональности и высокой функциональности происходит вместе с ростом уровня разборчивости домовладельцев. Общая тенденция на экологичный подход в строительстве и образе жизни во многом диктует обществу новые ценности и новые предпочтения по обустройству жилища.
Оптимальная планировка дома
Тенденция к минимализму
Минимализм можно смело назвать одной из главных тенденций в частной архитектуре нескольких последних лет. В широком информационном поле, которым представлен современный мир, так много деталей и визуального контента, что в обустройстве и строительстве собственного домашнего очага большинство домовладельцев стремятся избавиться от лишнего и оставить как можно больше свободного пространства. Сдержанность в архитектуре и лаконичный дизайн свойственны многим современным стилям, используемым в проектировании загородных домов: например, скандинавский стиль, лофт, хай-тек
Особое внимание в минимализме уделяется качеству используемых материалов, эксплуатационные и декоративные свойства которых не меняются на протяжении долгих лет

Достоинства и недостатки каркасной технологии
Технологию каркасного строительства нельзя назвать идеальной, у нее есть не только преимущества, но отрицательные стороны.
Достоинства быстровозводимых домов
- Сроки строительства — главный, и зачастую, решающий аргумент для заказчика. После того как застынет фундамент, простой проект собирают за две недели. Строительство дома большой площади со сложным архитектурным решением занимает несколько месяцев.
- Материалы, используемые в каркасном строительстве: клееный брус, доски, ОСП-плиты, SIP-панели, не деформируются от перемены влажности. Можно сразу приступать к чистовой отделке.
- Экономия на всех этапах: облегченный фундамент, невысокие транспортные расходы, недорогие материалы и монтаж.
- Использование мелкозаглубленных фундаментов.
- Возможность строительства на сложных грунтах.
- Современные утеплители обеспечивают хорошую теплоизоляцию и позволяют жить в каркасном доме круглый год.
- Всесезонность строительных работ.
- Допускается прокладывание коммуникаций в полостях стен.

Недостатки и слабые стороны
- Основной недостаток — небольшой срок эксплуатации, 50-80 лет. Однако любую деревянную постройку нужно ремонтировать, при должном уходе дом простоит дольше.
- Каркасные дома — малоэтажные. Исключение — проекты с каркасом из металлических профилей. При деревянном каркасе не рекомендуется делать три этажа, но мансарда вполне допустима.
- Перепланировка в щитовых домах невозможна, а в каркасно-рамочных зависит от проекта: некоторые стены убираются, если они не несущие. Но вопрос нужно обязательно согласовать с авторами проекта.
- Низкая шумоизоляция.
- Если в качестве утеплителя используется пенопласт, дом может пострадать от грызунов.
- Низкая пожаробезопасность — относительный недостаток. Существуют утеплители, стойкие к возгоранию, например, базальтовая вата. Деревянные части строения обрабатываются защитными составами.






















Источник a1-dom.ru
Источник trinixy.org
Источник sevstroy.su
Источник www.domamo.ru
Источник z500.com.ua
Источник stroykirpich.com
Источник yandex.uz
Источник paradigma-stroy.ru
Источник dizajnroom.ru
Источник art-stroigroup.ru
Источник algoritm-stroi.ru
Источник domvm.ru












