Виды конструкции и варианты планировки
Теrrаssе — площадка или открытый настил на заранее подготовленном прочном основании, представленном чаще всего опорами. В последнее время явное различие между террасами и верандами оказалось «стертым», поэтому с точки зрения архитектурных особенностей на приусадебной территории возводятся следующие виды конструкций:
- полностью закрытые варианты, имеющие стены и крыши, примыкающие к основному зданию или стоящие отдельно, что позволяет при необходимости укрываться от атмосферных осадков и прямых солнечных лучей;
- остекленные светлые и просторные варианты, часто дополняемые прозрачной кровлей из поликарбоната или световым люком;
- полуоткрытые террасы без стен, но с любой по форме и размерам крышей – практичный и функциональный гибридный вариант между закрытой и полностью открытой конструкцией;
- разновидность полуоткрытого помещения со стенами, но без крыши, что позволяет добиться не только оригинального визуального эффекта, но и произвести наиболее удачное зонирование всего пространства;
- тeppacа-пергола с навесом в виде необычного решетчатого потолка и очень изящными ажурными стенами, которые хорошо пропускают солнечный свет, но рассеивают его, создавая некоторое затенение;
- так называемые «балконные» варианты в последнее время приобретают особую популярность и позволяют удачно сочетать урбанистический стиль с комфортным количеством естественной растительности;
- патио, представленные своеобразным открытым вариантом и характеризующиеся обязательным наличием зоны отдыха с печью или камином, в окружении немногочисленной растительности;
- тeppacа – летняя кухня, на которой легко выполняется зонирование общей площади на пространство для приготовления и приёма пищи, а также зеленую зону отдыха;
- тeppacа-кокон с футуристическими обтекаемыми формами, которые способны просто идеально вписаться в окружающий ландшафт, и представлены полом, перетекающим в стены, а также стенами, перетекающими в потолок, что создаёт ощущение органичности и комфорта;
- оригинальная тeppacа-трансформер – мобильная и многофункциональная конструкция с панорамным окном, откидывающимся вниз, и образующим вместительную зону отдыха.
Самым экономичным способом обустройства по-прежнему является возведение традиционной открытой площадки, которая может совмещаться специальными мостиками с крыльцом. Особое значение в такой постройке отводится полу из досок, бетона или насыпного гравия в специальной укрепленной «коробке-опалубке». Деревянная открытая площадка обязательно обрабатывается антисептическими составами, после чего покрывается краской или специальными водостойкими лаками. Для барбекю, камина или печи в этом случае обустраивается пожаробезопасная зона, которую можно сделать на некотором расстоянии и выложить камнем, плиткой или бетоном.
Варианты в ландшафтном дизайне
Дизайн ландшафта напрямую перекликается с оформлением дома, особенно важно подобрать правильную комбинацию, если веранда открыта или полностью застеклена. Ведь тогда она смотрится частью внешнего окружения и должна гармонировать с ним
Выбор стиля зависит в первую очередь от ваших предпочтений:
- Колониальный. Главные особенности данного направления — плетеная садовая мебель, отделка темным деревом, камин. Лучше использовать для просторных веранд.
- Прованс. Если первый стиль был английским, то этот — французский. Отличается светлыми и пастельными тонами, любовью к живым цветам и цветочным узорам, нежному декору, текстилю, кованым деталям: перилам, мебели. Готовый интерьер светлый, подходит для небольших пространств.
- Шале. Своей темной гаммой напоминает колониальный, но выглядит более деревенским. Напоминает охотничий домик за счет обилия дерева, шкур, трофеев, тяжелой массивной мебели.
- Средиземноморский. Ещё один светлый стиль интерьера. В отделке используют много белого и голубого. Добавьте плетеную мебель, вазоны с цветами, посадите много зелени рядом. Обычно таким образом украшаются веранды открытого типа.
- Японский. Исключительный вариант для прозрачных террас. Восточное направление минималистично, использует натуральные материалы и оттенки (коричневый, зеленый, красный, белый). Желательно установить рядом источник воды: водопад или пруд.
- Кантри. Деревенское оформление больше всего подходит для веранд из бруса. Его отличие — обильное использование натурального дерева в мебели и отделке. Текстиль обычно красный, декор — максимально простой.
- Лофт. Если веранда пристроена к кирпичному дому, то его внешняя стена станет прекрасной основой для воплощения индустриального интерьера. Лофт любит не только кирпич, но и металл, дерево, стекло. В обстановку гармонично впишется самодельная мебель из паллет или ящиков.
- Сканди. Для южных террас самое оно — прохлада скандинавского стиля уравновесит жаркое солнце. Благодаря обилию светлых (белый, серый, бежевый) цветов подходит для маленьких помещений. Уютное сканди идеально для веранд, используемых круглый год: здесь комфортно пить горячий чай, завернувшись в плед или готовить прохладительные напитки в жаркий день.
Проектирование веранды к дому, основные варианты пристроек
Современные террасы и веранды к дому (фото проектов представлены на странице) выглядят очень презентабельно. Веранда уже давно не является тамбуром с вешалкой для рабочей одежды или складом для хозяйственных принадлежностей. Вид из пристройки должен радовать глаз. Не рекомендуется размещать веранду вблизи соседского забора, а также на участке с видом на техническую зону (компостную кучу, баки, колодец). Лучше, если постоянными объектами наблюдения станут цветочные клумбы, деревья, детская площадка.

Проект открытой деревянной веранды пристроенной к дому
Если рассматривать современные фото проектов веранд к дому на даче, можно обратить внимание на большое разнообразие идей, форм и использованных материалов. Среди стройматериалов, используемых для возведения постройки, наибольшей популярностью пользуются следующие:
- дерево;
- кирпич;
- металл;
- поликарбонат;
- стекло;
- сэндвич-панели.

Лучше если веранда и дом выполнены из одинаковых материалов
Во время просмотра фотографий и выбора понравившегося варианта в первую очередь следует определить, впишется ли проект в рамки участка и станет ли он идеальным дополнением экстерьера. Например, не очень эстетично будет смотреться пристроенная красивая веранда к деревянному дому, у которого облупилась и выцвела краска на фасаде. Поэтому в некоторых случаях следует выполнить хотя бы косметический ремонт основного фасада, а потом уже продумывать возведение дополнительных строений.
Нередко при строительстве веранды к дому используется и сочетание различных материалов, таких как кирпич, стекло, металл или камень. При выборе нужно учитывать не только стоимость, но и наличие материала вблизи места строительства. Если на участке нет места, чтобы разместить все желаемые постройки, рекомендуют их объединять между собой, например, соединить с открытой верандой баню или летнюю кухню. Как пристроить веранду к дому своими руками? Рассмотрим наиболее распространенные варианты.

Проект веранды Г-образного типа пристроенной к дому
Цокольная терраса. Пристройку размещают на цокольном уровне основного здания и приподнимают довольно высоко над землей. Для обеспечения большей безопасности по периметру устанавливаются перила, а для удобного спуска в сад оборудуется лестница. Для установки обычно используются опорные столбы, а на завершающем этапе возведения оставшееся место между землей и террасой украшается деревянными или коваными решетками.
Открытая терраса к дому из двух (или больше) этажей. Чаще всего, независимо от количества этажей в главном строении, терраса выполняется двухэтажной, что позволяет обеспечить удобный доступ на верхние этажи дома. Зачастую высокие балки, используемые в качестве опор, имеют не очень привлекательный вид. Чтобы избежать неудобств, пространство под террасой используется для создания дополнительной площадки.

Застекленная веранда к дому может быть как отапливаемой, так и нет
Другие способы, позволяющие пристроить к дому террасу или веранду
Как уже говорилось, пристройка может прилегать только к одной из стен, выполняться по периметру дома или представлять собой вообще отдельную конструкцию, стоящую в другом конце участка
Важно при выборе места постройки учитывать особенности розы ветров данного региона и обустраивать строение с подветренной стороны
Где разместить террасу на участке
Собираясь заняться обустройством террасы, нужно учитывать следующие характеристики:
- Освещенность сторон помещения;
- Характеристики рельефа участка, а также тип почвы;
- Открывающийся с платформы вид;
- Ландшафт участка – пристроенная терраса должна гармонировать с дизайном самого двора, манерой оформления здания.

Многоуровневая терраса – это привлекательное решение для тех помещений, которые располагаются на уклоне. Подобная пристройка одновременно является ступеньками.

Способы расположения:
- Терраса около дома. Данное решение считается самым популярным, потому что его можно осуществить буквально возле любого сооружения. Система требует прочного установки фундамента. Можно его сделать: кирпичным, деревянным, металлическим.
- Раздельно расположенная пристройка. Расположена терраса может быть на свободном месте территории. Такая платформа для отдыха сооружается на слегка поднятом блочном либо монолитном основании.
- «Кольцевая» терраса. Эта пристроенная площадка нуждается в крепком фундаменте, а также правильном подсчете. Можно совместить открытый элемент террасы с закрытой верандой.

Проектирование
Типичная веранда представляет собой покрытую кровлей каркасную конструкцию, возведенную на ленточном или столбчатом фундаменте, со стеклянными или наполовину стеклянными стенами. Утверждение о том, что веранда должна строиться из тех же материалов, что и основное здание, с возникновением новых стилей и модных тенденций в архитектуре, потеряло свою актуальность.

Есть также и проекты, в которых оригинальный дизайн пристройки вносит новую архитектурную нотку, обновляя экстерьер.

При выборе материалов и технологий строительства следует учесть также параметры надлежащей вентиляции, влагостойкости и теплоизоляции. При полном застеклении нужно предусмотреть открывающиеся сегменты для проветривания.


Конструкции со съемными рамами оптимальны для круглогодичного использования. Установка больших раздвижных дверей также позволит использовать постройку в двухрежимном варианте.

В типовом проекте площадь веранды прямоугольная и составляет от 10 до 15 кв.м. При меньших площадях будет слишком тесно, при больших – потребуется дополнительное укрепление для кровли. Возможны также многоугольные и полукруглые по форме фундаменты.

По своему расположению веранда может быть угловой, торцевой или фасадной. Оригинальным решением можно считать возведение террасы по всему периметру дома, которая может иметь остекленные, открытые и закрытые зоны различного предназначения: в них может разместиться и прихожая, и зона отдыха, и большая кладовая.
Красивые идеи дизайна террас 2024
Терраса в стиле «Прованс»
Терраса в стиле прованс — привлекает милыми и простыми формами. Преобладающими предметами такого изящного стилевого направления, являются кованые опоры мебели, легкий цветочный орнамент на текстиле, теплые пастельные оттенки.

Веранда в стиле прованс — станет вашим любимым уголком, где все наполнено теплом и романтикой

Душевно отдохнуть и расслабится в окружении цветов и растений не только приятно, но и полезно

Белый потолок всегда прекрасно гармонирует с былыми окнами и дверями

Состаренная мебель станет отличным декором для интерьера веранды в стиле прованс
Терраса в стиле «Эко»
Террасы и веранды в стиле эко всегда привлекают особое внимание. Доминирующим требованием является применение натуральных материалов как отделки, так и мебели
Пол и потолок делают дощатым. При оформлении отделки интерьера приветствуется кирпич. На террасе он часто выкладывается в форме столбиков для ограждения.
Если требуется оформить окна веранды, лучше остановить свой выбор на шторах изо льна. Данный вид ткани прекрасно гармонируют с эко-стилем, привнося в него домашний уют и тепло.

Традиционная веранда выполненная в эко-стиле

Панорамное остекление — одна из главных изюминок эко-стиля

Эко-стиль сегодня очень популярен. Он идеально подходит, как для молодых, так и пожилых людей

Эко-стиль способствует единению с природой и создает непринуждённое удобство и комфорт


Терраса в стиле «Модерн»
Террасы и веранды в стиле модерн — это сочетание современной архитектуры с уютной, домашней атмосферой.
Современный облик строениям придают прозрачные стены, решенные из многослойного стекла, что позволяет пространству наполняется естественным светом. Мебель используется в небольших количествах. Главным критерием в её подборе является прочность, практичность, удобство.
В качестве отдельных ярких акцентов выступают настенные вазоны с ампельными растениями, которые придают интерьеру особый стиль, а также привносят в него душевную теплоту.

Светлая и просторная веранда в теплых тонах

Дерево и камень — классическое решение при оформлении террасы и веранды к дому в стиле модерн

Если правильно подготовить и обработать поверхность — металлический каркас веранды смотрится ничуть не хуже деревянного
Как сделать веранду в частном доме? Разновидности конструкции и используемых материалов
Глобализация дала возможность объединить культурное наследие разных стран, и теперь даже соседние дома могут выглядеть совершенно по-другому. Например, пытаясь объединить тяжелое каменное основание и верхнюю часть конструкции из светлого дерева, мастера получают пристройку в немецком стиле и, сделав ее полностью из дерева, но оставляя достаточно места для вентиляции между досками, они создают веранды в Австралийский стиль.



Пристройка к дому из поликарбоната
Что касается современных неклассических материалов, то их использование также вполне оправдано. При использовании строительных материалов на основе полимеров получаются футуристические формы, а уникальный пример — веранды из поликарбоната. Это невероятно простой в использовании и ремонтопригодный строительный материал, из которого создаются столь необычные конструкции.

Проект одноэтажного дома с открытой верандой

Проект одноэтажного дома с мансардой и террасой
Веранда, терраса, беседка — в чем отличие?
Некоторые люди путают веранду, террасу и беседку. Они конечно похожи, но между ними существует разница:
Веранда
- Закрытое не обогреваемое крыльцо большого размера, его пристраивают к цокольному или первому этажу здания. Возводят ее на собственном столбчатом или ленточном фундаменте.
- Иногда для ее постройки используют часть фундамента рядом стоящего здания. Чаще всего у веранды делают пол, на одной высоте с полом доме.
- В ее верхней части делают панорамное остекление, а низ стен полностью закрывают. Для веранды делают капитальную кровлю, она является частью крыши жилого дома.
- В большинстве случаев, на веранде делают 2 двери – одна из них служит для входа с улицы, а вторая необходима для перехода в жилое помещение;
Если вы построите полностью закрытую веранду, то на ней можно устроить полноценное помещение для приема пищи, гостиную или кухню
Терраса
- Открытая и совершенно ровная площадка, которую используют для отдыха в теплое время
- У нее есть свои особенности – есть различающиеся по расположению, пристроенные прямо к бане или дому, существуют построенные обособленно, на расстоянии от других строений
- Чтобы ее во время дождя не заливало водой, напольное покрытие приподнимают на 15-50 см над уровнем почвы
- По ее периметру размещают низкое декоративное ограждение, а над ним крепят легкий навес, защищающий от солнечных лучей, дождя
- Зону отдыха оснащают набором необходимой мебели, установлены барбекю или мангал
- Если планировка и габариты участка дают возможность, то можно обустроить маленький открытый бассейн
Беседка
- Отдельное металлическое, кирпичное или деревянное строение
- Обычно его устраивают в саду, во дворе, если есть возможность, то делают на берегу водоема
- Иногда строят беседки, на большом расстоянии от жилого дома. Их устанавливают на отдельном ленточном или столбчатом фундаменте
- Изготавливают в беседке собственную кровлю, боковое ограждение, опорные столбы и пол
- Ограждающие стены бывают остекленными, решетчатыми, полуоткрытыми и даже полностью открытыми
- Внутри постройки размещают мебель, по возможности устанавливают барбекю или мангал
- Нередко пристраивают отдельно расположенной беседке, открытую террасу
Зона отдыха на даче: разновидности и варианты для обустройства своими руками (65+ Фото & Видео) +Отзывы
Схема кладки террасы из кирпича
Терраса из кирпича — это прочное и эстетически привлекательное строение, которое может стать изюминкой любого участка. Её кладка требует строгое соблюдение определённого порядка и точности, особенно при отсутствии опыта в строительстве.
Подготовка рабочего места
Прежде всего, необходимо грамотно подготовить место для строительства террасы. Площадка должна быть ровной, без неровностей и выступов. Сначала уберите все препятствия на площадке, включая растительность и камни. Затем следует выровнять землю и, если возможно, уложить геотекстиль, чтобы предотвратить рост сорняков.



Основание для террасы
Вторым этапом строительства террасы из кирпича является создание основания. Вам потребуется устроить надежный бетонный фундамент, который будет обеспечивать стабильность всей конструкции. Глубина фундамента зависит от типа почвы на вашем участке и климатических условий, но обычно составляет около 50-70 см. На дне котлована устраиваются дренажные слои из щебня и песка, затем наливается бетон.
Кладка кирпичей
После того, как фундамент высохнет (что обычно требует несколько дней), вы можете приступить к кладке кирпичей. Для этого вы должны приготовить раствор, состоящий из песка и цемента в пропорции 3:1. Перед началом работы убедитесь, что у вас есть достаточное количество кирпичей и раствора. Кирпичи кладутся на раствор и прессуются для достижения максимальной прочности. Проверяйте горизонтальность каждого ряда уровнем.

Финишная обработка
После завершения кладки необходимо провести финишную обработку. Сначала уберите лишний раствор и выровняйте швы. Затем, если это необходимо, нанесите гидроизоляцию и устройство стока воды. По желанию можно выполнить отделку поверхности террасы, например, покрасить или облицовать натуральным камнем для дополнительной эстетики и прочности.

Конструктивные особенности и применение
Фундамент внешне выглядит как ряд столбиков по всей площади пристройки. Вокруг столбов, которые расположены по периметру, делается обвязка, а на внутренние опоры крепятся лаги.
Основа для веранды из столбов считается экономичной в финансовом плане, по расходным материалам.
Кроме того, ее легко монтировать и она подойдет для любого вида почвы, т.к. вес строения небольшой.
Недостатки:
- на столбчатом фундаменте можно возводить только невысокие и легкие постройки;
- такое основание не позволяет полностью сделать утепление под верандой.
Чаще всего столбчатый фундамент строят из:
- древесины;
- металла;
- кирпича;
- бетона с облицовкой из различных природных материалов;
- шлакоблока.
Из бетона
Конструкция подойдет для участка с сухим песчаным грунтом. При использовании бетонных опор, крепление опалубки должно быть из деревянных досок, а коробка из арматуры зафиксирована внутри бетонным раствором.
Основа из бетона наиболее затратная и трудоемкая, однако результат того стоит. Столбчатое основание прекрасно справится с террасой из кирпича или дерева размером 6×4 метров и больше.
Из строительного камня
Стойки из строительного камня будут правильным решением для территорий с сухим и песчаным грунтом и низким залеганием воды в почве. Срок службы такого фундамента может достигать не одно столетие. Строительный камень применяется идентично кирпичу.
Высота основания зависит от климатических особенностей региона проживания — от того, как сильно промерзает почва в зимний сезон.
При возведении столбчатого фундамента из камня зачастую требуется, как следует укрепить опоры. В этом случае основание и стойка будут иметь прочное крепление.
Из труб
Если есть ограничения в финансах, можно рассмотреть вариант основы из асбестоцементных, металлических или пластиковых труб. Трубчатая конструкция обойдется на порядок дешевле, чем фундамент из монолита. Кроме финансовой выгоды, есть и практичная – основание из труб очень легко и быстро устанавливается.
Из брёвен
При возведении такого фундамента важно обратить внимание на состояние древесины. Бревна обрабатываются антисептиком, предотвращающим гниение и образование грибка. Кроме того, бревна должны пройти процедуру обжига
Кроме того, бревна должны пройти процедуру обжига
Кроме того, бревна должны пройти процедуру обжига
Бревна обрабатываются антисептиком, предотвращающим гниение и образование грибка. Кроме того, бревна должны пройти процедуру обжига.
Дерево при этом не должно быть сырым. При возведении столбчатого основанияиспользуются стандартные деревянные брусья. Опора зарекомендовала себя не с лучшей стороны.
Избыточная влага из-за обильных дождей и внезапных паводков может нарушить строение.
Кроме того, бревенчатый фундамент плохо выдерживает возложенную на него нагрузку.
Строительство веранды

Сначала необходимо составить проект. Все начинается с чертежа, на котором видно будущую конструкцию, ее расположение и габариты. В этот же момент разрабатывается дизайн
Важно делать проект полностью, т.е. со всей мебелью, иначе окажется, что стол, подобранный под веранду, в ней просто не умещается
На этапе проектирования важно исправить недочеты конструкции
В противном случае веранда окажется недолговечной
На этапе проектирования важно исправить недочеты конструкции. В противном случае веранда окажется недолговечной. Пристройка считается перепланировкой, поэтому перед началом строительства необходимо получить разрешение
Все изменения должны быть задокументированы. Наличие бумаг и печатей позволит избежать проблем с налоговой. Подавать запрос на регистрацию лучше до начала строительства. Если сделать это позже, в оформлении могут отказать и придется направлять заявление в суд, который чаще принимает решение не в пользу собственника
Пристройка считается перепланировкой, поэтому перед началом строительства необходимо получить разрешение. Все изменения должны быть задокументированы. Наличие бумаг и печатей позволит избежать проблем с налоговой. Подавать запрос на регистрацию лучше до начала строительства. Если сделать это позже, в оформлении могут отказать и придется направлять заявление в суд, который чаще принимает решение не в пользу собственника.
Как сделать перегородки в доме из бруса своими руками
Чтобы оформление пристройки прошло максимально просто, нужно:
- получить согласие от соседей на возведение зоны отдыха, предоставив проект будущей конструкции, иначе они смогут обратиться в БТИ с жалобой;
- подтвердить право на строительство веранды во всех необходимых инстанциях, включая кадастровую палату;
- удостовериться в правильности расчетов и отсутствии архитектурных ошибок;
- подобрать качественные материалы, имеющие сертификат ГОСТа.
Внимание! Прокладывая фундамент самостоятельно, следует учитывать, что максимальной прочности бетон достигает только спустя 28 суток при постоянной температуре не менее 20°
Пристройка к дому из бруса и обвязка из бруса для террасы
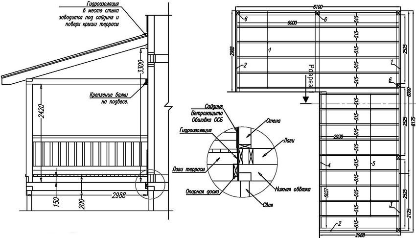
Поскольку у террасы нет стен, нагрузка на фундамент будет минимальной. Но перед его установкой еще нужно разметить участок. По полученным отметкам роют на глубину промерзания столбов, в которые устанавливают обрешетку, арматуру, а затем заливают бетон. Для фундамента в обязательном порядке проводится гидроизоляция и обвязка, к которым впоследствии крепятся стволы чернового пола брусом сечением 100 х 50 мм.

Лучший материал для строительства деревянного моста — доски из лиственницы
Черновой пол обшивается OSB или обрезными, укрытыми или утепленными плитами. Он покрыт утеплителем для ресниц, который в свою очередь прошит плитами OSB.

Доски следует обработать антисептическим составом и столовыми приборами, оставив место для лучшей вентиляции





































