Как сделать лежак
Нельзя же заниматься на железном бруске. Поэтому нужно сделать специальный лежак. Его изготовляют из прямоугольной фанеры, поролона и кожзама. Сначала стоит позаботиться о креплении.

Для этого в трех местах в длинной, параллельной полу балке стоит проделать три дырки для болтов через каждые тридцать сантиметров. То же самое необходимо сделать и с фанерой. С помощью болтов закрепляем доску. Затем, нанеся слой клея, приклеиваем поролон. После того как клей подсохнет, можно уже с помощью строительного степлера обтягивать кожзаменителем.
Каждый человек должен держать себя в хорошей физической форме. Как гласит народная пословица: «В здоровом теле – здоровый дух». Скамья для пресса и жима – один из самых популярных и востребованных тренажеров, с помощью которого можно успешно проводить домашние тренировки в любое удобное время. Ниже будет рассказано о том, как сделать скамью для пресса своими руками.
Об обшивке досок и сидений
Доски и сиденья спортивных снарядов промышленного изготовления обтягиваются дерматином или пластиком аналогичного назначения на упругой подкладке. Такая обшивка долговечна, но не предотвращает обратного всасывания пота, которое никак не полезно; именно поэтому современную спортивную форму шьют 2-слойной, с сеткой, сразу отводящей пот непосредственно от кожи.
В спортзалах этот недостаток обшивки заметно не сказывается, т.к. спортзал оборудуется приточно-вытяжной вентиляцией (ПВВ) и кондиционером. По крайней мере, должен оборудоваться согласно санитарных норм. В домашних условиях заниматься при комфортной температуре не всегда удается, а устроить ПВВ во многих городских квартирах просто технически невозможно. Поэтому желательно обшивку самодельных атлетических скамей выполнять в виде такого «пирога», следуя от основы наружу:
- Микропористая резина толщиной от 12 мм;
- Мебельный поролон плотностью 45 (марки 45) толщиной от 8 мм;
- Синтепон толщиной от 7 мм;
- Джинсовая ткань или материал вроде байкового солдатского одеяла старого образца.
Резиновый демпфер приклеивается к основе клеем «Момент» или термоклеем из клеевого пистолета. Остальные слои обшивки подворачиваются к исподу и пришпиливаются мебельным степлером. Недостаток такой обшивки – ее нужно раз в год, на исходе весны, менять; резиновая прослойка остается. Мягкие слои не заскорузнут, возможно, и в течение 3-4 лет, но по санитарно-гигиеническим требованиям срок службы текстильной обшивки нужно сократить до года.
Всем привет,меня зовут Качалкин Максим, я участник конкурса сделай своими руками на сайте веб сварка. Я долго думал, что сделать, было много версий, но я остановился на многофункциональном тренажере, так как в России спорт очень дорогой и дешевле распивать алкогольные напитки, чем заниматься спортом. Многие люди хотели бы заниматься спортом, но материально не могут позволить себе абонемент в фитнес зал, а людям с глубинки вовсе некуда ходить, так как даже самой простейшей качалки у них нет.
Прежде чем приступить к изготовлению тренажера, я решил его сделать в программе 3д моделирования для того, что бы убедиться будет ли он работать или нет. Я долго подбирал оптимальные размеры и его вид. В ходе работы над 3д моделью я периодически изменял что-то и пытался его всеми способами упростить и сделать менее габаритным.
А сейчас я приступлю к самому процессу изготовления тренажера. В конце описания будет ссылка на видео, в котором будут содержаться все размеры и чертежи.
Для того чтобы изготовить тренажер нам потребуется следующий материал:
- Проф труба 40х40х2
- Проф труба 30х30х2 можно так-же 40х40х2
- Труба на 15
- Труба на 20
- Труба на 25
- Труба на 32
- Лист металла от 2 до 4 мм
- Подшипники внутренний диаметр 10 , наружный от 26 до 30(кому как удобно)
- Шкивы-Размеры будут указаны в конце видео.
- Болты на 10
- Гайки на 10
- Хомуты(зажимы)
- Карабины

После того как напилил весь метал, приступаю к сверлению отверстий.С начало сверлил сверлом диаметром на 5 ,затем сверлом диаметром на 10.






Как только просверлил все отверстия, приступаю к сварке.


Когда верх и низ готов, приступаю к стойкам.

После того, как прихватил весь основной корпус, приступаю к сборке механизма (бабочка).





Далее приступаю к изготовлению коробки под блины. Для того, чтобы коробка ходила по трубам мягко и без шумно я продумал что-то типа сальников (не знаю, как их правильно назвать) из пластиковых труб. Чертежи доступны в конце видео.


После того, как приготовил все необходимое, приступаю к сборке.


Далее приступаю к изготовлению турника для тяги нижнего блока, его размеры: длина до гибки 800 мм, каждая ручка длиной 120 мм из трубы 20.

Затем приступаю к изготовлению съемных брусьев. Их размер: коробка – 500 мм на 480 мм, длина труб 500 мм, диаметр труб 25, ширина хвата 480. Косынки сделаны из проф трубы 30х30х2.


После того как я все проварил,зачистил, приступил к грунтовке, а затем и к покраске. Готовый вариант.




Все работает проверял. Смотрите видео, там я показываю частично, как он работает. К сожалению, краска на тот момент не высохла, но мне пришлось снимать данный видео ролик, так как я уезжал на подработку.
Очень старался, надеюсь вы оцените это. Хочу сказать спасибо Вебсварке за то, что делают такие конкурсы, и уже не в первые. Спасибо всем спонсорам данного конкурса и, конечно же, спасибо всем участником данного конкурса, так как мне было очень интересно состязаться с вами. И очень трудно, так как мне всего 19 лет и я в этом деле еще не специалист, как вы, мне есть к чему стремиться. Все работы мне понравились, мне не жалко отдать свой голос за многие работы, надеюсь вы ответите взаимностью. Если есть какие вопросы, пишите в комментарии, я обязательно на них все отвечу.
Конкурсная работа № 17
, Техническая номинация
Подготовка чертежа
Размеры скамьи должны соответствовать индивидуальным требованиям. Для этого можно воспользоваться стандартными параметрами:
- длина опор составляет 97–122 см;
- расстояние между стойками — 52 см;
- высота передней части лавки — 83 см, задней — 34 см;
- параметры подставки под задние опоры — 30 см, под передние — 22 см.
Длина лежака регулируемой конструкции в задней части достигает 16 см, в передней — 94 см. Наклонная скамья для жима имеет другие параметры: в задней части — 36 см, в передней — 114 см. Показатели ширины лавки зависят от комплекции спортсмена и площади помещения, в котором будет стоять тренажер. В среднем размеры достигают 29–32 см. Специалисты не рекомендуют использовать габариты меньше стандартных, поскольку это может негативно отразиться на деятельности мышечной системы, а значит, и на результате тренировки.
Расстояние от пола до лавки должно соответствовать параметрам нижнего плеча рычага, предназначенного для ног, дополнительно прибавляют еще 10 см. Длину лежака подбирают в зависимости от роста спортсмена.
Чертежи можно составить самостоятельно либо найти готовые в открытом доступе. На эскизе должны отображаться все конструктивные особенности будущего изделия, размеры каждого элемента. При необходимости исходные параметры меняют в соответствии с индивидуальными требованиями. Спортсмены, которые ходят в тренажерный зал и занимаются на профессиональном оборудовании, смогут снять мерки и на их основе разработать собственную схему.
Лучшие модели
Oxygen Boston III
Хороший бюджетный вариант универсальной скамьи для домашних тренировок. Допустимый вес атлета – до 110 кг, при максимальном рабочем весе до 100 кг. Возможны 4 варианта угла наклона. В конструкцию включён тренажёр для разгибателей бедра и тренажёр-«бабочка». Имеет складную конструкцию весом 28 кг. Габариты: 170*138*122 см. Гарантия 2 года. Стоимость: 13000 рублей.
Adidas ADBE-10245
Ещё одна многофункциональная модель для домашних тренировок. В конструкцию встроена скамья Скотта, имеется тренажёр для разгибателей бедра. Допустимый вес атлета – до 135 кг, при максимальной нагрузке на скамью до 220 кг. Максимальная нагрузка на тренажёр для разгибания ног – 45 кг. Габариты: 187*106*148 см. Гарантия на механизмы 2 года, на силовую часть конструкции – 5 лет. Стоимость: 27000 рублей.
Powertec WB-OB11
Скамья с регулирующимся углом наклона. Возможно оснащение дополнительными опциями. Предельная нагрузка на лежак и стойки – 273 кг. Вес – 61 кг. Размеры: 139*123*158 см. Гарантия – 12 месяцев. Стоимость: 34000 рублей.
BODY SOLID SFB 349G
Горизонтальная скамья для жима. Предельная нагрузка: 250 кг – на стойки, 350 кг – на скамью. Габариты: 170*125*120 см. Вес – 57 кг. Стоимость: 37000 рублей.
Matrix G3FW81
Олимпийская горизонтальная скамья с подставкой для ног. Предельный вес –200 кг. Габариты: 122*74*46 см. Вес – 26 кг. Пятилетняя гарантия. Стоимость: 38500 рублей.
BODY SOLID SDB 351G
Скамья для жима головой вниз. Максимальный вес атлета – 120 кг. Предельная нагрузка на стойки – 250 кг. Габариты: 191*127*127 см. Вес – 50 кг. Стоимость: 42000 рублей.
AeroFit IT7014
Горизонтальный лежак. Выдерживает нагрузку более 300 кг. Имеется 3 варианта расположения грифа по высоте. Есть 4 места для складывания дисков. Габариты: 170*167*137 см. Вес – 69 кг. Гарантийный срок – 12 месяцев. Стоимость: 71000 рублей.
BRONZE GYM H-025B
Скамья для жима вертикальная. Конструкция выдерживает любой рабочий вес. Размеры: 126*162*84 см. Вес: 88 кг. Трёхлетняя гарантия. Стоимость: 86000 рублей.
Matrix G3FW13 (10B)
Горизонтальная скамья. Предельная нагрузка – 1150 кг. Габариты: 178*168*127 см. Вес:110 кг. Пятилетняя гарантия. Цена: 13000 рублей.
Matrix G3FW15
Скамья с обратным наклоном в 15 градусов профессиональная. Размеры: 181*127*136 см . Вес – 70 кг. Пятилетняя гарантия. Цена – 155000 рублей.
Matrix Magnum A678
Горизонтальная скамья для жима профессиональная. Оснащена доводчиком для фиксации в исходном положении. Конструкция выдерживает работу с максимальными весами. Прилагается платформа для ног. Вес: 94 кг. Размеры: 173*168*130 см. Пятилетняя гарантия. Стоимость: 158000 рублей.
Разные скамейки
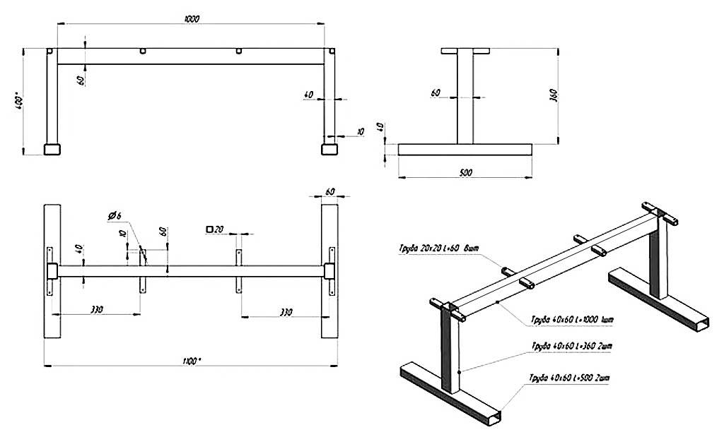
Самая простая, но и замечательно прочная спортивная лавка-«ипполитовка» может быть изготовлена по чертежу на рис; настил – прочная доска от 40 мм. С ней хорошо знакомы те, кто проходил в армии курс молодого бойца; по крайней мере, в прошлые времена. «Духи»-горожане скоро начинали смотреть на ипполитовку с изумлением и опаской: сколько, оказывается, всяких упражнений можно на ней проделывать! И она же отлично входит в состав 4-опорного тренажера.

На след. рис. – наклонная скамья для пресса. Такую, ввиду ее компактности и пользы, не помешает завести отдельную, если места в жилище достаточно. Вследствие отсутствия прямых углов материал послабее – профтруба 40х40. Упоры для ног – пруток 10 мм с резьбой на концах, обрезиненный до нужного размера. Резиновые муфты съемные: нижний упор регулируемый, а верхний убирается, если необходимо делать упражнения, при которых он мешает.

Далее на рис. – компактная силовая скамья со стойками для штанги. Упражнения на ней делают в основном сидя.Можно также качать пресс, глубоко прогибая спину. В таком случае упорами ног будет поперечная балка А, и тогда ее нужно обтянуть чем-то мягким или надеть резиновую муфту. Материалы – профтруба 40х40, а держатели штанги из стальной полосы толщиной от 6 мм.

Следующий образец – атлетическая скамья уже для крепких ребят, уверенно управляющихся со штангой веса, равного их собственному, т. наз. парта Скотта. Материалы, соответственно – профтруба 60х60х2,5 и 50х50х2. Держатели грифа из такой же полосы, как и в пред. случае; сиденье и столик из фанеры от 20 мм.

Несколько тренажеров
Как намертво связать скамью-«ипполитовку» со стойкой для штанги, превратив в достаточно компактный 4-опорный тренажер, показано слева на рис. Там же справа – размеры и конструкция скамейки-трансформера под ту же раму. Основной материал там и там – профтруба 40х60. О фиксаторах стоек с держателями штанги вспомним ниже.

На след. рис. – чертежи с материальной ведомостью простого 3-опорного стационарного нерегулируемого тренажера с горизонтальной скамьей. Он более подходит для частных домовладений с достаточной величиной полезной площади. Изюминка данной конструкции – соединение дальней ноги скамьи с ее несущей балкой звеном под 45 градусов. Благодаря оптимальному распределению эксплуатационных нагрузок удалось выполнить снаряд, на котором можно делать упражнения с весами более 100 кг, из профтрубы 50х50.

Наконец, далее на рис. – чертежи и спецификация элементов на полнофункциональный домашний тренажер со скамьей-трансформером для жима и пресса
Обратите внимание на узел, выделенный красным. Это – наиболее простой и надежный для исполнения в домашних условиях способ фиксации стоек штанги
Штыри-фиксаторы (диаметром от 12 мм) будут, конечно, понемногу изнашиваться, но их никогда не заклинит и не закусит.

Еще о штанге
Как уже сказано, не удержанная на весу штанга способна причинить тяжелые увечья, вплоть до фатального исхода. И направить ее гриф в держатели в таких случаях нереально. Зато реально – предусмотреть 2 отрезка цепи, надежно закрепленные на стойках штанги. На других концах цепей – карабины, их набрасывают на гриф. Длину цепных страховочных звеньев берут такой, чтобы, держа штангу на полностью вытянутых руках, цепи провисали, но гриф отпущенной штанги не доставал до груди. Чтобы карабины не сползали на грифе, их достаточно примотать скотчем. Вдруг штанга рухнет, скотч, конечно, не выдержит, оба карабина съедут на один конец грифа, но дело обойдется испугом и, возможно, побитым полом.
О деревянных атлетических скамьях
Со штангой на деревянных спортивных снарядах заниматься нельзя, их конструкция не выдержит. Зато в ситуациях, возникающих вследствие неловкости тренирующегося, дерево «отдает» по телу куда менее чувствительнее, чем металл. Поэтому деревянными скамейками для жима и пресса предпочтительно пользоваться начинающим и несовершеннолетним. Кроме того, деревянные спортивные скамьи и тренажеры можно соорудить на даче или в загородном доме из остатков стройматериалов.

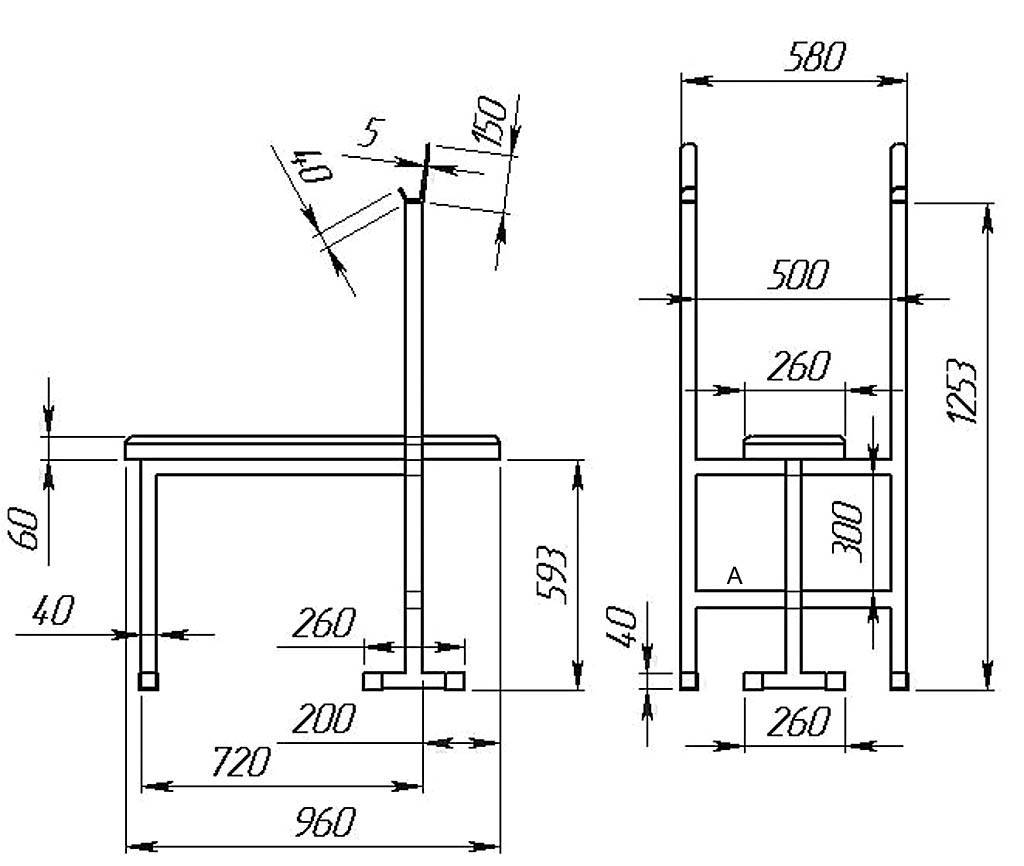
Конструкция наклонной деревянной скамьи для пресса и спецификация к ней показаны на рис., а на след. рис. – чертежи деревянного тренажера с наклоняемой скамьей и рычагом для упражнений ногами с грузом. Чтобы дерево держало эксплуатационные нагрузки, применена блочная система подвешивания грузов: они висят на нисходящих ветвях троса А. Поперечные балки Б – стальные обрезиненные.

Основная идея многофункционального тренажёра доктора Бубновского
Обязательным условием для сохранения здоровья являются движение и физические нагрузки. Работа мышц стимулирует усиленную циркуляцию крови, в результате ткани снабжаются кислородом и питательными веществами, ускоряется метаболизм.
То же происходит и с лимфой – ещё одним компонентом нашего тела. В процессе двигательной активности устраняются застойные явления, вызванные малоподвижным образом жизни, лимфа начинает интенсивно циркулировать, нормализуя различные функции организма.
Однако не все люди могут свободно двигаться. Лица, страдающие заболеваниями суставов (артрит, отложение солей) и позвоночника (протрузии, грыжи, остеохондроз), при попытке выполнить физические упражнения испытывают сильные боли.
Болезненные ощущения более всего проявляются в суставах, которым приходится удерживать вес тела, а к ним не относятся только суставы рук. Поэтому С. Бубновский разработал конструкцию тренажёра, при занятиях на котором снимается нагрузка, обусловленная гравитацией.
Виды тренажеров для пресса
Существует несколько разновидностей тренажеров для пресса.
В тренажерных залах обычно используются:
- Типовая скамья для пресса. Такая скамья может располагаться под разным углом. Больший угол наклона доски требует больших усилий, но при этом позволяет добиться внушительного результата. Подобная скамья считается самым дешевым вариантом и стоит в пределах двух тысяч рублей.
- Доски с регулируемым наклоном спинки. Прекрасный вариант для развития сразу нескольких групп мышц: живота, талии, ягодиц и спины. Средняя стоимость составляет около трех тысяч рублей.
- Скамьи с выгнутой спинкой. Тренировки с данной скамьей проходят с повышенным уровнем нагрузки. В основном такие тренажеры используют продвинутые атлеты, которые занимаются несколько лет.
- «Римские» скамейки для пресса. Считаются самым «продвинутым» видом тренажера. Позволяют накачать кубики живота с поднятыми ногами. При постоянных тренировках можно добиться красивого рельефа.
Скамья для пресса практически не имеет недостатков. Стоит учесть, что высоким людям крайне проблематично подобрать доску под индивидуальные параметры тела.
Преимущества использования скамейки
Купив или изготовив скамейку самостоятельно, можно приступать к первым активным тренировкам.
Достоинства использования скамьи для пресса:
- Возможность контролировать каждое свое движение.
- С помощью специального контроля можно увеличивать или уменьшать нагрузки, когда это потребуется.
- Выполнять упражнения на скамье с дополнительным весом намного безопаснее.
- Обычные тренировки становятся не только удобнее, но и в несколько раз продуктивнее.
- На скамье для жима и пресса можно выполнять намного больше типов физических упражнений.
Используя в арсенале оборудование такого типа, можно добиться прогресса достаточно быстро. Рельефный пресс и накачанное тело не заставит себя долго делать. С помощью скамьи можно выполнять намного больше упражнений, в том числе с гантелями и штангой.
Что собой представляет скамья для жима
Это один из самых востребованных инструментов в тренажёрном зале для тех, кто хочет поддерживать мышцы в тонусе. Хорошая лавка даёт спортсмену надёжность и безопасность, так как есть уверенность в снаряде и не страдает техника выполнения упражнений. Риск получить травму во время занятий сводится к минимуму.
Скамья для жима.
Основные требования к снаряду
Выбирая подходящую скамью, следует придерживаться некоторых критериев:
- изделие должно быть изготовлено из материалов высокого качества;
- при регулировке элементов, не должно быть заеданий и неисправностей;
- обязательно наличие водоотталкивающего покрытия на металлических деталях;
- наличие страховочных упоров.
Скачать чертежи тренажёров бесплатно
Для тех, кто хочет получить чертежи простых тренажёров бесплатно, предлагаю скачать
Комплект состоит из 19-ти комплектов чертежей тренажёров с описаний принципов работы каждого из тренажёров.
1. Чертёж тренажёра для развития бицепса
2. Чертёж тренажёра для развития грудных мышц.
3. Чертёж силовой рамы;
4. Чертёж наклонной скамьи;
– чертёж универсальной скамьи
– чертёж горизонтальной скамьи;
– чертёж параллельных брусьев;
– чертёж перекладины;
– чертёж стойки для приседаний;
– чертёж блочного тренажёра для выполнений упражнения на трицепс.
5. Скамья для жима лежа (чертежи – 1шт)
6. Бицепсный тренажер 1 (чертежи – 1шт)
7. Бицепсный тренажер 2 (чертежи – 1шт)
8. Гакк-машина (чертежи – 1шт)
9. Наклонная скамья для жима (чертежи – 1шт)
10. Тренажер для развития мышц бедер (чертежи – 1шт)
11. Тренажер для жима ногами 1 (чертежи – 2шт)
12. Тренажер для жима ногами 2 (чертежи – 1шт)
13. Тренажер для развития грудных мышц (чертежи – 1шт)
14. Классический тренажер для развития грудных мышц типа “Баттерфляй” (чертежи – 1шт)
15. Наклонная скамья для развития мышц живота (чертежи – 1шт)
16. Стойки для приседаний (чертежи – 1шт)
17. Т-штанга (чертежи – 1шт)
18. Шведская стенка в домашних условиях (чертежи – 1шт)
19. Короткая штанга (чертежи – 1шт)
В качестве бонуса в комплект входят 3 книги, для начинающих атлетов.
Другие варианты самодельных тренажеров
Оздоровительные тренажеры для спины отличаются простотой конструкции. Например, тренажер Евминова представляет собой сосновую доску, оснащенную креплениями и ручками-фиксаторами. Приспособление следует закрепить так, чтобы можно было менять угол наклона – это позволит растягивать мышцы спины с любой интенсивностью.
Если приходится подолгу работать за компьютером, стоит сконструировать сиденье Толстунова. Тренажер состоит из деревянного сиденья, одной точки опоры и основания, которое держит всю конструкцию. Тренажер не требуется закреплять на обычном стуле, а сидение на нем улучшает кровообращение и тренирует короткие мышцы позвоночника.
Тренажер Разумовского сконструировать сложнее. Он также выполнен из дерева, но вытачивание роликов требует навыков обращения с токарным станком.
Однако самым сложным для проектирования и монтажа считается тренажер Ахметова. Это биокинетическое устройство состоит из прочного каркаса, к которому прикрепляются подвижные ручные и ножные опоры, а само движение на тренажере напоминает бег дикой кошки.
Для хоккея с шайбой продается синтетический лед, на котором удобно отрабатывать пасы, броски, щелчки и дриблинг. Балерины, гимнастки и танцовщицы добиваются красивых стоп и высоких подъемов, засовывая ноги под диван – дешево и сердито.
ЧИТАТЬ ДАЛЕЕ: Стили ширм японский и восточный складные в стиле прованс и лофт в скандинавском и китайском стилях
Футболисты отрабатывают обводки при помощи устойчивых и неустойчивых стоек – невысоких палок, прикрепленных к крестовине либо гвоздями, либо жесткой пружиной. Лыжники и пловцы прорабатывают мышцы плечевого пояса при помощи дров или топора, при этом максимальное усилие приходится на начальную фазу движения.

Доступные тренировки – это реальность. Надо только искренне любить свой вид спорта и находить возможность уделять ему каждую свободную минуту.
В следующем видео вы узнаете, как самостоятельно сделать тренажер по методу Бубновского.
Основные упражнения для скамьи
Рассмотрим, что же вы можете делать в домашних условиях на скамье и ради чего нужно было покупать тренажер или создавать конструкцию самостоятельно.
Жим штанги лежа
Не только я считаю это упражнение главным движением для жимовой скамьи, потому неудивительно, что оно всегда идет первым номером. Если у вас регулируемая спинка, то вы дополнительно можете делать жим под углом.
Разводка и жим гантелей
Даже без штанги, но при наличии скамейки, вы можете почти в полной мере выполнять тренировку грудных мышц. Для этого отлично подходят жимы и разводки с гантелями.
Отжимания
Если у вас обычная скамья (даже без рамы), вы можете легко развивать грудные мышцы, делая отжимания от поверхности лавки. Такой вариант переключает нагрузку на верхний участок грудных, который чаще всего отстает.
Упражнения для пресса
На скамье вы можете делать большую часть упражнений для пресса, хотя в таком случае я рекомендую добавлять модуль с валиками-фиксаторами. С их помощью надежно закрепляется корпус во время подъемов корпуса или ног, боковых скручиваний и других упражнений.
Болгарские выпады
Если в зале для работы над ногами есть много тренажеров, то дома прорабатывать низ тела намного сложнее. Лучше всего для этого пойдут приседания (воздушные или с весом) и выпады. Особой популярностью пользуются болгарские выпады, для которых необходима лавка.
Как сделать гимнастический ролик
Гимнастический ролик, он же ролик для пресса (еще имеет много названий) – это один из самых простых и популярных тренажеров для пресса, который можно сделать и самому. Он, как известно, развивает не только мышцы пресса, но и некоторые другие группы, хотя прямую мышцу живота, прежде всего. Бывает разных видов, в основном за счет большего количества колес, чем одно. Основным преимуществом такого тренажера является устойчивость во время выполнения упражнений. В большинстве стран этот тренажер не нажил такой популярности, что свидетельствует о его преувеличенной эффективности и необходимости. Кроме стран СНГ, изобилие гимнастических роликов наблюдается также в Китае, который является основным его производителем (впрочем, как и всего остального).
Но все же, вернемся к вопросу, как сделать этот гимнастический ролик дома. Все, что для этого необходимо, так это какое-нибудь колесо / колеса 10 – 20 см в диаметре, главное, чтобы было достаточное расстояние кистей рук от пола во время занятий, но и чтобы позволяло достаточно наклоняться вперед, не касаясь груди. Самым простым вариантом будет снять его из старой ненужной детской коляски, детского велосипеда, или большой игрушки. Но лучше использовать сразу 2 одинаковых колеса, расположенных рядом или на небольшом расстоянии друг от друга. Просто при одном узком до воли сложно будет удержать равновесие. Второе, что нужно – это металлическая или пластиковая труба (также возможно взять и деревянный кругляк) длиной около 30 см и диаметром от 3 см, главное подобрать как можно точнее к размерам отверстия в имеющемся колесе, чтобы было меньше потом мороки. Труба исполняет роль оси и продевается в отверстие в колесе, а затем оно фиксируется на ней посредине с обеих сторон. Наиболее простым способом будет намотать изоленты на трубу справа и слева от надетого колеса, но можно использовать и другие приспособления, по возможности, как показано на рисунке (рис. 1), где автор самодельного ролика взял для этого крышки от пластиковых бутылок. В качестве оси – пластиковая труба из карниза.
Рис. 1. Самодельный ролик для пресса (вариант 1)
Это был приведен самый простой и доступный способ. Также по просторам сети «гуляет» еще один – более надежный, но в то же время и более дорогой (рис. 2). Для него нужно: колесо, металлический стержень с резьбой подходящий по диаметру, две гайки и, для удобства, поливной шланг, чтобы надеть его на стрежень.
Рис. 2. Самодельный ролик для пресса (вариант 2)
Попытка соорудить что-то более надежное и серьезное (на основе подшипников), не имея материалов, обойдется дороже, чем купить готовый китайский гимнастический ролик. Также нет смысла покупать новое колесо от коляски, чтобы сделать самому гимнастический ролик дома, ведь самое дешевое стоит более половины от цены готового ролика. В сети не сложно найти видео по изготовлению гимнастического ролика в домашних условиях. Основной пользой, которую вы получите, сделав этот самодельный тренажер для пресса своими руками, так это будет понимание того, насколько нужен вам вообще этот ролик и стоит ли покупать его в магазине, в том случае если самодельное произведение чем-то не устроит.



































