Паровой котел отопления в частном доме
Паровой котел является альтернативным видом обогрева частных домов и дач. Водяное отопление зданий неправильно называют «паровым» – такая путаница в названиях связана с принципом обогрева многоквартирных домов, где внешний теплоноситель под давлением поступает от ТЭЦ к отдельным домам и передает свое тепло внутреннему носителю (воде), который циркулирует в замкнутой системе.
Паровое отопление в частном доме используется значительно реже других способов обогрева помещений. Экономически оправдано применение котла на даче или загородном доме, когда не предусмотрено круглогодичное проживание, а главную роль в отоплении играет скорость прогрева помещений и простота подготовки к консервации системы.
Возможность монтажа такого оборудования в дополнение к существующему, например, печному, является еще одним преимуществом использования пара в качестве теплоносителя.
В результате кипения воды в котлоагрегате (парогенераторе) образуется пар, который подается в систему трубопроводов и радиаторов. В процессе конденсации он отдает тепло, обеспечивая быстрый нагрев воздуха в помещении, и затем в жидком состоянии возвращается по замкнутому кругу к котлу. В частном доме такой вид отопления может быть реализован в виде одно- или двухконтурной схемы (обогрев и ГВС для бытовых нужд).
По способу разводки система бывает однотрубной (последовательное соединение всех радиаторов, трубопровод проходит горизонтально и вертикально) или двухтрубной (параллельное присоединение радиаторов). Возврат конденсата в парогенератор возможен самотеком (замкнутая схема) или принудительно при помощи циркуляционного насоса (разомкнутая схема).
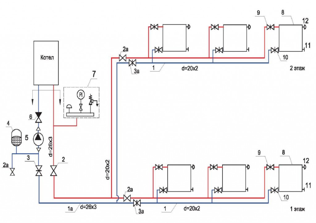
Схема парового отопления дома включает в себя:
- котел;
- бойлер (для двухконтурной системы);
- радиаторы;
- насос;
- расширительный бак;
- запорно-предохранительная арматура.
Описание парового котла отопления
Ключевым элементом обогрева помещений является парогенератор, конструкция которого включает в себя:
- топку (камера сжигания топлива);
- испарительные трубы;
- экономайзер (теплообменник для подогрева воды за счет уходящих газов);
- барабан (сепаратор для разделения пароводяной смеси).
Котлоагрегаты могут работать на различных видах топлива, но лучше для частных домов использовать паровой бытовой котел с возможностью перехода с одного типа на другой (комбинированный).
Эффективность и безопасность такого обогрева помещений зависит от грамотного подхода к выбору парогенератора. Мощность котлоагрегата должна быть соизмерима с его задачами. Например, для создания оптимального микроклимата в доме, площадью 60-200м 2 , необходимо купить котел мощностью от 25кВт. В бытовых целях эффективно использовать водотрубные агрегаты, которые являются более современными и надежными.

Самостоятельный монтаж оборудования
Работы проводятся поэтапно, в определенном порядке:
1. Составление проекта с учетом всех деталей и технических решений (длина и количество труб, тип парогенератора и место его установки, расположение радиаторов, расширительного бака и запорной арматуры). Этот документ должен быть обязательно согласован с органами госконтроля.
2. Монтаж котла (производится ниже уровня радиаторов для обеспечения продвижения пара вверх).
3. Разводка труб и установка радиаторов. При прокладке на каждый метр должен быть установлен уклон около 5 мм. Монтаж радиаторов осуществляют с помощью резьбового соединения или сварки. В отзывах о паровой системе отопления опытные пользователи рекомендуют установить краны для устранения проблем при возникновении воздушных пробок и облегчения последующей эксплуатации.
4. Монтаж расширительного бака проводят на 3 метра выше уровня парогенератора.
5. Обвязка котлоагрегата должна осуществляться только металлическими трубами одинаковым диаметром с выходами от котла (нельзя использовать переходники). Отопительный контур замыкается в агрегате, при этом желательно установить фильтр и циркуляционный насос. В нижней точке системы необходимо установить узел слива, чтобы легко можно было опорожнить трубопровод для ремонтных работ или консервации конструкции. На котлоагрегат обязательно монтируются необходимые датчики, контролирующие процесс и обеспечивающие безопасность.
6. Тестирование системы парового отопления лучше проводить в присутствии специалистов, которые смогут не только выполнить все процедуры согласно действующим нормам и стандартам, но и устранить какие-либо недочеты и неточности схемы монтажа своими руками.
Система «теплого пола»
«Теплый пол» обретает в последнее время все большую популярность. Зачастую его создают на основе электрического отопления, но при желании можно использовать и водяное. Установка такой системы – процедура сложная и трудоемкая. Под напольное покрытие укладываются полипропиленовые трубы (можно использовать и металлопластик), по которым будет циркулировать горячий теплоноситель.
Система «водяной теплый пол»
Также необходимо установить комнатный термостат – с его помощью будет регулироваться температура.
Схема разводки и установки регулятора
Подобная вариация системы «теплого пола» имеет массу достоинств по сравнению с электрической, главными из которых являются низкая стоимость и незначительная энергоемкость.
Применение горячего пара вряд ли можно отнести к популярным видам отопления, к тому же, согласно действующему законодательству использовать его в жилых и общественных зданиях запрещается. Но иногда в целях экономии его все же устанавливают в гаражах, хозяйственных постройках и даже в частных домах.
Сооружение лестницы в доме – процесс непростой, но выполнимый. Основная сложность заключается в расчетах угла наклона и параметров пролета, ведь от этого зависит не только удобство эксплуатации, но и долговечность конструкции. Прочная и красивая лест…
Основные преимущества и недостатки
Главное преимущество, за которое обычно и выбирают пар – это большая эффективность. Сравним:
- Когда на 50 С остывает 1 кг воды, получается 100 кДж энергии.
- Когда 1 кг пара превращается в конденсат, получается 2300 кДж.
Другие преимущества:
- Благодаря высокой теплоотдаче, экономятся ресурсы.
- Высокая производительность. Паровое отопление греет большие объёмы за более короткие сроки.
- Паровые котлы могут быть разных габаритов и их можно подобрать под размеры помещения.
- Так как пар лёгкий, систему совершенно необязательно снабжать циркуляционными насосами.
К недостаткам относится:
- Из-за высоких температур оборудование и трубы испытывают перегрузки, быстрее выходят из строя.
- Батареи и радиаторы могут стать источником ожогов.
Пар – это смесь воды с воздухом. Идеальная смесь для того, чтобы трубы быстрее ржавели. Что часто и происходит, а результат – прорывы, выброс горячего пара и вероятные травмы и ожоги.

Оборудованная система парового отопления
Некоторое время назад паровое отопление пробовали внедрять. Его применяли в прачечных, на фермах и проч. Но из-за того, что температуры батарей очень высокие, с середины прошлого века, паровое отопление запрещено нормами СНиП к использованию в частных домах!
Однако это не мешает применять пар для отопления:
- в промышленных помещениях;
- вестибюлях;
- лестничных клетках.
Паровое отопление. Принципы работы
Основными преимуществами парового отопления является экономичность и скорость прогрева, которая выше, чем у водяной системы. Но есть и определенные недостатки паровой системы нагрева:
- сильно нагревается поверхность радиатора;
- быстрый износ трубопроводов и котла;
- самый большой недостаток – невозможно регулировать режим нагрева.
Основой частью системы этого вида отопления является то место, где закипает вода − котел. В котел подается топливо, благодаря которому вода закипает и превращается в пар. В коллекторе подачи создается давление и пар поступает в трубы. а по трубам к радиатору. Конденсируясь, пар снова поступает в котел.
В зависимости от способа поступления конденсированного пара в котел, схема обогрева и делится на открытую и закрытую. Открытая система включает в себя накопительный бак для конденсата.
Схема закрытого отопления частного дома предусматривает наличие широкой трубы для конденсированного пара.
Самостоятельная установка такой системы отопления — очень сложный процесс и требует предварительного составления всех необходимых расчетов: мощности котла, количества топлива.
Устройство систем отопления
Рассмотри такие вопросы: схема парового отопления частного дома и схема водяного отопления дома.
Схема водяного отопления частного дома предусматривает, что в роли теплоносителя будет выступать вода или антифриз. Первоначально вода нагревается внутри котла и затем поступает к радиаторам, которые и дают тепло воздуху в помещении. Остывшая вода вновь поступает в котел и заново повторяется процесс.
Система водяного отопления частного дома является самой популярной, потому как вода отличный теплоноситель и при отключении системы, она еще долго сохраняет тепло и нагревает помещение.
Схема отопления жилого дома воздухом менее известна. Теплоносителем выступает нагретый воздух. Воздух, так же, как и вода нагревается в котле и по воздуховодам перемещается в помещение, обогревая его. Остывший воздух забирается воздуховодами обратно для нагрева. При использовании воздуха для отопления, необходимы чертежи отопления частного дома и точные расчеты. Это связано с тем, что воздух в отличии о воды, может реагировать на возможные препятствия.
Схема парового отопления частного дома – это своеобразный промежуточный вариант между воздушным и водяным отоплением. Отопление помещения паром происходит следующим образом. Вода в котле нагревается, испаряется, а пар идет в трубы и подается к радиаторам. После остывания, пар конденсируется и снова стекает по трубам к котлу.
Схема парового отопления частного дома обеспечивает быстрый подогрев радиатора, а значит и быстрый прогрев комнаты.
Фото каждой из схем и видов отопления можно увидеть в интернете, вписав в поисковую систему запрос: «схема отопления частного дома, фото».
Как сделать отопление в частном доме без насоса из пластика самотеком: расчет самотечной системы
Обустройство самотёчного отопительного контура сопряжено с риском получить неэффективную систему обогрева. Неточности проектирования и монтажа могут привести к тому, что котёл закипит, а теплоноситель не будет двигаться в трубах. Чтобы гравитационная система работала должным образом, её предварительно рассчитывают, определяя мощность котлоагрегата, геометрические параметры и протяжённость трубопроводов.
Естественная циркуляция среды в закрытых или открытых сосудах осуществляется благодаря гравитации. При нагреве плотность уменьшается, из-за чего холодные слои опускаются вниз, а тёплые поднимаются вверх. Чтобы этот физический эффект смог обеспечить циркуляцию теплоносителя по трубопроводам, отопительная система должна иметь ряд конструктивных особенностей:
- Диаметры входного и выходного патрубков котлоагрегата должны быть не меньше 40 мм.
- На выходе из котла обязательно монтируют разгонный стояк, который заканчивается расширительным баком.
- Греющие трубы прокладывают с небольшим уклоном в сторону входного патрубка.
Важным критерием эффективности обогрева является скорость движения теплоносителя. В современных системах циркуляцию воды обеспечивают насосы. В них скорость варьируется в широких пределах и может доходить до нескольких метров в секунду. Для гравитационных контуров этот показатель не превышает значения в 0,25 м/с.
Отталкиваясь от предельной скорости рассчитывают систему и выбирают диаметры трубопроводов:
- Определяют количество теплоты, необходимое для обогрева здания. Как правило, на каждые 10 м2 площади приходится 1 кВт тепловой энергии.
- Рассчитывают количество теплоносителя. Для этого тепловую энергию делят на разницу температур между подачей и обраткой и умножают на поправочный коэффициент, равный 0,86.
- Вычисляют площадь проходного сечения и диаметры труб. Первый параметр определяют, умножая объём теплоносителя на принятую скорость движения воды и делят на 3600. Зная площадь сечения, определяют минимальный диаметр трубы, а затем сравнивают полученное значение с производимым сортаментом и выбирают ближайший больший экземпляр.
Преимущества и недостатки парового отопления
Паровая система отопления работает на:
- Газу;
- Угле;
- Дровах.
В целом, это оборудование, как и любое другое, обладает своими плюсами и минусами, которые нужно учитывать при желании обустроить свое жилье теплом и комфортными условиями пребывания. К достоинствам относят следующие качества.
- Доступная цена, что актуально для многих потребителей.
- Низкий показатель теплопотери, что делает технологию высоко экономичной и позволяет снижать затраты на обогрев помещений.
- Высокий уровень теплоотдачи, что позволяет оперативно обогревать даже большие здания.
Есть и недостатки.
- Сильная шумность при функционировании котла, во время заполнения труб и радиаторов паром. Решить проблему можно, если котельная установка будет размещена в специальной комнате, а трубы покрыты шумоизоляционным материалом.
- Высокая температура батарей. Это может стать причиной ожогов. Предотвратить такие последствия помогут декоративные решетки из сырья, устойчивого перед нагревом.
- Отсутствует плавная регулировка температуры, а потому, чтобы остудить воздух в комнатах нужно отключить всю систему. Решение – выбор современных котлов, снабженных всеми необходимыми функциями.
- Низкая безопасность. Решение – выбор качественного котельного оборудования, заказ проектирования системы у специалистов, имеющих опыт в такой сфере деятельности.
Различные схемы парового отопления частного дома
Существует несколько видов схем парового отопления. Так, отопления можно сделать даже самому. Однако для этого необходимо знать несколько его вариантов.
Замкнутая и разомкнутая разводка трубопровода
Различают два вида вышеупомянутого автономного отопления, в частности, замкнутый, а также — разомкнутый, что зависит от попадания конденсата в конечную точку тепла (радиатор).
Замкнутая система характеризуется тем, что в ней с элементов отопления конденсат попадает в источник тепла благодаря наличию разности давления. При этом для четкой работы отопления нужно размещать сборник пара ниже по сравнению с нагревательными элементами.
Замкнутая схема парового отопления
При разомкнутой системе отопления попадание конденсата в бак накопления происходит самостоятельно (самотечным путем). С помощью насоса происходит перекачка в тепловой источник. В таком виде отопления происходит стекание конденсата свободным путем с крайнего радиатора в кондетсатонакопитель.
Разомкнутая схема парового отопления
Двухтрубная или однотрубная система?
Паровое автономное отопление бывает одно- и двухтрубным. Обычно однотрубную систему отопления используют не часто (при этом возникает сложность в регулировании имеющегося потока тепла: для контроля нужны спецустройства).
Более практичное двухтрубное отопление. Оно легко регулируется: на месте входа пара в радиатор ставят специальный вентиль для регулировки, а на месте выхода конденсата ставят термостатирующие отводчики конденсата. Поэтому такой вид отопления малошумный.
Ориентируемся на давление в системе отопления
Системы парового автономного отопления различаются по присоединению отопительных элементов, по виду расположения отводов пара и отводов конденсата.
Автономное отопление с низким давлением
Как известно в котле при работе возникает давление, которое заставляет передвигаться пар в стояк и в разводящий паропровод, от которого к радиаторам отходят стояки. К отопительным радиаторам подсоединяют пароподводки со специальными кранами для регулировки. Поступая в радиаторы, пар соприкасается с их стенками и охлаждается. При этом отдается тепло. Во время этого процесса образуется конденсат. Он попадает снова в котел по конденсатопроводу.
Система парового отопления с низким давлением
Автономное отопление с высоким давлением
В начале паропровода с высоким давлением оно составляет 0,7 кгс/см кв. Такие системы встречаются только с замкнутым контуром. При образовании пара он собирается и поступает в гребенку для распределения. В гребенке специально устанавливают особый клапан, который контролирует установку допустимого давления. Для последующего ремонта клапана заблаговременно устанавливают байпас.
Затем пар поступает к радиаторам. Необходимо, чтобы давление было достаточным во всей системе. Это нужно для того, чтобы удалялся конденсат. При этом температура конденсата почти одинакова с температурой пара.
Схема парового отопления с высоким давлением
В паропроводе в некоторых местах монтируют вентили (на входе в него, на выходе из радиаторов). Чтобы контролировать давление устанавливают манометр. Также систему обеспечивают компенсаторами для, соответственно, компенсации температурные удлинения в трубопроводе.
Вакуум-паровое отопление
Данная схема парового отопления частного дома работает за счет насоса, который создает низкое давление в самом котле. С его помощью происходит передвижение пара и конденсата по системе автономного отопления.
Если у вас есть печь
Вышеупомянутые схемы парового автономного отопления можно оборудовать, в частности, в жилых домах с помощью уже имеющихся печей. Методика сборки системы и трубопровода идентична другим видам парового отопления. Но при этом радиаторы будут отсутствовать в помещении, куда выводится труба, кроме тех случаев, если вышеупомянутое помещения больше 40 м кв.
При оборудовании парового отопления необходимо строго соблюдать технологию. Необходимо заранее все рассчитать, учитывая возможные нюансы. Для надежности и точности все расчеты необходимо поручить профильным специалистам. Мы были рады представить вам актуальные схемы парового отопления частного дома. Следуя нашим рекомендациям, вы точно добьётесь положительного и нужного результата.
Отопление паром – как это работает?
Источником тепловой энергии в паровой отопительной системе является парогенератор – котел. При закипании воды выделяется пар, который поступает по трубам в отопительные приборы. Двигаясь по системе, пар конденсируется и оседает на стенках радиаторов или конвекторов, отдавая большую часть тепла. Нагреваясь, приборы отопления отдают свое тепло в окружающее пространство и обогревают помещение, в котором они находятся. Это объясняет высокую производительность паровой системы отопления. Во время конденсации одного килограмма пара выделяется более 2400 кДж тепловой энергии, при температуре паров 50 градусов выделяется всего лишь 110 кДж.
Схема парового отопления частного дома
Циркуляция пара осуществляется благодаря редукционно-охладительной установке (РОУ) или паровой турбине. Попадая в рабочую систему, пар конденсируется и в жидком виде возвращается в парогенератор, замыкая цикл. В замкнутых системах пар попадает обратно в котел самотеком, трубопровод укладывается таким образом, чтобы в направлении котла образовывался небольшой уклон. При использовании системы замкнутого типа необходимо сделать так, чтобы между местом, где поступает пар, и местом выхода была разница давления, достаточная для вытекания жидкости. Паросборник следует разместить намного ниже отопительных приборов. В системах открытого типа вода стекает в накопительные емкости и благодаря насосу перекачивается в парогенератор.
Различают два вида разводки трубопровода: однотрубную и двухтрубную. В первом случае движение пара осуществляется по одной трубе, во втором – по двум: по одной перемещается пар, а по второй возвращается конденсат. В частных домовладениях применяется в основном второй вид разводки, который дает возможность самостоятельно выполнять регулировку температуры в системе специальными вентилями. В однотрубном варианте снизить температуру можно, лишь уменьшив мощность работы котла или отключив отопление. Для холодного времени это грозит недостаточным обогревом.
1 Какую разводку полипропиленовых труб для дома выбрать
Это самый первый вопрос, который предстоит решить всем, кого интересует система отопления из полипропилена. Существует два типа разводки – верхняя и нижняя. В первом случае трубопровод (подающий) прокладывается на чердаке либо под потолочной поверхностью. А стояки спускаются от него вниз. К ним подсоединяют приборы отопления. Обратный трубопровод при верхней разводке из полипропиленовых труб прокладывают в погребе частного дома либо по полу.
Подобная схема рекомендована для ситуаций, когда вода в отопительной системе циркулирует по естественному принципу. Также верхняя разводка выполняется при невозможности скрытого монтажа полипропиленовых труб.
Верхняя разводка полипропиленовых труб в доме
При обустройстве таких систем обратите внимание на следующие важные советы:
- На чердаке обязательно следует установить своими руками воздухоотводчик, который будет стравливать в автоматическом режиме воздух из отопительной системы, и специальный расширительный бак. Последний необходим для защиты трубопровода и оборудования от перепадов давления.
- Разрешается не использовать циркуляционный насос.
При нижней схеме разводки оба трубопровода (обратный и подающий) прокладывают под потолком погреба либо по полу цокольного (первого) этажа частного дома. Причем трубы укладывают параллельно друг к другу. Такая схема применяется при отдельной подаче горячей воды в каждый отопительный стояк.
Схема парового отопления в частном доме
К одним из самых эффективных и недорогих способов обогрева частного дома можно отнести такой вид, как паровое отопление. Эффективность данного способа состоит в непосредственной возможности самостоятельно обустроить отопительную систему (безусловно, желательным моментом будет присутствие специалиста) наряду с максимальной функциональностью быстрого обогрева как небольших, так и крупных помещений. Однако для данного проекта вам потребуется схема парового отопления, которую лучше всего заказать у профессионалов.

Для установки парового отопления в доме необходимы следующие элементарные составляющие:
- Котел;
- Выпускной клапан;
- Радиатор;
- Трубы (металлические);
- Насос (при разомкнутой системе);
- Топка.
Котлы парового отопления: газовые, электрические, дровяные и другие
Одна из главных составляющих паровой отопительной системы — отопительный котел. Котел выбирается достаточной мощности и с учетом личных финансовых возможностей.
Расчёт мощности

Существует простой вариант для расчёта мощности любой разновидности отопительного котла для частного дома:
- В случае приобретения котла и для обогрева, и для обеспечения горячей водой берется усредненное значение 0,138 кВт/м2у помещения с высотой потолков 2,5—2,7 м и умножается на общую площадь помещений в доме.
- Для помещений, где потолки выше 2,7 м используется коэффициент «высоты потолка», равный высоте потолка ÷ 2,7.
- Затем применяется «региональный» коэффициент, который учитывает особенности климатических условий в конкретном регионе.
Коэффициенты для регионов России:
- южные районы — 0,85;
- средняя полоса до Урала — 1,1;
- широта Москвы до Урала — 1,3;
- Сибирь — 1,5;
- северные районы — 2,0.
- Итоговое значение округляется до целого числа в большую сторону (например, 8,3 и 8,9 округляем до 9).
Пример расчётов с учётом коэффициентов:
Дом в районе Краснодара площадью 130 м2 и высотой потолков 2,7 — 0,138 кВт/м2(усредненное значение) × 130 м2 (площадь дома) × 0,85 («региональный» коэффициент).
Топливо для котлов
В зависимости от вида топлива паровые котлы разделяют:
- на электрические (подключаются к электросети или работают от генератора);
- на газовые (подключаются к газовой сети или работают от газового баллона);
- на твердотопливные (в основном работают на дровах или угле);
- на жидкотопливные (работают на «солярке», бензине или отработанном машинном масле);
- на пеллетные (работают на древесных гранулах — пеллетах);
- на комбинированные (котлы, которые могут работать на двух видах топлива).
Для электрокотлов характерны простота и высокая степень безопасности при эксплуатации, экологическая чистота. Однако прямая зависимость от электросети чревата последствиями — любая авария на линии приведёт к тому, что дом останется без отопления.
Чуть более экономичный вариант — установка системы жидкотопливных котлов.
Твердотопливные отопительные котлы еще дешевле в эксплуатации, но трудоемки в обслуживании: уборка золы и новая закладка топлива производится каждые 6—8 часов.
Пеллетные котлы — это относительная дорогая новинка, которая стремительно набирает популярность у владельцев коттеджей. Благодаря применению современных технологий использование древесных гранул экологично и экономично, а работа отопительного котла максимально автоматизирована.
Газовый котел — самый экономичный и распространенный тип котлов. Несмотря на то что его установка производится исключительно после получения специального разрешения и в процессе эксплуатации надо строго соблюдать меры пожарной безопасности, газовые котлы просты в использовании и довольно надежны.
Материал теплообменника

Сталь — наиболее распространенный материал для изготовления теплообменника у недорогих котлов.
Это недорогой легкообрабатываемый материал. Впрочем, у него есть и серьёзные недостатки:
- Эластичность приводит к тому, что от длительного воздействия высоких температур поверхность мягкой стали покрывается трещинами.
- Сталь подвержена коррозии.
А вот к долговечности и надежности чугунных теплообменников вопросов нет: чугун почти не подвержен коррозийному разрушению. Зато при эксплуатации чугунных теплообменников нельзя допускать неравномерного нагрева и попадания в котел из возвратной линии сильно охлажденной воды.
Что касается электрокотлов, то здесь нагрев воды происходит от «электрода», которые в недорогих приборах бывают графитовыми или стальными (нержавейки), а в дорогих (элитных) моделях — титановыми.
Особенности устройств на дровах, их КПД
Эффективность работы «дровяных» котлов зависит:
- От использования только низкозольных дров твёрдых пород (в идеале дуб или бук).
- От положения заслонки термостата: прикрытая заслонка ведёт к существенному снижению КПД котла.
Внимание! Падение температуры теплообменника до 55 °C приводит к накоплению мокрой золы. Накопленная зола забивает теплообменник, в помещение начинают проникать угарные газы
Помимо этого, возникающие от воздействия конденсата коррозийные процессы существенно сокращают срок службы котла.
- От наличия малого подмешивающего контура обратной воды, который защищает поверхность теплообменника от низкотемпературной коррозии и способствует более легкому отделению конденсата и смолы.

Фото 3. Дровяной котёл для парового отопления. Довольно часто используется в подобной отопительной системе.
Советы и рекомендации
Рекомендуется периодически прочищать дымоход от скопления сажи. Чтобы конденсат спокойно перетекал по обратной линии, следует собирать печь как можно ниже, желательно в подвале.
Нельзя игнорировать монтаж клапанов, чтобы не допустить аварийной ситуации.
На стадии составления схем, расчетов количества материалов, обратитесь за консультацией к профессионалам. Наймите опытного сварщика, чтобы все швы были цельными, прочными.
Не стоит оставлять заслонку открытой: дом будет выхолаживаться.
Пример собственноручного изготовления теплообменника рассматривается в нижеследующем видео:
Разводка труб системы отопления
Наибольшей популярностью пользуются 2 схемы: однотрубная и двухтрубная. Давайте рассмотрим что они из себя представляют.
Однотрубная система – самый элементарный вариант, однако, не самый эффективный. Она представляет собой замкнутый круг из труб, запорной арматуры, автоматики, центром которой является котел. От него вдоль нижнего плинтуса идет труба во все комнаты, подсоединяясь ко всем батареям и другим отопительным приборам.
Плюс схемы. простота монтажа, малое количество материала для сооружения схемы.
Минус. неравномерное распределение теплоносителя по радиаторам. Батареи в крайних комнатах будут прогреваться хуже, так как самые последние на пути движения воды. Однако эта проблема решается установкой насоса или увеличением количества секций в последних радиаторах .
Двухтрубная система – более эффективный способ, так как с его помощью решается проблема равномерного распределения воды по всем отопительным устройствам. Трубы можно располагать поверху (этот вариант предпочтительнее, потому что тогда вода сможет циркулировать по естественным причинам) или в нижней части (тогда потребуется насос).
Положительные моменты выбора данного вида системы отопления:
- Высокий КПД. Несложная в установке и в принципе действия агрегата обладает достаточной эффективностью работы на долгое время. Паровая система по самому своему принципу циркуляции воды и конденсата является весьма продуктивной;
- Хорошие теплоаккумулирующие характеристики пара, которые позволяют передавать тепло через радиаторы без существенных затрат;
- Низкая себестоимость установки и широкий диапазон выбора как для возможностей вашего бюджета, так и для любого типа помещения, в котором будет производиться установка.
- Возможность достаточно скорого и регулируемого обогрева частного дома.
В целом стоит отметить, что паровая система обогрева является достаточно выгодным вариантом для желающих обустроить практически самостоятельно, дешево и сообразно собственному бюджету достаточно надежную и эргономичную систему. Диапазон выбора котлов, типов труб, радиаторов и прочих входящих элементов достаточно широк и разнообразен. Дачные участки, крупные помещения и частные дома при безопасной и правильной установке (см. этапы и общие советы) могут быть достаточно обеспечены таким видом отопительной системы.


































