Варианты перепланировки и зонирования в трехкомнатной квартире
Перепланировка трехкомнатной квартиры может оказаться довольно сложным делом; некоторые типовые планировки практически не подлежат изменениям из-за расположения несущих стен или длинных коридоров, а также колонн или просто маленькой площади. Тем не менее мы собрали для вас актуальные и удачные планировки с практичными идеями, которые могут вам понравиться.

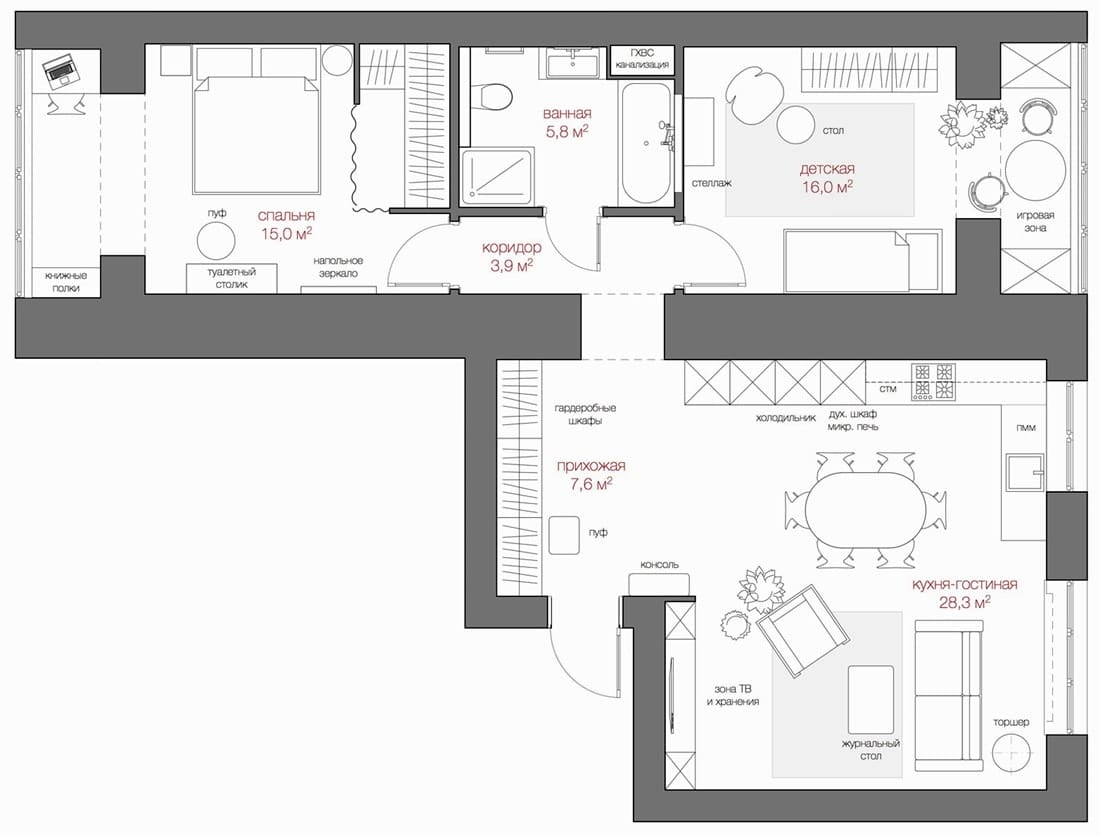
В этом варианте перепланировки, кухню (8 кв. метров), гостиную (20 кв. метров) и прихожую (7,6 кв. метра) объединили в одну комнату, которая получилась очень просторной и с двумя окнами.В детской и спальне лоджии присоединены, там образовались кабинет и игровая комната.Ванная комната расширена за счет одной из спален, теперь здесь есть и ванная чаша, и душевая кабина.Кухонный гарнитур поставлен таким образом, чтобы раковина находилась напротив окна, что очень удобно, а зона для ТВ встроена в нишу.

Эта практичная планировка трехкомнатной квартиры площадью 110 квадратных метров имеет две спальни, в каждой из которых есть ванная комната и гардеробная. Кухня не имеет окна, но спроектирована в американском стиле – с островом и столовой на четыре персоны. В гостиной двери на балкон решены в формате дверей-слайдеров со стеклами от пола до потолка.

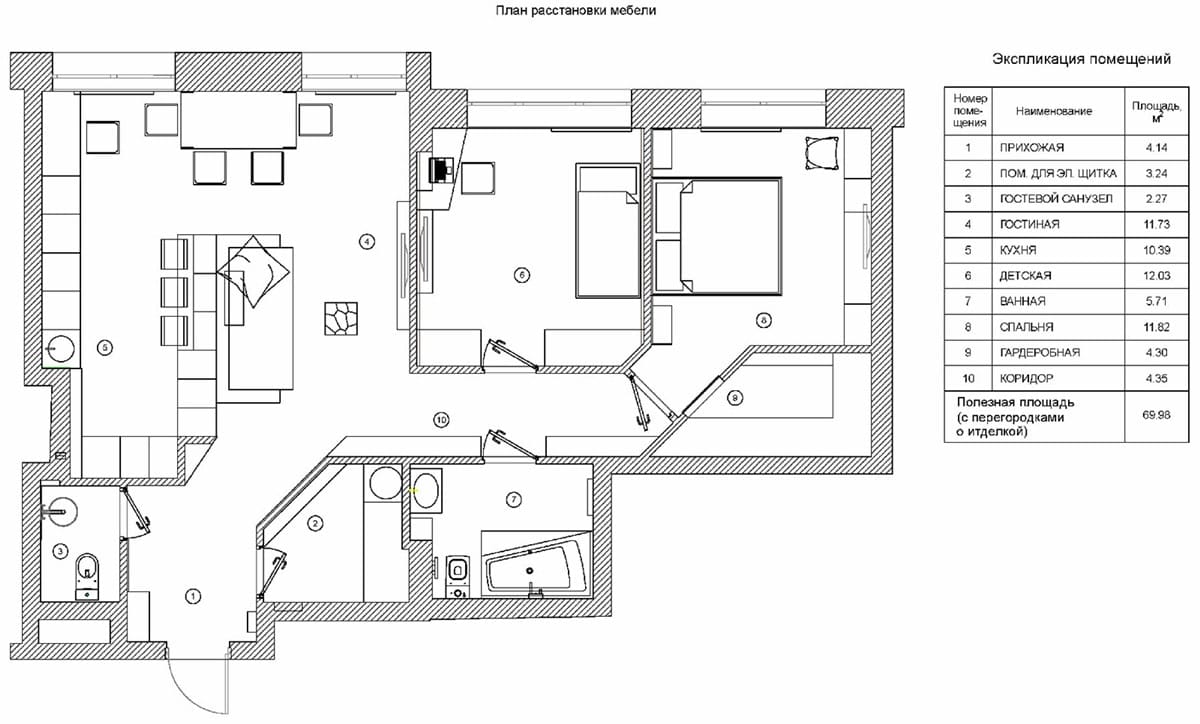
Эта планировка трехкомнатной квартиры вполне типична для новостроек Москвы. Гостиная и кухня были объединены, на месте прихожей расположилось помещение для электрощитка, по совместительству – гардеробная. Также есть гардеробная при главной спальне и гостевой туалет.

Еще один вариант перепланировки трехкомнатной квартиры реализован в интересном формате. На месте, где раньше была кухня, теперь расположились гостевой дополнительный туалет и прачечная, на месте прихожей – кухонный гарнитур. Кухня и столовая объединены. На плане в правой части квартиры расположены две спальни, каждая с ванной комнатой и встроенными шкафами-купе. А при гостиной большая лоджия оформлена в стиле патио с диванчиком и летней столовой.

Еще одна удачная планировка трехкомнатной квартиры имеет по гардеробной в каждой из спален и две ванные комнаты. Столь расширенный формат стал возможен благодаря размещению кухни в зоне прихожей и устранению коридора как такового. Теперь здесь есть лишь проходная зона между кухней и гостиной, с обеих сторон острова.

Проблема квартир с длинными коридорами в том, что в них зачастую очень сложно сделать перепланировку, так как вариантов расположения комнат не так уж и много. Но в данном варианте, обе спальни получили встроенные гардеробы, хозяйка – отдельную прачечную и кухню-гостиную открытой планировки, а в прихожей теперь есть встроенный шкаф для одежды.

В данном случае трехкомнатная квартира в хрущевке стала двухкомнатной. Спальню в 6 квадратных метров, которая в некоторых случаях в пятиэтажках также является кладовой, сделали частью главной спальни, которая теперь располагает площадью в 15,6 квадратных метров.

Разнообразие советских планировок 3-х комнатных квартир
В соответствии с видом домов и их территориальным расположением выделяют несколько типов п-3м планировок. Возможность расположить комнаты отдельно зависит от года постройки здания и его материала.
Отрицательно на популярности такого размещения сказываются тонкие стены и совмещенный санузел. Но некоторые старые постройки могут похвастаться довольно просторными залами, длинными коридорами и высокими потолками.
В сталинке
Начало строительства таких домов припадает на 50-е годы. Кирпичные пятиэтажные здания с улучшенной планировкой в то время считались статусным жильем. Они возводились по всему Союзу. Их можно было увидеть в Минске, Гомеле, Орле, Харькове, Бобруйске и прочих городах. Основные характеристики 3-комнатной сталинки – высокий потолок (3-4 метра), раздельный санузел, изолированные комнаты.
В основном они имеют три этажа. К особенностям относятся широкие подоконники, наличие кладовых. Перекрытия могут быть бетонными, деревянными или смешанными. К преимуществам можно отнести удобное расположение, в основном в центре крупных городов, хорошую звукоизоляцию.
В хрущевке
Такие дома возводились с конца 50-х и до 1980 года. На протяжении этого времени они дорабатывались, модифицировались. Планировка 3-комнатного жилья ранних версий не отличалась комфортом. Потолки были низкими, комнаты очень маленькими.
В конце 70-х развернулось активное строительство 9-этажных хрущевок по специальной программе в 53 кв.м. Здания из кирпича и панелей стали улучшать, потолки достигали 2,64 м. Из-за снятия нагрузки с внутренних перегородок появилась возможность перепланировки прямоугольных комнат.
В брежневке
Средние по площади 3-комнатные квартиры считались улучшенными проектами хрущевок. Их отличали большие окна, наличие ниш и антресолей в коридоре или над межкомнатной дверью. Площадь всех помещений от 48 м2 до 56.2 м2.
Некоторые брежневки имеют улучшенную планировку, прошли реновацию. В домах «башнях» кухни очень большие. Их метраж до 10 м2. Узкую прихожую можно сделать функциональной и визуально увеличить за счет встроенного шкафа. Если жилищные условия можно увеличить только за счет перепланировки, все действия необходимо согласовывать.
Планируя снос стен в ванной комнате, необходимо понимать, что все сантехнические предметы должны оставаться на местах, определенных архитектором на этапе составления чертежей. В противном случае высока вероятность затопления.
Функциональные назначения комнат в 3 комнатной квартире
Приступим к рассмотрению функционального назначения комнат при условии, что здесь будет проживать семья из 4х человек: двое взрослых и двое детей.
Это самый оптимальный вариант, который предполагает создание индивидуальных зон для каждого члена семьи. Бывают случаи нестандартные, когда, к примеру, один из родителей работает дома
Тогда важно одну комнату выделить под кабинет взрослого
Это не самый лучший вариант — лишать семью гостиной, но если другой возможности нет, приходится идти на эти жертвы. Хотя кабинет можно разместить и на утепленной лоджии, к примеру, если таковая имеется.
Что такое микроквартира
Традиционно микроквартирами называются объекты общей площадью до 18 кв. м. На рынке новостроек чаще всего такой метраж имеют апартаменты, а на вторичном рынке — квартиры, которые находятся в домах-общежитиях семейного типа и ведомственных домах, не относящихся к высокому классу. В сегменте апартаментов, которые относятся к нежилым помещениям, встречаются предложения даже по 10 кв. м.
Социальная норма жилой площади на человека
Норма предоставления жилплощади на одного человека в России составляет 33 кв. м, для двоих — 42 кв. м. Если семья состоит из трех человек и более, каждому из них положены минимальные 18 кв. м. Регионы и муниципалитеты могут устанавливать свои нормы, но не меньше федеральных.
На первичном рынке в сегменте жилых домов микроквартиры встречаются редко. Сейчас их размер регулируется строительными нормами и правилами, согласно которым площадь общей жилой площади, например, в однокомнатной квартире не должна быть меньше 14 кв. м. А в сегменте апартаментов у девелоперов больше свободы. По словам Юлии Дымовой, под микроквартиры переделывают старые общежития или же объекты редевелопмента, когда офисное здание становится апартаментами. В этом случае СНиПы не действуют.
«Согласно ст. 105 и 106 Жилищного кодекса, минимальная установленная санитарная норма составляет 6 кв. м на человека. Законодательно застройщики никак не ограничены в строительстве маленького жилья, санитарные нормы тут не нарушаются — квартиры в 5 кв. м пока не строят», — поясняет Андрей Саунин.
Надежда Коркка, управляющий партнер «Метриум»:
— В Москве вряд ли согласуют проект (новое строительство, а не реконструкцию), где предусмотрены квартиры с жилой площадью меньше 14 кв. м. Это объясняется тем, что федеральными документами установлена минимальная площадь жилой комнаты для однокомнатной квартиры в размере 14 кв. м. На апартаменты не распространяются нормы по минимальной площади, поскольку они не являются жилыми помещениями. Однако вряд ли стоит ожидать появления на рынке аналогов азиатских «капсульных» лотов, так как подобный формат не будет востребованным.
Оформление спального места
Зону для сна, в основном располагают подальше от входной двери или даже оборудуют уголок с отдельной спальней, скрытый от глаз. Иногда вместо кровати, выбирают разборный диван, отличающийся более легким и компактным видом и оснащенный ящиками для белья и других различных вещей. Благодаря встроенным системам хранения, получается отказаться от приобретения громоздкого комода или шкафа.
На фото кровать, расположенная в нише, в дизайне кватиры-студии 30 кв м.
Спальную зону отделяют с помощью штор, балдахинов или прочего зонирующего декора, который позволяет обеспечить приватность и более комфортный отдых.
А что на вторичке
На вторичном рынке недвижимости Москвы много как малогабаритных квартир, так и выставленных на продажу долей одной жилплощади. По словам Елены Мищенко, в рекламных объявлениях о продаже жилья такие объекты часто упоминаются как студии. Поэтому понять, что это именно доля, а не отдельная жилплощадь, можно, лишь начав общаться с собственником.
Бывает, что жилое помещение делают из кухни, хотя это и незаконно. Кроме того, во многих микроквартирах, нарезанных из одной большой жилплощади, нельзя согласовать проведение коммуникаций. А если собственники все же проводят их, то это, опять же, незаконно. Люди, купившие такие объекты, сталкиваются с тем, что на них жалуются другие жильцы дома, утверждающие, что из-за такого несогласованного проведения коммуникаций страдает общая инженерная сеть, добавляет Елена Мищенко.
15 вариантов планировки трёхкомнатной квартиры
Для большой семьи каждый сантиметр площади и его грамотное использование уже будет играть важную роль в сохранении мира и душевной гармонии.
Планируя квартиру с двумя отдельными спальнями и общей комнатой, предусмотрите место для всей семьи и личные уголки для каждого. Вам может помочь объединить пространство открытая планировка и совмещение, например гостиной с кухней, но оставьте себе и возможность для уединения.
Вариант №1
Устройте на лоджии уютный уголок для чаепития или работы. А в детской спальне множество проблем решит двухэтажная кровать вместо двух отдельных. Больше места для игр, при этом у каждого ребёнка — своя территория для отдыха.
Вариант №2
Удачная планировка этой квартиры обеспечила окном каждую комнату. Обязательно используйте все возможности естественного освещения — полезного для самочувствия и настроения. Без света можно оставить разве что технические помещения, вроде кладовой или прихожей, но не спальню или гостиную.
Вариант №3
Даже в комнатах с открытой планировкой не избежать правильного зонирования, помогающего выжать максимум пользы из пространства. Для отделения зоны отдыха от обеденного уголка в гостиной используйте ковры и освещение. Для выделения рабочего места в спальне подойдут ширмы и стеллажи.
Вариант №4
Если детская пока не нужна, а место для гардеробной нашлось где-то ещё, используйте вторую комнату как кабинет. Устройте идеальный домашний офис для бизнеса или уголок творчества. Но и диван поставьте на всякий случай, чтобы было где оставить на ночь неожиданных гостей.
Вариант №5
Примыкающий к гостиной дворик или лоджия — фактически дополнительная комната в тёплое время года. Отнеситесь к ней соответственно — предусмотрите освещение, устройте место для отдыха. Но если осень и зима холодные и дождливые, убедитесь, что вам есть куда убрать летнюю мебель.
Вариант №6
Если вы живёте с друзьями, общая гостиная и две изолированные спальни — очень хороший вариант, чтобы иметь и возможность уединиться, и устроить совместную вечеринку. Если санузел примыкает только к одной из комнат, очередей по утрам не избежать.
Вариант №7
Маленькая комната, примыкающая к просторной спальне, — отличный вариант для семьи с подрастающим ребёнком. Так у него будет собственное место для игр, отдыха и учёбы. Но родители совсем рядом, если ночью что-то напугает.
Вариант №8
Если в квартире два уровня, то на первом этаже оставьте кухню и гостиную. На втором логично разместить главную спальню, для максимального уединения. В идеале ванная должна быть и на первом, и на втором этаже — хозяйская и гостевой санузел.
Вариант №9
У этой квартиры интересная планировка. Фактически здесь два крыла, и в каждом — свой санузел и зона гардеробной. Очень удобно для большой семьи.
Вариант №10
Большая открытая планировка совмещённой с кухней гостиной и столовой, да ещё и с внутренним двориком, создаёт в этой квартире массу вариантов для использования. Оптимально для многолюдных вечеринок с кулинарными изысками — готовить для гостей здесь очень удобно.
Вариант №11
Ванная нестандартной формы на первый взгляд может быть проблемой. Но такова цена её довольно большого размера. Разместите здесь душ или угловую ванну, и место останется и для стиральной машины, и для сушилки.
Вариант №12
Размещение гардеробной рядом со спальней — более привычный вариант. Но если устроить её в прихожей, можно найти массу плюсов. Например, так можно спокойно собираться на работу, не беспокоя тех, кому вставать позже.
Вариант №13
Спальни стоит размещать как можно дальше от источников шума. К примеру, будет лучше, если в противоположном от них конце дома будет гостиная с телевизором, кухня с работающей техникой. Для оптимальной тишины окна спален не должны выходить на улицу с активным движением.
Вариант №14
Когда семья растёт, гостевая спальня превращается в детскую. Всё равно нужно где-то размещать гостей? Поставьте в гостиной удобный диван, раскладывающийся для сна.
Вариант №15
Иногда очень хочется отделить зону столовой от гостиной. Например, используя приёмы визуального зонирования — продуманное освещение, размещение мебели и ковров. А летом совместные обеды и ужины просто устраивайте на балконе или во внутреннем дворике.
Варианты
Одним из вариантов при выборе новой трехкомнатной квартиры является планировка для комфорта размещения больших семей. Оптимальным вариантом в таком случае будет приобретение студии со свободной планировкой.
В современных улучшенных сериях трехкомнатных квартир в настоящее время стараются проектировать изолированные комнаты, балконы или лоджии в каждом помещении и совмещенные санузлы.
Одним из вариантов для жилья старого типа является полная перепланировка со сносом стен, не являющихся несущими. В этом случае вы можете поменять функциональное назначение комнат и расширять пространство помещений.
При этом зачастую используется несколько вариантов. Один из них – это превращение помещения в студию, другой – это частичное объединение двух смежных помещений, например, жилой комнаты и балкона. Также при кардинальной перепланировке стараются сделать все комнаты изолированными друг от друга.
Если один из членов семьи работает в домашних условиях, то в этом случае в таком жилье не обойтись без рабочего кабинета. Размеры трехкомнатных жилых помещений могут варьироваться от 56 до 80 и более квадратных метров. Небольшая по размерам квартира занимает 60-63 м2.
Расположение комнат в «новостройках»
В настоящее время санузел принято располагать рядом с кухонной комнатой. Также в современных планировках может использоваться открытый тип жилья, когда нет изолированных друг от друга комнат, что может быть не совсем удобно.
Трехкомнатное жилье также может иметь и угловое расположение. В этом случае одна из комнат становится проходной и ее обычно превращают в гостиную. В этом случае часто совершают перепланировку такой квартиры.
Нельзя не упомянуть про чешскую типовую планировку трехкомнатной квартиры. Она является весьма продуманной, но лишенной оригинальности. Хотя в этом случае вы всегда можете совершить перепланировку, так как далеко не все стены в ней являются несущими.
В настоящее время в современных многоквартирных домах может применяться самое разнообразное расположение комнат. Постоянно появляются новые виды планировок трехкомнатных квартир, что позволяет удовлетворить самые различные вкусы будущих владельцев квартир.
В панельных домах
Также старые типовые планировки в панельных домах при помощи опытных дизайнеров всегда можно превратить в нечто новое и современное, кардинально поменяв облик квартиры.
Что касательно квартир в пятиэтажных «хрущевках», то для них сейчас стараются выбрать более комфортную перепланировку. Например, кладовку в такой квартире превращают в гардеробную для хозяйки.
Также применяют частичное объединение помещений, например, балкон со спальной или кухню с гостиной. Пол в такой квартире меняют, используя плитку и убирая старое деревянное покрытие и стяжки.
Один из интересных вариантов – перепланировка стандартной типовой трехкомнатной «распашонки» в девятиэтажках в квартиру с объединенной кухней-гостиной и двумя изолированными комнатами.
Необходимо отметить, что трехкомнатные квартиры в пятиэтажках проектировались не совсем удачными. Смежные комнаты и небольшие площади помещений были не очень удобны. Поэтому в настоящее время для улучшения условий проживания применяют кардинальную перепланировку квартиры.
8 классных идей для микроквартир, которые мы подсмотрели на Airbnb — INMYROOM
Декор интерьера
Как обустроить мини-кухню, где найти место для двуспальной кровати и какую перегородку выбрать для зонирования студии — собрали самые рабочие идеи с сайта по бронированию квартир
На сайте Airbnb можно не только забронировать жилье на время отпуска, но и найти интересные идеи по организации маленького пространства. Их легко можно воплотить в жизнь, ведь чаще всего владельцы оформляют интерьер сами без помощи профи.
Раздвижная перегородка и открытый гардероб
В небольшой нью-йоркской квартире владельцам удалось разместить в одном помещении кухню, столовую, гостиную, спальню и гардероб. Чтобы сделать спальную зону более или менее приватной, придумали установить выкатную дверь. А открытая система хранения с вешалками и полками заменяет целый гардероб. За счет этого квартира не кажется тесной.
Мини-кухня и кровать под потолком
Эта крошечная квартира в центре Парижа — практически учебник по эргономике.
Во-вторых, продумали обеденную зону: откидного столика хватит на одного или двух человек. В-третьих, есть полноценная кровать. Правда, если у вас в квартире не такие высокие потолки, придется довольствоваться спальным местом на диване.
Кухня в кладовке
Если вы редко готовите дома или только разогреваете еду из ресторана, считайте, что вам повезло: не нужно выделять под кухню большое пространство. Например, владельцы этой лондонской студии убрали ее в подсобное помещение: скорее всего, оно предназначалось под гардеробную или кладовку. Для большего комфорта, конечно, понадобится хорошая вентиляция и мощная вытяжка.
Перегородка с окошками вместо стены
Отделить зону кухни от спальни можно, выстроив перегородку, пропускающую свет. Интересную идею — конструкцию с окошками разной величины — реализовали владельцы этой маленькой квартиры в Лондоне.
Кухня в стеклянном кубе
На первый взгляд кажется, что в этой квартире в Лиссабоне открытая студийная планировка. Но это не совсем так: кухня здесь изолированная — только вот перегородки сделаны из прозрачного стекла. Таким образом появились «стены», вдоль которых расставили рабочий и обеденный столы, тумбу с ТВ. Но при этом визуально помещение не уменьшилось.
Перфорированная перегородка с телевизором
Еще один вариант зонирования студии — перегородку с перфорацией — использовали в другой малогабаритке в центре Лиссабона. Без интересной и полезной детали не обошлось: в конструкцию встроен вращающийся телевизор. По желанию его можно смотреть как из гостиной, так и из спальни.
«Парящая» над полом кровать
Предметы, которые приподняты над полом, занимают меньше места. Именно этим дизайнерским приемом воспользовались владельцы квартиры в Милане, чтобы разместить несколько спальных мест в одной комнате.
Перегородка-библиотека для зонирования
Спальное место всегда выглядит уютнее, если оно отделено от остального помещения. На этапе ремонта можно спроектировать перегородку из гипсокартона с полками для домашней библиотеки, как это сделали в этой миланской квартире. Работает и как зонирование, и как система хранения — берите на заметку!
Кто покупает микроквартиры
Охотно приобретают микроквартиры одинокие люди, у которых нет семьи. Довольно часто покупателями такого жилья в Москве становятся люди из других российских городов. Они приобретают микроквартиры для своих детей-студентов, поясняет Елена Мищенко.
Покупателями микроквартир в Москве иногда выступают бизнесмены из других городов. Им проще приобрести такое жилье, чем во время приездов селиться в гостинице или арендовать. По словам Юлии Дымовой, некоторые покупатели приобретают микроквартиры, чтобы получить регистрацию в столице.
Плюсы микроквартир:
Минусы микроквартир:
– очень маленькое жизненное пространство;
– в такой квартире невозможно разместить стандартную мебель;
– проживать в микроквартире могут максимум два человека.
Правила оформления трехкомнатной квартиры
Для успешного завершения любого ремонта его необходимо осуществлять по тщательно продуманному плану. Если речь идет о трехкомнатной квартире, то здесь просто не обойтись без комплексного подхода, начиная с распределения квадратных метров и заканчивая расположением вещей в доме. При этом следует учитывать количество обитателей, их возраст, образ жизни, привычки и вкусы, физические особенности. Например, активная молодая пара может отдать предпочтение минимализму открытого пространства, в то время как семья с двумя детьми будет нуждаться в дополнительном зонировании комнат, вместительной столовой и кухне, большем количестве шкафов.
Коммуникации – первое, что следует установить до начала каких-либо отделочных работ. Разводка труб и электрических проводов должна быть сделана максимально точно и профессионально, чтобы снизить вероятность аварий. По этой же причине нельзя экономить на комплектующих деталях. Если они будут некачественными, то любая протечка воды или короткое замыкание может привести к значительной потере средств.
Утепление и звукоизоляция – второй важный этап ремонта квартиры. Для комфортной жизни обивка стен и потолков уплотняющим материалом и специальными мембранами нужнее, чем самые красивые обои или картины. Отделиться от уличного шума помогают современные металлопластиковые окна, которые, к тому же, препятствуют потерям тепла.
Выбор общего стиля вряд ли вызовет затруднения у владельцев трехкомнатной квартиры – в этом вопросе им можно положиться исключительно на свой вкус. Впрочем, рекомендуется соотнести особенности понравившегося дизайна с объективными характеристиками помещений: в маленьких комнатах отдать предпочтение лаконичным формам и нейтральным цветам, а в более просторных – использовать смелые акценты и яркую палитру оттенков.





Меньше, да лучше: дизайнерские микроквартиры и дома от 17 м² до 25 м²
Квартиры
Дом в Токио 19 м². Проект Такэси Осаки
Дом площадью 19 м², спроектированный японским архитектором Такэси Осака.
Архитектор Такэси Осака счастливо прожил вместе с женой десять лет в Йокогаме, в небольшом, но по японским меркам вполне комфортном доме площадью 38 м². Супруги нарекли свой дом Love House и проводили в нем время в соответствии с этим названием.
Земля в столице Японии настолько дорогая, что профессор университета Васэда смог приобрести лишь крошечный участок в 31 м², зажатый между двумя домами. На этом клочке земли Такэси Осака построил дом, который они с женой назвали Love2 House. Все свои привычки, важные для них, супруги сохранили, — включая чтение и прослушивание виниловых пластинок. Чтобы в крошечный дом, который находится в тени своих более крупных соседей, попадал дневной свет, архитектор спроектировал крышу, состоящую из двух изогнутых частей, открытых к небу. Зимой два световых люка наполняют дом мягким светом, а летом в нем солнечно, как в тропиках.
Квартира в Тайбэе 17, 6 м². Проект бюро A Little Design
Тайваньское бюро A Little Design специализируется на микроквартирах, которые должны решить жилищную проблему на острове. Площадь этих апартаментов, которые прежде были музыкальной студией, всего 17, 4 м², но высота потолка (3,4 м) позволяет расти по вертикали.
Студия 19 м² в Москве. Проект студии Kubkvadrat
- Фото
- Полина Полудкина. Стиль: Татьяна Понамарева и Ольга Елизарова
Дизайнеры студии Kubkvadrat оформили яркую квартиру-крошку для посуточной сдачи в аренду в ЖК «Loft Вольный». Несмотря на маленькую площадь, в ней уместилось все необходимое для комфортной жизни — опять же благодаря высоким потолкам. Спальня располагается на антресоли.
Студия 20 м² в Санкт-Петербурге. Проект Ильи и Елены Галактионовых
- Фото
- Александра Дуброва
В этом случае все традиционно — квартира, над которой поработали дизайнеры Илья и Елена Галактионовы, находится в бывшем доходном доме, построенном 1912 году.
Квартира 25 м² в Ростове-на-Дону. Проект Юрия Луценко
- Фото
- Инна Каблукова. стиль: Дарья Молодченко
Разрабатывая интерьер, дизайнер Юрий Луценко вдохновлялся крошечными студиями в азиатских мегаполисах, поэтому квартира навевает мысли о тропических странах, океане и серфинге, хотя из кровати видны не океанские волны, а спокойный Дон. Столярные изделия выполнены из покрытой лаком фанеры, стены и потолок оставили практически без отделки, пол залили эпоксидной смолой.
Поскольку квартира идет под сдачу, комфорт важнее, чем изысканность отделки.
Квартира 18 м² в Москве. Проект Марины Пахомовой
Шкаф и оконные откосы выполнены по чертежам дизайнера. Вытяжка напечатана на 3D-принтере. Дверной замок, Xiaomi.
- Фото
- Даниил Анненков
Эта крошечная квартира площадью всего 18 кв. метров на самом деле больше, чем кажется. И в ней много интересных дизайнерских решений. Хозяйке — деловой и активной девушке — требовалось помимо всего прочего место для приема гостей, гостевая кровать, а также место для ее велосипеда. «Мы сразу запланировали открытое пространство с последовательно расположенными зонами, где мебель трансформируется и подстраивается под нужды хозяев.
Теги
- Дизайн маленьких квартир
- до 60 квм
Варианты зонирования помещения
Существует несколько способов:
- Достаточно популярным приемом зонирования является использование перепада пола или потолка.
- Также отличным разграничителем пространства может послужить освещение. Например, более яркие источники света устанавливают в центре гостиной, а в кухонную и спальную зону, выбирают подсветку, имеющую рассеянное свечение.
- Для квартиры-студии в качестве зонирующего элемента уместна различная мебель или аксессуары. Это может быть красивый аквариум, барная стойка, диван или камин.
- Очень часто применяют зонирование с перегородкой, в виде изящной этажерки, светлой ширмы и других менее громоздких конструкций.

На фото вариант зонирования картиры-студии 30 кв м с помощью перепада уровня пола.


Оригинальные идеи дизайна студии
Несколько интересных дизайнерских идей.
Студии с одним окном
Для малогабаритной квартиры 30 кв м, имеющую одно окно, следует особенно тщательно подбирать освещение. Добавить комнате естественного света и сформировать необычный дизайн, можно с помощью увеличения оконного проема. Одно большое окно, будет отличаться очень стильным и гармоничным видом и предоставлять красивый панорамный обзор.
На фото панорамное окно в дизайне квартиры-студии прямоугольной формы.
С двумя окнами
Такое помещение отличается большим количеством естественного света и за счет этого зрительно выглядит гораздо просторнее. При наличии двух окон, их не нужно заставлять мебельными предметами, лучше будет разместить их под подоконником.
Двухъярусная квартира
Если потолки имеют высоту более трех метров, возможно применение второго этажа, который может представлять собой спальную зону. Достаточно смелым решением считается размещение на верхнем уровне, гардеробной.
Как выбрать и оценить планировку: советы и рекомендации специалистов
От правильного выбора планировки перед покупкой квартиры зависит благополучие и атмосфера в семье. Она зависит от типа постройки и ее серии. Расположение комнат может быть нескольких видов. Путем переделки получают открытые студии.
Квартирные электрические провода и часть проводки переносят на одну стену. Электрощит выносят в специальный закрытый отсек в подъезде. Архитектурные планировки с тупыми или острыми углами можно обыграть с помощью подходящей мебели.
Лучше, если это будет третий этаж
Затем обращают внимание на расположение комнат, их размер, форму. Важная информация – количество окон, наличие лоджии, балкона, их размеры
Сразу стоит определить стены, несущие нагрузку, толщину перегородок. Необходимо просчитать расстояние от входной двери до лифта и мусоропровода.
Необходимо понимать, что свободная планировка совсем не означает беспрепятственную возможность разрушать и устанавливать стены. Все перегородки должны быть установлены строго по плану БТИ.
Выбирая дизайн 3-комнатной квартиры, стоит учитывать, что один стиль может не подойти для обустройства комнат в панельном и кирпичном доме. Также большое значение имеет общая площадь жилья. Для минимальных и средних квадратур подойдет минимализм, можно комнаты перепланировывать на свое усмотрение.
Удачная планировка детской в 3 комнатной квартире
Для родителей очень важно создать особенно комфортные условия проживания для своих детей. Потому обустройству детской уделяется много внимания
Ведь, по факту, в этой комнате необходимо объединить в себе несколько функциональных помещений в одном.
Так, здесь важно создать комфортную зону для сна и отдыха (т.е. спальню), удобные места для развивающих занятий и подготовки уроков (т.е
кабинет), а также, что немаловажно — спортивный уголок и игровую зону (спортзал и игровую).
Вот почему родители часто жертвуют для этой цели самой большой комнатой, особенно если ребенок в семье не один. Это позволяет с большой долей удобства создать для детей все необходимые зоны для полноценного развития.
Как устроены микроапартаменты
Если взять микроапартаменты общей площадью 10 кв. м, то санузел в них занимает не более 2 кв. м, а вместо ванны ставят душевую кабину. 1 кв. м приходится на так называемую прихожую, где можно повесить одежду на вешалку и поставить обувь. Оставшиеся 7 кв. м занимает спальня, выполняющая также роль кухни.
Требования к микроквартирам
– наличие инженерных систем;
– горячее водоснабжение;
– холодное водоснабжение;
– газоснабжение (для многоквартирных домов, где газовые, а не электрические плиты);
наличие вентиляции.
«При покупке микроквартиры покупателю в первую очередь необходимо обратить внимание на технический паспорт помещения, где согласно п. 5 ст
19 Жилищного кодекса подробно показана планировка и изложен план инженерных систем», — говорит Артем Денисов.
Перепланировка 3 комнатной квартиры
Если в квартире необходима перепланировка, лучше всего ее узаконить заранее. Дело в том, что в домах старого фонда перепланировки часто рубят на корню, и тому есть весьма веские причины.
Ветхий фонд часто просто не выдерживает многочисленных перепланировок хозяев квартир, в результате чего дома быстро приходят в негодность, появляются трещины в стенах, а в самых плохих случаях возможны даже обрушения зданий.
Потому, если есть желание выполнить перепланировку в своей квартире, лучше получить разрешение до ее начала, ведь потом такое жилье с неузаконенной перепланировкой будет невозможно продать.
Наиболее частыми перепланировками в 3 комнатных квартирах являются объединение санузла (что не всегда оправдано), а также снос перегородок, ведущих в лоджии. За счет последних можно значительно расширить пространство комнат, сделать их более просторными и функциональными.













![Дизайн квартиры-студии 30 кв. м. [80+ фото] планировки, зонирование](https://terradream.ru/wp-content/uploads/4/2/d/42d3aa989af0ee8c4d43dddcf74a54d9.jpeg)









![Дизайн квартиры-студии 30 кв. м. [80+ фото] планировки, зонирование](https://terradream.ru/wp-content/uploads/4/e/c/4eca34fcdd6bed3fea7f656cfe81f584.jpeg)












