Уличные клетки для кроликов из сетки своими руками
Когда все материалы закуплены и инструменты приготовлены, можно начинать делать вольеры для карликовых кроликов. Какие они бывают? Можно делать вольер совершенно разной конструкции. Тут всё зависит от владельца. Для таких кроликов, как великаны, надо создавать просторные вольеры.
Возведение клетки для кроликов начинается из каркаса. Потом стелится пол. Его сооружают из досок или мелкой сетки. Если пол будет из дерева, то между рейками нужно оставлять небольшие промежутки.
Когда конструкция будет размещаться во дворе, то все стенки потребуется утеплить. Некоторые заводчики делают сменные конструкции, которые можно устанавливать в зависимости от времени года.
Стенки делают из фанеры. Надо сооружать конструкцию так, чтобы передняя стена была выше задней. Это поможет сделать уклон на крыше, чтобы там не скапливались осадки.
Когда клетка будет размещаться в помещении, то стенки сооружают из сетки. Но специалисты отмечают, что животным будет удобней в закрытом и глухом вольере. Спереди делают место для кормушки и водопоя.
Крыша должна создаваться с уклоном. Первый шар перекрытия делают из фанеры, а потом наверх кладут шифер или профлист. Но стальные листы не рекомендуется применять. Они нагреваются и быстро промерзают. Опытные заводчики делают верх на петлях. Это поможет откинуть крышку и получить доступ внутрь вольера, что облегчит процесс уборки.
Интересные идеи необычных клеток
При желании можно построить для своих животных настоящий домик с несколькими комнатами: спальней-гнездом, кухней-кормушкой и огромной гостиной, то есть местом для выгула. Некоторые мастера делают для кроликов двухъярусные конструкции. В нижнем ярусе вместо пола — зеленая трава, а стены сделаны из каркаса, обшитого сеткой. Наверху — деревянный закрытый ящик для сна. На второй этаж зверьки взбираются по наклонной доске-лесенке.
Клетку для своих животных можно изготовить в виде деревенского домика, где балкон — кормушка для сена и травы, а окна — проемы с сеткой в боковых стенках. Сверху у такого домика должна быть крыша, накрытая гидроизоляционным кровельным материалом. Зимой и летом такая конструкция может стоять на улице.
Клетку с животным можно сделать из добротных деревянных материалов и поставить ее на возвышение около забора. Дверцы лучше выполнить из сетки. На плоской крыше можно поставить горшки с цветами или поддон с пахнущими растениями (укропом, петрушкой, сельдереем), которые так любят кролики.
Как обогреть зимой
Иногда в зимний период может возникнуть необходимость утеплить клетку. Можно сделать обогрев при помощи войлока, старых одеял, сена, хвои. Также для внешнего утепления отлично подойдёт такой теплоизолятор, как пенопласт.
Небольшой мороз сам по себе не принесёт зверькам вреда, важно избежать большой влажности в вольерах. Нужно сделать так, чтобы в клетки не попадал снег и иные осадки. Для этой цели подойдут листы железа, которыми можно оббить крольчатник с внешней стороны
Для этой цели подойдут листы железа, которыми можно оббить крольчатник с внешней стороны.
Бывалые кролиководы, не используя искусственное отопление, выстилают всю клетку внутри сеном. Кролики нагревают его своим дыханием и оно хорошо сохраняет тепло.
В сильные морозы нужно обеспечить зверькам более или менее тёплый пол. Для этого дно клетки, если оно металлическое, устилается толстым слоем сена. Для деревянного пола можно использовать вышеупомянутые трапы, которые хорошо защищают пол от промерзания.
В сильные морозы можно содержать животных в сараях. Именно для этого все клетки проектируются таким образом, чтобы их было удобно переносить. Также есть проекты отопления и подогрева воды в зимний период.
Знаете ли вы? Зайцы по своей природе одиночки. А кролики живут группами, и поэтому являются социальными животными. В этом главное отличие данных ушастых друг от друга.
Как сделать клетки для кроликов своими руками?
Для кролиководства достаточно иметь дома прочную клетку с утеплителями.
При постройке питомников нужно учитывать следующие правила и рекомендации:
- В одной клетке размещать животных одного вида, пола, веса и характерных повадок.
- Размещать особей с приплодом в постройках с двумя отсеками и ярусами.
- Стандартные параметры питомников: длина порядка 80-120 см, высота около 50 см, ширина примерно 70-80 см.
- Молодняк лучше держать вместе со всеми в групповом отсеке.
- Количество крольчат в одной клетке рассчитывается исходя из ее размера.
Место для размещения
Если питомник располагается на улице круглые сутки, важно позаботиться о кровельных материалах
Определиться с местом размещения крольчатника стоит до перехода к этапу строительства, поскольку потом его сложно перенести. Место должно быть защищенным от сквозняков, ветра, солнца.
Особенно важно правильно выбрать место для постройки, если она будет располагаться на открытом воздухе. В таком случае лучше сделать деревянный пол с выдвигающимся поддоном, который сверху обивают решеткой
Передние и задние стены крольчатника утепляются пенопластом, на зиму монтируют пол с подогревом
В таком случае лучше сделать деревянный пол с выдвигающимся поддоном, который сверху обивают решеткой. Передние и задние стены крольчатника утепляются пенопластом, на зиму монтируют пол с подогревом.
Какие материалы чаще всего используют для изготовления клеток
Крольчатники разделяются на виды по материалу, использованному для производства.
При самостоятельном производстве дома используют подручные материалы:
- древесина;
- шифер;
- профнастил;
- ДСП;
- кирпич;
- металлопрофиль.
Дополнительно потребуются утеплители, штукатурка, шлифовка. Часто крольчатник состоит из древесного каркаса и цельнопроволочной сетки, которая служит дверью и оснащается задвижками, завесами.
Конструкции и другие примеры самостоятельного изготовления
Конструкцию выбирают, исходя из назначения: будет ли это сооружение для молодняка, для беременных самок или для взрослых животных.
Двухсекционные клетки изготавливают поэтапно:
- Деревянные брусья, заготовленные заранее, обрабатывают антисептиком с минимальным содержанием хлора.
- Брус распиливают на 4 отрезка по 1,5 м; 4х55 см и 4х70 см.
- Брусья длиной 55 и 70 см соединяют друг с другом, должна выйти трапеция.
- Трапеции скрепляют, получая каркас.
- Монтируют пол, фиксируя ячеистый материал на каркас, оставляя незаполненными полметра.
- На оставшийся участок прикручивают цельную, отшлифованную доску, место соединения закрывают рейкой.
- Обивают стены досками, передняя стенка сетчатая.
- Изнутри обшивают стенки фанерой.
- Закрывают сооружение откидной крышей, обеспечивая плотное прилегание.
- Устанавливают внутреннюю перегородку на стыке половой доски и сетки.
- Ставят конструкцию на заготовленные подпорки, монтируют поддон по размеру сетчатой части пола.
- Устанавливают внутрь сенник, кормушки, поилки.
В вольере для трехмесячных кроликов используют другую систему подачи еды, это принимают во внимание при изготовлении:
- Каркас идентичен основе клетки на две секции для взрослых особей, но делят на кормовое и гнездовое отделения. Гнездо меньше пространства для приема пищи на 50 %.
- Пол гнездового отсека делают из теса, кормовое отделяют фанерной перегородкой с вырезанным лазом.
- Пол и фасад пищевого отсека сетчатые, спереди крепят реечную дверцу.
- Кормушку из сетки устанавливают вдоль всего отделения для приема пищи, оставляя часть снаружи, для добавления новых порций еды.
Освоив сооружение простой клетки, можно переходить к более сложным вариантам размещения кроликов.
Взрослый крольчатник
Клетку для крольчихи с гнездом, ставят отдельно, предусматривая возможность переноса вольера с улицы в помещение. Изготовление включает этапы:
- Делают каркас, задняя и боковая стенка фанерные. Пространство делят на два отделения — основное и маточное.
- Дверцу основного отсека мастерят из сетки, вход в маточник из фанеры.
- Секцию для крольчат утепляют, укладывая в двойные стенки периметра термоизоляционные материалы.
- Крышу кроют материалами, защищающими от протекания.
12 моделей клеток МИХАЙЛОВА для кроликов (5 фото и 7 чертежей)
Одну из популярных схем кроличьих клеток разработал Игорь Николаевич Михайлов, известный кроликовод. Помогут сделать такие клетки для кроликов своими руками чертежи с размерами. Статья предлагает 12 моделей клеток Михайлова для кроликов (5 фото и 7 чертежей). Система Михайлова представляет интерес для небольших фермерских хозяйств и для приусадебного кролиководства.
Клетки Михайлова двухъярусные, в верхних содержится молодяк, в нижних – самки с приплодом. Вообще система Михайлова предполагает объединение нескольких отделений для кроликов с отдельными системами жизнеобеспечения. Это один из вариантов кроличьей мини-фермы.

Чертежи клеток Михайлова, по которым была построена мини-ферма с предыдущего фото. Чертежи с размерами приобретены у автора и клетки строились строго по ним. Сделано 20 клеток для 92-х крольчих.

Схема с размерами клетки Михайова для кроликов. Клетка Михайлова для кроликов в оригинале двухэтажная, для обслуживания необходима подставка.

Внешний вид мини-фермы для кроликов с клетками Михайлова. В этом варианте немного усовершенствована система сбора фекалий, чтобы облегчить уборку.

Чертежи клетки Михайлова для кроликов с размерами.

Чертежи двухъярусной кроличьей клетки по Михайлову. В домашних условиях содержание небольшого количества кроликов может иметь свои особенности. В такой клетке, например, содержать можно и декоративных кроликов, скорректировав размеры.

Мини-ферма для кроликов из клеток Михайлова.

Клетки Михайлова для кроликов значительо упрощают уход и подходят для выращивания и содержания кроликов самых различных пород. Если собрать конструкцию своими руками, она окупится очень скоро и будет приносить выгоду.

Чертеж клетки Михайлова для кроликов поможет изготовить комфортабельную клетку.

Чертеж одного из вариантов клетки Михайлова для кроликов.

Чертеж клетки Михайлова характеризуется наличием подогрева для маточника и поилок, а также контейнера для отходов. Размеры 240Х70 (одноуровневая).

Чертеж клетки Михайлова для кроликов с учетом расположения контейнера для отходов.

Читать полностью (ссылка)
Разновидности клеток, размеры
Конструкция крольчатника зависит от предполагаемого количества содержания в ней поголовья, особенности породы кролей. Важным параметром считается назначение: для беременной самки, племенного самца, молодняка на откорм.
По конструкции клетки бывают:
- одноярусные;
- многоярусные;
- стационарные;
- передвижные;
- с выгулом;
- без выгула.
Обычно переносными делают одноярусные домики, а многоярусные конструкции устанавливают стационарно, что позволяет сэкономить пространство при большом содержании поголовья.
Планировка крольчатника зависит от назначения:
- Групповые домики делают молодняку, оставленному на откорм. Однако кролей делят по половому признаку для предотвращения случайного спаривания. Самок содержат в одних клетках, а самцов отправляют в другие коллективные домики.
- Племенному самцу обустраивают отдельную клетку без дополнительных приспособлений. Беременной крольчихе тоже делают отдельный домик, но внутри устанавливают маточник. По конструкции он напоминает коробок с отверстием. В маточнике крольчиха осуществляет окот, крольчата живут до подрастания.
Клетка для молодых кроликов
Молодняк для откорма обычно размещают группами по 5-6 голов, а ремонтных самок по 2-3 особи. Ремонтного самца в отдельную клетку пересаживают после достижения 100-дневного возраста.
Размер клетки определяют с учетом особенности породы. Обычно придерживаются следующих параметров:
- Одной взрослой особи средней породы необходимо 0,6-0,7 м2 свободной площади. Клетку делают длиной 1-1,2 м, шириной 70 см, высота спереди 60-80 см, сзади – 45 см.
- Одной взрослой особи крупной породы необходимо 1,05 м2 свободной площади. Клетку делают длиной 1,5 м, шириной 70 см, высота спереди 70-80 см, сзади – 45 см.
- Групповой крольчатник молодняку на 6 голов собирают длиной 1 м, шириной 38 см, высота спереди 50 см, сзади – 35 см.
При групповом содержании молодняка одному крольчонку хватает 0,2 м2 свободного пространства. Если содержание одиночное, площадь увеличивают до 0,5 м2.
Клетка для крольчихи с потомством
Крольчихе с потомством делают увеличенную клетку. Ее удлиняют до 1,7-1,8 м, расширяют до 1 м.
Параметры могут быть и другие, например, иногда собирают для кроликов клетки своими руками группового типа длиной больше 2 м. Внутри их разделяют перегородками. Если это многоярусная конструкция, предусматривают поддоны, чтобы из верхних домиков отходы не попадали на клетки нижнего уровня.
Существует много авторских конструкций: Никитина, Золотухина и других известных кролиководов. Чертежи их доступны в интернете, а схему простой клетки несложно самостоятельно нарисовать на листе бумаги перед началом ее изготовления.
Клетка своими руками для декоративных кроликов

Клетка для декоративных кроликов
Декоративные ушастые создания могут также прекрасно существовать в клетке, сделанной своими руками. Для простого решения необходимо определиться с вопросом – насколько часто предполагаются прогулки вашего питомца на открытом пространстве. Если кролик гуляет не менее 3 часов в день, то достаточно размера клетки 70*40 см. Если же большую часть времени ваш любимец будет проводить «дома», то размер клетки должен быть 100*50 см. В остальном следует придерживаться тех же правил строительства клетки, что и для кроликов фермерских хозяйств.
Из всех вышеперечисленных клеток для кроликов начинающий мастер сможет выбрать для себя оптимальный вариант, совмещающий в себе простоту исполнения, удобство содержания и приемлемую затратную стоимость.
Если вы решились завести декоративного кролика рекомендуем ознакомиться так же какое должно быть содержание и уход за декоративным кроликом, не менее важным значением является и как правильно кормить.
Смотрите так же видео – как сделать клетку своими руками.
https://youtube.com/watch?v=addXcSFhn8g
Виды клеток для кроликов, чертежи, размеры, описание
Выделяют различные виды клеток исходя из таких параметров, как порода кроликов, условия содержания, размер. По общим параметрам выделяют наружные и стационарные виды клеток.
Самой обширной классификацией считается разделение клеток по породам обитателей:
- Общие/групповые – представляют обширное гнездо, рассчитанное на разное количество кроликов (от 10 и больше), размер варьируется от 60 до 120 см. Конструкция включает несколько отделов для питомцев одного веса, возраста, темперамента.
- Индивидуальные – дом для одного взрослого питомца подходит для требовательных и драчливых самцов, которым нужно личное пространство.
- Маточники – дома для крольчих с детенышами. Обычно они устанавливаются внутрь группового гнезда в виде ящика, представляют из себя закрытое пространство с одним проемом.
- Шеды – компактная конструкция с двумя ярусами и сторонами, клетки задними стенами примыкают друг к другу, такая конструкция бывает разных размеров, используется она для молодых и взрослых питомцев.
- Индивидуальные конструкции Михайлова, Золотухина, Цветкова – конструкции, разработанные на индивидуальной основе по личным чертежам создателей, отличаются эргономичностью, простотой и компактностью.
Клетки от Золотухина: особенности и преимущества
Знаменитый кроликовод Николай Золотухин разработал собственную конструкцию клетки для ушастых питомцев, которая отличается простотой изготовления и максимальной защитой животных от внешних негативных факторов.
Стандартно такая клетка подразумевает возведение двух этажей и вмещает в себя 3-6 взрослых питомцев.

Клетки от Золотухина
Отличительным преимуществом крольчатника является защищенность, наклонность кормушки, практичность чистки.
Ее стандартные размеры:
- ширина – 2 м;
- высота – 1,5-2 м;
- глубина – 60-80 см;
- задняя сетка – 15-20 см;
- дверь – 40х40 см.
Клетки от Цветкова
Конструкция клетки по Цветкову подразумевает двухъярусную мини-ферму с 4 ячейками. Такая клетка обустраивается подвесными комбикормушками и поилками, в которых вода автоматически нагревается, навесными маточниками.
Среди особенностей конструкции А. А. Цветкова выделяют:
- двухъярусное устройство, по 2 отделения на ярус;
- клетка предназначена для обустройства на открытом воздухе;
- наличие бункерных кормушек и автопоилок;
- наличие систем вентиляции и очищения.

Клетки от Цветкова
В качестве утеплителей клеток используют опилки, пенопласт, торф или кору дерева. Для кровли используют рубероид или шифер. Каркас такой конструкции изготавливается из цельного деревянного бруса, окрашивается белой краской, утепляется и защищается листами фанеры.
Цельнопроволочная клетка
Цельнопроволочная клетка – самый простой и доступный вариант, изготавливаемый из металлической сетки. Такая клетка значительно отличается от деревянной по практичности и окупаемости.
Она не требует регулярного ухода и ремонта, обладает высокой прочностью, исключает порчу материала питомцами. Для изготовления конструкции используется цельная металлическая проволока диаметром 1,5-1,8 мм и размером ячейки 12х50 мм.

Цельнопроволочная клетка
Такая конструкция устраивается прямоугольно или квадратно и исключает возможность провисания материала.
Клетка из металлической сетки подходит исключительно для обустройства внутри помещения, т. к. в зимний период металл охлаждается, а летом нагревается, что негативно сказывается на состоянии питомцев.
Компактная клетка
Клетка маленького размера исключает обустройство маточника, что делает ее пригодной только для разведения самцов. Компактная конструкция отличается вместительностью, состоит из 2 ярусов, способных вместить до 8 взрослых жителей.
Компактная клетка не отнимает много места, но является открытой, поэтому подходит только для обустройства в летний период либо внутри помещения.

Компактная клетка
В клетках компактного типа исключена возможность класть сено без поднятия на лестницу. Такая клетка требует частой чистки в связи с открытой конструкцией и быстрым скоплением отходов в нижних ярусах.
Простейшая конструкция
Для изготовления простейшей конструкции не потребуется дополнительных материалов и особых инструментов. Она состоит из 2-3 ярусов, вмещает до 8-9 питомцев.
Однако у этой конструкции больше недостатков, чем преимуществ. В ней отсутствует возможность установки ниппельной поилки, нет отдела для сена, она требует регулярной уборки и устройства внутренней кормушки.

Простейшая конструкция клетки для кроликов
Изготавливаем клетку по правилам:
И так, в случае если вы все же вознамерились сделать клетки для кроликов своими руками, по чертежам, и тем размерам которые мы предложили. Вам необходимо учесть еще несколько полезных советов, чтобы не переделывать работу спустя несколько недель:
- Поскольку кролики относятся к грызунам, то оставлять внутри доступные предметы из дерева нецелесообразно, лучше все обшить металлом, это не очень трудоемкий процесс, но зато вы продлите жизнь клетками на многие годы.
- Не используйте антисептики, при работе, это может пагубно повлиять на ваших питомцев.
- Если, домики на улице без навеса, тогда крышу необходимо сделать из шифера или жести, чтобы влага не попадала внутрь. Металлические крыши очень нагреваются в летнее время, и животные чувствуют себя, мягко говоря, не комфортно.
- Чтобы сделать каркас бокса, можно использовать брус (50 миллиметра на 50 миллиметров). Допускается изготовления его и на металлической основе. Обшивают с помощью рабицы 25мм на 25мм. Фасадную сторону и двери закрывают сеткой, задняя стенка должна быть цельной, чтобы не создавать в помещении сквозняков.
- Для изготовления пола годится сетка, с ячейками размером 25 на 25 миллиметров, возможно заменить на 10 на 25 миллиметров. Делается это для того, чтобы отходи жизнедеятельности не оставались на полу, а проваливались в специальную емкость под дном клетки. Ни в коем случае не делайте пол сплошным, поскольку моча у этих пушистиков очень токсичная, способна вызвать процессы гниения дерева. Можно сделать пол из бруса с небольшими зазорами, через которые будет вытекать все ненужно на землю или в специальные контейнеры. Если сделать пол из фанеры, его придется периодически доставать и вычищать.

Стандартные размеры кролятника
Кролятники представляют собой важные сооружения для успешного разведения кроликов. Эти помещения обеспечивают комфортные условия для молодых кроликов во время ранних стадий их жизни.
Общие рекомендации по размеру
Размеры кролятника:
Обычно кролятник должен иметь длину от 120 до 180 см, ширину от 60 до 90 см и высоту от 45 до 60 см. Эти размеры обеспечивают достаточное пространство для активности кроликов и предотвращают их скученность.

Материалы:
Кролятники могут быть изготовлены из различных материалов, включая металлические сетки, дерево или пластик
Важно выбрать прочные и безопасные материалы для защиты молодых кроликов





| Материал | Преимущества | Недостатки |
|---|---|---|
| Дерево | Естественный и уютный вид | Может подвергаться гниению и повреждениям |
| Металл | Прочный и долговечный | Может быть холодным для кроликов |
| Пластик | Легкий и легко моется | Может ломаться или разрушаться с течением времени |
| Сетка | Обеспечивает хорошую вентиляцию | Не защищает от холода, хищников и погодных условий |
| Камень | Устойчив к разрушениям и грызению | Тяжелый и дорогой |
| Кирпич | Прочный и обеспечивает хорошую изоляцию | Требуется мастерство для постройки |
Размеры клетки
Размеры дна клетки:
При разведении кроликов в клетках необходимо учитывать, что дно должно иметь достаточную площадь, обеспечивающую комфортное пространство для кроликов. Обычно, размер дна клетки составляет от 50х50 см до 60х60 см.
Высота клетки:
Кроликам необходимо иметь возможность свободно перемещаться и выполнять естественные движения. Поэтому высота клетки должна быть достаточной для того, чтобы кролик мог встать на задние лапы без проблем. Рекомендуемая высота клетки составляет от 40 до 50 см.

Размеры вольера
Размер вольера:
Вольеры предоставляют более свободное пространство для кроликов, что способствует их активности и здоровью. Размер вольера должен быть достаточным для размещения кормушек, поилок и места для игр. Обычно, рекомендуемые размеры вольера составляют от 150х150 см до 180х180 см.
Высота вольера:
При выборе высоты вольера следует учитывать, что кролики могут прыгать и взбираться. Поэтому высота вольера должна быть достаточной для предотвращения побегов и обеспечения безопасности кроликов. Рекомендуемая высота вольера составляет от 60 до 90 см.

Как изготовить клетку для кролика своими руками
В больших хозяйствах кролики, как правило, содержатся в металлических сетчатых клетках без подстилки, внутри которых оборудуют кормушку и поилку. В магазинах продаются готовые конструкции. Они рассчитаны на 1-2 кроликов. У таких клеток металлический сетчатый верх и пластиковый или жестяной поддон. Стоят они около 50-100 долларов. Можно самостоятельно изготовить жилье для своих животных из подручных материалов.

Размеры к видео:

Деревянную
Дешевле всего обойдется конструкция из деревянных досок. Для ее изготовления подойдет дерево твердой породы (дуб, клен, бук). Деревянный ящик должен иметь сетчатую дверь или фронтальную поверхность с металлической сеткой, чтобы обеспечить животных притоком свежего воздуха. В такой клетке кроликам будет тепло и удобно даже на улице, однако придется сверху соорудить крышу. Правда, деревянный пол тяжело чистить от остатков кала, он быстро начинает гнить под воздействием мочи.
Пошаговая инструкция изготовления клетки:
- из брусков определенной длины делают каркас;
- обшивают основу с трех сторон досками;
- пол можно сделать из реек и оставить щели в 1 см;
- крышу желательно изготовить откидную, на петлях;
- в передней стене устанавливают дверцу;
- к фронтальной стенке или к двери прибивают сетку.

Можно соорудить конструкцию, где вся передняя стенка — это сетчатая дверь. Металлическую сетку прибивают к деревянному каркасу. На дверце можно закрепить кормушку. Такое устройство поможет держать корм в чистоте и вовремя извлекать портящиеся остатки пищи.


Из металлопрофиля
Кроме дерева, для изготовления жилья для кроликов можно использовать металлические элементы. Правда, у таких изделий есть не только преимущества (дешевизна, удобство при уходе), но и недостатки. Сетчатые металлические клетки не подойдут для улицы. Под открытым небом такие конструкции начнут быстро ржаветь. К тому же сетка в жару сильно нагревается, а в крепкий мороз — моментально охлаждается.
Для металлической сетчатой клетки вначале необходимо сделать каркас из реек, например, из металлопрофиля, а потом обшить его сеткой с мельчайшей ячейкой. Можно соорудить комбинированную конструкцию из дерева и металла. Деревянными могут быть стены и крыша, пол и дверцы делают из металлической сетки.

Из профильной трубы
Жилище для домашних животных можно собрать из разных подручных материалов, которые есть в хозяйстве. Вначале необходимо соорудить каркас. Самая прочная основа получается из металлического профиля. Правда, для соединения реек понадобится сварочный аппарат.
Каркас обшивают деревянными досками, металлической сеткой или фанерой, гипсокартоном. Прочная конструкция из дерева подойдет для уличного содержания животных. Если для строительства использовалась металлическая сетка, то такое жилье для кроликов лучше поставить в помещении. В советах для начинающих кролиководов можно найти рекомендации, что проще изготовить клетку для кроликов из деревянных материалов.

Клетка для взрослых кроликов
Для взрослых особей подходят двухъярусные и трехъярусные клетки. Это значительно экономит территорию, отведенную для кролиководства. Фанерные перегородки разделяют внутреннее помещение на места для приема пищи, отдыха.
Семейное жилище состоит из трех секций. В середину поселяют самца-производителя, имеющего хорошие данные, а в боковых отделениях находятся здоровые самки, годные для спаривания. Между отсеками делают лазы.
Построение трехсекционных клеток имеет особенности. Каркас собирают из бруса, а снаружи используют доски. Изнутри предпочтительной является фанера. Задняя стенка выполняется из досок, а спереди монтируется сетка. В отсеках для самок предусмотрен чердак, куда она может забираться по специальной доске. Это необходимо для отдыха крольчих от материнских обязанностей. В противном случае у них может возникнуть агрессия, приводящая к гибели новорожденных. Этот вариант подходит для разведения породистых грызунов, позволяя отсортировывать особей и отслеживать наступление и протекание беременности.
Отдельное помещение для молодняка сооружают с минимальными габаритами. Можно сразу расселять крепких крольчат в помещение для взрослых.
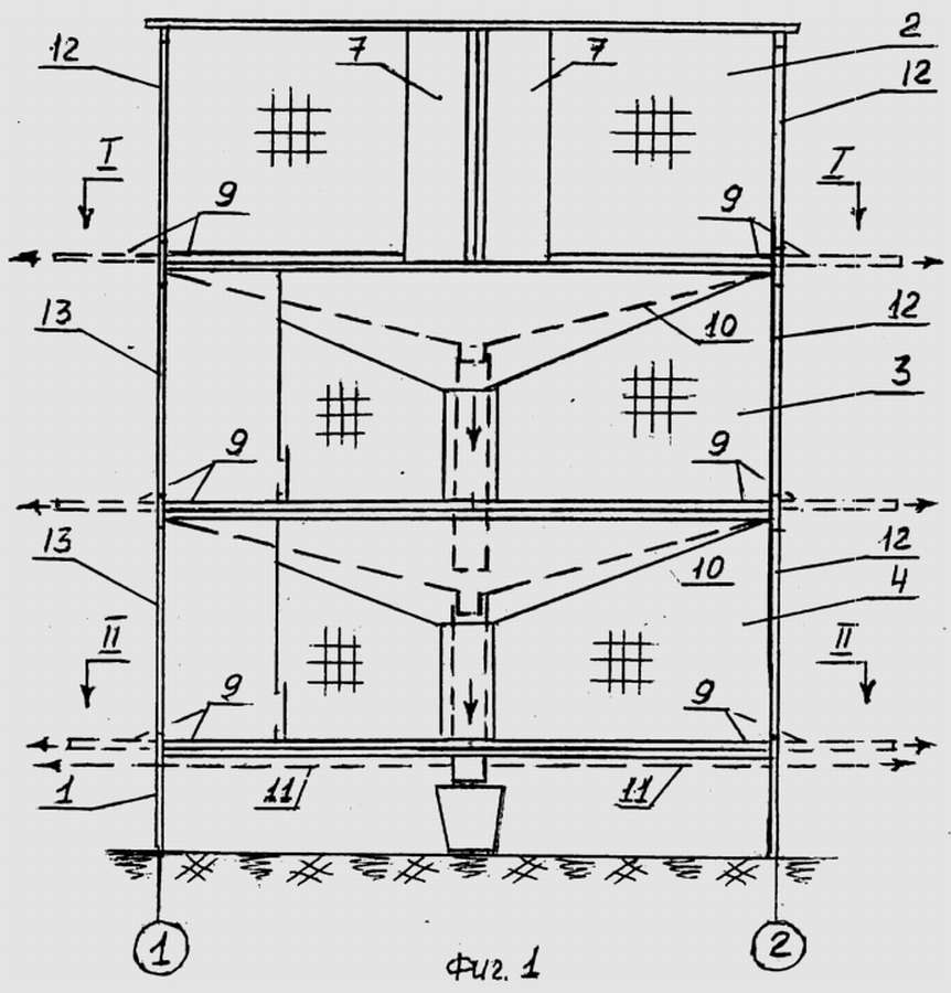
Клетки для кроликов Золотухина
Еще одна знаменитая концепция фермы для эффективного разведения кроликов. Николай Иванович Золотухин изучал жизнь кроликов в естественных условиях с малых лет и в расцвете своей карьеры разработал это удивительное сооружение, повышающее эффективность взращивания кроликов за счет активизации их естественных инстинктов.
Имеет ферма-клетка Золотуха три яруса, изготавливается достаточно просто. Давайте приступим к рассмотрению инструкции по ее изготовлению.
Чтобы построить клетку, нам понадобится:
- деревянные брусья;
- доски;
- металлическая сетка;
- листовое железо;
- качественный поликарбонат;
- шифер.
Инструкция по построению
Итак, прежде всего определим размеры будущей клетки:
- в ширину кроличье жилище составляет 2 метра;
- высота сооружения – 1,5;
- глубина конструкции не более 80 сантиметров;
- задний уклон пола – 5 сантиметров;
- сетка у задней стенки занимает 20 сантиметров;
- дверки делаются в форме квадрата с 40 сантиметрами длины одной стороны.
Приступаем к построению.
| Шаг |
|---|
| Шаг 1. Каркасы для клеток собираются по уже знакомой вам методике. Каждый из них делится на две равных половины, между которыми остается небольшое расстояние для размещения сенника. |
| Шаг 2. Для пола на этот раз используется не сетка, а прочный шифер. Укладывая и прикрепляя листы шифера к каркасу, рассчитывайте, что от задней стенки нужно отступить 20 сантиметров. Это пространство покрывается сварной сеткой, через которую будут уходить испражнения ушастых. |
| Шаг 3. Теперь приступим к изготовлению стен. Задние стены изготавливаются из листов карбоната под определенным углом. Верхняя часть каждой из стенок монтируется к окончанию шиферного пола следующего по высоте яруса. У самого верхнего яруса она прямая. Благодаря такой конструкции кроличий помет перекатывается по стенкам каждого из ярусов и в итоге попадает в поддон. |
| Шаг 4. Делаем дверку для маточников и кормовых отсеков. В первом случае готовим ее из дерева и утепляем, чтобы создать нужные условия для крольчат. Во втором – делаем из сетки. |
| Шаг 5. Гнезда для летнего содержания также делаются с сетчатыми стенками. От оставшегося пространства их отделяют дощатой перегородкой, которую затем можно снять и получить просторную клетку для молодняка. Зимние маточники деревянные, с закрытыми стенками. Вход в него также деревянный, с закрывающимся отверстием, нижняя часть которого соприкасается с полом. На пол устилается сено. |
| Шаг 6. Делаем кормушки. Представляют собой эти приспособления лоток, занимающий большую часть стены клетки, находящейся спереди. Вставляется кормушка в клетку только на одну треть, дно ее выполняется под углом. Это нужно, чтобы кормушку можно было наполнить снаружи, не открывая при этом клетку. Также внутрь устанавливается поилка. |
Клетки Золотухина знамениты и пользуются успехом уже многие десятки лет. Простое изготовление делает их популярными, а кролиководческий эффект от них потрясающий.






































