Выбор проекта
 Грамотно составленный проект является залогом качественной стройки, а при его составлении необходимо внимательно изучить все детали.
Грамотно составленный проект является залогом качественной стройки, а при его составлении необходимо внимательно изучить все детали.
Нужно утвердить площадь планируемого строения. Существует разница между площадью по внешним осям и внутренним
Потому, при составлении проекта, берут во внимание желаемые габариты по внутренним стенам
В проекте следует указывать коммуникационные сети: подвод воды, канализации, электрические сети, отопительная система, вентиляционная, иные детали. В момент проведения строительных работ возможно будут нужны их прокладка параллельно с осуществлением других работ.
В самом проекте должна содержаться информация о несущих элементах, а также составляющих отделки.
Так как в наше время большой ассортимент проектов есть в свободном доступе в сети Интернет, то подобрать что-то стоящее для заказчика не станет особой сложностью.
Потому большинство берут его уже в готовом виде. Но при этом есть смысл попросить помощи у профессионалов.
Популярные проекты
 Качественные типовые и индивидуальные проекты каркасных строений с мансардой и верандой являются гарантией того, что будут созданы комфортные условия проживания в жилище в течение длительного времени. В последнее время, в основном, большая часть собственников останавливается на типовых проектах, поскольку альтернативные варианты и другие готовые решения отвечают всем требованиям и дают возможность обеспечить комфорт в помещении.
Качественные типовые и индивидуальные проекты каркасных строений с мансардой и верандой являются гарантией того, что будут созданы комфортные условия проживания в жилище в течение длительного времени. В последнее время, в основном, большая часть собственников останавливается на типовых проектах, поскольку альтернативные варианты и другие готовые решения отвечают всем требованиям и дают возможность обеспечить комфорт в помещении.
- Типовой проект позволит в значительной мере уменьшить материальные расходы и максимальным образом ускорить строительство коттеджа с мансардой. Экономия не будет означать, необходимость выбора из 2-3 вариантов. Выбирать можно будет из большого количества типовых проектов каркасных строений с террасой экономного и элитного вариантов. В подобном проекте все предусматривается до деталей.
- Индивидуальный вариант выйдет несколько дороже, но неоспоримым преимуществом будет высказывание всех пожеланий, при его планировке. Разрабатывают его будет выполняться ведущими специалистами, обладающие большим практическим опытом.
- Индивидуализированный проект — адаптируется типовый непосредственно под клиента. В них по желанию вносятся изменения, кардинально сам стиль не меняется. Их цена ориентировочная. Потому если заказчика не устраивают определенные детали в обыкновенном проекте, можно заказать индивидуализированный вариант.
Особенности проектов каркасных домов с мансардой
Частная застройка с оборудованным под жилое помещение чердаком — одна из характерных примет канадских или финских домов. Такой тип строений недаром появился у северных народов. С точки зрения физики второй уровень дома под скатами крыши станет своеобразным «термосом», который будет собирать тепло с нижнего этажа. Если мансарду оборудовать небольшим балконом, который может располагаться над летней верандой, то в тёплое время года вы сможете проводить там уютные домашние посиделки.
Любой проект дома начинается с выбора типа каркаса:

- Рамная конструкция с перекрытиями. Возведение стартует с монтажа лежней, которые располагаются поверх фундамента. Каждый элемент опирается на свою платформу. По технологии строение будет собираться снизу вверх. Сначала монтируются балки перекрытия, затем на их основе — каркас стен дома.
- Каркас на основе неразрезных стоек. Состоит из высоких дощатых стоек, которые располагаются от фундамента до условного потолка 2-го этажа. Доски соединяются перпендикулярно лагами перекрытия. Исключение — междуэтажное перекрытие, где фиксация элементов вертикальная.
- Стоечно-балочная конструкция. Лежит в основе архитектурного стиля фахверк. В сборке такого дома есть не только вертикальные и горизонтальные, а и угловые балки. Сначала выполняются чертёж и точные расчёты, затем подготавливается стройматериал, и только потом элементы соединяются между собой.
- Каркасно-стоечный остов. Вертикальные стойки исполняют роль свай и крепятся прямо в грунте. Актуально, если дом строится на слишком влажном или болотистом участке. Сваи помогают слегка приподнять строение над землёй.
Внимание! Каркас обычно выполняется из дерева или ДСП.
Обвязка
 
Перед укладкой брусьев, верхушки свай надо промазать мастикой и положить на них два слоя рубероида. Они будут служить гидроизоляцией. Сами брусья обрабатываются антисептиком.
Бруски устанавливаются на сваи по всему периметру основания. Соединяются между собой вполдерева при помощи гвоздей, длиной 120 миллиметров. На углах стыки можно усилить при помощи металлических уголков, закрепленных гвоздями, длиной 50-60 миллиметров.
Фиксация обвязки к основанию выполняется при помощи крепежных винтов. Брусья укладываются в оголовки (в специальные пазы) и привинчиваются.
Поверх обвязки необходимо уложить доску. Она должна перекрыть места соединений брусьев. Сюда в дальнейшем будут монтироваться стойки каркаса. Доску также надо обработать антисептиком. Длина гвоздей для крепления – 120 мм.
3. Устройство чернового пола
 
Лаги при помощи металлических уголков крепятся к обвязке. На них гвоздями крепятся доски.
Между лагами укладывается утеплитель, на него стелется пароизоляционная пленка. Последний слой – фанера, которая укладывается на лаги по всему периметру.
4. Установка каркаса
 
Сначала монтируются угловые стойки. Они фиксируются при помощи усиленных стальных уголков.
Далее идет монтаж всех остальных стоек. Для этой цели также подойдут уголки. На все стойки устанавливаются укосины. Они будут препятствовать расшатыванию.
Брус верхней обвязки
В углах бруски надо крепить при помощи вырубки, в других местах – стальными уголками. Уголки фиксируются саморезами.
Чтобы придать конструкции прочность, делается монтаж диагональных укосов.
Монтаж потолочных балок
Монтаж делается тремя способами:
- Методом вырубки
- Перфорированными кронштейнами
- Стальными уголками
Можно сочетать несколько способов, к примеру, уголки и метод вырубки. Балки должны опираться на брус обвязки. Крепление выполняется саморезами.
5. Монтаж стропильной системы
Монтаж крыши – процесс трудоемкий, поэтому мы вынесли его описание в отдельную статью «Крыша каркасного дома своими руками».
6. Внешняя отделка
 
- Вначале монтируется обрешетка из брусков, размером 40 на 50. Шаг крепления – 60 сантиметров. Можно также использовать профили из металла
- Обрешетка обрабатывается антисептиком и огнеупорным составом
- Далее идет монтаж отделочного материала по определенной технологии
 
Поверх крепят пароизоляционную пленку.
8. Внутренняя отделка
 
Здесь вам никто не советчик и вы вправе делать ее такой, какой вам заблагорассудится.
В этой статье мы рассказали вам по шагам, как построить каркасно-щитовой дом своими руками. Надеемся полученная информация будет вам полезна.
Фотоотчет строительства каркасного дома своими руками
В этом разделе вы найдете фото строительства каркасного дома, который строил наш читатель своими руками по выходным дням.
 
 
 
 
 
 
 
 
 
 
 
 
 
 
 
 
 
 
 
 
 
 
 
 
 
 
 
 
 
Видео строительства каркасного дома своими руками
Возведение фундамента под каркасный дом
Следует отметить – технология строительства каркасного дома поэтапно ведется с обязательным соблюдением всех норм и временных сроков, что обеспечивает надежность и прочность конструкции. Естественно, что начинать надо с планировки участка под застройку, изучения геологической обстановки и возведения фундамента, который может быть практически любого вида. Но учитывая, что вес строения небольшой, можно существенно снизить стоимость строительства и отдать предпочтение столбчатому или свайному основанию, например, устроенному с использованием специальных винтовых изделий.
Ленточно-монолитный фундамент, весьма популярный у частных застройщиков, необходим будет при условии, что планируется устройство подвала, в ином случае, его достаточно высокая цена, а также большая трудоемкость процессов не являются рентабельным в этом случае.
Но, следует учитывать, что не только собственными желаниями и предпочтениями следует руководствоваться при выборе типа фундамента для дома. Обязательно необходимо учитывать геологическую обстановку на участке, характер грунтов, а также уровень залегания подземных вод.
Если взять для примера одноэтажный каркасный дом, то при прочих равных условиях, самым оптимальным видом основания для него будет столбчатый фундаментЕго устройство вполне возможно своими силами и в максимально сжатые сроки, прежде всего за счет того, что количество земляных работ небольшое. Достаточно, в соответствии с расчетами, подготовить скважины соответствующего диаметра и на необходимую глубину, учитывая при этом промерзание грунта в зимний период.
Сначала выполняется разметка под будущие столбики с учетом того, что они должны располагаться под каждым пересечением несущих конструкций, а также с шагом 2–3 метра под несущими стенами, длина которых превышает 5 метров. Скважины под столбчатый фундамент своими руками для каркасного дома рекомендуется выполнять с расширением на конце, то есть с устройством так называемой пяты, которая придаст ему большую устойчивость и прочность.
А для защиты от подземных вод, рекомендуется выполнить на дне песчано-гравийную подушку, толщиной приблизительно 10–20 см, которую необходимо залить цементным «молочком», очень жидким раствором цемента с небольшим содержанием наполнителя.
Так как глубина залегания столбчатого фундамента может достигать 1,5–2 метра, а иногда и более, для придания жесткости конструкции и большей несущей способности, перед тем как выполнять заливку бетона рекомендуется установить арматурный каркас. Но до этого, особенно если грунт не является очень плотным, потребуется изготовить опалубку: для съемной часто используется металлическая, а для несъемной – асбестовая труба.
Спустя неделю, когда бетон наберет около 70% прочности, можно приступать к устройству ростверка, который может быть изготовлен в виде монолитной ленты или из металлических швеллеров.
Для изготовления бетонного ростверка потребуется установить опалубку, внутри которой смонтировать армирующий каркас из прутков сечением до 12–16 мм и выполнить заливку бетонной смеси. После этого, спустя одну–две недели, можно непосредственно приступать к возведению стен будущего дома.
Если же для ростверка используются металлические швеллера, то к этим работам можно приступать незамедлительно. Во время заливки монолитного ростверка следует установить специальные анкера с шагом 0,5–1 м, которые будут служить креплением для несущей конструкции каркаса.
Но, так как одним из достоинств каркасного строительства является возможность ведения работ круглый год, то в том случае, если фундамент возводится в холодное время, можно отдать предпочтение свайно-винтовому варианту, монтаж которого можно выполнить как с привлечением техники, так и ручным способом.
Для устройства ростверка в этом случае отдается предпочтение металлическим швеллерам, но допустимо и бетонное основание, смесь для которого должна изготавливаться с применением антиморозных добавок, а кроме того, следует обеспечить условия для его прогревания, чтобы не допустить замерзания воды.
Следует учитывать, что при устройстве ростверка должна обязательно учитываться планировка дома, так как на него будут опираться все несущие стены.
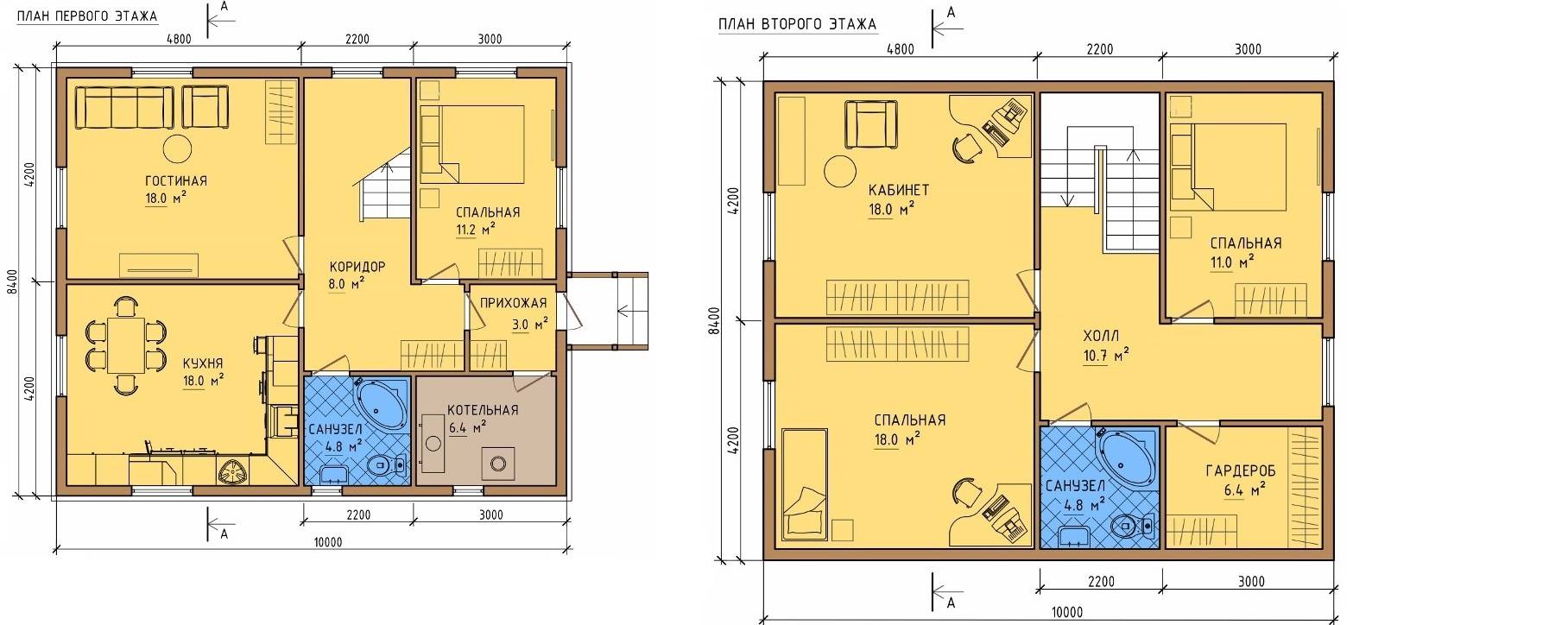
Дома для постоянного проживания: популярные проекты
А теперь рассмотрим наиболее популярные размеры каркасных домов с мансардой. Как мы уже знаем, дома с мансардами любят за отличное сочетание стоимости и получаемой полезной площади жилья. Однако какие габариты строения позволяют снизить количество отходов стройматериалов и тем самым сократить траты на возведение дома? Как известно, материалы, использующиеся для постройки каркаса и стропильной системы, имеют длину около шести метров. Следовательно, дома размером 6 на 6 являются одним из самых привлекательных вариантов бюджетного строительства и пользуются огромным спросом.
Типичный каркасный дом с мансардой не перегружен декоративными элементами снаружи и не имеет сложной планировки.

Каркасный дом 6*6 с мансардой 4*5
В таком варианте реализации каркасного дома мы получаем мансарду размером 4 на 5 метра. В случае, если к дому будет пристроена терраса, то обустройство общего капитального основания придаст устойчивость всей каркасной конструкции.
Дом с нависающей мансардой
Такой проект представляет собой каркасный дом с просторной террасой и мансардой. Использование подобного подхода позволяет увеличить площадь второго этажа. Террасу можно расположить как спереди здания, так и сбоку.

Как можно улучшить внешний вид каркасного дома с мансардой размерами 6 на 6 метров? Стоит обратить внимание на внешнюю отделку дома. Существует несколько подходов к ее реализации. Первый из них – создать отделку в классическом американском стиле из винилового сайдинга и металлической черепицы
Второй – использование мягкой черепицы и декор фасада в стиле фахверк. Стоимость реализации двух вариантов в принципе схожая. Какой придется вам по душе – тот и будет радовать вас годами
Первый из них – создать отделку в классическом американском стиле из винилового сайдинга и металлической черепицы. Второй – использование мягкой черепицы и декор фасада в стиле фахверк. Стоимость реализации двух вариантов в принципе схожая. Какой придется вам по душе – тот и будет радовать вас годами.
Он дает возможность не только улучшить внешний вид дома, но и создать уютный интерьер. Вместе с использованием двухскатной кровли эркер впечатлит не только ваших друзей, знакомых и соседей, но даже профессиональных строителей каркасных домов.
Помимо этого к дому можно пристроить балкон на втором этаже чтобы иметь возможность любоваться звездным небом не выходя из здания.
Балкон подходит к использованию вместе с «ломанной» крышей или мансардой с высоким коньком. К слову о кровле. Ее тоже можно сделать нетипичной. Среди вариантов:
- Неравноскатная крыша;
- Двухскатная с «кукшкой»;
- Полувальмовая или вальмовая.
Все перечисленное можно реализовать на базе дома размером «шесть на шесть». Кое-что можно обустроить и своими силами, почти ничего не затратив, а остальное придется возводить руками профессионалов за соответствующее сложности вознаграждение.
Дома до сотни квадратный метров
Помимо каркасных домов габаритами 6*6 существует масса других проектов с интересными планировками. Больше площади – больше пространства для реализации нестандартный решений по планировке и фасадам.
Дом 6*8
Подобный проект каркасного дома с мансардой дает возможность «поэкспериментировать» со сложностью кровли, использовав двухскатную форму с разными скатами, а также оптимизировать внутреннее пространство здания, разместив лестницу в просторном холле и сэкономив жилое пространство.

Еще возведение такого каркасного дома с мансардой позволяет установить «кукушку» на крыше использовав один скат кровли.
Дома больше 100 кв.м.
Некоторые люди полагают, что построить большой дом по каркасной технологии невозможно, однако зарубежный опыт показывает что это не соответствует действительности. Потому изучим проекты, рассчитанные на большую семью.

Дом 6*10
Отличительная черта такого каркасного дома с мансардой может заключаться в планировке. Так, второй этаж можно использовать под обустройство огромной спальни с выходом на балкон.
Каркасный дом 8*10
Подобный дом можно возвести с вальмовой кровлей, что позволит существенно увеличить полезную площадь мансардного этажа, получив при этом фактически полноценный двухэтажный дом.

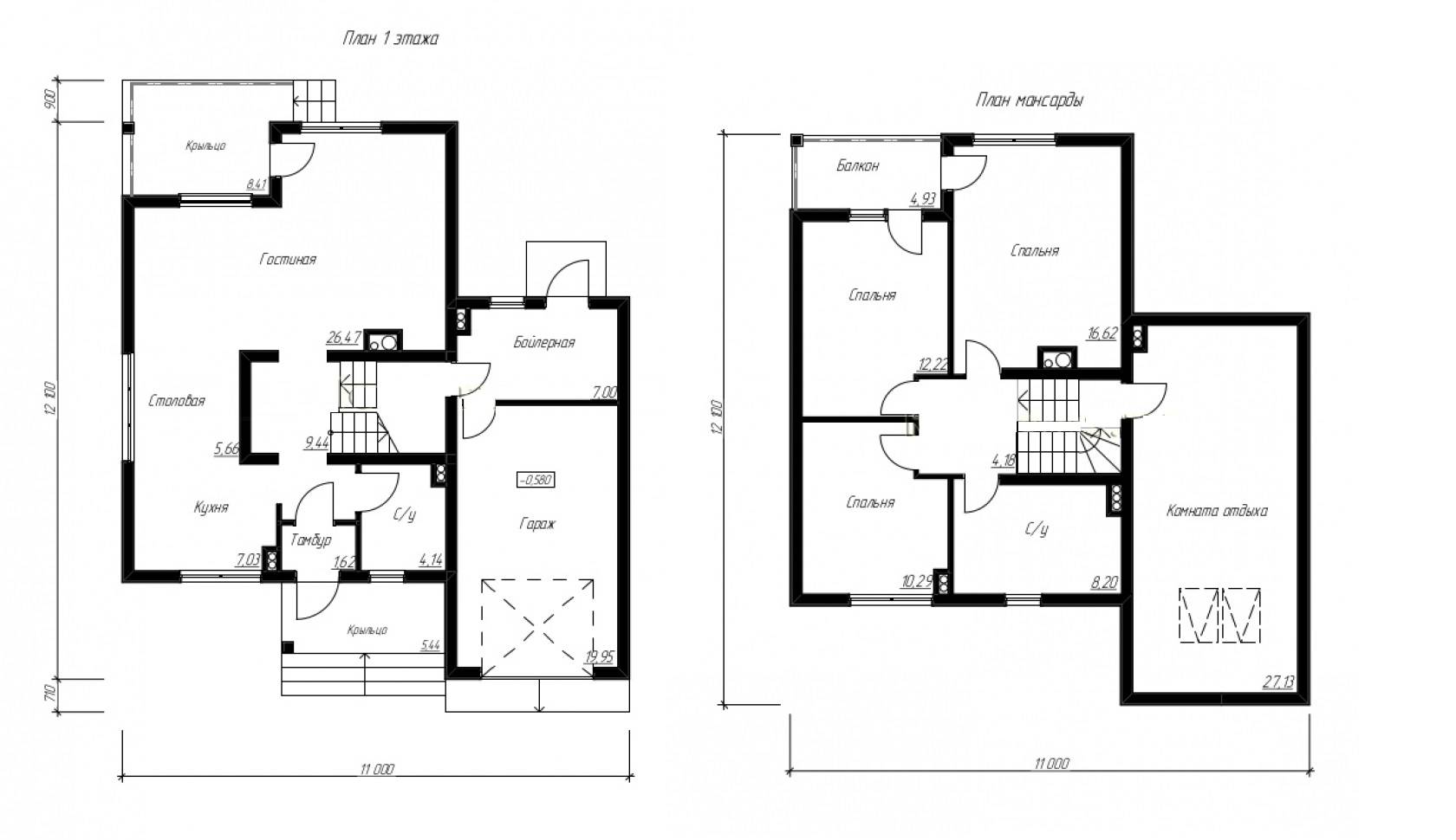
Дом с мансардой 11*12
В конце статьи у нас на обзоре каркасный дом с мансардой, имеющий сложную планировку. Постройка подобного здания требует привлечения большой бригады строителей и специальной техники, а также создания сложного плана, в котором будет учтена каждая мелочь, каждый элемент конструкции. Конечно, профессионалы могут построить такой дом всего за несколько месяцев. Однако построить подобный каркасный дом с обустроенной мансардой своими руками будет проблематично.

Примеры проектов каркасных домов с мансардой
Частные строения такого типа могут быть небольшими, до 100 кв. м, и габаритными, от 300 кв.м. Если вы хотите соорудить дачный домик, обратитесь к простейшей конструкции площадью 6х6 м или даже 6х4 м.
Специалисты советуют в этом случае монтировать 1-скатную крышу с углом наклона 45-60°. Под ней может поместить жилая комната и даже чулан (в самом углу). Окна выведите на ровную стену. Такой дом не займёт много места на участке, но вполне сможет обеспечить вашу семью кровом для красивого отдыха.

Более просторный дом 8х8 м расширяет возможности. На 1-м этаже можно оборудовать санузел и пару комнат, а на втором — спальни, кладовые и даже полноценную лоджию. Значит, это строение будет уже не дачным, а полновесным жилым. Только для проживания зимой вам потребуется дополнительно изолировать потолки и стены качественным утеплителем толщиной не менее 150 мм. Сооружение 8х8 уместно накрывать 2-скатной крышей.
При составлении чертежа можно воспользоваться бесплатными примерами из интернета. С другой стороны, только специалист сможет адаптировать строение к условиям климата и особенностям грунта вашего участка.
Главные этапы строительства мансарды
Строится мансарда в несколько этапов:
- Чертеж проекта мансардного этажа;
- В случае если мансарду необходимо построить на готовом доме, необходимо разобрать старые элементы кровли;
- Подготовка основы для мансарды: закрепление фундамента здания и стен верхнего этажа;
- Строительство стен мансарды;
- Кровельные работы: возведение, гидроизоляция и теплоизоляция, отделочные работы;
- Строительство оконных блоков;
- Отделка готового помещения.
Если соблюсти все тонкости постройки мансардного помещения, такое здание будет служить долго и надежно.
На этапе проектирования чертежа мансарды необходима особая точность. Следуют учитывать все детали основного помещения, такие как уровни кровельных конструкций, материал постройки, площадь помещения и прочие немаловажные аспекты.
Спроектировать мансарду можно несколькими способами. Первый – он же самый экономичный способ, самостоятельная разработка проектной документации, что предполагает наличие опыта составления подобных чертежей. Второй – подбор проекта мансарды среди готовых чертежей. Минус данного способа в том, что вряд ли удастся подобрать идеальный чертеж, подходящий именно под конкретную постройку, в большинстве случаев необходима будет доработка проектной документации. Третий – поручить составление чертежей специалистам проектировщикам (архитекторам). Это способ наиболее затратный в материальном плане, но в то же время очень надежный и экономичный по времени.
Чтобы избежать негативных последствий в виде разрушения мансарды, перед составлением проектной документации помещения необходимо учесть будущие нагрузки на здание, подобрать качественные строительные и отделочные материалы, при необходимости провести мероприятия по укреплению фундамента. Если вес мансарды будет превышать массу, допустимую для данного здания, возможно искажение и растрескивание здания.
С помощью специалистов будет проще выбрать правильный материал и согласовать постройку с учреждениями земельно-имущественных отношений.
Каркасный дом своими руками
Подготовительные работы необходимы для любого строительства, особенно если вы решили строить каркасный дом, пошаговая инструкция будет вам просто необходима. Если вы продумывали проект дома самостоятельно, то учитывали особенности расположения строения на участке. Если же вы купили готовый проект и решили воплотить его на месте, то понадобится «привязать» строение к вашему рельефу. Как построить каркасный дом, инструкция будет полезна на самых ранних этапах строительства.
Каркасный дом своими руками пошаговое фото.
Подготовка участка
Что понадобится сделать на участке, где строю каркасный дом своими руками:
- Очистить его от старых строений, при их наличии на участке, от строительного мусора и от пней, коряг.
- Обеспечить возможность подвоза строительных материалов, расчистить дорогу для машины и место для разворота.
Навес для хранения досок.
- Продумать места для складирования строительных материалов, если рельеф неровный, они должны располагаться на возвышениях, для защиты от намокания.
- Возможно, участок необходимо выровнять, для этого надо сделать расчет рельефа и вызвать строительную технику.
- Для некоторых участков, где ведется каркасное строительство, дополнительно будет актуальна инструкция, как соорудить забор, чтобы предупредить хищение материалов.
Разметка участка
Под разметкой понимают обозначение расположения будущего строения на местности. Схема каркасного дома переносят на местность с помощью колышек и верёвок. Колышки вколачивают в землю и натягивают между ними верёвку, обозначая расположение будущих наружных стен по периметру.
Разметка участка под строительство.
Тщательно измеряют все углы, соблюдают градусность (чётко обозначенные 90°) и длину стен. Отклонения хотя бы на несколько градусов не допускаются. Они ведут к искривлению строения и неправильному распределению нагрузок. Что в результате может снизить прочность всей конструкции и уменьшить её надёжность.
Устройство перекрытия первого этажа каркасного дома
Перекрытия первого этажа каркасного дома, как и цокольное перекрытие, выполняют по деревянным балкам сечением 100 х 200 мм, уложенным с шагом 600 мм.
 
 
Несущую балку, на которую опираются лестница и перекрытие холла, сколачивают из двух брусьев 100 х 200 мм. К боковым граням балок прибивают черепные бруски сечением 40×40 мм, по которым устраивают черный пол из обрезных досок. Его накрывают пленкой, засыпают сухим песком слоем толщиной 60 мм, а затем настилают чистый пол, используя шпунтованные доски толщиной 37мм.
После устройства перекрытия каркасного дома стены утепляют минераловатными плитами в три слоя. Плиты плотно вставляют между стойками, следя за тем, чтобы каждый стык нижнего слоя перекрывался плитой верхнего слоя. Изнутри поверх плит стену обтягивают пароизоляционной пленкой и обшивают обрезными досками толщиной 20 мм.
Технология строительства каркасной мансарды
Мансарда каркасного типа превосходно подойдет для любого типа помещения, включая помещения бань и строений гаражного типа.
Каркасная мансарда имеет ряд преимущественных особенностей:
- Не требует укрепления фундамента и стен, так как является легкой конструкцией;
- По сравнению с тяжелыми каменными мансардами является наиболее выгодной в плане цены;
- Имеет высокие звукоизоляционные и теплоизоляционные характеристики, но показатели достигаются только с учетом правильного и качественного утепления;
- Существует множество конфигураций каркасных мансард;
- Строительные работы не требуют применения специализированного оборудования, так как материалы сравнительно легкие.
Мансарда с готовым каркасом имеет довольно высокие показатели по многим параметрам. Здания с такими мансардами обладают высокой звукоизоляции и теплоизоляцией, а также за счет тонких стен имеют большую жилую площадь.
Один из наиболее простых вариантов – строительство мансардного этажа в процессе возведения дома. В этом случае демонтаж старой кровли не потребуется. Необходимо сначала изучить характер почвы на участке будущей постройки, определить стойкость фундамента. Опять же, если фундамент и стены дома не обладают достаточной прочностью, нужно произвести мероприятия по укреплению основы. После чего демонтировать кровлю и повысить прочность потолочных перекрытий.
Деревянная мансарда строится в несколько этапов:
- Сооружение каркаса;
- Строительство стен;
- Работы по утеплению стен мансарды;
- Установка сооружений кровли;
- Отделка и теплоизоляция кровельных элементов мансарды;
- Работы по внутренней отделке помещения.
После вышеперечисленных работ необходимо заняться установкой окон и установить окна и лестницу.
Мансарда из бруса подразумевает использование в строительстве обрезной доски, фанерных пластин и самого бруса. Скрепление деталей производится с помощью саморезов
Немаловажное значение имеют характеристики высоты мансарды. Наиболее удобной считается мансарда высотой свыше 2 м
Коньковая зона мансарды в среднем равняется примерно 3,5 м.
Каркас мансарды удобнее и проще сначала собрать на поверхности земли и впоследствии с использованием спецтехники установить вверху дома. Зафиксировать мансарду можно с помощью фанерных пластин и специализированных плит, создав тем самым основание мансарды.
После того, как каркас готов, производится теплоизоляция, гидроизоляция кровли мансарды, далее выполняются работы по обшивке стен, монтаж оконных и дверных конструкций. Завершающий этап – внутренняя отделка помещения.





































